8, rue Paul Janet
Rue Paul Janet n° 8 – X 189 (Blondel), O 943, ensuite section 31 parcelle 13 (cadastre)
Construite par l’entrepreneur en bâtiment Jacques Klein en 1882


Façade vue du nord – Bâtiment d’angle n° 10 puis n° 8 (novembre 2025)
Le jardinier Jean Heintz vend en 1600 la maison à Mathias Schultheiss. Agathe Eber, la veuve de son fils, en devient propriétaire, ses héritiers collatéraux la vendent en 1687. Les deux filles du jardinier Jean Georges Kientz en deviennent seules propriétaires en 1721 et constituent deux lots qu’elles tirent au sort, l’une occupe le poêle du rez-de-chaussée, l’autre celui de l’étage. Le fondeur de cloches catholique Jean Baptiste Allgeyer (1728-1730) meurt peu de temps après avoir acheté la maison, estimée à une valeur minimale de 225 livres (1716) puis 250 livres (1757, 1775). Le fabricant d’huile Jean Daniel Pfæhler puis son fils du même nom en sont propriétaires de 1752 à 1830 puis le maître charpentier Charles Chrétien Fritz sans l’habiter eux-mêmes.

La rue des Bestiaux sur le plan-relief de 1727 (musée historique). La maison se trouve au milieu de l’alignement de gauche

Elévations préparatoires au plan-relief de 1830, îlot 235 (Musée des Plans-relief) 1
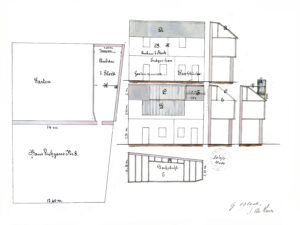
L’Atlas des alignements (années 1820) mentionne une maison à rez-de-chaussée en maçonnerie et un étage en bois. Sur les élévations préparatoires au plan-relief de 1830, la façade sur rue (k’’-l’’) comprend une première partie où se trouvent une porte et trois fenêtres au rez-de-chaussée et trois fenêtres à l’étage et une deuxième partie à porte cochère au rez-de-chaussée et une fenêtre à l’étage. La cour F’’ montre l’arrière (1-2) du bâtiment sur rue et en face le bâtiment arrière (3-4-5). La cour D’’ montre le bâtiment (4-5) adossé au bâtiment principal et le bâtiment arrière (1-2-3-4). Les clôtures (6-7-1) et (5) séparent la cour des propriétés voisines.
La maison porte d’abord le n° 41 (1784-1857) puis le n° 8 de la rue des Bestiaux (rue du Jardin Franck à partir de 1908 puis rue Paul-Janet à partir de 1919).



Cour F’’ – Plan – Cour D’’


Propriété Fritz, le 8, rue des Bestiaux en bas à droite (acte Pierron 7 E 57 10-193)
Terrains vendus en 1882, le sol du n° 8 est lavé en bleu (acte Pierron n° 5185, 7 E 57 10-200)
Jean Guillaume Fritz hérite des biens de son frère célibataire Charles Chrétien et meurt lui-même célibataire en 1879 après avoir fait des legs à divers établissements et nommé pour son légataire universel l’architecte Charles Auguste Schoop qui habite alors à Paris. Charles Auguste Schoop fait démolir la maison et sa voisine (n° 10). L’entrepreneur de construction Jacques Klein lui achète les terrains en octobre 1882, il hypothèque en janvier 1883 le nouveau bâtiment à rez-de-chaussée et trois étages qu’il a construit sur le sol de l’ancien n° 8 avant de le vendre au professeur de dessin Jean Chrisostome Kneer en 1889.
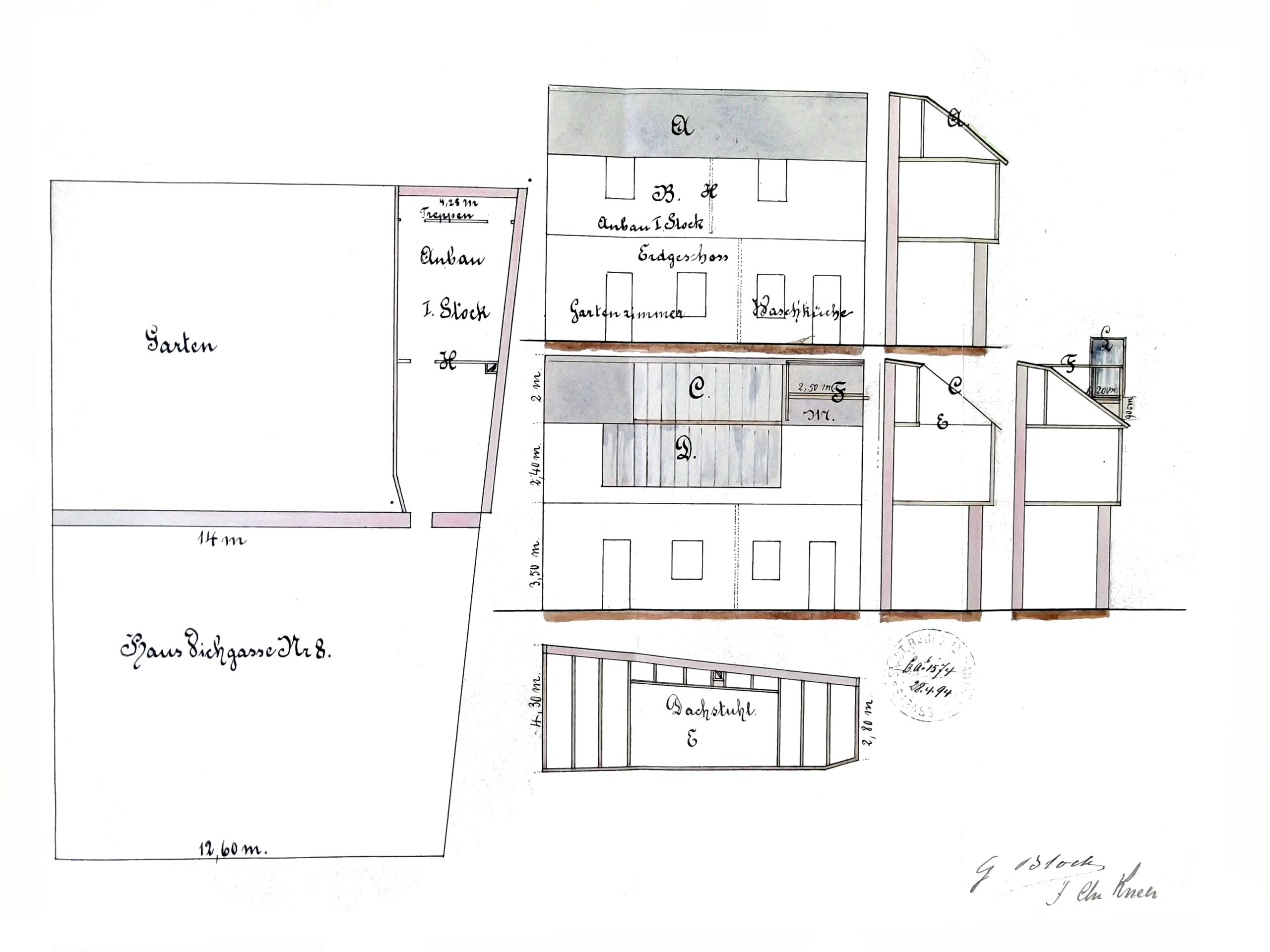
Le locataire Geoffroi Block fait aménager en 1894 un atelier de photographie dans le bâtiment arrière (à droite de la cour) dont les combles ont une paroi vitrée, complétée par une véranda. Le bâtiment arrière inoccupé depuis 1960 est démoli en 1968. La société civile immobilière Paul Janet charge en 2006 l’architecte Philippe Hammann de rénover le bâtiment, aménager des terrasses et une cage d’ascenseur sur la façade arrière et transformer la cour en espace vert. Le permis de construire est transféré en 2007 au nom de la société Immodiem à Duppigheim.



Bâtiment arrière aménagé en atelier de photographe (1894, dossier 795 W 210) – Façade arrière avant et après transformation (2006, dossier 1684 W 1005)


Portes des 10 et 8, rue Paul-Janet (image Fabien Romary, Archi-wiki) – Etages (novembre 2025)
décembre 2025
Sommaire
Cadastre – Police du Bâtiment dossier I, dossier II – Relevé d’actes
Récapitulatif des propriétaires
La liste ci-dessous donne tous les propriétaires de 1577 à 1952. La propriété change par vente (v), par héritage ou cession de parts (h) ou encore par adjudication (adj). L’étoile (*) signale une date approximative de mutation.
| Jean Heintz, jardinier, et (1583) Salomé Sandrock – luthériens | ||
| 1600 | v | Mathias Schultheiss, jardinier, et (1598) Chrétienne Wild, remariée (1634) avec le jardinier Thiébaut Müll – luthériens |
| 1641* | h | Michel Schultheiss, jardinier, et (1641) Salomé Schmutz, d’abord (1631) femme du jardinier Michel Hub, puis (1651) Agathe Eber – luthériens |
| 1670 | h | Jean Diel, jardinier, et (1631) Ursule Stephan, (1642) Marguerite Neuenstein puis (1670) Agathe Eber, veuve de Michel Schultheiss – luthériens |
| 1684 | h | Jean Riehl, jardinier, et (1650) Aurélie Diel puis (1684) Agathe Eber, veuve de Michel Schultheiss et de Jean Diel – luthériens |
| 1687 | v | Jean Voltz, jardinier, et (1661) Catherine Schultheiss puis (1677) Catherine Schwing – luthériens |
| 1692 | v | Jean Baas, jardinier, et (1688) Ursule Diel, (1695) Aurélie Nortz, d’abord (1690) femme de Nicolas Jud, puis (1707) Marguerite Schreiber, d’abord (1678) femme de Jean Daniel Busch – luthériens |
| 1711 | v | Jean Georges Kientz, jardinier, et (1687) Anne Marie Schmidt puis (1716) Elisabeth Catherine Clodius, d’abord (1696) femme du charpentier André Waffenschmidt puis (1715) du charretier Jean Schneeberger – luthériens |
| 1721 | h | (copropriétaires) Jean Hoh, jardinier, et (1711) Anne Marie Kientz – luthériens Jean Georges Jost, jardinier, et (1717) Anne Catherine Kientz – luthériens |
| 1728 | v | Jean Baptiste Allgeyer, fondeur de cloches, et (v. 1717) Marie Catherine Kübler remariée (1737) avec le fabricant de chausses Jean Melchior Heberlin – catholiques |
| 1730 | v | Ezéchiel Schlegel, boucher, et (1729) Justine Madeleine Reinhard – luthériens |
| 1733 | v | Jacques Schœllhammer, jardinier, et (1724) Marguerite Vix, remariée (1736) avec le journalier Samuel Hatterbeck – luthériens |
| 1738 | v | Jean Daniel Rumpff, tonnelier, et (v. 1722) Marguerite Salomé Graff – luthériens |
| 1752 | h | Marie Salomé Graff et (1722) Frédéric Christophe Seifert, pêcheur, puis (1728) Jean Martin Schott, jardinier – luthériens |
| 1752 | v | Jean Daniel Pfæhler, huilier, et (1731) Anne Marguerite Jung puis (1737) Anne Marie Bonert – luthériens |
| 1793 | h | Jean Daniel Pfæhler, huilier, et (1773) Marie Madeleine Magnus puis (1777) Marie Catherine Metz – luthériens |
| 1830 | v | Charles Chrétien Fritz, charpentier, célibataire († 1871) |
| 1871 | h | Jean Guillaume Fritz, charpentier, célibataire († 1879) |
| 1879 | h | Charles Auguste Schoop, architecte, et (1854) Eugénie Ott |
| 1882 | v | Jacques Klein, menuisier, entrepreneur en bâtiment, et (1847) Anne Marie Bachmann |
| 1889 | v | Jean Chrisostome Kneer, professeur de dessin au lycée, et (1881) Anne Fischer |
| 1919 | v | Henri Salomon, architecte et (1907) Marie Marthe Gœhrs |
| 1949* | h | (cohéritiers) Jean Vincent Steinlen, secrétaire, et Lena Salomon Etienne Jung, secrétaire, et Anne Marie Salomon Michel Scheidecker, ingénieur, et Lise Salomon |
Valeur de la maison selon les billets d’estimation : 225 livres en 1716, 250 livres en 1757 et en 1775
(1765, Liste Blondel) X189, Jean Daniel Pfähler
(Etat du développement des façades des maisons, AMS cote V 61) Pfehler, 7 toises, 0 pied et 3 pouces
(1843, Tableau indicatif du cadastre) O 943, Fritz, Chrétien – maison, sol – 2,3 ares
Description de la maison
- 1716 (billet d’estimation traduit) La maison comprend une écurie, une grange, un hangar, une cave voûtée, un puits commun, le tout estimé avec la cour, appartenances et dépendances à la somme de 450 florins
- 1721 (billet d’estimation traduit) La maison comprend poêles, chambres, cuisines, vestibules, à l’arrière une vieille grange, une écurie, petite cave voûtée, puits, le tout estimé avec la cour, appartenances et dépendances à la somme de florins
- 1757 (billet d’estimation traduit) La maison comprend deux poêles, deux cuisines, plusieurs chambres, le comble est couvert de tuiles plates et de tuiles creuses, la cave est voûtée, le tout estimé avec le puits, la cour, appartenances et dépendances à la somme de 500 florins
- 1775 (billet d’estimation traduit) La maison comprend deux poêles, deux cuisines, plusieurs chambres, comble couvert de tuiles plates, cave voûtée, écurie, petite cour, le tout estimé avec le puits, la cour, appartenances et dépendances à la somme de 500 florins
Atlas des alignements (cote 1197 W 37)
4° arrondissement ou Canton est – Rue des Bestiaux
nouveau N° / ancien N° : 6 / 41
Pfaehler
Rez de chaussée en maçonnerie et 1° étage en bois mauvais
(Légende)
Cadastre
La maison démolie en 1882 (au nom de Charles Auguste Schoop) est reconstruite en 1883 (au nom de Jacques Klein). L’ancien revenu est de 45 marks, le nouveau de 315.
Cadastre napoléonien, registre 25 f° 329 case 4
Fritz Chrétien rue des bestiaux N° 41
O 943, maison, sol, Rue des bestiaux 41
Contenance : 2,30
Revenu total : 46,20 (45 et 1,20)
Ouvertures, portes cochères, charretières : 1 / 1
portes et fenêtres ordinaires : 12 / 10
fenêtres du 3° et au-dessus :
Cadastre napoléonien, registre 27 f° 451 case 2
Fritz, Chrétien
1881/82 Schoop, Karl August
1883/84 Klein Jakob Bauunternehmer
1891/91 Kneer, Johann Chrisostomus, Zeichenlehrer
O 943, Maison, sol, Rue des bestiaux 8
Contenance : 2,30
Revenu total : 46,20 (45 et 1,20)
Folio de provenance : (329)
Folio de destination : Abbruch, (sol) Gb
Année d’entrée :
Année de sortie : 1883/4
Ouvertures, portes cochères, charretières : 1
portes et fenêtres ordinaires : 12
fenêtres du 3° et au-dessus :
Abgang – 1883 Schoop Karl August f° 1151, O 943, maison, revenu 45, Abbruch, supp. en 1882
O 943, Maison
Revenu total : 316,20 (315 et 1,20)
Folio de provenance : Neubau
Folio de destination : Gb
Année d’entrée : 1886/87
Année de sortie :
Ouvertures, portes cochères, charretières :
portes et fenêtres ordinaires : 27 / 22
fenêtres du 3° et au-dessus : 18 / 14
Zugang – 1886 Klein Jacob f° 1151-II, O 943, maison, Reinertrag 315, Neubau, vollendet 1883, steuerbar 1886/87, besteuert 1886/87
Cadastre allemand, registre 30 page 392 case 3
Parcelle, section 31, n° 13 – autrefois O 943
Canton : Viehgasse Hs N° 8 – Frankengartengasse – Rue Paul Janet
Désignation : Hf, Whs u. N.G.
Contenance : 3,11
Revenu : 2300
Remarques :
(Propriétaire jusqu’à l’exercice 1929), compte 668
Kneer Joh. Chrÿsostom
rayé 1929
(Propriétaire à partir de l’exercice 1929), compte 902
Nidschelm Ludw. August Ehefr.
1925 Salomon Henri Alfred architecte et son épouse née Goehrs
1950 clos
(Propriétaire à partir de l’exercice 1949), compte 6467
Steinlen Jean Vincent, secrétaire général, son épouse née Salomon pour 1/5 et cohéritiers
1951 Jung Etienne secrétaire général de préfecture son épouse née Salomon à Metz
(2213)
(Propriétaire à partir de l’exercice 1951), compte 6548
Scheidecker Michel ingénieur son épouse née Salomon à Paris (16°)
(3570)
1789, Enquête préparatoire à l’Etat des habitants (cote VII 1295)
Pres le Jardin de Mr le Baron de Franck
41
Loc. Bauer, Jean, marié – Invalide
Loc. Adam, Laurent, marié – Invalide
Loc. Druchlerin, Maria Cathar, Ledig – manant
Loc. Sava, Maria Barbara, Ledig – manant
Loc. Laflamme Magdelaine, marié – femme de soldat
1789, Etat des habitants (cote 5 R 26)
Canton X, Rue de l’abbreuvoir N° 349, p. 520
40. Prop. Fritz, Daniel, marié – Charpentiers
Loc. Heiligenstein, Jean, veuf – Charpentiers
Annuaire de 1905
Verzeichnis sämtlicher Häuser von Strassburg und ihrer Bewohner, in alphabetischer Reihenfolge der Strassennamen (Répertoire de toutes les maisons de Strasbourg et de leurs habitants, par ordre alphabétique des rues)
Abréviations : 0, 1,2, etc. : rez de chaussée, 1, 2° étage – E, Eigentümer (propriétaire) – H. Hinterhaus (bâtiment arrière)
Viehgass (Seite 185)
(Haus Nr.) 8
Dangel, Kapellmstr. 0
Manias, Eisb.-Beamt. 0
Kneer, Zeichenlehrer. E 1
Möckel, Musiklehrer. 2
König, Hauptlehrerin. 3
König, Seminarlehrer. 3
Dossier de la Police du Bâtiment (cote 795 W 210)
8, rue Paul-Janet (1894-1992)
Le locataire G. Block fait transformer en 1894 le bâtiment à droite de la cour pour y aménager un atelier de photographie, les combles auront dans leur partie centrale une paroi vitrée, complétée par une véranda. Le propriétaire fait démolir en 1968 le bâtiment arrière inoccupé depuis 1960.
Sommaire
- 1894 (avril) – G. Block, locataire du sieur Kneer, demande l’autorisation de modifier le bâtiment à droite de la cour pour y aménager un atelier de photographie. Les combles auront dans leur partie centrale une paroi vitrée, complétée par une véranda. – La Police du Bâtiment note que l’autorisation ne peut être accordée puisque le bâtiment en pan de bois a plus de six mètres de haut. – Le pétitionnaire déclare que la verrière conserve le toit en ardoises. La terrasse sert seulement à poser des fleurs devant une des fenêtres au deuxième étage du bâtiment principal. – G. Block est autorisé le 23 avril 1894 à aménager un atelier de photographie dans le bâtiment arrière de la propriété Kneer sise 8, rue des Bestiaux – Travaux terminés, avril 1894 – G. Block (sur papier à lettres Atelier de photographie G. Block, fondé en 1868, 4, rue Brûlée) demande en mai la réception finale qui ne donne lieu à aucune remarque.
1894 (avril) – La Police du Bâtiment constate que G. Block a posé une enseigne sans autorisation – Demande – Autorisation de poser une enseigne au n° 8 et une vitrine à l’angle de la rue Fritz. – L’enseigne est posée mais pas la vitrine (le propriétaire Schützenberger n’accorde pas son autorisation) - Commission des logements militaires, rue du jardin Franck (Frankgartengasse, propriétaire Kneer), remarques en trois points
Note en 1923. Marie Berthe Riff, âgée de 69 ans, est morte de tuberculose (8, rue Paul Janet, Frankgartengasse) - 1931 – La Police du Bâtiment constate que François Huck a posé sans autorisation une antenne de T.S.F. entre la maison et celle sise 3, rue des Balayeurs – L’infirmière L. Huck est autorisée à titre révocable à suspendre l’antenne.
- 1943 – Jean Steinmetz qui a transporté en 1942 son domicile de Halberstadt à Strasbourg, ville natale de sa femme, a loué un logement humide. Il demande au service d’hygiène de lui procurer un autre logement alors que lui-même sert dans l’armée. – La Police du Bâtiment se rend sur place, elle demande au propriétaire (la dame Salomon, demeurant 21, rue Finckwiller) de faire faire les travaux nécessaires dans le logement aménagé dans les combles. – Mme Salomon-Goehrs fait état des travaux qu’elle a fait faire dans le logement et des plaintes contre le locataire Steinmetz
- 1950 – La locataire Kuhn se plaint que l’eau pénètre dans son logement – La Police du Bâtiment constate les faits – Jules Kopp, gérant de la maison (demeurant 3, quai Rouget de l’Isle) déclare avoir demandé en vain des devis pour faire réparer la toiture. – Travaux terminés, décembre 1950
- 1960 – Rapport sur le bâtiment arrière (propriétaire, Charles Œsterlé, demeurant 6, rue du Welschbruch à Kœnigshoffen) comprenant au rez-de-chaussée une cuisine (9 m²) et deux pièces à l’étage, en maçonnerie de briques, étage en bois, la toiture défectueuse laisse passer l’eau.
1968 – Le propriétaire demande l’autorisation de démolir le bâtiment arrière inoccupé depuis 1960 – Extrait du plan cadastral – Le préfet accorde le permis de démolir, février 1968 – Le bâtiment a été démoli, mars 1968 - 1981 – L’entreprise Kleffer frères (20-a, rue Hirschfeld à la Wantzenau) est autorisée à poser un échafaudage sur la voie publique pour ravaler la façade – Travaux terminés, septembre 1983.
- 1992 – Mireille Cordonnier, demeurant 8, rue Paul-Janet, demande les règles à respecter pour un bar dancing.
Dossier de la Police du Bâtiment (cote 1684 W 1005)
8, rue Paul-Janet (2006-2008)
La société civile immobilière Paul Janet (1, allée Pierre Pflimlin à Erstein) charge en 2006 l’architecte Philippe Hammann de rénover le bâtiment, aménager des terrasses et une cage d’ascenseur sur la façade arrière et transformer la cour en espace vert. Le permis de construire est transféré en 2007 au nom de la société Immodiem à Duppigheim.
Sommaire
- 2006 (octobre) – La société civile immobilière Paul Janet (1, allée Pierre Pflimlin à Erstein) demande l’autorisation de réaménager le bâtiment sis 8, rue Paul Janet (section 31 parcelle 13) sous la direction de l’architecte Philippe Hammann (10, rue Paul Eluard à Strasbourg). Le projet consiste à rénover le bâtiment, à aménager des terrasses et une cage d’ascenseur sur la façade arrière et à transformer la cour en espace vert.
Surface hors œuvre brute avant et après travaux (premier / deuxième projet), rez-de-chaussée 134,55 m² (après travaux 179,58 / 149,27), premier, deuxième et troisième étages 402,18 (482,52 / 458,99) m², premier comble 133,45 (141,53 / idem) m², deuxième comble 72,32 (73,72 / idem) m², sous-sol 141,73 (141,73 / idem) m², au total 884,23 (1019,08 / 965,24) m² – Surface hors œuvre brute 600,00 (635,11 / 615,13) m²
2006 (décembre) – Arrêté portant permis de construire
2007 (avril) – La société civile immobilière demande le transfert du permis de construire à la société Immodiem (1, avenue Jean Prêcheur à Duppigheim)
2007 (mai) – Arrêté portant transfert de permis de construire
2007 (juin) – Avenant au permis de construire
Dessins – plan, coupe, élévation de la façade arrière, plan des différents niveaux – photographies
Suivi des travaux. L’échafaudage est posé, avril 2007. Les volets sont posés, juillet 2007. Les travaux de la façade sont achevés, l’aménagement intérieur est en cours
2011 – Francis Lœffler dépose au nom de la société Immodiem une déclaration attestant l’achèvement et la conformité des travaux. Le maire répond que l’attestation ne sera pas délivrée, les travaux ayant été achevés trop longtemps avant la demande.
Relevé d’actes
Jean Heintz vend la maison en 1600.
Originaire de Nordhausen en Wurtemberg, Jean Heintz épouse en 1583 Salomé, fille du jardinier Jonas Sandrock
Mariage, Saint-Guillaume (luth. f° 45-v n° XVII)
1583. Am Sonntag Misericordiæ. Hans Heintz von Northenhaußen aus dem wurtenbergerlandt ein garttner, dient bey Herr Anthoni Morler ins dritte Jar, Salome Sandrockin, weilandt Jonas Sandrocks des garttners nachgelaßene tochter, dient bey Lorentz wasser* dem gartner. Diese sind mir angesagt worden von Philips Sandtrock dem fischer der ist der brautt vogt
confirmatio facta postridie Jubilate die 22 Aprilis (i 160)
Le jardinier Jean Heintz devient bourgeois par sa femme deux mois après son mariage
1583, 2° Livre de bourgeoisie (4 R 104) p. 513
Hans Heintz von Nortthaussen der garttner Hatt das burgrecht empfangen vonn Salomeh Santtrockin seiner haußfrawen vnnd will Zuo (-) acttum den 14. Junÿ 83.
Jean Heintz et Salomé, fille du jardinier Jonas Sandrock, vendent la maison sise rue des Bestiaux au jardinier Mathias Schultheiss et à sa femme Chrétienne Wild
1600 (xxix decb.), Chancellerie, vol. 328 (Registranda Kügler) f° 344-v
Erschienen Hanns Heyntz der gartner und Salome sein eheliche hußfrauw wÿland Jonas Sandtrocks gartners selig. dochter hab. vnuer. verkaufft
Mathys Schultheÿßen gartners vnd Christin Wildtin sein Ehegemahl,
hoff huß hoffstatt Scheür Stall mit all and. Iren gebeu geleg. Inn der vorstatt Inn Crutenauw Inn der Vyhegaß einsyt Claus Schmid. gartner andersyt diebold Müll garter stoßend hind. vff Diebold Branden den Tuchers garten, dauon gendt Fünff pfund glts vff vnsre Lichtmeß tag fallend losig mit 100 pfund pfenning S Sanct Aurelien Werck Sonst für frey ledig eyg. der Khauff vber solch. beschwrd für 150 pfund pfenning SW
Fils du jardinier Georges Schultheiss, Mathias Schultheiss épouse en 1598 Chrétienne, fille du jardinier Thiébaut Wild : contrat de mariage, célébration
1598 (2.9.), Not. Strintz (Daniel, 58 not 53, Prothocollum 1597-1605)
Eheberedung Zwüschen Matthÿß Schultheÿsen vnnd Jung frauwen Christinen Wildin vffgericht
zwüschen dem Erbaren vnnd bescheÿdenen Matthÿß Schultheÿß.dem Garttner, Wÿland Georg Schultheÿßen deß Garttners vnnd burg.s Zu Straßburg seligenn Suhns, Ane einem
So dann der Tugendsamen Jung frauwenn Christinen Wildenn, deß Ehrenhafftenn Dieboltt Wilden deß Garttners vndt burgers Zu Straßburg ehelichen dochter Am Andern theil
Inn beÿsein (…) vnd sein Matthÿß Schultheÿßen deß Brüttigams seÿtten herrn Israel Bockh, Beÿsitzers der herren deß grossen Raths, Georg Schultheÿßenn deß Jüngern, Hanß Volparts, Georg Schultheÿßenn deß Elttern, Aller Vier garttner, So dann Martin Ecksteinns des Küffers sein deß hochzeiters Vogts, Stieffvatters, Bruders,Schwagers vnd Verwanthenn
So dann vff der Jungfrauwen Hochzeÿtterin seÿtten, herr Augustin Trenß, beÿsitzers der Herren Fünffzehenn deß bestenndigenn Regiments Alhie, Dieboltt Wildenn garttners, Ihres Vatters, Adam Wildenn vnd Jacob Treÿgers beÿder garttner Ihrer Vettern vnd verwanthen
Beschehen vff Sambstag denn Andern tag Septembris, Alls man Zalte nach der gnadennreichenn geburth vnnsers Herrens Heÿlandts vnnd einigen Erlösers Jhesu Christi 1598.
Mariage, Saint-Guillaume (luth. f° 136-v n° 32)
1598. Dominica18. Trinitat. Mattheß schultheis ein Jung gartner Görg Schultheissen des eltern selig Son vnd J. Christina Diebolt wilden des gartners alhie tochter. Confirmationem facta apud ceremon. partum* 24. octob. (i 302)
Mathias Schultheiss et Chrétienne Wild hypothèquent un champ au canton Klebsau
1621 (xxix. Decembris), Chancellerie, vol. 443 (Registranda Meyger) f° 670
(Inchoat. in Prot. fol. 491.) Erschienen Mathÿß Schultheÿß gartner Inn Crutenauw vnd Christin Wildtin sein ehelich. haußfr.
haben bekhandt vndt In gegenwärtigkheit h. Heinrich Vagÿ burgers Zu Straßburg – schuldig seÿen 100 pfund
vnderpfand, Anderthalben Acker Veldts gelg. Inn d. Klebßouw (…)
[in margine :] Erschienen Mathis Schultheÿß der Debitor hierinn gemelt an einem, So dann der Ehrwürdig vnd wolgelehrt H. M. Johannes Georgius Scheüring Diaconÿ Zu St. Wilhelm alhie Alß noch ohnentledigter Vogt Fr. Annæ Botzin H. hannß Philipps Schatzen ehelichen haußfrawen, alß Erbin H. Heinrich Vagii seel. Am andern theil (…) Actum den 11. Febr. 1630.
Mathias Schultheiss hypothèque la maison sise rue des Bestiaux à la Krutenau près de la Porte neuve au profit de Laurent Lœhr le jeune qui donne en 1635 quittance à la veuve Chrétienne, alors remariée au jardinier Thiébaut Müll
1626 (27. Martÿ), Chambre des Contrats, vol. 459 f° 246-v
(Inchoat. in Prot. fol. 136) Erschienen Mathiß Schultheiß der gartner in Crautenaw
hatt in gegensein Lorentz Löhren deß Jüngern, mit beÿstand Lorentz Schwebers seines stieffvaters garters in Steinstraß – schuldig seÿen xxv. lb
vnderpfand, hauß, hoffstat, Scheür vndt Ställ mit allen anden gebäwen in Krautenaw beim Newenthor in Vÿhegaß. neben Clauß Schmid. erben j. vnd 2. seit Dieboldt Müllen, hind. vff diebold Brand. garten stoßend gelegen, dauon gehen Jarß 5 lb Zinß von 100. lb Capital dem Werck S. Aurelien alhie
[in margine :] Erschienen Lorentz Lehr bekannten in gegensein dieboldt Möllen G. inn Craut: alß jetzig. Ehevogt Christina Mathis Schultzen des Debitoris see: wittib vnd hanß Schultzen obgedachts Debitoris Sohns (…) q.tirt Act. 16. Febr: 1635.
Mathias Schultheiss passe un accord avec son frère Daniel Schultheiss au sujet d’un remboursement pendant la dévaluation monétaire
1630 (14. Januarÿ), Chambre des Contrats, vol. 467 f° 54-v
Erschienen Matthis Schultheiß Gartner in Crautenaw, Burger Zu Straßburg
hatt in gegensein Daniel Schultheißen seines eheleiblichen Bruders auch Gartners daselbsten bekant,
daß derselbe Ihme wegen der 62. lb. so Martin Eckstein deß Küeffers vnd Burgers seel. alhie hinderlaßene Kinder vff sein Daniel Schultheißen Behaußung In Crautenaw, In der Viehgaßen gelegen, In gutem geldt stehen gehabt, aber ihme Mathiß Schultheißen, alß gedachter Kinder damalß gewesenen Vogt In schlechtem dem Rthlr. nach Zu 6. fl. gerechneten geldt, von Ihme damalen abgelegt worden, welche er Matthiß nachmalß Ihnen den Kindern vf Erkantnuß der H Vogteÿ Richter gutmachen müßen, für den gefordert. vnd von den Zu den Insonderheit Zu den Nachtrags geschäfften, verordneten herren Zuerkant. Nachtrag an Jetzo wolgangbarem geldt 28. Pfund (…)
Le jardinier Thiébaut Müll épouse en 1634 Chrétiene, veuve de Mathias Schultheiss
Mariage, Saint-Guillaume (luth. p. 55)
1634 Dominica Jubilate & Cantate. Diepolt Müll der Gartner alhie vnd Christin Matthes Schullß des gartners v burgers alhie nach. witwe. cop. eodem die [Montags den 5. Maÿ] (i 272)
La vente par les héritiers d’Agathe Eber en 1687 montre que la maison dont elle est devenue seule propriétaire revient à Michel, fils de Mathias Schultheiss.
Fils de Mathias Schultheiss, Michel Schultheiss épouse en 1641 Salomé Schmutz, veuve du jardinier Michel Hub
Mariage, Saint-Guillaume (luth. p. 171)
1641. Dominica XIX. Trinitatis. Michel Schultheis weÿland Mathis Schultheis deß Garttners vndt burgers Alhie nachgelaßener ehelicher Sohn, vndt Salome Schmutzin, weÿland Hanns Michel Hub des Garttenmanns undt burgers alhie nachgelaßene witwe (i 331)
Le journalier Michel Hub épouse en 1631 Salomé, fille du jardinier Georges Schmutz
Mariage, Saint-Guillaume (luth. p. 69)
1631. Dominica Sexag. et Quinquag. Hanns Michel Hub d. tagner Alhie v. Hanns Hueben des Zimmermans vnd burgers alhier nachgelaßener ehelich. Sohn vnd Jungf. Salome von Geörg Schmutz. deß gartners vnd Burgers alhier nachgelaßene eheliche Tochter. Copulirt Montags d. 9. Februarÿ (i 279)
Le journalier Michel Schultheiss épouse en 1651 Agathe, fille du cultivateur Georges Eber de Griesheim du Val (im Loch, près de Rosheim) : contrat de mariage, célébration
1651 (24. febr.), Chambre des Contrats, vol. 510 f° 153
(Protocoll. fol. 171. fac. 1 – Eheberedung) Erschienen Michael Schultz der Tagner in Krautenaw und Burger Zu Straßburg alß hochzeiter mit beÿstand Daniel Schultheißen Gartners in Krautenaw seines Vettern an einem,
So dann Jungfr. Agatha Georg Ebers deß Baursmanns Zu Grießheim im Loch eheliche dochter alß Hochzeiterin mit beÿstand hannß Schellhammners auch Garters in Krautenaw beÿ dem Sie nun in Zwölff Jahr lang gedienet haben am andern theil
Mariage, Saint-Guillaume (luth. f° 20 n° 7)
1651. Dominica Reminiscere & Oculi. Michael Schulthes der Gartner vnd Burger alhie, vnd Jungfr. Agatha, Georg Ebers Burgers Zu Grießheim beÿ Roßheim Eheliche Tochter. Copul. Mont. d. 3. Martÿ hora X. Wilhelm. (i 23)
Devenue veuve, Agathe Eber se remarie avec le jardinier Jean Diel
Le garçon jardinier Jean Diel épouse en 1631 Ursule, fille du cultivateur Nicolas Stephan de Wittersheim (Weidersheim). Les fiancés sont conduits de la prison à l’église pour y célébrer le mariage.
Mariage, Saint-Pierre-le-Vieux (luth. f° 8-v) 1631. Dominica Sexagesima. Auß erkandnuß eines ehrsamen Raths seind Sambstag den 19. Febr. auß dem thurn in die Kirch geführt v. eingesegnet word. hanß Diel der Gartners Knecht Vnnd Vrsula, Clauß Stephan deß baursmans Zue Weidersheim vngerathene tochter (im 11)
Jean Diel le jeune, huissier au poêle des Jardiniers de la Krutenau, épouse en 1642 Marguerite, fille du boulanger Gaspard Neuenstein de Willstädt
Mariage, Saint-Guillaume (luth. p. 187)
1642. Edoem die [Dominica I. Adventus] Johannes Diehel der Jünger der Garttenman vndt büttel vff der Garttnerstub Inn der Krautenaw vndt Jungfrau Margaretha, Caspar Newensteins gewesenen beckh vndt burgers Zu Wildtstett vnder den Grauen von Hanaw hinderlaßene eheliche tochter. Copulavit Zu St. Wilhelm vff obbesagten tag [Zinstag den 6. Xbris]
Jean Diel, huissier au poêle des Jardiniers de la Krutenau, se remarie en 1670 avec Agathe, veuve de Michel Schultheiss (Schultz) : contrat de mariage, célébration
1670 (2. Xbr), Chambre des Contrats, vol. 537 f° 649-v
(Eheberedung) Erschienen Hannß Diehl Gartner in Krautenau alß hochzeiter an einem
So dann Agatha Weÿl. Michael Schultzen geweßenen Gartners in Krautenau nunmehr seel. hinderlaßener Wittib alß hochzeiterin mit beÿstand Hannß Voltzen Gartner in Krautenaw ihres Curatoris am andern theil
Mariage, Saint-Guillaume (luth. p. 87 n° 36)
1670. Dncis I. u II. Adventus 27.t 9.br. u. 4 Xbr. Hans Thiell, Garttner vnd B. alhie auch beÿ unserer Gartner Zunfft Büttel vnd Agatha Wldt Michel Schuldheißen gewesen. Garttners u. B. alhier relicta Vidua. Conf. [-] (im 63)
Agathe Eber se remarie avec Jean Riehl
Fils de Georges Riehl, prévôt de Niderhaußbergen, Jean Riehl épouse en 1650 Aurélie, fille de Jean Diel, jardinier et marguillier
Mariage, Saint-Guillaume (luth. f° 17 n° 8)
1650. Dominica XL. & Reminiscere. Hans Rühl Von Niderhaußbergen der Gartner, Georg Rühlen geweßenen Schultheißen daselbsten hinderlaßener Ehelicher Sohn, Und Jungfr. Aurelia Herrn Johann Dielen des Gartners vnd Kirchenpflegers Eheliche Tochter. Cop. Mont. d. 11. Martÿ Wilhelm Horâ X. (i 20)
Jean Riehl devient bourgeois par sa femme trois semaines après son mariage
1650, 4° Livre de bourgeoisie p. 266
Hannß Rhiel Von Niderhaußbergen der Gartner empfangt d. burgerrecht von Aurelia hannß dielen dochter vmb 8 Goldt fl. würdt Zu d. Gartnern dien. Jur. den 2 Aprilis 1650.
Jean Riehl l’aîné se remarie en 1684 avec Agathe, veuve de Jean Diel, jardinier et huissier chez les Jardiniers
Mariage, Saint-Guillaume (luth. p. 169 n° 35)
1684. Iisdem Dominicis [Dom. XXIV et XXV. Trin.] Hanß Riel der Aelter, Gartner vnd B. alhier vndt Agatha Wld. Hanß Dielen alten Gartner Büttels vnd B. alhier hinterl. wittib (i 105)
Jardinier à la Krutenau, Nicolas Riehl passe un accord avec son frère Jean Riehl
1657 (16. Jan), Chambre des Contrats, vol. 522 f° 33
Erschienen Claus Rhiel von Niederhaußbergen
in gegensein Hannß Rhielen Gartners in Krautenaw
bekannt, daß Er von demselben, ahne den Jenig. 50. lib. welche gedachter hannß Rhiel, besagtem Clauß Rhielen seinen Brudern und mit Erben, vff der ihme hannß, von demselben Vettern Clauß Rhielen geweßenen Gartnern in Krautenaw nunmehr seel. prælegirter und alhie in Krautenaw in der kleinen Viehe gaßen gelegener Behaußung, herauß zu geben schuldig ist, die heffte nemblich. 25. lb. zu genüeg. empfang.
Les héritiers d’Agathe Eber, femme du jardinier Jean Riehl, à savoir Catherine Eber, veuve de Jean Gœpp de Griesheim, Madeleine, Marthe et Michel Eber, tous trois de Griesheim, Georges Eber d’Innenheim, Nicolas Zoringer et Georges Hartz, les deux de Bischoffsheim, vendent au jardinier Jean Voltz, assesseur au Petit Sénat, la maison sise près de l’Esplanade face à la Citadelle
1687 (25.8.br), Chambre des Contrats, vol. 557 f° 592
Diebold Schuler der Schultheiß von Grießheim beÿ Roßheim im nahmen und von wegen Catharinæ gebohrner Eberin, weÿl. hans Göppen von ged. Grießheim hinderlaßene wittib seiner Schwiegermutter, Magdalena und Martha Eberin, auch Michael Eber alle dreÿ auch von Grießheim, ferner Georg Eber von Inlenheim, So dann Claus Zoringer und Georg Hartz beede von Bischheim beÿ Roßheim, alle alß Erben ab intestato weÿl. Agathæ Eberin, hans Rhielen deß Garttners an Krautenau allhier gewesener haußfrau
in gegensein H. Johann Voltzen, Garttners an Krautenau, und E.E Kleinen Raths beÿsitzers
Erstlich hauß, höfflein, Scheur und stallung, auch deren hoffstätte, sambt allen andern Ihren Gebäuen, begriffen, weith. Zugehördten, Rechten und Gerechtigkeit. allhier ohnweit der Esplanade gegen der Citadelle, einseit neben Georg Schultzen dem Garttner, anderseit hans Jacob buchsbaums wittib hinden auff H. Elias Langen Von Collmar stoßend, Ferner dreÿ Acker Feldts neben einand. in der Klebsau im Undern feld (…) So dann Ein acker Felds auff der Metzgerau, außerhalb der Neuen Curbau (…) – umb 250 pfund
Jean Voltz vend la maison proche de l’Esplanade au jardinier Jean Baas
1692 (18.2.), Chambre des Contrats, vol. 564 f° 124
H. Hannß Volz E:E: kleinen Raths alter beÿsizer und Gartner in der Krautenau [unterzeichnet] Hanß Voltz
in gegensein Hannß Baaß auch Gartners an Krautenau [unterzeichnet] hanß baß
Hauß, Höfflein, Scheur und Stallung auch denen Hoffstätte sambt allen andern ihren Gebäuen, begriffen, weithen, Zugehörden, Rechten und Gerechtigkeiten allhier ohnweit der Esplanade gegen der Citadelle, einseit neben Georg Schultzen dem Gartner anderseit H. Joseph lautenschlager Ex Sen. hind. auff Elias Langen von Collmar stoßend gelegen – umb 212 pfund
Fils du jardinier manant du même nom, Jean Baas épouse en 1688 Ursule Diel, fille de Jean Diel et de Marguerite Neuenstein
Mariage, Saint-Guillaume (luth. f° 4-v n° 2)
1688. Auff heute Mitwochs d. 21. Jenner seind Hanß Baaß, d. ledige Gartenmann, Wld. Hanß Baaßen, deß Gartenmans Vndt Schirms verwandten alhier v. Ottiliæ Nonnenmännin nachgelaßener ehelicher Sohn, vndt J. Ursula, Wld. Hanß dielen, deß Gartners Büttels in d. Krautenau v. Burgers alhier Vndt Margarethæ Neusteinerin nachgelaßene eheliche Tochter. nach Zweÿmaliger, Dom. I. et II. post Epiph. vorgegangener Proclamation copulirt worden [unterzeichnet] hanß baß Alß hoch Zeiter, o o dieses ist der Jungfr. Hochzeiterin Handzeich. (i 5)
Jean Baas devient bourgeois par sa femme une semaine après son mariage
1688, 4° Livre de bourgeoisie p. 538
hannß Baaß der Gartenmann von hier, empfangt das burgerrecht von seiner haußfr. Ursula Dielin p. gold fl. undt 16. ß so Er bey der Cantzleÿ erlegt, ist ledigen standts gewesen, Zünfftig beÿ den Gartnern in Krautenau. Jur. 28. Jan.
Veuf, Jean Baas se remarie en 1695 avec Aurélie, veuve de Nicolas Jud, jardinier au Faubourg de Pierre
Mariage, Saint-Guillaume (luth. f° 55 n° 11)
1695. Mittwochs d. 29. Junÿ seind nach gewonlicher proclamation copulirt word. Hanß Baaß d. Wittiber Burger v. Gartenmann alhier und Aurelia, wld. Claus Juden, des Burgers vnd Gartners in der Steinstraß nachgelaßenee wittib [unterzeichnet] hanß baß als hochzeiters, + d. Hochzeiterin Zeichen (i 57)
Nicolas Jud épouse en 1690 Aurélie, fille du jardinier Jean Nortz
Mariage, Saint-Pierre-le-Vieux (luth. f° 75-v)
1690. den 7. Junÿ seind Copulirt Worden Clauß Jud der gartner Vnd burger alhie Vnd Jungfraw Aurelia, Hanß Nartzen burgers vnd gartners alhie hinterlaßene eheliche tochter [unterzeichnet] Ich Claus Judt der hochzeitter beken wie obstet, + dießes hat die Hochzeiterin hieher gesetzt (i 27)
Une nouvelle fois veuf, Jean Baas se remarie en 1707 avec Marguerite, veuve du garçon batelier Jean Daniel Busch.
Mariage, Saint-Guillaume (luth. f° 129 n° 20)
1707. Mitwoch d. 18. Ejusdem [Maÿ] Seind nach ordentlicher Zweimahliger proclamation offentlich Zur ehe eingesegnet und copulirt, Hanns Baas der gartner und burger, Wittwer, Und Fraw Margaretha, weiland hanß Daniel Buschen, des gewesenen Schiff Knechts und burgers seelig. nachgelaßene Wittib [unterzeichnet] hanß baaß alß hochzeiter, MB Zeichen der Hochzeiterin (i 133)
Fils du batelier Valentin Busch, Jean Daniel Busch épouse en 1678 Marguerite, fille de Jean Jacques Schreiber, de Willstädt.
Mariage, Saint-Guillaume (luth. p. 130 n° 11)
1678. Eodem tempore [Dominic. Miseric. et Jubilate d. 14. vndt 21. Aprilis] Hannß Daniel Busch der Schiffknecht Velten Busch des Schiffmanns ehel. Sohn, Jungfr. Margreth, Hannß Jacob Schreibers von Wildstätt tochter (i 85)
Jean Baas hypothèque la maison sise rue des Poules au profit du notaire Jean Adam Œsinger
1708 (9.11.), Chambre des Contrats, vol. 581 f° 625
Hannß Baaß der Gartenmann
in gegensein hrn Johann Adam Ößingers Not: publ. – schuldig seÿen 18 pfund
unterpfand, Hauß Höfflein hoffstatt Scheür und Stallung mit allen begriffen, weithen und zugehörden in d. Vorstatt Krautenau in d. Hennengaß, einseit neben neben der Lautenschlagerischen Wittib anderseit neben Michel Schultzen garttner in Krautenau hinten auff hrn Daniel gori gartenmann
Marguerite Kohrer (plus haut Schreiber), veuve de Jean Baas, fait un legs à sa fille Anne Catherine, issue de son premier mariage avec le garçon batelier Jean Daniel Busch.
1720 (29.11.), Not. Oelinger (J. Frédéric, 36 Not 6) n° 106
Codicill – persönlich kommen und erschienen die tugendsahme Margaretha gebohrne Kohrerin Weÿl. Johann Baßen geweßenen Gartenmanns vndt burgers allhier Zu Straßburg nachgelaßene wittib, von Verleÿhung Göttlicher gnadt gesund stehend vndt gehendten leibes auch guter richtiger Sinnen vndt verstandts
2. Verordnet Sie Anna Catharina buschin mit weÿlandt hannß Daniel buschen geweßenen Schiffknechts vndt burgers allhier Ihrem Ersten Ehemann ehelich erzeigten Tochter Zu einem Voraus (…)
Welches alles Zugangen vndt beschehen in einer allhier Zu Straßburg ane der Spitzengaß gelegenen Frawen Mariæ Barbaræ Meÿerin Eÿgenthümblich Zuständigen behaußung dem Untern Wohnstuben mit den Fenstern auff ged. gaß vndt ein klein höfflein außsehend vff Freÿtags den 29.ten Novembris Anno 1720.
[unterzeichnet] Margaretha gebohrene Korerein der Disponentin handzeich. x
Le journalier Jean Baas vend la maison sise rue des Poules au jardinier Georges Kientz moyennant 200 livres
1711 (19. Xbr), Chambre des Contrats, vol. 584 f° 724-v
(220) hanß Baß taglöhner
in gegensein hanß Georg Kuntz Gartners in Krautenau
hauß scheur u. stall mit allen begriffen, weithen, zugehörden, rechten und Gerechtigkeiten in der Krautenau in der Hennengass, einseit neben H. Joseph Lautenschlagers wittib anderseit neben Michel Schultz hinten auf Daniel Gori Garten – (davon gehen 100 und 18 pfund capitalien, geschehen um 101 pfund)
Fils du jardinier David Kientz, Jean Georges Kientz épouse en 1687 Anne Marie, fille du jardinier Georges Schmidt
Mariage, Saint-Guillaume (luth. p. 177 n° 1)
1687. Dom Septuages. et Sexagesima Hanß Görg Küntz, d. ledige Gartner, Hrn David Küntzen, deß Gartners vndt Burgers alhier ehel. Sohn, vndt J. Anna Maria, Wld. Görg Schmidts, des Gartners b. B. alhier nachgelaßene eheliche T. (i 109)
Anne Marie Schmidt meurt en 1716 en délaissant cinq enfants. L’inventaire est dressé à la Krutenau dans une maison face à celle dite à la Clé. Les experts estiment la maison délabrée proche de la rue des Poules à 225 livres. La masse propre au veuf est de 52 livres, celle propre aux héritiers de 26 livres. L’actif de la communauté s’élève à 814 livres, le passif à 586 livres.
1716 (4.5.), Not. Baer (Christophe Evrard, 2 Not 10) n° 484 (numéro XIX° s.)
Inventarium über Weÿl. der Ehr v: Tugendsammen Fr.en Annä Mariæ Küntzin gebohr. Schmittin, deß Ehrenhafften v. Wohlbesch. Joh: Georg Küntzen deß Gartners Inn Crauttenaw und burgers alhier Inn Straßburg geweß. Ehefrau seel. Verlaßenschafft, auffgerichtet und verfertiget Anno 1716. (…) nach Ihrem auff Sontag den 23: febr: dießes lauffenden 1716.ten Jahrs auß dießem Müheseel. v. vollen Kummer lebens genommenen dött. hientritt hinter Ihro verlaßen – So geschehen allhier Inn Straßburg auff Montags den 4. Maÿ Anno 1716.
Die seel. Verstorbene Fr: Küntzin hatt ab intestato Zu Erben Inn Stämme hinder Ihro verlaßen Wie Volget. 1. Fr. Annam Mariam gebohrne Küntzin, so verheurathet ahn den Ehren v bescheid.: hannß hohen, Gartner in Cruttenauw v. burgern allhier, dieße alß Eltere Tochter vnd i: Stamm Erb. so zwar würcklich in der Kindtbeth liegendt begriffen in der Nahmen vnd beÿständ. ihres Ehemanns vorged: so dam Geschäfft beÿgewohnet, 2. Jungfr: Annam Catharinam Küntzin die Jüngere Tochter, vnd alß 2: Stamm Erb. 3. Johann Georg Küntzin: lediger Gartner alß Eltere Sohn, vnndt 3: Stamm Erb, 4. Johann Jacob Küntz, Jüngers Söhn. alß 4.ten Stamm Erben, 5. Johann Michel Küntz Jüngsten Söhn. alß 5.ten undt letzten Stamm Erben, dießer Vier annoch ledigen Kindere vnndt Stamm Erben beÿständlich deren geschwohr: vogten, deß Ehren vnd wohl bescheid. Adolph haußen, Gartners ahne steinstraß, vnd burgers alhier, so Zugegen, samtl. vogts Persohnen vndt dem Geschäfft beÿgewohnet.
Inn Einer alhier Inn der Statt Straßburg Vorstatt Crauttenau, gegen dem Schlüßel nahe dem blumen Gießen gelegener, v. Inn dieße verlaßenschafft Eigenthümbl: behaußung befunden wie Volgt
In der Cammer A, In der nebens Cammer, Vor dießer Cammer, Inn der Wohnstub, Inn der Stub Kammer, Inn der Kuchen
Eigenthumb: ahne Liegenden Gütheren vndt Gärt. In der Statt (T.) Item ein klein Gärtel, auff ein nicht gar halben viertzel Groß gelegen alhier Inn der Statt Straßburg Vorstatt Crautenau, nahe dem Schlüßel (…)
Eigenthumb ahn häußeren so Theilbar (T. dec. w d: 29: Aprilis 1716) Erstl: ein sehr alte baufällige behauß. gegen dem Schlüßel über nahe dem Blumengießen (…)
(T.) Item eine behaußung höfflin, scheur so alt samt baufällig. Stallung vnd bronnen auch allen übrigen begriffen, Weithen, Zugehördten, Rechten v: gerechtigkeit gelegen alhier Inn der Statt Straßburg Vorstatt Cruthenaw, nahe der hennen gaß gelegen 1. s: neben herrn Joseph lautenschlagers geweß: Werckmeisters auff dem Münster seel: nachgelaßenen Erben, 2. s: neben hannß Michel Schultzen Gartners Inn d. Crauttenaw v: burgern alhier, hinden auff weÿl. Hn Daniel Gori deß ältern geweß. Garten Manns v: burgers alhier seel: Erben Garten stoßendt vnndt ist solche behausung Crafft Schrifftl. Abschatzung sub dato den 29: Aprilis 1716: durch der Statt geschworne Werckmeistere hiehero æstimirt 225: lb. Darüber besagt j: a: teutscher Pergament. Kauffbrieff auß allhieß: Cancelleÿ Contract Stub m. deren Innsiegel verwahret datirt d: 18. febr. 1692: mit altem N: 3: et 4: und mit N° 8: sig. ferner i: dito, mit dito datirt den 19:ten Xbris 1711: mit N: 9: sig:
Ergäntzung deß Wittibers ohnveränderten manglenden Guths, Weÿl. Frn Catharinä Kuntzin gebohr: Letzin deß auch weÿl. H. David Küntzen deß ältern geweß. Garthers in Crautt. v. burgers alhier Inn Straßbg. alß dießorths wittiber, geweß: eheleibl. mutter seel: verlaßenschafft auffgerichteten vndt darüber verfertigten Abtheilungs Register gesuchten Concept, so durch mich Notm. in aô 1709. den 12. Aprilis beschehen
Norma huius Inv: des Wit: unver. Eigth. H: Sa. haußraths 6, Sa. Erg. 46, Summa summarum 52 lb
Auf solches volgt nun auch d. ihr ohnv: und ererbt müt. Eig. G. Sa. haußraths 13, Sa. activa 8, Erg. 5, Summa summarum 26 lb
Endtl. u: lets. so wird nun auch d. geme: vndt S: T: g. beschrieben, Sa. haußraths 45, Sa. frucht 9, Sa. Wein v. leer. vaß 19, Sa. Schiff und geschirr Zum ackb. gehörig 15, Sa. des Strohes 15 ß, Sa. tabacks 4, Sa. Pferd 32, Sa. Rindtviehs 5, Sa. blum. auf dem velde 20, Sa. Silbers 1, Sa. G. Rings 12 ß, Sa. baarsch. 14, Sa. Eig. l: g: 154, Sa. häuß Sa. Activa 17, Summa summarum 814 lb – Passiva 586, Rest 228 lb
Conclusio finalis Inventarÿ 298 lb.
Abschatzung d. 29.t Aprill anô 1716. Auff begehren deß Ehren hafften vnd bescheitenen hanß görg Kintz, gardtener, ist Eine behaußung alhier in der Statt Straßburg in der Kraudtenau gelegen (…)
der Ander begriff: ist auch Alhier in der Statt Straßburg, beÿ dem Capaciner Kloster gelegen Ein Seith Neben: H: Johann Michäll Ehrlacher, Ander Seith Neben Michäll schultz gartner, hinden auff H: gorres gartnern, Stoßend, welche behaußung hoff, hoffstatt, Stallung, scheÿr, schopff, gewölbter Kelller, hoff vnd Ein gemeüner bronnen, Sampt aller, Ihrer Recht, vnd gerechtigkeith, Wie solches durch der Statt geschwohren werckhleüthe in der besichtigung befund. vnd dem Jetzigen preiß Nach angeschlagen wirt Vor und umb Vier hundert Fünffzig Gulten. Bezeichnüß durch der Statt Straßburg geschwornen Werckhleüth, Jacob Staudacher werckh Meister des Maur hofs, Michel Ehrlacher Werck Meister deß Minsters, Jacob schuller Werck Meister des Zimmer hoff
Jean Georges Kientz se remarie en 1716 avec Elisabeth Catherine, veuve du charretier Jean Schneeberger
Mariage, Saint-Guillaume (luth. f° 193 n° 23)
1716. Mitwoch den 15.t 9.bris 1716. seind nach geschehener 2 maligen außrufung Dominica XXIII et XXIV Trinit. in der Kirch Zu S. Wilhelm ehelich eingesegnet worden Joh: Georg Kientz der gartner burger v. witwer alhier weiland Anna Maria Schmidin ehemann v. Elisabetha Catharina Weiland Johann Schneebergers deß gewesenen Fuhr Knechts beÿ hießiger Statt nachgelaßene Wittib [unterzeichnet] hanß gorg kintz hochzeier, x Ist d. handzeichen Elisabetha Schneebergerin hochzeiterin (i 199)
Catherine Clodius, veuve du manant Jean Schnœberger, fait dresser un inventaire de ses biens
1716 (12.11.), Not. Baer (Christophe Evrard, 2 Not 10) n° 490 (numéro XIX° s.)
Inventarium über der Ehr: undt Tugendsamen Frauen Elisabethæ Catharinæ Schnöbergerin gebohrner Clodiußin, weÿl. Johann Schneebergers geweß: Fuhrknechts auff der Statt Luxhoff und Schirmsverwanthen alhier In Straßburg hinderl. Wittib Eigenthümlich Zuständiger Nahrung auffgerichtet vndt verfertiget in Anno 1716. – (…) auff ihr beschehenen freundtl. erfordern auff Zuvor verleßeen deß Eigens, v: Zeigens wegen (…) erstattete handtreu geäugt v: gezeigt – So beschehen allhier in Straßburg actum Donnerstags den 12.ten Nobris Anno 1716.
Sa. haußraths 149, Sa. Silbers 6, Sa. Gold. Ring 9, Sa. baarschafft 15, Summa summarum 181 lb
Inn den Extract Ist gesetzt Sa. haußraths 114, Sa. Silbers 6, Sa. Gold. Ring 9, Sa. baarschafft 15, Summa summarum 166 lb
Fille du menuisier Jean David Clodius de Francfort, Elisabeth Catherine Clodius devient bourgeoise par son mari (non dénommé) en s’inscrivant à la tribu des Jardiniers
1717, 4° Livre de bourgeoisie p. 831
Elisabetha Catharina Clodiusin von Franckfurth, weÿl. Joh: David Clodius gew: schreiners daselbst hint. Tochter, emp. das Burgerrecht von ihrem Mann p. 2. gold fl. 16. ß Wird beÿ den Gartnern dienen. Prom. d. 18. Dito [Xbr.] 1717.
Charretier municipal à la cour Saint-Luc (Luxhoff), Jean Schneberger épouse en 1715 Elisabeth Catherine, veuve de André Waffenschmidt, employé au chantier des Charpentiers
Mariage, Saint-Pierre-le-Jeune (luth. f° 23, XXII) 1715. Dominica XXI. et XX. post Trinit. poclamati sunt Johann Schneberger der Fuhrknecht auff der Statt Luxhoff allier und Fr. Elisabetha Catharina weÿl. Andreas Waffenschmidt gewesenen Zimmer Mans und Arbeitter auff allhiesigem Zimmerhoff nachgel. wittib. Copulati sunt Mittw. d. 20.t Nov. [unterzeichnet] Johan schnehberger hoch Zeitter, x ist das beÿzeich fr. Elisabethæ Catharinæ Waffenschmidtin der hochzeiterin (i 27)
Le charpentier manant André Waffenschmidt épouse en 1696 Catherine Elisabeth, fille du confiseur David Clodius
Mariage, Saint-Pierre-le-Jeune (luth. f° 72)
1696. Domin. XV. et XVI. post Trinitat. proclamati sunt Andreas Waffenschmidt d. Zimmerman v. schirms Verwandte alhier, vndt Jfr. Catharina Elisabetha, weÿl. Hr. Jacob David Clodius, geweßenen Zuckerbecken alhier, Nachgel. ehl. tochter Coplati Sunt Mittw. d. 10. 8.bris [unterzeichnet] + + (i 74)
Jean Georges Küntz et Catherine Elisabeth Clodius font dresser un inventaire de leurs apports. L’actif du mari s’élève à 363 livres, le passif à 546 livres, l’actif de la femme s’élève à 385 livres, le passif à 89 livres. L’inventaire décrit les mêmes maisons qu’à l’inventaire après décès ci-dessus.
1717 (1.10.), Not. Baer (Christophe Evrard, 2 Not 11) n° 508 (numéro XIX° s.)
Inventarium über deß Ehrenhafften auch Wohlbescheidenen Herrn Hannß Georg Küntzen Gartners Inn der Crauttenau und der Ehren und Tugendtsammen Frauen Catharinæ Elisabethæ gebohr. Clodiußin, beeder Eheleuthe undt burgere allhie Inn Straßburg einander Inn dießen Ihren Ehestand Zugebrachter Nahrung auffgerichtet undt verfertiget Anno 1717. – (…) weilen in der Zwischen Ihnen beeden Eheleuten auffgerichteten heuraths verschreibung expresse versehen, daß Eines Jeden in die Ehe Zubringende Nahr. reservirt v. ohnverändert seÿn und bleiben soll (…) So beschehen v. verhandelt alhier Inn Straßburg vff Freÿtags den 1. 8.bris 1717
Inn Einer alhier Inn der Vorstatt Crauttenaw nahe dem Blumen gießen gelegenen vnndt dem Ehemann Eigenthümlich zuständigen behaußung sich befunden wie volget
In der obern Cammer, Inn der andern obern Cammer, Inn der Wohnstub, Inn der Stub Kammern Inn der Kuchen
Eigenthum ahne Liegenden Güthere (Mann) i: klein Gärtl. auff j: nicht gar halb viertel groß gelegenen allhier Inn der Statt Straßburg vorstatt Crautenaw nahe dem Schlüßel (…)
Eigenthumb ahne häußeren so d. Mann für ohnverändert Zuständig (Mann) Erstl: j. behauß. in der Vorstatt Crauttenauw gegen dem Schlüßel über nahe dem Blumengießen (…)
(Mann) Item i: behaußung höfflein, Scheur samt Stallung v. bronnen auch allen übrigen begriffen, Weithen, Rechten, Zugehördten v: Gerechtigkeiten gelegen alhier Inn der Vorstatt Crauttenaw, nahe der Hennen gaß gelegen 1: s: neben herrn Joseph Lautenschlagers geweß: werckmeisters auff dem Münster seel: nachgelaß: Erben, 2: s: neben hannß Michel Schultzen Gartners Inn d. Crauttenaw v: burgern alhier, hinden auff weÿl. Herrn Daniel Gori deß ältern geweß: Garten Manns v: burgers alhier seel: Erben Garten stoßendt. Darüber sagt j: a: teutscher Pergam: Kauffbrieff auß allhießiger C. C. Stub mit deren Innsiegel verwahrt datirt d: 18. febr. ao: 1692: mit a: N: 3: 4: et 8: notirt. Ferner i: teutscher pergament: Kauffverschreibung, auß allhießiger C: C: Stub mit deren Innsiegel verwahrt, datirt den 19: Decembris ao: 1711 mit N: 9: signirt. Undt seind dieße beede häus: vor dißm: auch nicht æstimirt word.
Norma huius Inv: Des Manns inn d. Ehest. Zugebr: ohnv: Eig.th. Verm. Sa. haußraths 103, Schiff und gesch. Zum Ackb. 32, Frücht auf dem Kast. 37, Weins v. Vaß 30, Rindviehes 6, Pfred 59, tabacs 20, blum: auffm Veld 41, hew v strohs 14, Silb. v. geschm. 3 baarschafft 15, Eigth. ane liegend. güt. o, Eigth. ane häus: o, Summa summarum 363 lb – Passiva 546 lb
Auff solches volgt auch d. Ehefr. inn die Ehe Zugebr. ohnv. Eigth: G: vnd Erstl. Sa. haußraths 103, Silb. v. gesch. 3, gl. ring 9, Cap. 250, Activa 19, Summa summarum 385 lb – Passiva 89 lb, Nach deren Abzug 296 lb
Jean Georges Kientz meurt en 1720 en délaissant cinq enfants. Il a exprimé avant sa mort le souhait que la veuve ait un logement dans sa maison tant qu’elle restera veuve. Les experts estiment la maison rue de la Poule près de l’Esplanade vers la Citadelle ou (rapport d’experts) près du jardin des Capucins. La masse propre à la veuve est de 202 livres, celle des héritiers de 370 livres. L’actif de la communauté s’élève à 98 livres et le passif à 457 livres.
1721 (27.1.), Not. Lang (Jean Henri, 28 Not 8) n° 192
Inventarium über Weÿl. deß Ehrnvesten und Wohlgeachten Herrn Hannß Georg Küntzen deß ältern, geweßenen Garttners in Krauttenaw vnd burgers alhier zu Straßburg seel. Verlaßenschafft auffgerichtet Anno 1721.
Inventarium und Beschreibung aller der Jenigen haab, Nahrung und Güttere, Liegender vnd vahrender, so weÿl. der Ehrenvest vnd Wohlgeachte Herr Hannß Georg Küntz der ältere geweßener Garttner in Krauttenau und burger alhier nunmehr see. nach seinem den 28. Xbris nechstabgelegten 1720. Jahrs, genommenen tödlichen ableiben, Zeitlichen verlaßen, welche Verlaßenschafft auf freundliches ansuchen erfordern und begehren des Verstorbenen herrn seel. hinderlaßen Söhn vnd döchter wie auch der Ehr: vnd geschwornen Vogts, welche alle hernach ordentlich beschrieben, Vorgenommen ersucht und inventirt durch die Ehrn: und tugendsame fraw Catharinam Elisabetham Küntzin, gebohrne Clodiußin die hinderbliebene Wittib, beÿständlich Herrn Johann Friderich Langen Adelichen Schaffners vnd vnd burgers alhier Ihres geschwornen Vogts (…) Actum Montags den 27. Januarÿ Anno 1721
Der abgeleibte Herr seel. hat ab intestato Zu Erben Verlaßen wie volgt. 1. Die tugendsame fraw Mariam Hohin gebohrne Küntzin beÿständlich Hannß hohen Garttners in Krautenauw Ehefrauw, 2. die Tugendsame fraw Catharinam Jostin gebohrne Küntzin, Hannß Georg Josten Haußfrau, mit Assistentz Erstgedachts Ihres Ehemanns, 3. den Ehrengeachten Hannß Georg Küntzen den Jüngern Garttner in berührter Krautenaw welcher dem Geschäfft in Persohn beÿgewohnt, 4. 5. Hannß Jacob: und Hannß Michel Küntzen beede Ledigen standts, deren geschworne Vogt der Ehrsame Adolph Hauß Garttner in Steinstraß vnd burger alhier welcher dem Geschäfft in Person abgewart.
Alßo alle fünff deß verstorbenen seel. hinderlaßene öhn und dochter Jedes vor einen fünfften theil berührend
Zuwißen seÿe hiermit, demnach auff absterben weÿl. H. hannß Georg Küntzen deß ältern geweßenen Garttners ane Krauttenaww seel. Verlaßenschafft zu inventiren angetretten worden, (…) daß ver Verstorbene seel. auff seinem Krancken vnd todenbett, beÿ gutem verstand ohngezwung. außgesagt, daß fraw Elisabetha Catharina gebohrne Clodiußin seine geliebte haußfrau v. Jetzmahlige Wittib, welche Ihme in gesunden vnd Krancken tagen wie ohne dem einer Ehrliebenden frawen gebührt, alle Eheliche Lieb vnd guttaten erzaigt vnd erwießen, So lang Sie im Wittibstand Verbleiben würd, in seiner behaußung in der Krauttenaw, die Stub Cammer vnd platz in der Stuben, beneben einem halben Acker Veldts im Schluet Veldt Vor dem fischer thor gelegen, Zugenuesen, versproch. (…) Actum den 28. Januarÿ Anno & 1721.
In einer alhier Zu Straßburg ane der Krauttenaw gelegenen vnd in dieße Verlaßenschafft gehöriger behaußung befunden worden, wie volgt
In der Cammer& A, Vor dießem gemach, In der Cammer B, In der Wohnstub, In der Stub Cammer, Im untern haußöhren, Im Keller, Im hoff
Eigenthumb: ahne häußeren Vndt Gärttlein. (E.) Item eine behaußung Hoff, hoffstatt Ställ in der Vorstatt Krautenau geg. dem Schlüßel über nahe dem blumen gießen (…)
(E.) Item Hauß, Hoffstatt, Scheur vnd Stall mit allen begriffen, Weithen, Rechten, Zugehördten vnd gerechtigkeiten gelegen alhier Zu Straßburg in der Vorstatt Krauttenaw nahe der Hännen gaß ohnweit der Esplanade gegen der Citadell einseit neben Anna Maria Pflaumin, 2. s: neben hannß Michel Schultzen, hinden auff Daniel Gori Gartten stoßendt, So annoch umb 100 lb. Cap: der Fabric St Aurelien, Item umb 12 lb 10 ß d H Johann Adam Ösinger Notario vnd burgern verhafftet sonsten Ledig vnd eigen vnd ist diese behaußung über abzug vorgeschriebenen beschwerden annoch vermög obberührter Abschatzung æstimirt pro 62 lb. Darüber vorh. besagt i: teutscher perg. Kbr. auß allhies: C. Contractst. m. deren anh. Ins. verwahret de dato 19. Xbris 1711: mit altem N: 9: bemerkt, ferner i. älterer perg. Kbr. auß wohlgenanter C. Contr: stub gefertiget datirt den 18. febr. 1692: mit altem N: 3. 4. & 8. notirt und für dieses mahl darbeÿ gelaßen: Die brieff über solche behausung hat der dochtermann den 10. lib der dochter den 10. febr. 1711 gemeinschafftlich verwargung bekommen.
Ergäntzung der Fr. Wittib ermanglende veränderten gutts. Auß den über beeder geweßener Eheleute in der Ehe gebrachte Nahrungen durch Weÿl. H. Christoph Eberhand Beeren Not. auffgerichteten aber durch H. Abraham Kolben den Notm. suscribirten Inventario de Anno 1717.
Series rubricarum hujus Inventarÿ. Copia der Eheberedung – Copia Vergleichs
Der Wittib unveränderte Nahrung. Sa. haußraths 26, Sa. Silbergeschmeids 2, Sa. holdener Ring 5, Sa. Schuld 20, Sa. Erg. (207, Abzug 63, Remanet) 147, Summa summarum 202 lb
Dießemnach würd auch der Erben unverändert Vermögen beschrieben, Sa. haußraths 44, Sa. Schiff und geschirrs 15, Sa. Silbergeschmeids 1, Sa. Eigenthums ane häußern 247, Sa. Eÿgenthumbs ane Liegenden güttern 202, Sa. beßerung ane lehengüthern o, ss& Erg. (240, Abzug 160, Remanet) 80, Summa summarum 591 lb – Schulden 220 lb, Nach deren Abzug 370 lb
Endlichen würd auch das gemein verändert und theilbar gutt beschrieben, Sa. haußraths 13, Sa. frucht 21, Sa. Silbers 16 ß, Sa. Viehes 21, Sa. baarschafft 25, Sa. häw vnd Stroh 5, Sa. Tung und besserung 15 ß, Sa. Blumen auf dem feld 10, Summa summarum 98 lb – Schulden 457 lb: die Theilbare passiva übertreffen das Theilbar Gutt umb 359 lb
Conclusio finalis Inventarÿ 213 lb
Abschatzung: d. 28.ten Januarÿ anô 1721. Weÿland deß Ehren hafften, Vnd bescheÿtenen H: Görg Künß Gartner: Seel: hinder Laßenen, Erben, Ist Eine behaußung Alhier in der Statt Straßburg An dem blumen güeßen gelegen, Ein seith: Neben: Philibus Mäÿer, Ander seÿth Neben, H: pedter Edell (…)
Der Ander Begriff: ist Auch Alhier in der Statt Straßburg beÿ dem Cappuciner: garten, Ein seith Neb. Michäll schultz gartner, Ander seith Neben Anna Maria pfaffin hinden Auff: daniell Gorÿ Garten, stoßend, welche behaußung, hoffstatt Stuben, Kammern, Küch. hauß Ehren, hinden Ein Alde scheÿren, Stallung, Ein gewölbtes Kellerlein, höffell, vnd brunen sampt Aller Ihrer gerechtigkeit, wie solches auch der Statt Straßburg geschwornen werckh Leüthen, in der besichtigung befunden vnd den Jetzig preiß (…)
Vergleich: und ubergaab der beeden Häußer und Gärttlein. So viel nun Erstlich die Behaußung, hoff, hoffstatt, Stallung gemeinschaftlicher Bronnen vnd daran Ligendes Gärttlein mit allen deren übrigen rechten
zu Straßburg in der Vorstatt Krautenau geg. dem Schlüßel über nahe dem blumengießen gelegen (…)
Was aber die Jenige Behaußung, hoffstatt Scheür vnd Stallung mit allen übrigen begriffen, Weithen, Rechten vnd Gerechtigkeiten alhie Zu Straßburg auch gelegen in der Vorstatt Krautenauw nahe der hennengaß ohnweit der Esplanade gegen der Citadelle, so auch in dem Inventario à fol: usq. ad fol: mit mehrerm beschrieben betrifft, ist solche von denen Erben vnd dero vögten Mariæ Hohin gebohrener Küntzin beÿständl. hannß hohen Garttners in Krautenauw dero Ehevogt vnd Catharinæ Jostin gebohrene Küntzin mit assistentz hannß Georg Josten ebenmäßig Garttners in Krautenauw als beeden Schwestern und Mit Erben über abzug 100 lb d. Capital so mann der Fabric St. Aurelien und 12 lb 10 ß d H Johann Adam Ösingern Notario alhier darauff schuldig, Käufflich überlaßen worden vor 225 pfund (…)
Actum Mittwochs den 5. Februarÿ A° 1721.
Le partage joint attribue la maison rue des Poules à Marie, femme de Jean Hoh, et à Catherine, femme de Jean Georges Jost. Les parties forment deux lots, l’un comprenant notamment le poêle du rez-de-chaussée et l’autre le poêle à l’étage, qu’ils tirent au sort. Le rez-de-chaussée revient aux conjoints Hoh, le premier étage aux conjoints Jost.
1721 (5.2.), Not. Lang (Jean Henri, 28 Not 8) Joint au n° 192 du 27 janvier 1721
(Inventarium über Herrn Hannß Georg Küntzen deß ältern, geweßenen Garttners in Krauttenaw vnd burgers alhier zu Straßburg seel. Verlaßenschafft)
Vergleich: und ubergaab der beeden Häußer und Gärttlein. So viel nun Erstlich die Behaußung (…)
Was aber die Jenige Behaußung, hoffstatt Scheür vnd Stallung mit allen übrigen begriffen, Weithen, Rechten vnd Gerechtigkeiten alhie Zu Straßburg auch gelegen in der Vorstatt Krautenauw nahe der hennengaß ohnweit der Esplanade gegen der Citadelle, so auch in dem Inventario à fol: usq. ad fol: mit mehrerm beschrieben betrifft, ist solche von denen Erben vnd dero vögten Mariæ Hohin gebohrener Küntzin beÿständl. hannß hohen Garttners in Krautenauw dero Ehevogt vnd Catharinæ Jostin gebohrene Küntzin mit assistentz hannß Georg Josten ebenmäßig Garttners in Krautenauw als beeden Schwestern und Miyt Erben über abzug 100 lb d. Capital so mann der Fabric St. Aurelien und 12 lb 10 ß d H Johann Adam Ösingern Notario alhier darauff schuldig, Käufflich überlaßen worden vor 225 pfund (…)
Actum Mittwochs den 5. Februarÿ A° 1721.
Zuwißen seÿe Hiemit daß ane Zuendt stehendem beÿsamen erschienen Anna Maria, gebohrne Küntzin hannß hohen Garttners in Kruttenaw Ehefrau beÿständlich Ihres Ehemanns, So dann Catharin gebohrne Küntzin hanns Georg Josten ebenmäßigen Garttners in Krauttenaw Ehefraw mit assistentz gemelts ihres Ehewürths und haben sich wegen der behaußung Scheür, Ställ Gütlichen mit einander Verglichen, so Sie in weÿl. Hn hanns Georg Kuntzen ihres Vatters und Schwehers seel. Verlaßenschafft Abtheilung Käufflich angenommener behaußung um dieselbe Volgender maßen abgetheilt
A. Erstlich bestehet vnd Ligt die behaußung und. an der hennengaß gegen der Esplanade Im vndern Stock, Eine Stub vnd Stub Cammmer daran, worin der halbe offen in die Stub vnd der andere halbe theil in die Stub Cammer stehet
A. Zum andern ist Verglichen daß vor dießer Stub im haußöhren so erhöht ein mit diehlen und erschlagenes Cämmerlein an dem durch zug gegen der Straß außsehend, gemacht und ein fenster gegen dem hindern theil durch die diehlenwandt in das Cämmerlin gemacht werden solle, So der Jenige welcher die obere Stub und überige gemach bekommen würd auß seinen eigenen Kosten machen und bezahlen solle.
A. Drittens soll Zu dießen Gemachen gehörig sein, auff der bühn der Lincken Seithen wann mann hienauff gehet den ohngeblädelten Boden,und wie mann auff der rechten Seithen über den geblättelten Boden über eine steeg auff den Schopff gehet, deselben Schopff darzu, dabeÿ sattsam abgeredt daß welcher theil dießen Schopff oder bühn im Loos bekommen wird, vnd der Gemeinschafft deß durchgangs sich nicht mit einander stillen vnd Comportiren Könnten, daß der Jenige auff seinem eigenen Kosten unden im Schopff eine Steeg machen Zulaßen schuldig sein solle, die andere partheÿ auch nichts deßwegen hindern solle
B. Viertens betreffendt wie obere Stub vnd Stub Cammer vnd Kuch Vnd die Nebens Cammer ferner wann mann auff den frucht Kasten gehet auff der rechter hand die geplättelte bühn.
Fünfftes soll die Scheür, Schöpff Jedem Zum halben theil gebüren vnd haben sich die parthen deßwegen selbsten Zu Comportiren Verabschiedet
Sechsten soll die Soldaten Cammer auch ins gemein erhalten vndt außgesetzt Verbleiben.
Was nun Siebendts das gemeinschaftliche dach vnd fach auch bronnen vnd andere gemeinschaftliche Gäng vnd ohnvertheilte Sachen so hierinn nicht begriffen betreffen thun ist, deßwegen sattsam abgeredt, daß solches zwischen beeden parthen ins gemein erhalten vnd gebauen werden solle.
Achtens soll der Keller auff beeder Parthen Begehren vnd auff Ihr selbst Gutbefinden Zu eines Jeden halben Kosten underschlagen werden
Hierauff haben allerseiths parthen sothanen Vergleich vnd abtheilung steeth vnd Vest Zuhalten gegen einander mit Mund und hand versprochen
Dabeÿ Haben sich die Parthen auß mein des Notarÿ befragen errinnert, ob Sie sich nicht Vorgelegtem Loos wegen solcher gemach welcher theil das obere oder vndere theil haben solle, als ist Verglichen obwohlen ohngelooßt, daß Anna Maria Hannß hohen haußfrau den Buchstaben A. die undere stub vnd übrigen gemach, Catharina hannß Georg Josten haußfrau die obere Stub vnd übrige zugehörige gemach in Besitz vnd wohnung haben solle, Actum den 21. Martÿ 1721.
Fils du tonnelier Martin Hoh de Willstädt, Jean Hoh épouse en 1711 Anne Marie Küntz : contrat de mariage, célébration
1711 (5.1.), Not. Baer (Christophe Evrard, 2 Not 13)
Eheberedung – zwischen dem Ehrs: v. bescheidenen Hannß Hohen ledigen Gartner Weÿl. deß auch Ehrs: vnndt bescheidenen Martin Hohen geweßenen Kieffers v. burgers Inn Willstätt hoch Gräff. Hanawischer herrsch. hinderlaß. eheleib. Sohn als dem hoch Zeiter an Einem
So dann der Ehr v. tugends. Jgfr. Annæ Mariæ Küntzin deß Ehrengeachten vnndt wohlgescheidenen herrn hannß Georg Küntzen deß Gartners v: burgers alhier Inn Straßburg Eheleibl. Jgfr. tochter alß der Jgfr. hochzeiterin andern Theills
Actum Inn der Königl. freÿen Statt Straßburg Montags den 5: Januarÿ Anno 1711. [unterzeichnet] H.H. dießes Zeichen hatt der H. Hochzeiter selbsthändigen beÿgesetzt, O dießes Zeichen hatt die Jgfr. Hochzeiterin beÿgesetzt
Mariage, Saint-Guillaume (luth. f° 148 n° 3)
Mitwochs den 28.t Januarÿ 1711 seind nach geschehener 2 maliger außrufung Dom. 2. et 3.a Epiphan. Zu einer Christlichen ehe eingesegnet worden Johann Hohe der ledige gartner v. burger allhier weiland Hans Martin Hohe deß burgers zu Wildstätt nachgelaßener ehelicher Sohn vnnd Jfr. Maria Hans Georg Küntzen deß gartners vnd burgers allhier v. Anna Maria gebohrene Schmidin eheliche dochter, + Ist d . Handzeichen Hans Hohe deß hochzeiters, o Ist d. Handzeichen Jfr. Maria Küntzin hochzeiterin (i 153)
Le jardinier Jean Hoh devient bourgeois par sa femme deux mois et demi après son mariage.
1711, 4° Livre de bourgeoisie p. 782
Hannß Hoh der gartner Von Willstätt, Weÿl. Martin Hoh gew: Küeffers daselbst sohn, empfangt das burgerrecht Von seiner Fr: Maria Kientzin p. 2. Gold fl. 16. ß. Wird beÿ denen Garttneren dienen. Jur. d. 13. Aprilis 1711
Jean Hoh et Marie Kientz d’une part, Jean Georges Jost et Catherine Kientz d’autre part, hypothèquent la maison au profit des enfants mineurs du vitrier Jean Hau
1721 (20.2.), Chambre des Contrats, vol. 595 f° 106
Johann Hoh garttner Underwagnern und Maria geb. Küntzin wie auch Johann Georg Jost auch garttner ahne Krauttenau und Catharina geb. Küntzin beÿständlich hannß Georg Küntzen Meÿers auff dem Neuen hoff und adolph huß garttners ahne Steinstraß
in gegensein Johannes Spechten Meelmanns als Vogts Johann hauen des Glaßers dreÿer Kinder – schuldig seÿen 120 pfund
unterpfand, Eine behausung hoffstatt Scheur und Stallung mit allen deren begriffen, weithen, Rechten und gerechtigkeiten allhier in der Krauttenau nahe der hennengaß ohnweit der Esplanade gegen der Citadelle gelegen (und feld)
Fils d’André Jost, cultivateur à Friesenheim en Bade (selon le livre de bourgeoisie plutôt que Griesheim comme le portent le contrat et l’acte de mariage), Jean Georges Jost épouse en 1717 Anne Catherine Kientz. Dans un article du contrat de mariage, le père de la mariée offre aux nouveaux mariés le logement pendant six mois dans la partie du rez-de-chaussée donnant dans la cour.
1717 (7.5.), Not. Baer (Christophe Evrard, 2 Not 13) n° 706
Eheberedung – zwischen dem Ehren: v. Wohl bescheid: Johann Georg Jost ledigen Gartnern deß Ehrs: vnd bescheidenen Andreä Josten deß Ackermanns v. burgers in grießenheim hoch fürst. badischer herrschafft eheleib. Sohn, als dem hoch Zeiter ahne Einem
So dann der Ehr: v: tugendts. Jgfr. Annæ Catharinæ Küntzin, deß Ehrenhafften v: wohlbescheid. H: hannß Georg Küntzen deß Gartners Inn der Crauttenau und burgers alhier Zu Straßburg ehel. Jgfr. tochter alß der Jgfr. hochzeiterin andern Theils
Siebentens so verspricht der hochzeiterin Vatter dießen beeden Neu angehenden leuthen, dieselbe in seine behaußung gelegen nahe beÿ dem Capuciner Closter, darinnen auff und an zu nehmen, undt ein halb jahr lang die eine untere Stub in den hoff außsehend Zum behelff, ohne endtgeld gantz freÿ zu raumen, aber so bald das halb jahr vorüber, sich ander werth. vmb bewohnung umbzusehen verbunden seÿn, oder wann es dem vatter anständig, vnd Sie belieben tragen länger sich mit dießer Stub Zu behelfften, deß Zinßes halben sich gütlichen vergleichen
Geschehen Straßburg auff Freÿtags den 7: Maÿ Anno 1717. [unterzeichnet] H.G.I. dießes Zeichen hatt der Hochzeiter selbsthändigen beÿgesetzt, A.C.K. dießes Zeichen hatt Jgfr. Hochzeiterin anbeÿgesetzt
Mariage, Saint-Guillaume (luth. f° 196-v n° 11)
Mitwochs den 25.t Mai 1717 seind nach geschehener 2 maliger außrufung Dominica Pentecost. & Trinit. in der Kirch Zu S. Wilhelm ehelich eingesegnet worden Hans Georg Jost der ledige tagner vnd burger Andreas Josten deß ackermans v. burgers in Grießenheim Hochvürstlichen baadischer Herrschafft v. Barbara Schwendin ehelicher Sohn, v. Jfr. Anna Catharina Hans Georg Küntzen deß gartners v. burgers allhier v. Anna Maria Schmidin eheliche dochter, H Ist d. Handzeichen Hans ge&é Josten, F F Ist d. Handzeichen Anna Catharina Küntzin (i 204)
Le journalier Jean Georges Jost devient bourgeois par sa femme quatre mois après son mariage
1717, 4° Livre de bourgeoisie p. 830
Joh: Georg Jost der taglöhner Von Frießen, Andreas Josten auch taglöhners daselbst sohn, emp: fas burgerrecht v. Fr: Catharina Kuntzin p. 2. gold fl. 16. ß. wird beÿ den gartneren dienen. Jur: d. 30. Dito [9.br] 1717.
Jean Georges Jost et Catherine Küntz hypothèquent leur moitié de maison au profit de Marie Madeleine Gretzinger, veuve de Jean Jacques Richshoffer.
1726 (2.12.), Chambre des Contrats, vol. 600 f° 604
hannß Georg Jost garttner ahne Krauttenau und Catharina geb. Küntzin mit beÿstand ihrer beeden brüder hannß Georg und Jacob der Küntzen beede Gartter ahne Krauttenau
in gegensein S.T. Fr: Mariæ Magdalenæ geb. Gretzingerin weÿl. S.T. H. Johann Jacob Richshoffer alten Ammeisters und dreÿzehners Fr. wittib mit beÿstand ihres Curatoris H. Lt. Johann Jacob Römer procuratoris vicarÿ und ihres jüngern Sohns H. Johann Christoph Richshoffer Jurium Candidati – schuldig seÿen 45 pfund
unterpfand, die abgetheilte helffte ahn einer behausung Scheur Stallung hoff und hoffstatt mit allen derselben gebäuden, begriffen, weithen, zugehörden, Rechten und gerechtigkeiten in der Vorstatt ahne Krauttenau ohnfern der hennengaß und denen Capucinern, einseit neben der Pflaumischen wittib geb. Quadin der hebamm anderseit neben Michael Schultz dem garttner hinten auff Daniel gorj gartten – der Jostischen ehefrau als ein von ihrem vatter seel. erebtes guth
Marie Küntz femme de Jean Hoh et Catherine Küntz femme de Jean Georges Jost vendent la maison au fondeur de cloches Jean Baptiste Allgeyer et à sa femme Marie Catherine Kübler moyennant 330 livres
1728 (27.8.), Chambre des Contrats, vol. 602 f° 412-v
Maria geb. Küntzin hannß hoh des Garttenmanns ehefrau mit beÿstand ihres Ehemanns und dero schwester Catharina geb. Küntzin Johann Georg Jost des ausgetrettenen garttners ahne Krauttenau verlaßene ehefrau so ohnbevögtigt beÿständlich ihres bruders Johann Georg Küntz auch garttners allda
in gegensein Johann Baptist Allgeÿer des glockengießers und Mariæ Catharinæ geb. Küblerin
Eine Behausung hoff scheuer Stallung Bronnen und hoffstatt mit allen derselben gebäuden, begriffen, weithen, zugehörden, Rechten und gerechtigkeiten in der Vorstatt ahne Krauttenau nahe der hennengaß ohnweit der Esplanade gegen der Citadelle, einseit neben Michael Schultz dem garttner ahne Krauttenau anderseit neben weÿl. Maria Pflaumin geb. Quadin der wittib und hebamm hinten auff Daniel Gori des gartenmanns gartten – beeden schwestern zur ohnvertheilten helffte eigenthümlich zuständig – 262 pfund ausmachende capitalien verhafftet, geschehen um 67 pfund
Jean Baptiste Allgeyer et Marie Catherine Kübler font dresser un état de leur fortune (attestant qu’elle est suffisante pour devenir bourgeois)
1719 (16.12.), Not. Hoffmann (Christophe Michel, 19 Not 66)
Designation und Verzeichnus deß jenigen Vermögens, Welches Herrn Joh. Baptista Allgeÿer dem Glockengießer, und frauen Mariæ Catharina gebohrner Küblerin beeden Eheleüthen alhier eÿgenthümblich Zusrtandig, wie selbst angeben geäugt und gezeigt
Metall und Mößing wie auch Werckzeug Zur Glockengießereÿ gehörig 209, baarschafft 26, ahne Liquiden Activ Schulden 96, Summa 333 lb
Sig. Straßburg den 16.ten bris Anno 1719.
Fils du fondeur de cloches Valentin Allgeyer d’Offenbourg, Jean Baptiste Allgeyer achète le droit de bourgeoisie pour lui et sa femme Marie Catherine Kübler, aussi originaire d’Offenbourg. Ils apportent un fils Jean Baptiste qui suit la coutume (il ne devient pas bourgeois)
1719, 3° Livre de bourgeoisie p. 1309
Johann Baptista Allgeÿer der Glockengießer Von Offenburg Weÿl. Valentin Allgeyers geweßenen Glockengiesers allhier hinterl. ehel. Sohn Vnd sein fraw Maria Catharina Küblerin Von Offenburg erkauffen das burgerrecht pro 5 Goldt fl. 16. s. d. bringen ein Kind Mit Johann Baptista, so beÿ Ordnung gelaßen jur. den 17. febr: 1720. wollen beÿ E: E: Zunfft der schmidt dienen.
Baptême de Catherine Thérèse en 1722
Baptême, Saint-Etienne (cath. f° 86 n° 623)
Hodie 29. Aprilis Anni 1722 (…) baptizata Catharina Theresia filia Joannis Baptistæ Algeyer et Annæ Catharinæ Kiblerin ejus conjugis legitimæ in hac parochia commorantium die 27. hujus mensis et anni circa mediam noctem nata patrinus fuit Joannes petrus Ellerbach Civis offenburgensis, matrina fuit Maria Francisca blanckenbächin uxor bartholomæi gelÿ* civis dicto offenburg (i 90)
Jean Baptiste Allgeyer meurt en 1728 en délaissant quatre enfants. L’actif de la succession s’élève à 1 090 livres, le passif à 950 livres.
1729 (15.2.), Not. Rith (6 E 41, 948)
Invent. undt beschreibung aller der Jenigen Haab nahrung undt guetter, wie auch schuldten undt gegen schuldten nichts davon außgenohmen, reseruirt noch Vorbehalten so weÿl. der ehrengeachte herr Johann Baptiste Allgeiger der burger Stuck undt Glockhengießer allhier zu Straßburg nun mehro seel. nach seiner Vor ungefehr 18 wochen aus dießer Welt genohmenen tödlichem Hientritt hier Zeitlichen verlaßen, welches alles auff freindliches ahnsuchen erfordteren undt begehren des auch ehrsamb undt bescheidtenen Jacob Müllers burgers undt Metzgers hierselbst als des verstorbenen seel. mit hiernach gemelter hernach gemelter hernach hinterbliebene witiben ehelich erzeigter undt ab intestato nachgelaßener Vier Kindteren undt Erben nahmens Catharina Rosina, Johann Michel undt Maria Magdalena wie auch Johann Barthel eines posthumi welcher ungefähr 13. wochen nach seines Vatters absterben Zuer Weldt gebohren wordten geordneten Vogts ordtnungsmäßig ersucht jnventirt und beschrieben, durch fraw Mariam Catharinam gebohrene Küblerin die hinterbliebene Wittib beÿständlich des auch ehrengeachten herrn Johann Georg Ober Meÿers burgers undt bierbrawers dahier dero geordtneten Curatoris (…) So beschehen Straßburg den 15.ten Februarÿ 1729.
Eigenthumb ahne Einer behausung. Eine behaußung, Hoff, scheür, stallung undt hoffstatt mit all deroselben gebawen, begriffen, weithen, zugehördten, recht undt gerechtigkeiten, allhier in der Vorstatt Krautenaw, nahe der Hennengaß ohnweith der esplanade gegen der Citadelle, eins eith neben Michel schultz dem garthner, 2.s. neben weÿl. Mariæ pflaumin gebohrner Quadin der witin und Hebam seel. erben, hint. auff Daniel gori des garthenmans garth. stoßend gelegen, welches alles außer annoch darauff hafftendten beschwerdten freÿ ledig eig. Dieße behaußung hatt der Verstorbene seel. Kurtz vor seinem todt umb 350. lb Käuffl. ahne sich gebracht wie der hierüber in allhießiger C. C. stub unterm 27.ten aug. 1728. gefertigte Kb: mit mehrerem ausweißet weilen auch seither nichts darinn Verbawen undt reparirt worden, als habe man der uncosten es darmahls mit allerseits Contento beÿ obigem ahnschlag gelaßen jd est 350 lb. Darauff stehen annoch jn Capital der fabric St. aureliä allhier 100 lb, Item Johann Hänen des glaßers 3. Kind. jberchen m 2. posten 150. lb, Abgezog. rest annoch allhier 100 lb auszuwerffen
Norma Inventarÿ,die sambtliche nahrung ist theilbar und trift, der haußrath 67, Materialia 155, Vaß undt Wein 7, baarschafft 69, Eigenthumb ahne Einer behaußung 100, Activa 691, Summa summarum 1090 lb – Schulden 950 lb. Liebthat 10 lb, Rest thlb. Nahrung 129 lb
Conclusio finalis Inventarÿ 140 lb
Jean Baptiste Algeyer meurt le 9 octobre 1728
Sépulture, Saint-Etienne (cath. p. 235)
Anno domoni 1728 die nonâ Octobris horâ undecima Matutinâ Mortuus est Johannis Baptista Algeyer conjux Mariæ Catharinæ Kiblerin civis Argentinensis sacramentis Eucharistiæ et extremæ unctionis munitus ætatis suæ annorum 40 et die 11. ejusdem Mensis et anni (…) in cimeterio ad stum Nicolaum in undis sepultus fuit præsentibus testibus Adamo Claus, guillelmo Kipelin affine defuncti civibus argentinensibus (i 242)
Le fils posthume Jean Barthélemy Algeyer meurt le 4 août 1730.
Sépulture, Saint-Etienne (cath. f° 36)
Anno Domini 1730 die 4. August hora undecima de nocte mortuus est Joannes Bartholomeus ætatis suæ unius anni et sex mensium filius Johannis Baptistæ Algeÿer defuncti Civis et fusoris et Catharinæ Kiblerin conjugum in hac parochia commorantium (…) in Coemeterio ante portam Lanionis vulgo Kurbau dicti die 16 ejusdem Mensis et anni sepultus fuit, præsentibus Testibus Wilhelmo Kiblin Ciue et philacista*, et Adamo claus Notario et Cive (i 38)
Marie Catherine Kübler se remarie en 1737 avec le fabricant de chausses Jean Melchior Heberlin, originaire de Rouffach : contrat de mariage, la célébration ne se trouvant pas à Strasbourg.
1737 (20.8.), Not. Claus (Adam, 7 not 12, protocole) n° 189
Eheberedung – zwischen dem Ehrsamen und bescheidenen Herrn Joh: Melchior Heberlin dem Ledigen Hoßenstricker weÿl. Frantz Joseph Heberlins geweßenen burgers und schulmeisters Zu Ruffach ehl. erzielten hinterlaßenen Sohn alß Hochzeitern ane Einem
So dann der Viel Ehr undt tugendsamen frauen Maria Catharina Küblerin weÿl. Joh. Baptist Allgeÿers geweßenen stuck undt Glockengießers auch burgers allhier Zu Straßburg hinterlaßener wittib als hochzeiterin ane dem Andern theil
so beschehen Zu Straßburg d. Zweÿten tag des Monaths Augusti in dem 1737. Jahr [unterzeichnet] Joh Melchior eberding Als hochzeiter, + der Hochzeiterin Handzeichen
Le fabricant de chausses Melchior Heberlin devient tributaire à la Mauresse le 23 octobre 1737
1737, Protocole de la tribu de la Mauresse (XI 258)
(p. 328-v) Mittwochs den 23.ten Octobris Anno 1737 – Neuer Leibzünfftiger CR
Melchior Häberlin, der Hoßenstricker Von Ruffach gebürtig, producirt über sein erhaltenes Burger Recht Schein Von allhießiger Cantzleÿ, Pfenning Thurn und Stall, Vom 28.t Septembris 1737. bittet um das Zunfftrecht. Erkandt gegen Erlag der Gebühr willfahrt. Erlegte vor den Pfenningthurn 1 lb, vor das Zunfftrecht 5 ß, vor die Feur Eÿmerer 3 ß 4 Und Einschreib Geld 2 ß, Macht zusammen 1. lb .10. ß. 4. d.
1739 (24.2.), Not. Claus (Adam, 7 not 12, protocole) n° 226
Testament – Johann Melchior Heberlin
in eine an dem Hammen gäßel gelegener herrn Niclauß Weniger
Infirmier à l’hôpital royal, Jean Melchior Heberlin meurt le 13 février 1741.
Sépulture, Saint-Etienne (cath. f° 244)
Anno Domini 1741 die vero 13 Februarii omnibus Ecclesiæ sacramentis munitus pie in Domino obiit joannes melchior heberling infirmarius in xenodochio Regio civis huius urbis conjux annæ Catharinæ Kiblerin et die sequenti a me infra scripto sepultus est in cœmeterio solito (i 247)
Sa veuve Anne Catherine Kübler meurt quatre jours plus tard
Sépulture, Saint-Etienne (cath. f° 244)
Anno Domini 1741 die vero 17 Februarii omnibus Ecclesiæ sacramentis munita pie in Domino obiit Anna Catharina Kiblerin vidua defuncti quarta die ab hinc joannis melchioris heberling infirmarii in xenodochio dum viveret et a me infra scripto sequenti sepulta est in cœmeterio solito (i 247)
Les trois enfants mineurs de Jean Baptiste Allgeyer vendent leur part de maison à la veuve Marie Catherine Kübler qui a hérité de la part avenue à son fils Jean Barthélemy.
1730 (7. 9.bris), Chambre des Contrats, vol. 604 f° 480-v
weÿl. Johann Baptist Allgeÿer gewesten Stück und glockengießers hinterlassenen noch lebender dreÿer Kinder Catharina Theresia, Johann Michael und Maria Magdalena der allgeÿer geschworner vogt Jacob Müller Metzger
ged. allgeÿers hinterlassenen wittib Maria Catharina geb. Küblerin der Curanden Mutter am 12. aprilis jüngst obrigkeitlich confirmirten versteigerung
die ohnvertheilte helffte ahne einer behausung hoff scheur Stallung Bronnen und hoffstatt mit allen derselben gebäuden, begriffen, weithen, zugehörden, Rechten und gerechtigkeiten in der Vorstatt ahne Krauttenau nahe der hennen: gaß ohnweith der Esplanade gegen der Citadelle einseit neben Michael Schultz dem garttner ahne Krauttenau anderseit neben weÿl. Maria Pflaumin geb. Quadin der wittib und gewesenen hebamm hinterlassenen erben hinten auff weÿl. Daniel Gori garttenmanns wittib und Erben – theils als vormahliger mitkäufferin theils als erbin ihres nach des vatters todt verstorbenen einen kindts Johann Bartholomæi Allgeÿers zur andern helffte – um 250 pfund capital verhafftet, geschehen um 52 pfund
Marie Catherine Kübler veuve de Jean Baptiste Allgeyer vend la maison à Justine Madeleine Reinhard, femme du boucher Ezéchiel Schlegel le jeune, pour lui servir de bien propre.
1730 (7.11.), Chambre des Contrats, vol. 604 f° 481-v
Maria Catharina geb. Küblerin weÿl. Johann Baptist Allgeÿer Stück und glockengießers wittib beÿständlich ihres vogts Johann Georg Obermeÿer des Biersieders
in gegensein Fr: Justinæ Magdalenæ geb. Reinhardin Ezechiel Schlegel des Jüngern Metzgers mit assistentz ihres ehemanns als welcher keinen antheil ahne hernach folgendem haußkauff zu verlangen sondern selbiges seiner ehefrauen als ohnverändertes eigenthums zu überlaßen sich declarirte
Eine Behausung hoff scheur Stallung Bronnen und hoffstatt mit allen derselben gebäuden, begriffen, weithen, zugehörden, Rechten und gerechtigkeiten in der Vorstatt ahne Krauttenau nahe der hennen: gaß ohnweith der Esplanade gegen der Citadelle einseit neben Michael Schultz dem garttner ahne Krauttenau anderseit neben weÿl. Maria Pflaumin geb. Quadin der wittib und gewesenen hebamm hinterlassenen erben hinten auff weÿl. Daniel Gori garttenmanns wittib und Erben gartten – um 250 pfund capitalien verhafftet, geschehen um 100 pfund
Fils du boucher Ezéchiel Schlegel l’aîné, Ezéchiel Schlegel épouse en 1729 Justine Madeleine Reinhard, fille du pasteur Jean Reinhard de Spire : contrat de mariage, célébration.
1729 (7.2.), Not. Brackenhoffer (Jean, 4 Not 27) n° 167
Eheberedung – zwischen dem ehrsamen vndt bescheidenen H. Ezechiel Schlögel dem ledig. Metzger, H. Ezechiel Schlögels auch Metzgers v. vormalig. brühers v burgers alhier Zu Straßburg ehelich erzeugter Sohn, alß hochzeither ane einem
So dann Jfr. Justinæ Magdalenæ Reinhardin Weÿl. H. Johann Reinhardts geweßenen Evangelischen Pfarrers Zu Speÿr ehelich erzeugten hinterl. tochter alß hochzeiterin andern theils
Actum Straßb. d. 7. Februarÿ 1729. [unterzeichnet] Ezechiel schlegel Alß Hochzeiter, Justina Magdalena Reinhartin
Mariage, Saint-Pierre-le-Jeune (luth. f° 95-v n° 11)
1729. Dominicaa Quasimodogeniti et Misericord. proclamati sunt Ezechiel Schlögel der ledige Metzger v. burg. alhier, Ezechiel Schlegel Metzgers v. burg. alhier ehel. Sohn v. Jungfr. Justina Magdalena Weÿl. H. Johann Reinhard Gewes. Diaconi beÿ der Evagel. Kirch in Speÿer nachgelaßene ehel. Tochter Copulati sunt d. 4. Maÿ [unterzeichnet] Ezechiel schlegel als hochzeiter, Justina Magdalena Reinhardin als hoch Zeiterin (i 100)
Justine Madeleine Reinhard devient bourgeoise par son mari un mois après son mariage
1729, 4° Livre de bourgeoisie p. 950
Justina Magdalena Reinhardin Von speÿr geb. erhalt d. b. von ihrem ehemann ezechiel schlägel umb die tertz d. alten b. will beÿ E. E. Zunfft d. blum dienen prom. d. 4.ten Junÿ 1729
Les nouveaux mariés font dresser l’inventaire de leurs apports. Ceux du mari s’élèvent à 69 livres, ceux de la femme à 296 livres.
1729 (8.7.), Not. Brackenhoffer (Jean, 4 Not 4) n° 161 (1533)
Inventarium vndt beschreibung aller vndt Jeder Haab vnd Nahrung so der ehrsame vndt bescheidene Mr Ezechiel Schlegel der Jüngere Metzger, so dann die ehr vndt tugendsahme fr. Justina Magdalena gebohrne Reinhardin beede Eheleuthe vndt burgere alhier Zu Straßburg einander in den ehestand Zugebracht haben, so aus derjenig. vrsach weilen Sie sich in der mit einander auffgerichteten ehebered. also mit einander beredet vndt vereiniget haben, daß Jedem theill. das seinige ein freÿ eig. reservirt ohnverändert vnd vorbehaltenes guth seÿn vnd bleiben (…) Actum in fernerm beÿseÿn Joh: Martin Bahnen des Kieffers vndt burg. alhie von der ehefr. darzu erbettenen beÿstands wie auch H. Ezechiel Schlegels deß Schlägers u. b. alhier deß ehemanns leibl. Vatters undt dann der ehefr. geliebten Mutter Straßburg d. 8. Julÿ A° 1729.
Series rubricarum hujus Inventarÿ. Des Ehemanns Nahrung betr. Sa. Haußraths 28, Silbers 28, baarschafft 12, Summa summarum 69 lb
der Frauen Guth betr. Sa. haußraths 133, Silbers 16, Goldener Ring 11, baarschafft 124, Früchten 10, Summa summarum 296 lb – Haussteuren 55, thut Jedem Ehegatt die helffte daran 27 lb
Justine Madeleine Reinhard, femme de Ezéchiel Schlegel hypothèque la maison au profit des enfants mineurs de l’apprêteur de tabac Jean Jacques Schmidt
1730 (9.11.), Chambre des Contrats, vol. 604 f° 484
Fr: Justina Magdalena geb. Reinhardin Ezechiel Schlegel des Jüngern Metzgers ehefrau beÿständlich ihres ehemanns mit fernerer assistentz H. Johann Friedrich Sachs und H. Rathh. Nicolaus Anstätt beeder EE. kleinen Raths beÿsitzer
in gegensein Christoph Schmidt des Schneiders als vogts Johann Jacob Schmidt tabackbereithers hinterlassenen dreÿer Kinder Johann Daniel, Mariæ Catherinæ und Mariæ Salome der Schmidt und in fernerem gegenwart ged. Curanden mutter Annæ Catharinæ geb. Kochin anjetzo Hannß Jacob Reich Schiffbäuers ehefrau – schuldig seÿen 150 pfund
unterpfand, Eine Behausung hoff scheur Stallung Bronnen und hoffstatt mit allen derselben gebäuden, begriffen, weithen, zugehörden, Rechten und gerechtigkeiten in der Vorstatt ahne Krauttenau nahe der hennen: gaß ohnweith der Esplanade gegen der Citadelle einseit neben Michael Schultz dem garttner ahne Krauttenau anderseit neben weÿl. Maria Pflaumin geb. Quadin gewesenen wittib und hebamm seel. erben hinten auff weÿl. Daniel Gori garttenmanns wittib und Erben gartten
wobeÿ ferner erschienen der schuldnern respe. Schwieger und mutter Fr. Elisabetha geb. Römerin weÿl. H. Johann Reinhard gewesten Pfarrers zu Speÿr hinterlassenen ohnbevögtigt und hier ohnverburgerte wittib
zur fernern special hypothec, Ein mit einer dielenwandt umbgebenes gärttlein und ein darinnn stehendes von diehlen auffgebautes garttenhäußlein Bronnen cum appertinentis vor hießiger statt zwischen dem Juden und Fischerthor in dem sogenanten Beckenwäldlein, einseit neben weÿl. anthoni gräthel Nadlers wittib und Erben anderseit neben weÿl. Christian Engelhard gewesenen Specirers Erben hinten auff einen waßergraben vornen auff einem zu denen Pulvermühlen leitenden weeg
Ezéchiel Schlegel meurt en 1735 en délaissant une fille. L’inventaire est dressé dans une maison rue du Coin Brûlé. La masse propre à la veuve est de 340 livres. L’actif des héritiers et de la communauté s’élève à 52 livres, le passif à 338 livres.
1736 (23.2.), Not. Brackenhoffer (Jean, 4 Not 8) n° 394
Inventarium und beschreibung all derjenigen haab Nahrung, Schuld. und Gegenschulden nichts ausgenommen so weÿl. der Ehrenhaffte und bescheidene Meister Ezechiel Schlögel gewesener Metzger und burger alhier nun seel. nach seinem den 22. Decembris jüngst verfloßenen 1735. Jahrs aus dießer welt genommenen tödl. hintritt Zeitl. Verlaßen welche Verl. dato zu End stehend. auf freund. Ansuchen Erfordern und Begehren des Ehrbaren und bescheid. H. Johann Philipp Christen Metzgers und burgers alhier als erbettenem Vogt, Mariä Barbarä des verstorbenen seel. mit hernachgemelter seiner hinterbliebenen wittib ehel. erzeugten döchterleins und ab intestato verlaßener einiger Erbin (…) ersucht und inventirt durch fr. Justinam Magdalenam gebohrne Reinhardin die wittib beÿständl. Mr Johann Heinrich Rauchmauls des Schreiners und burg. alh. dero geschwornen Vogts – Actum Straßburg den 23. Februarÿ 1736.
In Einer alhier Zu Straßburg im Brendtenend gelegenen hiehero nicht gehörig. behauß. hat sich befund.
Eigenthumb ane Stallung und Gärtlein. Nemlich ein mit dielen umbgebenes Gärtlein außerhalb den Juden und Fischerthor, im sogenant. beckenwaldlein (…)
Passiva. Item weÿl. Jacob Schellhammers des Gartners soll man ane alten haußzinß
Ergäntzung der Wittib währender Ehe abgegangenen unveränderten Guths, Crafft Inventarÿ über ihres und ihre verstorbenen Ehemanns seel. einander in den Ehestand Zugebrachte Nahrung, durch mich unterzogenen Notarium sub dato 8. Julÿ A° 1729. auffgerichtet
Hierauff nun folgt die Invent: und beschreibung eingangs ged. Verl. vor und an sich selbsten und anfänglichen
der Hinterbl. Wittib unveränd: Vermögen, Sa. haußraths 18, Sa. Schuld 50, Sa. Ergäntzung 272, Summa summarum 340 lb
Dießemnach wird auch der Erben unverändert u. theilbar Verl. unter einer Mass beschrieben, Sa. haußraths 6, Sa. Silbers 11 ß, Sa. Eigenthum ane Stallung u j. gärtl. 45, Summa summarum 52 lb – Schulden 338, Compensando 286 lb
Justine Madeleine Reinhard, femme d’Ezéchiel Schlegel, vend la maison au jardinier Jacques Schœllhammer et à sa femme Marguerite Vix
1733 (10.11.), Chambre des Contrats, vol. 607 f° 469
Fr. Justina Magdalena geb. Reinhardin Ezechiel Schlegel des jüngern Metzgers mit beÿstand ihres Ehevogts
in gegensein Jacob Schöllhammer des gartters ahne Krauttenau und Margarethæ geb. Vixin
Eine Behausung Scheur stallung Bronnen hoff und hoffstatt mit allen derselben gebäuden, begriffen, weithen, zugehörden und gerechtigkeiten in der vorstatt ahne Krauttenau nahe an der hennengaß ohnweith der esplanade gegen der Citadelle einseit neben Michael Schultz dem Garttner anderseit neben weÿl. Maria Pflaumin geb. Quadin der wittib seel. erben hinten auff weÿl. Daniel Gorj garttners wittib und erben gartten – als ein am 7. Novembris 1730 erkaufftes guth – 350 pfund ausmachende capitalien, geschehen um 75 pfund
Fils du jardinier du même nom, Jacques Schœllhammer épouse en 1724 Marguerite, fille d’André Vix, jardinier au Faubourg de Pierre : contrat de mariage, célébration
1724 (17.6.), Not. Lang (Jean Henri 28 Not 17) n° 129
Eheberedung Jacob Schöllhammers Ledigen Garttners in Krauttenau vnd Jfr. Margarethæ gebohrner Vixin (expedirt per Notm. Hoffmann den 26.ten Augusti Anno 1735)
Verglichene Heüraths Puncten zwischen dem Ehrsam und bescheidenen Jacob Schöllhammer Ledigen Garttner, Weÿl. Jacob Schöllhammers geweßenen Garttners in Krauttenaw hinderlaßenem Ehelichem Sohn als hochzeitern ane einem
So dann der Ehrn: und tugendsamen Jfr. Margarethæ Herrn Andres Vixen Garttners ane Steinstraß vnd burgers allhier Zu Straßburg Eheleiblichen dochter als der hochzeiterin am andern theil
Actum in præsenta Fr. Salome Schöllhammerin deß hochzeiters Eheleiblichen Mutter (…) Sambstag den 17. Junÿ 1724 [unterzeichnet] Jacob schollhammer als hochzeiter, margretha fixin als hoh zeidren
Mariage, Saint-Pierre-le-Jeune (luth. f° 71-v, XXX)
1724. Dominica XXIII et XXIV Trinit. proclamati sunt Jacob Schöllhammer, der ledige Gartner v. burg. alhier Weÿl. Jacob Schöllhammer, geweß. Gartners v burg. alhier nachgelaßener ehel Sohn, v. Margaretha Andreas Vix deß Gartners v. burg. alhie ehel Tochter Copulati sunt Mittw. d. 29. Novemb [unterzeichnet] Jacob schöllhammer hochtzer, margaretha fixin als hoh Zeidren (i 76)
Les nouveaux mariés font dresser l’inventaire de leurs apports.
1724 (28.12.), Not. Lang (Jean Henri 28 Not 11) n° 293
Inventarium über das Jenige Vermögen so die Tugendsahme Fraw Margaretha gebohrne Vixin, Jacob Schöllhammers G: in Crauttenaw und burgers zu Straßburg Ehefraw gerührtem ihrem Ehemann für unverändert in den Ehestand zugebracht, auffgerichtet Anno 1724. (…) der Ursach halben, damit man sich Künfftiger Zeit in ihr beeder Eheleüth mit einander auffgerichten Eheberedung §° 7.° Vergl. Ergäntzung darauf Zu reguliren haben möchte – So geschehen in Straßburg in gegensein Andres Vixen G: in Steinstraß u. burgers alhier der Ehefr. Eheleibl. Vatters, wie auch obbenannts Ehemanns selbsten, Donnerstags den 28.ten Decembris A° 1724.
Pro Nota. Die Zwischen Eingangsged. beeden Eheleute auffgerichtete Eheberedung ist den 17.ten Junÿ A° 1724. Vor mir nechst vorher unterschriebenen Not° Verschrieben Zubefinden, so Zum bericht hier gesetzt wird
In einer alhier Zu Straßburg ane der Vorstatt Ststraß gelegener der Ehefr. geliebten Eltern Eigenthümlich zuständig. behaußung befunden worden wie Volgt
Jacques Schœllhammer et Marguerite Vix font dresser un état de leur fortune pour cause de dettes dans la maison qui appartient au boucher Georges Haan rue des Bestiaux près de l’Esplanade. La masse propre à la femme est de 145 livres. L’actif du mari et de la communauté s’élève à 57 livres, le passif à 158 livres.
1726 (7.10.), Not. Lang (Jean Henri 28 Not 13) n° 335
Inventarium über dasjenige Vermögen so der Ehrsame Jacob Schöllhammer G: in Crauttenaw u. die tugendsahme Fr: Margaretha geb. Vixin, beede Eheleuthe u. b. allhier zu Straßburg eigenth. besitzen, hingeg. was dieselbe Ane Passivis zu bezahlen schuldig, auffgerichtet Anno 1726. (…) Welche Nahrung der Ursach halben deß die Ehefr. ihr, crafft hernach copialiter eingetrag. Eheb. für unverändert: in die Ehe gebrachte Nahrung Salviren möchte, auff begehren deß Ehren Vorgeachten Hn Andres Vixen G. in Ststr. u. alhies. burgers derselben leibl. Vatters u. geschwornen Curatoris ad lites vorgenommen – Actum Straßb. Montags d. 7.ten 8.br. A° 1726.
Copia der Eheberedung
In einer alhier Zu Straßb. ane dem Esplanade in der Viehegaß geleg: u. in dieße Nahrung ô. gehörig. behauß. bef. word. wie volgt
H. Georg Haanen dem Metz. ist man für verfall. hßzinß gerechnet vor 3/4. jahr schuldig 10.10.
Ergäntzung der Ehefr. manglenden unv. gutt. Vermög deß über der Ehefr. zu ihrem Ehemann in die Ehe gebrachte Nahrung durch mich Notm. den 28.ten Xbris A° 1724. auffgerichteten Invent. conc.
Series rubricarum hujus Inventarÿ, Sa. haußraths 63, Sa. Activ schuld 45, Sa. Erg. 36, eigm. an ligend. gütteren, Summa summarum 145
Des Manns unv. v. das theilb. gutt betr. Sa. haußraths 20, Sa. Schiff und geschirr Zum Feldbau 12, Sa. Pferd 15, Sa. Strohes 2, Sa. Blumen auf dem feld 64, Eÿgenth. ane ligend. güttern o, Summa summarum 57 lb – Schulden 158 lb, Passiv onus 101 lb
Marguerite, veuve de Jacques Schœllhammer, se remarie en 1736 avec le journalier Samuel Hatterbeck, fils du journalier Gaspard Hatterbeck : contrat de mariage, célébration
1736 (27. 8.br), Not. Schmidt (André, 6 E 41, 702) n° 102
Eheberedung – Persönlich kommen und erschienen der Ehrbar und bescheid. Samuel Hatterbeckh der leedige Garthenmann weÿl. Caspar Hatterbeckh gew. S. ahne Ststrß und burgers dahier nach todt gelaßene Eheliche Sohn, alß hochzeither ahne Einem
So dann die Ehr: und tugendbegabte Margaretha gebohrne Vixin Weÿl. Jacob Schöllhamers gew. G. ahne Krauthenauw und burgers hierselbsten nach todt gelaßene fr. Wittib mit assistentz deß auch Ehrb. hannß Georg Kratzen Ebenfalls G. ahne Krauth. und burg. dahier Ihres geschw. Vogts alß hochzeiterin andtern theilß
Straßburg auff Sambstag den 27.t Octobris Anno 1736. [unterzeichnet] + deß hochzeithers Handt zeichen, Margaretha fixin als hochzeiterin
Mariage, Saint-Guillaume (luth. f° 67-v n° 39)
Aô 1736. den 21. Novembris Seind nach Zweÿmahliger außruffung nemlich Domin. XXIV et XXV. Trinit. in der Kirchen Zu S. Wilhelm ehl. copulirt und eingesegnet worden, Samuel Hatterbeck der Tagner und burger allhier, weÿl. Caspar Hatterbecks gewesenen Tagners und burgers allhier und Margaretha Drenzin nachgelaßener ehl. Sohn und Margaretha weÿl. Jacob Schöllhammers geweßenen Gartners und burgers allhier nachgelaßene Wittib [unterzeichnet] S.H. deß hochzeiteres Zeichen, margaretha schälhamren als hoh Zeitren (i 70)
Samuel Haderbeck et Marguerite Vix, auparavant veuve de Jacques Schœllhammer, hypothèquent la maison au profit du menuisier Christophe Schmidt
1737 (2.4.), Chambre des Contrats, vol. 611 f° 236
Samuel Haderbeck der garttenmann und Margaretha geb. Vixin vorhin Jacob Schöllhammer des garttners ahne krauttenau wittib mit beÿstand ihrer geschwistrig kindern Nicolaus Vix des schuhmachers und Hannß Georg Kuntz des garttners ahne Krautternau
in gegensein Christoph Schmidt des schneiders – schuldig seÿen 50 pfund
unterpfand, Eine Behausung, Scheur, stallung, Bronnen, hoff und hoffstatt mit allen derselben gebäuden, begriffen, weithen, zugehörden, rechten und gerechtigkeiten in der vorstatt ahne Krauttenau nechst an der Hennengaß ohnfern der Esplanade gegen der Citadelle einseit neben Michael Schultz garttner allda anderseit neben weÿl. Johann Benedict Pflaum dem grempen kindern hinten auff Daniel Gorj des garttners wittib und erben gartten (und feld)
Marguerite Vix meurt en 1743 en délaissant deux fils de son premier mariage avec Jacques Schœllhammer. La masse propre au veuf se réduit à un passif de 239 livres. L’actif des héritiers s’élève à 239 livres, le passif à 160 livres.
1743 (30.10.), Not. Stoeber l’aîné (6 E 41, 1134) n° 228
Inventarium über Weÿl : Frauen Margarethæ Hatterbeckin gebohrener Vixin letztmahls Samuel Hatterbecks, deß garthenmanns undt burgers allhier Zu Straßb. geweßenen ehel. haußfr. nunmehr seel. Verlaßenschafft auffgerichtet in Anno 1743. (…) nach ihrem Dienstags den 22. Januarÿ dießes Zu end lauffenden 1743.gsten jahrs aus dießer welt genommenen tödlichen hintritt, Zeitlichen verlaßen, welche Verlaßenschafft auf freundliches ansuchen erfordern und begehren S. T. Hn Johann Friderich Heupel, wohlbestellten Schaffners löbl. Stiffts Waÿßenhaußes Vor und im nahmen Hannß Georg Schöllhammers, der verstorbenen seel. in erster Ehe mit auch weÿl. Jacob Schöllhammer, dem geweßenen ga. Krautenau und burgern allhier seel. ehelich erziehlten jüngern Kinds, welches auff Erkanntnus gnädiger herren Räth und XXI. Vom 11.ten febr. dießes jahrs in das Waÿßenhauß gnädigst aufgenommen worden, wie auch David Schöllhammers, ga. Krautenau, alß geordnet und geschworenen Vogts Jacob Schöllhammer, der Verstorbenen seel. auch mit gemelten ihrem j. Ehemann seel. ehelich erziehlten ältern Sohns, beeder Von Ihro ab intestato Verlaßener Erben in deren Nahmen aber Edelberührter hr. Waÿßen Schaffner und der Vogt dieße Verlaßenschafft anderergestalten nicht alß cum Beneficio legis et Inventarÿ anzutretten sich ercläret haben – So beschehen Straßburg Mittwochs den 30.sten 8.bris 1743.
Extractus Aus der Von beeden geweßenen Eheleuten Vor H. Notario Andreä Schmid den 27. 8.bris A° 1736. alß Zur Zeith Ihrer verheürathung auffgerichteten Eheberedung (…)
Bericht gegenwärtigen Inventarÿ. Weilen beede geweßte Eheleute in der Eheberedung §° 4.to außdrucklichen bedungen daß einem jedem sein in die Ehe bringendes auch währender derselben ererbenden guth ihme und seinen Erben Vor ohnverändert Verbleiben und das davon abgehende ergäntzt werden solle, so hätte nunmehro der abgeleibten seel. in die Ehe gebrachtes guth wann ein Inventarium darüber vorhanden wäre, nach selbigen ersucht werden sollen, allein es berichtete der Wittiber daß Kleines ist errichtet worden (…)
Wÿdemb, Welchen die Verstorbene seel. lebtägig Zu genießen berechtiget war und deren Eingangs gedachten Kindern eÿgenthümblich gehörig – Sa. Eigenthums ane liegenden güthern 57
denen Beneficial Erben Vor deren ermanglend ohnverändert guth annoch zu ergäntzen 220, Summa summarum derer Beneficial Erben ohnveränderten mütterl. Guths 239 lb – Schulden 160 lb, Nach solchem abzug 79 lb
Dießemnach solle auch des Wb. Nahrung beschrieben werden, weilen Es aber nichts in bonis besitzet so kommen nur den schuldigen passiva anhero in anmerkung 239 lb
Beschluß summ gegenwärtigen Inventarÿ 153 lb, Solte aber der hinterbliebenen Wb. schuldiges passiv onus nechsvorher ertragend 239 lb, Mehr Schulden dann guth 86 lb
Marguerite Vix, veuve de Jacques Schœllhammer, remariée avec Samuel Haderbeck, vend la maison au tonnelier Jean Daniel Rumpff et à sa femme Marguerite Salomé Graff
1738 (3.3.), Chambre des Contrats, vol. 612 f° 140
weÿl. Jacob Schöllhammer des garttners ahne Krauttenau wittib Margaretha geb. Vixin anjetzo Samuel Haderbeck des garttenmanns beÿständlich ihres ehemaligen Curatoris Hannß Georg Kientz des garttners
in gegensein Johann Daniel Rumpff des kieffers und Margarethæ Salome geb. Gräffin
Eine Behausung, Scheur, stallung, hoff, bronnen, hoffstatt mit allen deren übrigen gebäuden, begriffen, weithen, zugehörden und gerechtigkeiten in der Vorstatt ahne Krauttenau nahe an der Hennengaß ohnweit der Esplanade gegen der Citadelle zu, einseit neben Michael Schultz dem garttner allda, anderseit neben weÿl. Johann Benedict Pflaum des grempen erben, hinten auff weÿl. Daniel Gori des garttenmanns erben gartten – (verhafftet um 100 pfund) während ihrer erster ehe nebst ihrem ehemann am 10. Novembris 1733 erkaufft und deßen sowohl ohnverändert als auch theilbare Verlaßenschafft zufolg des am 9. Februarÿ 1736 errichtet von E.E. Großen Rath allhier am 19. Januarÿ jüngst obrigkeitlich confirmirten vergleichs tam active quam passive übernommen hat – um 350 pfund
Les acquéreurs hypothèquent le même jour la maison au profit de la Caisse des veuves de pasteurs protestants
1738 (3.3.), Chambre des Contrats, vol. 612 f° 141
Johann Daniel Rumpff der kieffer und Margaretha Salome geb. Gräffin mit beÿstand ihres schwagers Hannß Martin Schott des garttenmanns und ihres vetters Johann Krauß des meelmanns
in gegensein H. M. Johann Jacob Heuß Diaconi beÿ der Prediger Kirch als administratoris Fisci viduarum der evangelischen geistlichen allhier das Fisci Froereiseniani, des gottwaldisch: und dannhauerischen Schuel: Legats, d. Fisco Froereiseniano 100 pfund, dem Gottwaldischen legat 50 pfund, dem Dannhauerischen Legat 50 pfund, die 4 [sic] summen 200 pfund
unterpfand, Eine Behausung, Scheur, stallung, hoff, bronnen, hoffstatt mit allen deren übrigen gebäuden, begriffen, weithen, zugehörden und gerechtigkeiten in der Vorstatt krauttenau nahe an der hennengaß ohnfern der Esplanade gegen der Citadelle zu, einseit neben Michael Schultz dem garttner ahne Krauttenau, anderseit neben weÿl. Johann Benedict Pflaum des schneiders erben, hinten auff weÿl. Daniel Gori des garttenmanns erben gartten – als ein heutigen tags erkaufftes guth
Daniel Rumpff, tonnelier de Francfort, et sa femme Marguerite Graff font baptiser Daniel le 13 décembre 1724
Baptême, Saint-Guillaume (luth. f° 117 n° 117)
1724. Mittwochs den 13. Xbr. ist ein d. 12. eiusd. hor. 7. mat. geborne Söhnlin getauft worden namens Daniel, Eltern Daniel Rumpf der Kiefer von franckf. v. Margaretha Gräfin seine Ehefr. (i 120)
Daniel Rumpff, tonnelier de Francfort, et sa femme Marguerite Graff de Strasbourg achètent le droit de bourgeoisie le 12 novembre 1725.
1725, 3° Livre de bourgeoisie p. 1355
Daniel Rumpf d. Kiefer Von franckfurth geb. und seine ehefr. Anna Margaretha gräfin von hier erhalt. das b. umb die tertz vom neuen bd. wollen beÿ E. E. Zunfft der Kiefer dienen, Jur. et prom den 12. 9.br 1725
Jean Daniel Rumpff se porte candidat au poste vacant de tonnelier à la Grue
1728, XV (registre 2 R 134, notes du greffier 2 R 133)
Dienst, Cran Kieffer Joh: Daniel Rumpff 324, 325, 334, 336
(registre 2 R 134)
(p. 415) Sambstags d. 11. Decembris 1728. – Moss nôe Johann Daniel Rumpff burgers undt Kieffers bitt umb g. admission Zu der Craan: Kieffer stell welche vacant worden. Erkandt, Ober Ungelt hrn.
Jean Daniel Rumpff et Marguerite Salomé Graff font dresser l’inventaire de leurs apports dans une maison quai aux Chevaux qui appartient au tonnelier Jean Georges Bürckel. Ceux du mari s’élèvent à 45 livres, ceux de la femme à 154 livres.
1725 (19.10.), Not. Oesinger (Jean Adam, 39 Not 35) f° 908
Inventarium und Beschreibung aller derjenigen Haab, Nahrung und Güthere, Keinerleÿ davon außgenommen, so der Ehrsamme und bescheidene Johann Daniel Rumpff Kieffer und die Ehren und tugendhaffte Frau Margaretha Salome gebohrene Gräffin beede Eheleuthe und Innwohnere allhier in Straßburg einander in Ihren mit einander angetrettenen Ehestand für eigenthümlich Zugebracht haben – Actum in der Königlichen Statt Straßburg, Freÿtag den 19. 8.bris Anno 1725.
In einer allhier in der königlichen Statt Straßburg dero Vorstatt Krauttenaw ahne dem Gaulstaden gelegenen Johann Georg Bürckel dem Kieffer eigenthümlich Zuständigen Von dießen beeden Eheleuthen Zum theil Lehnungsweiß bewohnenten behaußung ist befunden worden wie folgt
Des Ehemanns Nahrung, Sa. haußraths 45, Sa. Silbers 10 ß, Summa summarum 45 lb
der Ehefr. Vermögen, Sa. haußraths 109, Sa. Silbers u. goldenen rings 5, Sa. baarschafft 40, Summa summarum 154 lb
Jean Daniel Rumpff fait un testament par lequel il lègue la jouissance viagère de ses biens à sa femme, la légitime revenant à sa fille.
1746 (11.5.), Not. Marbach (Ph. Jacques, 33 Not 45)
Codicillus Hn Joh. Daniel Rumpffen des Kieffers und Burgers Zu Straßb. auffgerichtet d. 11. Maÿ in A° 1746.
der Ehrs: undt bescheidene Mr Johann Daniel Rumpff, der hiesige Kieffer und burger, mich (…) Zu sich in eine ohnfern dem größern Capucineren Closter allhier gelegene: Hn Johann Friderich Immelin dem hießigen Silberarb. und burgern eÿgenthümblich Zuständige von demeselben zum theil in Lehnung habender Behaußung requiriren und Kommen laßen, den wir dann auff geschehenes Erscheinen, in vor angeregter Behaußung untere oder Wohnstub mit denen Fensteren in den dabeÿ befindl. garthen aussehend wiewohlen Kranckheits halben auff einem bette Liegenden Leibes, jedoch aber von der genade deß Grundt: gütigen Gottes guter gebrauchiger Sinnen (…)
Vor das Andere, Verordnet der Codicillator daß seine geliebte Ehefrau Nahmens Margaretha gebohrene Graffin in betrachtung der Jederzeit von deroselben genoßenen recht Ehelichen Liebe, treuw und Freundtschafft, seine Künfftige gesambte eÿgenthümbliche Verlaßenschafft, hievon im geringsten nichts alß die Legitimam so deßen der Zeit im Leben befindliche einzige Tochter vermög der Rechten alß dann Zu prætendiren berechtigt außgenommen, die Zuge Ihres Lebens, nach der Statt Straßburg wÿdumbs: Rechten und Herkommen ruhiglichen Zu usufruiren Zu nutzen und Zu genießen (…) [unterzeichnet] Johann Daniel Rumpff beken wi ob Steht
Inventaire non conservé dressé après la mort de Jean Daniel Rumpff
1746, Not. Lichtenberger (Jean Philippe, rép. 65 not 21) f° 66-v
823
Inventarium über Johann Daniel Rumpffen gewesenen Kieffers allhier Verlassenschafft
Inventaire non conservé dressé après la mort de Marguerite Salomé Graff. La maison revient à sa sœur Marie Salomé Graff comme l’établit l’acte de vente ci-dessous
1752, Not. Thenn (Répertoire 6 E 41, 664-5) n° 12
Inventarium über weiland Frauen Margarethä Salome Rumpffin gebohrner Gräffin auch weiland Johann Daniel Rumpff gewesenen Kiefers und burgers alhier seel. hinterlassener Wittib seel. Verlassenschaft
Fille du charpentier manant Jean Graf et de sa femme Salomé Knecht, Marie Salomé Graff épouse en 1722 le pêcheur Frédéric Christophe Seifert, fils du pêcheur Jean Adam Seifert
Mariage, Saint-Guillaume (luth. f° 230-v n° 2)
1722. Mittwochs d. 15. Aprilis seind nach geschehener 2. maliger ausrufung Domin. Pasch et Quasim. in der Kirch Zu St. Wilhelm ehelich eingesegnet worden folgende 3. paar eheleut. 2. Friderich Christoph Seifert der ledige Fischer H Joh: Adam Seiferts deß fischers v. burgers ehelicher Sohn, Salome Schmutzin beÿder noch lebeden Eltern v. Jfr. Maria Salome Weiland Joh: grafen Zimmermans v. Schirmers v. mar. Salome Knechtin nachgelaßene ehl. Tochter [unterzeichnet] F. Ist d. handzeichen Friderich Christoph Seiferts, M Ist d. handzeichen Maria Salome Gräfin
Veuve, Marie Salomé Graff se remarie en 1728 avec le jardinier Jean Martin Schott, fils du jardinier André Schott : contrat de mariage non conservé, célébration
1728, Not. Hoffmann (Christophe Michel, rép. 65 not 12) n° 592
Eheberedung – Johann Martin Schott, ledigen Gartenmanns
und Frauen Mariä Salome Sÿffertin gebohrner Gräffin
Mariage, Saint-Guillaume (luth. f° 17 n° 20)
1728. Mitwoch d. 10. 9.bris seind nach 2.maliger ausrufung Dominica 23. et 24.ta Trinit. in der Kirch Zu S. Willhelm ehelich eingesegnet Johann Martin Schott der ledige gartenmann v. burger, weiland Andreas Schotten gartenmanns v. b. v. Susanna Weitin ehl. Sohn, v Fr Maria Salome Weiland Friedrich Christoph Seiferts deß Fischers vnd burgers nachgelaßene wittib geborne Gräfin [unterzeichnet] M Ist d. handzeichen Joh: Martin Schott, O Ist d. handzeichen Mariam Salome Seifertin (i 18)
Les nouveaux mariés font dresser l’inventaire de leurs apports (sans résumé)
1728 (13.11.), Not. Hoffmann (Christophe Michel, 19 Not 29) n° 928
Inventarium über des Ehrengeachten Johann Martin Schotten Gartenmanns und frauen Mariæ Salomeæ Schottin gebohrener Gräffin beeder Eheleüthe und bürgere alhier Zu Straßburg, einander für ohnverändert in den Ehestand Zusammen gebrachte Nahrungen, auffgerichtet Anno 1728. – (…) in ihren Vor Kurtz verruckter Tagen mit Gott abgetrettenen Ehestand würcklich zusammen gebracht und Krafft deren mit einander auffgerichteten Eheberedung ihnen und irhen Erben als ein ohnverändert vnd vorbehaltenen Guth mithien die Ergäntzung des Künfftigen Abgangs derselben expresse reservirt conditionirt und bedungen – So beschehen den 13. Novembris Anno 1728.
Jean Martin Schott meurt en 1745 en délaissant deux filles. L’inventaire est dressé dans une maison de jardinier hors la porte de l’Hôpital. La masse propre à la veuve est de 18 livres. L’actif des héritiers et de la communauté s’élève à 46 livres, le passif à 144 livres.
1745 (18.3.), Not. Hoffmann (Christophe Michel, 19 Not 55) n° 1858
Inventarium über Weÿland des Ehrsahmen Meister Johann Martin Schotten geweßenen Gartenmanns und burgers alhier zu Straßburg nunmehro seel. Verlaßenschafft auffgerichtet in Anno 1745. (…) nach seinem dienstag den zweÿten hujus Mensis et anni aus dießer welt genommenen tödlichen ableiben Zeitlichen verlaßen, welche Verlaßenschafft auf freundliches Ansuchen Erfordern und Begehren des Ehrsahmen Meister Johannis Fritschmanns des fischers und burgers alhier, als geordnet und geschworenen Vogts Annä Margarethä und Catharinä Margarethä beeder Schotten, des verstorbenen seeligen, mit hernach gemelter seiner hinterbliebenen wittib ehelich erzeugter Zwoen töchteren und ab intestato nach tod Verlaßener Erben, heüt dato Ordnungsmäßig inventirt und ersucht, durch Frau Mariam Salomeam Schottin gebohrne Gräffin, die hinterbliebene wittib, beÿständlich des Ehrengeachten Meister Daniel Rumpff des Kieffers und burgers alhier, deroselben geordneten Curatoris – so beschehen Straßburg den 18.ten Martÿ Anno 1745.
In einer auserhalb der Statt Straßburg vor dem Spittal Thor gelegenen, nicht hieher gehörigen Garten behaußung befunden worden wie folgt
Bericht ane statt der Eheberedung. Es haben Zwar beede im Leben geweßene Eheleute vor mir Notario den 9.ten Julÿ Anno 1728. eine Eheberedung mit einander auffgerichtet und darinnen abgeredt, so umb erspahrung der Uncosten Kützlich hier angeführet wird, als (…)
Ergäntzung der Wittib abgegangenen Ohnveränderten Vermögens. Nach besag Inventarÿ Concepti so ich der vor und nachbenahmßter Notarius über beeder Geweßener Eheleute Zugebrachter Nahrungen in A° 1728 auffgerichtet
Abzug in Gegenwärtig Inventarium gehörig, der W. ohnverändert Vermögen, Sa. haußraths 9, Sa. Goldener Ring 2, Sa. Schuld 15, Erg. Rest 16, Summa summarum 43 lb – Schulden 28, Nach deren Abzug 18 lb
Wird nun auch sowohl der Erben ohnverändert als auch das gemein und theilbar Guth, maßen die W. gantz. darauff renuncirt und verzug thut, unter einer Mass beschrieben, Sa. haußraths 21, Schuld 25, Summa summarum 46 lb – Schulden 144, In Vergleichung 97 lb
Mehr Schulden als guth 78 lb
Marie Salomé Graff meurt le 6 janvier 1756. L’inventaire dressé après sa mort n’est pas conservé.
1756, Not. Thenn (Répertoire 6 E 41, 664-5) n° 42
Inventarium über weiland Frauen Mariä Salome Schottin gebohrner Gräffin, letztmals weiland Martin Schott gewesenen Gartenmanns und burgers alhier seel. hinterbliebener Wittib auch seel. Verlassenschaft
Sépulture, Saint-Guillaume (luth. reg. A 1730-1762 f° 219 n° 3)
1756. Dienstags d. 6. Januarÿ nachmittag umb 2 Uhren starb allhier an Erbrechen und Fieber Maria Salome geb. Gräfin, erstlich Christoph Friedrich Seiferts, Fischers und burgers allhier, und zweÿtens Johann Martin Schotten Gartenmanns u. burgers alhier ehefrau und nach deßen Todt hinderlaßene Wittib, ihres alters 62. Jahr Donnerstags dernach als d. 8.t ejusdem wurde dero leiche auf dem Gottesacker S. Urbani, vor gehaltener Leich Predigt ehrlich begraben [unterzeichnet] Andres Wauner Als tochtermann, Johannes Fritschman Als schwiger (i 227)
Marguerite Salomé Graff, veuve du jardinier Jean Martin Schott, vend la maison qu’elle a hérité de sa sœur au fabricant d’huile Jean Daniel Pfæhler
1752 (12.5.), Chambre des Contrats, vol. 626 f° 236-v
Fr. Maria Salome geb. Graffin weÿl. Johann Martin Schott des gartenmanns wittib mit beÿstand H. Not. Johann Heinrich Thenn
in gegensein Johann Daniel Pfäler des ohlmanns
eine behausung, hoff, scheur, stallung, hoffstatt mit allen deroselben begriffen, weithen, und zugehörden in der Vorstatt Krautenau nahen an der Hennen:Gaß ohnweit der Esplanade, einseit neben Valentin Ernwein G.A.K., anderseit neben H. Pierre Richard dem handelsmann und E.E. großen Raths alten beÿsitzer, hinten auff Jacob Gori des handelsmanns – um 250 pfund verhafftet – als ein von ihrer schwester weÿl. Margaretha Salome Rumpffin geb. Graffin ererbtes guth – um 150 pfund
Fils de l’huilier Jean Pfæhler, Jean Daniel Pfæhler épouse en 1731 Anne Marguerite Jung, fille du tonnelier et marchand de vins Jean Jung : contrat de mariage, célébration
1731 (24.9.), Not. Oelinger (J. Jacques, 35 Not 75) n° 626
Eheberedung – entzwischen dem Ehrengeachten H. Johann Daniel Johann Daniel Pfählern leedigen ohlmann deß Ehrenvest vnd vorachtbahren herrn Johannes Pfählers auch ohlmanns vndt burgers allhier Zue Straßburg mit der Viel Ehren vnd tugendbegabten Fr. Annæ Margarethæ gebohrener Schwartzin Ehelich erzeugtem Sohn, als dem hochzeiter, ane Einem,
So dann der Viel hren vnd tugendsamen Jgfr. Annæ Margarethæ Jungin weÿl. des Ehren vndt wohlvorgeachten H. Johannes Jungen geweßenen Kiefers vndt Weinhändlers auch burgers allhier seel. mit der viel Ehren vndt tugendreichen frauen Annæ Barbaræ gebohren Schuhmännin Ehelich erzielter vnd hinterlaßenen dochter, als der Jgfr. hochzeiterin andern theils
Endlichen und Neuentens, Ist der Jgfr. hochzeiterin frau Mutter ferner des gütigen anerbietens, Im falle Er der hr. hochzeiter gleich nach der Copulation Kein ohlhauß oder eine gerechtigkeit bekäme, sein gewerb zu treiben, daß Sie beede Jung hochzeitliche Persohnen vnd künfftige Eheleute Von dem tag der Copulation an, ein gantzes halbes Jahr, In Kost vnd Losament Zu erhalten (…)
So beschehen In deß H. Hochzeiters H. Vatters hauß In der Reinstraß gelegen, Montags den 24. 7.bris A° 1731.
[unterzeichnet] Johann Daniel Pfähler als hochzeiter, Anna Margetha Jungin als hochzeiterin
Mariage, Temple-Neuf (luth. f° 107-v n° 398)
1732. Eod. [Mittw. d. 22. 8.br] sind nach 2. maliger Proclamation ehelich copulirt v. eingesegnet word. Joh: Daniel Pfähler der Ledige Öhl Mann v. b. alhier, H Joh: Pfähler s b. v. Öhl Manns ehl. Sohn, v. Jungfr. Anna Margaretha, weÿl. H. Joh: Jungen, geweß. b. Kiefers v. Weinhänd. Nachgel. ehl. Tochter [unterzeichnet] Johann Daniel Pfähler Hochzeiter, Anna Margretha Jungin als hochzierin (i 112)
Les nouveaux mariés font dresser l’inventaire de leurs apports dans une maison rue Sainte-Elisabeth et une autre au Faubourg de Pierre. Ceux du mari s’élèvent à 187 livres, ceux de la femme à 644 livres.
1732 (10.11.), Not. Oelinger (J. Jacques, 35 Not 19) n° 763 (722)
Inventarium und Beschreibung aller derjenigen Haab Nahrung vnd güethere, so der Ehren und Vorachtbahre Herr Johann Daniel Pfähler, Ohlmann und die Ehren und tugendsahme frau Anna Margaretha Pfählerin gebohrene Jungin, beedte Eheleuthe und burgere allhier Zu Straßburg einander in den Ehestand Zugebracht und sich deren jedtes Krafft der Zur Zeit Ihrer verheürathung mit einander auffgerichteter Eheberedung Vor ohnverändert Vorbehalten hat – So beschehen Straßburg Montags d. 10. 9.bris A° 1732.
In einer allhier Zu Straßburg ane der Stein Straß und einer allhier Zu Straßburg ane der Elisabethæ gaß gelegenen behaußung befunden worden wie volgt
Series rubricarum hujus Inventarÿ, Sa. vorbeschriebenen deß Ehemanns In den Ehestand gebrachten haußraths 130, Sa. Silbers 27, Sa. baarschafft 4, Summa summarum 162 lb – Dazu gelegt die Ihme ane denen haussteuren gebührige helffte so macht 24 lb – des Ehemanns gantzes Vermögen 187 lb
Der Ehefraun Nahrung, Sa. haußraths 151, Sa. Silbers 27, Sa. Goldenen Ring 27, Sa. baarschafft 414, Summa summarum 620 lb – Adde die Ihro infra zugeschriebenen haussteuren helffte der 24 lb, Der Ehefraun In die Ehe gebrachte Nahrung 644 lb
Anne Marguerite Jung meurt en 1735 en délaissant une fille. L’inventaire est dressé dans une maison rue du Dôme. La masse propre au veuf est de 27 livres, celle propre à l’héritière de 592 livres. L’actif de la communauté s’élève à 334 livres, le passif à 913 livres
1735 (22.8.), Not. Oelinger (J. Jacques, 35 Not 30) n° 970 (922)
Inventarium und Beschreibung aller derjenigen Haab vnd Nahrung, So Weÿland die Ehren und tugendsahme Frau Anna Margaretha Pfählerin gebohrene Jungin herrn Johann Daniel Pfählers ohlmanns und burgers allhier Zu Straßburg geweßene Ehefrau nun Mehr seeligen nach ihrem den 31. Julÿ dießes fortlauffenden 1735. Jahrs aus dießer welt genommenen tödlichen hientritt Zeitlichen verlaßen, welche Verlaßenschafft auf freundliches ansuchen erfordern und begehren herrn Johann Friderich grießbachs Rothgerbers und lederbereiters auch burgers allhier Zu ermeltem Straßburg, als geordnet und geschworenen Vogts Anna Margarethä Pfählerin, der abgeleiten seeligen mit vorermeltem Irem hinterbliebenen Wittiber ehelich erzielten Kids und ab intestato verlaßener rechtmäßigen Eintziger Erbin, fleißig Inventirt – Actum Straßburg den 22. Augusti Ano 1735.
Copia der Eheberedung – Copia Codicilli reciproci
In einer allhier zu Straßburg ane Münstergaß gelegenen und lehnungsweiße bewohnenen behaußung sich befunden Wie Volgt
Ane Höltzen und Schreinwerck, in der obersten hindern Kammer
Ergäntzung deß Wittibers abgegangenen unveränderten guts. Innhalt Inventarÿ Illatorum de anno 1733 durch mich vor und nachgemelten Notarium auffgerichtet
Des Wittibers eÿgenthümblich unverändert Vermögen, Sa. haußraths 17, Sa. Silbers 7, Sa. baarschafft 3, Sa. Ergäntzung (90, abgang 1, restirt) 89, Summa summarum 117 lb – Schulden 90, Nach deren Abgang 27 lb
Solchemnach würd auch des Kindts und Erb in anerstorben Mütterlich guth beschrieben, Sa. haußraths 58, Sa. Silber geschirr und Geschmeids 12, Sa. goldener ring 11, Sa. baarschafft 15, Sa. Schulden 90, Sa. Ergäntzung (407, abgang 2) Remanet 404, Summa summarum 592 lb
Endlichen volgt auch die beschreibung der gemeiner Verändert und theilbahren verlaßenschafft, Sa. haußraths 21, Sa. Schiff und geschirrs Zum ohlwesen gehörig 29, Sa. Öhls Maagsaamen und reebssaamen 62, Sa. Pferds 4, Sa. Silbers 8 ß, baarschafft 217, Summa summarum 334 lb – Schulden 913 lb, In Compensatione theilbar passiv onus 579 lb
Conclusio finalis Inventarÿ 41 lb
Jean Daniel Pfæhler se remarie en 1737 avec Anne Marie Bonert, fille du sellier Jean Michel Bonert : contrat de mariage, célébration
1737 (13.5.), Not. Brackenhoffer (Jean, 4 Not 29) n° 469
Eheberedung – zwischen dem ehrsamen und bescheidenen H. Johann Daniel Pfähler dem ohlmann burger vnd wittiber alhier alß hochzeiter ane einem,
so dann der tugendtsamen Jfr. Anna Maria Bonertin, deß ehrsamen vndt bescheidenen H. Joh: Michael Bonert, deß Sattlers vnd burg: alhier ehelich erzeugten tochter alß hochzeitherin andern theiß
Actum Straßburg den 13. Maÿ 1737 [unterzeichnet] Johann Daniel Pfähler als Hochzeither, Anna Maria Bohnerin als hochzeitherin
Mariage, Saint-Pierre-le-Jeune (luth. f° 144)
1737. Dominica Rogate et Exaudi proclamati sunt Herr Johann Daniel Pfähler, der Ohlmann v. burger alhier und Jgfr. Anna Maria Herrn Johann Michael Bohner, deß Sattlers v. burgers alhier ehel. Tochter. Copulati sunt Mittw. d. 5. Junÿ [unterzeichnet] Johann Daniel Bohner als Hochzeiter, Anna Maria Bohnerin als hochzeiterin (i 148)
Les nouveaux mariés font dresser l’inventaire de leurs apports dans une maison rue du Dôme. Ceux du mari s’élèvent à 786 livres, ceux de la femme à 584 livres.
1737 (19.6.), Not. Oelinger (J. Jacques, 35 Not 34) n° 1060 (1013)
Inventarium und beschreibung aller derjenigen haab vnd Nahrung, Keinerleÿ davon außgenommen, so der Ehren vnd vorgeachte Herr Johann Daniel Pfähler Ohlmann vnd die Ehren vnd tugendsahme frau Anna Maria gebohrne Bohnerin beede Eheleuthe vnd burgere allhier Zue Straßburg einander in Ihren ohnlängst angetrettenen Ehestand Zugebracht, vnd sich deren Jeedes verlmög Ihrer mit einander auffgerichteter Eheberedung Vor unverändert Vorbehalten (…) Actum in fernerer gegenwarth, fraun Annä Margarethæ Pfählerin gebohrener Schwartzin, des Ehemanns Eheleiblichen Mutter, ferner H. Johann Michel Bohner Sattlers vnd fr. Annæ Mariæ gebohrner hohlweinin beeder Eheleute, der Ehefraun beeder Eheleib. Eltern Straßburg den 19.ten Junÿ A° 1737.
In einer allhier Zue Straßburg ane der Münstergaß gelegenen vnd von den beeden Eheleuten lehnungsweiß bewohnenden behausung sich befunden als volgt
Series rubricarum hujus Inventarÿ, des Ehemanns Nahrung, Sa. haußraths 242, Sa. Schiff und geschirr Zum Ohlweßen gehörig 261, Sa. heu v. strohe 8, Sa. Maagsaamen, Repff, ohl vnd Maagsatkuchen 447, Sa. Silber v. dergl. geschmeid 31, Sa. der baarschafft 557, Sa. activorum 148, Summa summarum 1710 lb – Schulden 967, Nach deren Abzug 742 lb – darzugelegt die Ihme ane denen hernach beschriebenen haussteuren zuständige helffte 43, des Ehemanns Vermögen 786 lb
Der Ehefrau Nahrung, Sa. haußraths 225, Sa. Silbers v. dergl. Geschmeids 26, Sa. goldener Ring 20, Sa. baarschafft 257, Summa summarum 541 lb – Adde die Ihro ane denen hernach beschriebenen haussteuren gebührige helffte machend 43, Der Ehefrau Nahrung 584 lb
Jean Daniel Pfæhler meurt en 1757 en délaissant six enfants. L’inventaire est dressé dans sa maison Grande rue des Bestiaux (ensuite rue Dauphine puis rue d’Austerlitz). Les experts estiment la maison près des Grands Capucins à 250 livres. La masse propre à la veuve est de 480 livres, celle des héritiers de 1 016 livres. L’actif de la communauté s’élève à 1 675 livres et le passif à 2 064 livres.
1757 (24.10.), Not. Oelinger (J. Jacques, 35 Not 68) n° 1616
Inventarium über Weiland des Ehren: und vorgeachten Hn Johann Daniel Pfähler gewesenen Ohlmanns und burgers allhier Zu Straßburg seel. Verlaßenschafft auffgerichtet in Anno 1757. (…) nach seinem den 23. Augusti dieses fortlauffenden 1757.ten Jahrs aus dießer Welt genommenen tödlichen Hintritt Zeitlichen verlaßen, Welche Verlaßenschafft auf freundliches Ansuchen Erfordern und Begehren der viel Ehren und tugendsamen Frauen Annæ Mariæ gebohrnen Bonerin beiständlich S. T. Herrn Johann Carl Hüttel Jurium practici und burgers dahier ihres erbettenen Herrn beistands, welche Johann Michael Pfähler, des nach dem H. Defuncto auch verstorbenen Söhnlein als Erbin repræsentirt, sodann der Ehrenvesten und vorachtbaren H. Johann Leonhard Pfähler, Peruquenmachers und auch allhiesigen burgers als geordnet und geschworenen Vogts Jgfr. Annæ Mariæ, Jgfr. Mariæ Margarethæ, Joh: Daniel, Mariæ Elisabethæ, Margarethæ Barbaræ und Johann Friderich, alle Sechs der Pfählere der hinterbliebenen Wittib mit gemeldt ihrem verstorbenen Ehemann ehelich erzeugter Kindere und nebst vorherbenambßtem nach dem Vatter verstorbenen Söhnlein ab intestato Zu gleichen portionen und Antheilern verlaßener Erben (…) Actum in der Königl. Stadt Straßburg d. 24. Octobris et seq. A° 1757.
Copia der Eheberedung – Copia Codicilli reciproci
In einer allhier Zu Straßburg ane der Vieh gaß gelegenen und eigenth. hiehero gehörigen behaußung sich befunden wie folgt
(f° 23) Eigenthum ane Häusern und liegenden Güttern (…)
Item ein Hauß Höflein und Hoffstatt, auch allhier Zu Straßburg beÿ den Grosen Capucinern auf der Esplanade einseith neben Hn Richard dem handelsmann und anderseith neben Jacob Felden dem Gartner, hinten auff N. Gorÿ stoßend gelegen Welches hauß vermög der oballegirten Abschatzung angeschlagen worden pro 250. lb. Dießer Haußkauf solle in allhiesiger C. C. Stub verschrieben seÿn, es seÿe aber bis dato keine Expedition darüber eingeliefert worden.
Ergäntzung der Wittib ermanglenden unveränderten guts, Inhalt Inventarÿ Illatorum de 1737 hat man er Wittib als mangled Zuergäntzen wie volgt
(f° 36) Series rubricarum hujus Inventarÿ. Der Wittib Vermögen, Sa. haußraths 13, Sa. Silbers v. dergl. geschmeids 1, Sa. goldener Ring 6, Sa. Schulden 75, Sa. Ergäntzung (386, Abzug 2, remanet 384), Summa summarum 480 lb
Der Kindern und Erben anerstorben Vätterlich guth, Sa. haußraths 35, Sa. Oeltrott sambt Zugehörd 50, Sa. Sibers 3, Sa. Ergäntzung (1297, abgang 295, Restiret) 1002, Summa summarum 1091 lb – Schulden 75, Nach solchem abzug 1016 lb
Die Theilbahre Verlaßenschafft betreffend, Sa. haußraths 72, Sa. des zum Ohlwesen gehörigen Schiff und geschirrs wie auch maagsamen, reebs, ohl, Kuchen vnd dergl. 159, Sa. Pferd 11, Sa. Kühen 9, Sa. gerst vnd heu 2, Sa. leeren vaß 106, Sa. Silbers 7, Sa. goldenen rings 1, Sa. baarschafft 38, Sa. Pfenningzinß hauptgüter 250, Sa. ane heüßern 600, Sa. ane reeben 15, Sa. Schulden 402, Summa summarum 1675 lb – Schulden 2064 lb, In Compensatione 389 lb
Conclusio finalis Inventarÿ 1076 lb – Zweiffelhaffte Pfenningzinß hauptgüter theilbahr 654 lb, Zweiffelhaffte Schulden in die Theilbare Verlaßenschafft 20
(f° 39) Wÿdemb Welcher frau Margarethä Pfählerin gebohrne Schwartzin weÿl. Hn Johannes Pfähler, geweßenen ohlmans vnd burgers allhier Zu Straßburg verlaßene Wittib von dem Hn Defuncto ihrem seeligen Sohn lebenslanglich Zu genießen hat
Abschatzung Vom 26.ten 7.bris 1757. Auff begehren Weÿland Herrn Johann Danniel Pfäller, des geweßenen Ohlmans Seeligen Hindter Laßene Frau Wittib und Erben ist eine Behaußung allhier in der Statt Straßburg in der Viehe Gaß gelegen einseÿts Neben Herrn Rockenbach dem Gastgeber (…)
Auch Allhier in der Statt Straßburg beÿ den Großen pp. Capuciner gelegen einseÿts Neben Herrn Richard dem Handels Man, anderseÿts, Neben Jacob Felden, und hinden auff N. N. Gori Stoßend, solche Behaußung bestehet in Zweÿ Stuben, Zweÿ Küchen, und Etliche Kammeren, dar über ist der dachstuhl mit breith und Hohlzieglen belegt, Hatt auch einen getrembten Keller, Hoff, und Bronen, ferner befindet sich eine scheür, und eine Stallung, Worüber die dachstühl mit breith Zieglen belegt.
Von uns den Unterschriebenen der Statt Straßburg Geschwornen Werck Meistern, Nach vorhero beschehener besichtigung mit aller Ihrer gerechtigkeit dem Jetzigen Wahren Werth nach æstimirt und angeschlagen worden, Vor und Umb Fünff Hundert Gulden [unterzeichnet] Ehrlacher Werck Meister deß Münsters, Werner
Anne Marie Bohner meurt en 1775 en délaissant six enfants. Les experts estiment la maison près de la rue des Poules et de l’Esplanade vers la Citadelle à 250 livres. L’actif de la succession s’élève à 4 379 livres, le passif à 850 livres.
1775 (4.1.), Not. Saltzmann (Jean Daniel, 6 E 41, 597) n° 220
Inventarium über Weiland Fraun Annä Mariä Pfählerin geb. Bohnerin, des auch weil: H. Joh: Daniel Pfähler gewesenen Oelmüllers und Burgers alhier Zu Straßburg, Wittib Verlaßenschafft, aufgerichtet in dem Jahr 1775. (…) nach ihrem den 3. des letztverfloßenen Christmonats aus dießer Welt genommenen seligen Abschied Zurückgelassen hat – So geschehen und angefangen in Straßburg in hernach inventirter an der Dauphinegaß gelegenen Sterb behausung auf Mittwoch den 4. Jänner vormittag in dem Jahr nach Christi Geburt 1775.
Benennung der Erben. die Verstorbene Frau Pfählerin zu erben sind fähig 1. Frau Anna Maria geborene Pfählerin mit Beihülf ihres Eheherrn Georg Friderich Roggenbach des hiesigen burgers und Gastgebers Zum schwartzen Bären hiebei anwesend, 2. Frau Maria Margarita geborne Pfählerin des Joh: Jacob Oberlin, vormaligen Sattlermeisters und Burgers alhier aber jetzigen goldenen Adlerwirts in Kehl Ehegattin welche unter dem schrift. Wollwert ihres Manns beiständlich H. Philipp Ludwig Übersaal, des Juristen, diesem Geschäfft persönlich beiwohnete, Und zwar diese Frau Oberlinin nur in ein Pflichttheil, deren hinterassende eheliche Kinder hingegen ist eine einziges töchterlein, Namens Maria Margareta, 7 ¾ Jahr alt bei Leben, dessen geschworner ordentlicher Vogt der vorberührte Hr Joh: Daniel Pfähler ist. Weil derselbe aber hiebei selbst interessirt, so hat Christian Seltzer, der Hies. B. u. Seilermeister als beeidigter theilvogt seine Schuldigkeit hierbei gethan (…) 3. Herr Johann Daniel Pfähler, der hiesige Burger und Oelmüller, auch gegenwärtig, 4. Frau Maria Elisabet geborne Pfählerin, des H. Joh: Michael Klipffel, hiesigen Metzgers und Burgers eheliche Haußfrau, 5. Jungfrau Margareta Barbara Pfählerin welche volljährig ist und nebst H. Joh: Friderich Magnus den hies. B. u. Metzger ihrem beistand hiebei Zugegen gewesen, 6. Johann Friderich Pfähler, der ledige Knöpffmacher gesell welcher den 6. instehenden Hornung sein 20. Jahr zurückgelegt, folglich nach hiesigen Stadtrechten grosjährig und deswegen unbevögtigt, zu Augsburg in Arbeit stehet aner dieses Geschäffts halben expresse hiehero gereiset ist, und seinen Nutzen selbst besorgt hat
Alle sechs der seligen Frau Pfählerin mit ihrem gewesenen Ehemann erzielte Kinder und mit ausnahm einigen Vorauses, nach der Vorschrift ihres hernach eingetragenen letzten Willens Zurückgelassene Erben
Abschrift der durch die Abgeleibte den 23. Julii A° 1772 vor mir Norario und Zwen Zeugen gestifteten Verordnung unter Kindern.
Eigentümliche Anteile ane Häusern. Nemlich ein Häußl. Scheur, brunn, Stall, Höfl. u. Hoffstatt m. allen übrigen deren begriffen, Weiten u. Rechten, gelegen in hies. vorstadt Krautenau nahe an der Hännengaß ohnweit der Esplanade, gegen der Citadell, ein Seit neben Joh: Heiligenstein, dem Zimmermann, 2. S. neben Jacob Bader dem Fuhrmann, hinten auf H. Johann David Zocher, den Kunstgärtner stosend, so frei und eigen. Dieses ganze Häuslein ist durch H. Sebastian Huber den Werckmeister des Zimmerhofs laut seines bei diesortiger minute in originali liegenden Abschatzungs Zedels vom 8.t febr. 1775 æstimirt um 250 lb. Hierüber sind 5. in hies. C. C. Stub ausgef. u. m. der anhg. Ins. Verseh. perg. deutsch. Kbr. Vorhand. d.d. 27. Aug. 1728, 2 den 7. Nov. 1730, d. 10. Nov. 1733 u. 12. Maji 1752.
It. 5/6.te Teil vor unvertheilt an Ir. Bhsg. in hies. Vorstadt Steinstras (…)
It. I. Zum gold. Adler geschildete Gastherberg in dem Hornwerck Kehl (…)
Eigenthum ane Reben Mittelhausberger Banns
Folgt nun hierauff die Beschreibung dieser Verlaßenschaft an und vor sich selbst, Sa. haußrats 113, Sa. Chaise 11, Sa. Weine, Fässer 144, Sa. Silbergeschirrs u. dgl. 33, Sa. goldener Ringe u. dg. 5, Sa. baarschaft 9, Sa. Pfenningzins hauptg. 2750, Sa. Anteile an Häus. 1236, Sa. Eigentums an Reben 75, Summa summarum 4379 lb – Vermachte Artickel 120, Schulden, Nach deren Abzug 3659 lb
Stallsumm 3000 lb
Abschatzung Vom 8. febÿ. 1775. Auff begehren Weil. Frauen Anna Maria Pfellerin geborne bonerein hiender Lasener Erben ist eine behausung alhie in der Statt Strasburg in der Steinstras gelegen (…)
Der Zweÿte begriff Ist alhie in der Statt Strasburg beÿ dem Grosen Capezinern gelegen Ein seits Neben Meister Bader ander Seits Neben Johannes Helgesteihn dem Zimmer Meister und hienden auff H. Zocher seinen garten stosent gelegen Welche behausung besteht in Zweÿ Stuben Zweÿ Kichen und Etliche Kammern dar jber ist der Dach Stuhl mit breitziglen belegt hat auch ein getrembten Keller Stallung Kleinen hoff und brunnen. Von uns unterschriebenen der Statt Strasburg Geschworne werckmeister nach vorhero geschehene besichtigung mit aller jhrer gerechtigkeit dem Jetzigen wahren werth nach Estimirt und angeschlagen worden Vor und Umb Finff Hundert Gulden [unterzeichnet] Hueber
Les préposés de la Taille font figurer la succession dans leur registre parce que les impôts acquittés étaient calculés d’après une fortune sous-évaluée de 300 florins (150 livres) sur un total de 6 000 florins
1775 (26. Aprilis), Livres de la Taille (VII 1180) f° 187
Becker N. 3613 – Weÿl. Fr. Annæ Mariæ gebohrner Bohnerin des auch weÿl. Joh: Daniel Pfähler geweßenen Öhlmüllers und burgers allhier hinterl. Wittib Verlaßenschafft jnv. H. Not. Saltzmann
Concl. final jnvent. Ist fol. 100.b, 3779 lb 7 ß 5 d, davon gehet aber ab wegen dem Jenigen so der bisherigen verstallung nicht unterworffen geweßen 779. lb 5 ß 8 d, Verbleibt 3000 lb 1 ß 9 d die machen 6000 fl. verstallte 2700 fl. Zu wenig 300 fl. Wovon nachtrag 6 Jahr in duplo a 9 lb 18 ß – 29 lb 8 ß
und 4 Jahr in simplo – 19 lb 16 ß
Ext. Stallgeldt 1775 – 4 lb 1 ß
Abhandlung – 6 lb 5 ß 6 d (Summa) 89 lb 10 ß 6 d
auß trifftigen ursachen der Nachtrag auff die helffte moderirt, restiret 49 lb 18 ß 6 d
dt. 10.t Aprilis 1775.
L’huilier Jean Daniel Pfæhler rachète de ses frères et sœurs les parts de la maison en 1793.
1793 (8 nivose 2), Not. Saltzmann (Jean Daniel, 6 E 41, 597) Joint au n° 220 du 4 Janvier 1775)
(Inventarium über Weiland Fraun Annä Mariä Pfählerin geb. Bohnerin, des auch weil: H. Joh: Daniel Pfähler gewesenen Oelmüllers und Burgers alhier Zu Straßburg, Wittib Verlaßenschafft)
Hausüberlassung – Erschienen vor dem unterschriebenen Zu Straßburg wohnhaften öffentlichen Notar Anna Maria geborene Pfähler unter der Autorisation ihres Ehemanns Georg Friderich Roggenbach des Gastgebers Zum schwartzen Bär, Ferner Maria Elisabet geborne Pfählerin mit Beihilfe ihres Ehegatten Johann Michael Klipffel des Metzgers und Johann Friderich Pfähler, der Knöpffmacher, alle burger allhier, welche sich zugleich vor ihre mittlere Schwester Maria Margarita geborne Pfählerin des Weiland Johann Jacob Oberlin, gewesenen Adlerwirts in Kehl Wittwe hiemit stark machen, Solche Comparenten haben frei offentlich angezeigt und bekannt, daß sie vor sich, ihre und ihrer Schwester Erben
ihrem hierbei anwesenden ältern Bruder Johann Daniel Pfähler, dem Oelhändler hieselbst aufrichtig, vest und unwiderrufflich verkauft (…)
Eine in hiesiger Vorstatt Krautenau nahe an der Hännengaß ohnweit der Esplanade gegen der Citadell, ein Seit neben Johann Heiligenstein, dem Zimmermann, ander Seit neben Jacob Bader, dem Fuhrmann gelegen, hinten auf H. Johann David Zocher, den Kunstgärtner stosende, mit Ziffer 41. bezeichnete Behausung, Hoffstatt, Scheur, Stall, Höflein und Bronn, mit allen übrigen deren Begriffen, Weiten, zugehörden, Rechten, auch allen in dem Keller sich vorfindeneden Faßliegerlingen und Fässern,welche letztere sechs mit Eisen gebunden Thürfässer ohngefäht 209 Ohmen halten
So dann ohngefähr ein Acker und drei Vierzel Reben Mittelhausberger Banns (…) Diesemnach ist diese Überlassung und Annahm geschehen um 4800 Livres frantzösischer Währung
Straßburg den 8. Nivos im Zweiten Jahr des einen und unvertrennbaren frantzösischern Freistaats
(enregistré le 12 nivose An 2
Jean Daniel Pfæhler épouse en 1773 Marie Madeleine Magnus. Sa mère et ses frères et sœurs lui cèdent leurs parts de la maison rue des Bestiaux ou rue Dauphine
1773 (1.12.), Not. Saltzmann (Jean Daniel, 6 E 41, 613) n° 116
Eheberedung – Zwischen Herrn Johann Daniel Pfähler, dem ledigen Oelhändler, des weiland H. Johann Daniel Pfähler, geweßenen hiesigen burgers und Oelhändlers mit seiner hinterbliebenen Wittwen Frai Anna Maria gebohrener Bohnertin ehelich erzeugten und nach tod hinterlaßenen, nunmehr grosjährigen ältern Sohn, als Hochzeiter an einem Theil
so dann Jungfrau Maria Magdalena Magnußin, des H. Johann Friderich Magnuß Metzgers, und Frauen Eva gebohrener Stahlin beder Eheleut und burger alhier, erzielten einzigen tochter, als der Jgfr. Hochzeiterin ane dem andern Theil
Sechstens überlassen vorgedachte Frau Pfählerin mit beÿhülf H. Martin Klipffel, des Metzgers, und deren nachgemelte großjährige Töchter, (…) dem Hochzeiter H. Johann Daniel Pfähler, als ihrem respective Sohn und Bruder (…) 19/21. Theile an einer in hiesiger Stadt an der vormaligen grosen Viehgaß oder jetzigen Dauphinegaß (…) gelegenen behaußung (…)
Mariage, Saint-Pierre-le-Jeune (luth. f° 4 n° 3)
In dießem 1774. Jahr sind nach Zweÿmaliger unterschiedlicher proclamation Dom: Sept. & Sexages. geschehen dienstags morgens um Zehen uhr als den 8. Februarii Zur Ehe eingesegnet worden Johann Daniel Pfähler lediger burger und ohlmann alhier weÿl. Johann Daniel Pfehlers geweß. burgers und Ohlmans alhier hinterl. ehel. Sohn mit Jgfr. Maria Magdalena Magnußin Johann Friderich Magnus burgers und Metzgers alhier ehelicher dochter [unterzeichnet] Johann Daniel Pfähler als Hochzeiter, Maria Magdalena Magnusin als Hochzeiterin (im 6)
Les nouveaux mariés font dresser l’inventaire de leurs apports dans la maison cédée au contrat de mariage. Ceux du mari s’élèvent à 1 668 florins (834 livres), ceux de la femme à 2 268 florins (11 34 livres).
1774 (22.2.), Not. Saltzmann (Jean Daniel, 6 E 41, 596) n° 200
Inventarium über Herrn Johann Daniel Pfähler, des Oelhändlers und Fraun Mariä Magdalenä gebohrener Magnußin, beder Eheleut und burger alhier Zu Straßburg, in die Ehe gebrachtes Vermögen, aufgerichtet in dem Jahr 1774. (…) in ihrem den 8. dieses laufenden Monaths und Jahrs mit einander angetrettenen Ehestand gebracht, und laut des dritten Puncts ihrer den 1. Decembris letzthin vor mir Notario auffgerichteten Eheberedung, sich vor unverändert vorbehalten haben (…)
So geschehen in Straßburg in hernach inventirter ane der Dauphinegaß gelegenen behausung in derseitiger geliebter eltern beiseÿn auf Dienstag den 22. Hornung vormittag in dem Jahr 1774.
Eigentum an einer Behausung, so der Mann in die Ehe gebracht. Nemlich eine Behausung an der vormaligen grosen Viehgaß oder jetzigen Dauphinegaß (…)
Folgt nun hierauf die Beschreibung des bederseitigen Beibringens an und vor sich selbst. Des Manns in die Ehe gebracht, Sa. Haußrats 264, Sa. Saamen und oele 1736, Sa. oeltrott, Oelmühl o, Sa. Silbergeschirres und & 108, Sa. goldenen Rings und Uhr 78, Sa. baarschafft 26, Sa. Eigentums ane i. Beh. 5000, Summa summarum 7214 lb – Schulden 5736, Nach deren Abzug 1477 fl. – Dazugelegt den Ihm von nacherzählten Haussteuren 191 fl. Des Ehemanns Gut 1668 fl.
Dießemnach wird auch der Ehegattin Beibringen verzeichnet, Sa. Haußrats 552, Sa. Fässer u. Weins 38, Sa. Früchten 92, Sa. Silbers u. dgl. Geschmeids 77, Sa. baarschafft 1222, Summa summarum 2077 fl. – die Ihr von hieunten verzeichneten Haussteuren verwilligte Hälfte dazu gerechnet mit 191 fl. Also besteht der Ehefrau Beibringen dem wahren Werth nach, jedoch ohne ihre Kleidung und weises Gezeug in 2268 fl.
Marie Madeleine Magnus meurt en 1776 en délaissant deux filles. La masse propre au veuf est de 697 livres, celle propre aux héritiers de 1 041 livres. L’actif de la communauté s’élève à 2 303 livres, le passif à 1 897 livres.
1776 (4.9.), Not. Saltzmann (Jean Daniel, 6 E 41, 598) n° 275
Inventarium über Weiland Fraun Maria Magdalena Pfählerin geborener Magnusin, des H. Joh: Daniel Pfähler, Oelhändlers und Burgers allhier Zu Straßburg gewesener Ehegattin, Verlaßenschafft, auffgerichtet Anno 1776. (…) nach ihrem den 28. Maj dieses Jahrs aus dießer Welt genommenen seligen Abschied Zrückgelassen hat. Welche Verlaßenschafft auf Ansuchen sowol des hinterbliebenen Wittwers, als auch der Verstorbenen mit demselben ehelich erzeügter und ohntestirt Zu Erbinnen Verlaßener Zweier Kinder Maria Magdalena und Anna Maria geordneten und geschworenen Vogts, als ihres Grosvaters, H. Joh: Friderich Magnus, des hiesigen burgers und Metzgers, fleisig inventirt (…) So geschehen in Straßburg in hernach inventirter an der Dauphinegaß gelegener Sterb behaußung aug Mittwoch den 4. Septembris vormittag in dem Jahre nach Christi geburth 1776.
Abschrift der den 1. Dec. A° 1773 vor mir Notario auffgerichteten Eheberedung (…)
Eigentum an einer Behausung (W.) Nämlich eine Behausung an der vormaligen grosen Viehgaß oder jetzigen Dauphinegaß (…)
Folgt nun hierauff die Beschreibung dieser Verlaßenschaft an und vor sich selbst, Des Wittwers unveränderten Guts, Sa. haußraths 53, Sa. Geschirrs zu dem Oelhandwerk gehörig 3, Sa. Silbergeschirrs u. dgl. Geschmeids 28, Sa. goldenen Rings 1, Sa. baarschafft 10, Sa. Fuhrgeschirrs 2, Sa. Pferd 15, Sa. Eigenthums an I. Behausung 400, Sa. Ergäntzung 1081, Summa summarum 1597 lb – Schulden 900 lb, Nach deren Abzug 697 lb
Diesemnach wird der Kinder und Erbinnen unverändertes mütterliches Vermögen verzeichnet, Sa. Haußraths 150, Sa. Silbers 9, Sa. goldener Ringe u. gdl. Geschmeids 13, Sa. baarschafft 3, Sa. Schuld 100, Sa. Ergäntzung 765, Summa summarum 1041 lb
Endlich wird auch die Errungenschaft beschrienen, Sa. Haußraths 27, Sa. Geschirrs zu dem Oelhd. gehörig 10, Sa. Saamen und Oele 545, Sa. Hau und Stroh 9, Sa. goldener Uhr 41, Sa. baarschafft 144, Sa. Fässer und Weins 10, Sa. Activ-Schulden 1547, Summa summarum 2303 lb – Schulden 1897 lb, Diese von solcher Activmass weggerechnet 408 lb
Schluss summ 2147 lb – Stallsumm 455 lb
Jean Daniel Pfæhler se remarie en 1777 avec Marie Catherine Metz, fille du boulanger Jean Michel Metz : contrat de mariage, célébration
1777 (29. wintermonat), Not. Saltzmann (Jean Daniel, 6 E 41, 613) n° 172
Eheberedung – Erschienen der ehren- und wol-achtbare Herr Johann Daniel Pfähler, verwittibter Oelmüller und Burger alhier, als Hochzeiter, an einem Theil,
so dann die tugendhafte Jungfrau Maria Katarina Metzin, des Weiland H. Joh: Michael Metz, gewesenen hiesigen Burgers und Weisbäckers, in zwoter Ehe mit auch weiland Frau Maria Elisabeth geborner Kleinin erzeugte jüngere, nach hiesigen Stadtrechten grosjährige Tochter, als Hochzeiterin an dem andern Theil
Straßburg auf Sontag den 29. Wintermonats in dem Jahr nach Christi Geburt 1777 [unterzeichnet] Johann Daniel Pfähler als Hochzeiter, Maria Catharina Metzin als hochzeiterin
Mariage, Temple-Neuf (luth. f° 184-v n° 4)
Im Jahr Christi 1778. Montags den 2. Februarii vor mittag umb Eilff uhr, wurden nach vorhergegangenen ordentlichen proclamationen, welche Dominicâ Tertia und Quartâ post Epiphanias geschehen sind, in offentlicher Kirch vor denen unterschriebenen Zeugen ehelich copuliert und Christlich eingesegnet H. Johann Daniel Pfähler, Oelhändler, Wittwer und burger allhier, welcher in der Ersten ehe gelebet hat mit weÿl. Frau Maria Magdalena gebohrener Magnußin, und Jgfr. Maria Catharina Metzin, weÿl. Johann Michael Metz gewesenen Weißbecken und burgers allhier und auch weÿl. Frau Maria Elisabetha gebohrene Kleinin nachgelaßene eheliche Tochter [unterzeichnet] Johann Daniel Pfähler als hochzeiter, Mara Catharina Metzin als hochzeiterin (i 237)
Les nouveaux mariés font dresser l’inventaire de leurs apports. Ceux du mari s’élèvent à 11.086 florins (5543 livres), ceux de la femme à 4092 florins (2046 livres).
1778 (15.4.), Not. Saltzmann (Jean Daniel, 6 E 41, 599) n° 315
Inventarium über Herrn Johann Daniel Pfähler des Oelhändlers, und Fraun Maria Catharina geborener Metzin, beder Eheleute und Burgere alhier Zu Straßburg ; in die Ehe gebrachtes Vermögen, aufgerichtet in Anno 1778. (…) welche in ihrem den 2. Hornung dieses Jahrs mit einander angetrettenen Ehestand gebracht und laut des dritten Artickels der den 29. Novembris jüngsthin vor mir Notario auffgerichteten Eheberedung sich vor unverändert vorhbehalten haben (…) So geschehen und angefangen in Straßburg in hernach inventirter an der Dauphinegaß gelegenen Behausung in fernerem Beiseÿn H. Theobald Roser des frantzösischen Bäckers, der Ehefrau Vormaligen Vogts und von ihr hierzu erbetenen Beistands, ingleichem ihres Schwagers H. Joh: Georg Riedinger des Meelhändlers, beder burger alhier, auf Mittwoch de, 15. Aprill vormittag in dem Jahr nach Christi Geburt 1778.
Eigentum an einer Behausung (M.) Nämlich eine Behausung an der vormaligen grosen Viehgaß oder jetzigen Dauphinegaß (…)
Folgt nun hierauf die Beschreibung des bederseitigen Beibringens an und vor sich selbst. Des Manns in die Ehe gebrachten Guts, Sa. haußrats 900, Sa. Geschirrs zu dem Oelhd. gehörig 275, Sa. Saamen und Oele 2586, Sa. Fuhrgeschirrs 39, Sa. Silbergeschirrs u. dgl. Geschmeids 157, Sa. goldenen Rings u. Uhr 58, Sa. Fäßer u. Weins 87, Sa. Heu und Stroh 19, Sa. baarschafft 3987, Sa. Vieh 105, Sa. Eigenthums an I. Beh. 8000, Sa. Activschulden 4225, Summa summarum 20.441 fl. – Schulden 9354 fl. Des Ehemanns Gut 11.086 fl.
Nach dießem wird auch der Ehefrau Beibringen verzeichnet, Sa. Haußrats 364, Sa. Silbers u. dgl. Geschmeids 56, Sa. goldener Ring u. gdl. Geschmeids 80, Sa. baarschafft 104, Sa. Pfenningzinse hauptgüter 2915, Sa. Activschulden 562, Summa summarum 4089 fl. – Dazugelegt deren Hälfte von nachstehenden Haussteuren 2 fl. Der Ehefrau Beibringen 4092 fl.
Jean Daniel Pfæhler meurt en 1810 en délaissant deux filles de son premier mariage et sept enfants du deuxième.
1810 (6.7.), Strasbourg 10 (20), Georges Frédéric Zimmer n° 430, 4521
Inventaire de la succession de Jean Daniel Pfaehler marchand huilier – dressé à la requête de Marie Catherine Metz demeurant à Strasbourg la veuve, Jean Frédéric Pfaehler passementier subrogé tuteur – Le défunt a délaissé pour ses seuls et uniques héritiers ab intestat 1. Marie Madeleine Pfaehler épouse de François Henri Redslob Directeur de pension, 2. Anne Marie Pfaehler épouse de Chrétien Renard Wetzel maître de poste à Bischoffsheim à la haute montée outre Rhin, héritiers pour 1/9 de leur père issus du mariage avec Marie Madeleine Magnus,
3. Marie Catherine Pfaehler épouse d’Adam Frédéric Neulinger marchand hulier, 4. Marie Elisabeth Pfaehler épouse de Jean Neulinger marchand huilier, 5. Marguerite Frédérique Pfaehler fille majeure, 6. Marguerite Barbe Pfaehler épouse de Chrsitmann Henri Kammerer brasseur, 7. Catherine Sophie Pfaehler fille majeure, 9. Jean Daniel Pfaehler huilier, 9. Charles Auguste mineur, les 7 derniers issus du mariage avec la veuve – Contrat de mariage reçu par Saltzmann notaire le 29 novembre 1777
dans la demeure de la veuve rue du bétail n° 9
propres du défunt, créances 400 fr, remploi suivant inventaire des apports dressé par M° Saltzmann le 15 avril 1778, 7799 fr
propres des héritiers, garde robe 312 fr, remploi 12 101 fr
Maison a Strasbourg propre aux héritiers, savoir une maison avec cour écurie communauté de puits appartenances et dépendances scise à Strasbourg rue du Bétail n° 9, d’un côté l’auberge a l’ours noir, de l’autre la brasserie a la chène verde, derrière ladite auberge, dans laquelle maison ainsi que dans le moulin et pressoir a huile se trouvant dans ledit immeuble sept 9° ont été cédés par les sept enfants majeurs à la veuve suivant acte reçu M° Zimmer le 16 mars dernier pour 20.000 fr. Ladite maison a été vendue au défunt par ses père et mère, frères et sœurs au contrat de mariage avec Marie Madeleine Magnus son épouse en premières noces reçu M° Saltzmann le 1 décembre 1773
total général 32.413 fr, passif 6420 fr, reste 25.993 fr
communauté : meubles 31 270 fr, vins tonneaux 2519 fr, tonneaux servant à la fabrication d’huile 1232 fr, foin paille 182 fr, bois de chauffage 80 fr, chevaux et voitures 276 fr, argenterie or bijoux 592 fr, numéraire 29.025 fr, créances 41.713 fr
Immeuble, savoir une Maison avec cour grange écurie puits appartenances et dépendances scise à Strasbourg fauxbourg de la Krautenau près la rue de la poule et celle de l’esplanade vers la Citadelle n° 41, d’un côté le Sr Fritz charpentier, de l’autre Jacques Bader voiturier, derrière le Sr Zocher jardinier
vignes à Mitelhausbergen 9000 fr, total 115.890 fr, passif 20.701 fr, reste 95.189 fr
acp 115 (3 Q 29 830) f° 30-v du 9.7.
La veuve Marie Catherine Metz devient seule propriétaire de la maison.
1810 (12.6.), Strasbourg 10 (52), Georges Frédéric Zimmer n° 2937, 4474
1. Marie Madeleine Pfaehler épouse de François Henri Redslob directeur de pension à Strasbourg, 2. Anne Marie Pfaehler épouse de Chrétien Renard Wetzel maître des Postes demeurant à Bischoffsheim à la haute montée outre Rhin cohéritières chacune pour un 9° de Jean Daniel Pfaehler leur père marchand huilier, issues de son mariage du premier lit avec Marie Madeleine Magnus leur mère
à Marie Catherine Metz veuve en secondes noces dudit Jean Daniel Pfaehler leur père
Premièrement deux 9° dans la moitié moitié ou 2/18 dans la totalité d’une maison avec cour, grange, écurie, puits, appartenances et dépendances sise à Strasbourg à faubourg de la Krautenau près la rue de la poule et de celle de l’esplanade vers la Citadelle n° 41, d’un côté le Sr Fritz charpentier, de l’autre Jacques Bader voiturier, derrière le Sr Zocher jardinier fleuriste
(35 a de vignes Mittelhausbergen) les sept 9° restants dans la moitié ou 7/18 dans la totalité appartenant aux sept enfants et héritiers pour 1/9 dudit leur père issus de son mariage en secondes noces, l’autre moitié appartient à la veuve Pfaehler acquéreuse – acquise par acte reçu Saltzmann le 8 nivose 2 – pour 1000 francs
acp 114 (3 Q 29 829) f° 186 du 13.6.
Marie Catherine Metz meurt en 1820 en délaissant sept enfants.
1820 (30.6.), Strasbourg 10 (25), Louis Frédéric Zimmer n° 676 (8865)
Inventaire de la succession de Marie Catherine Metz veuve de Jean Daniel Pfaehler, marchand huilier, décédée le 11 février 1820. Dressé à la requête de 1. Marie Catherine Pfaehler veuve d’Adam Frédéric Neulinger fabricant d’huiles, 2. Marie Elisabeth Pfaehler épouse de Jean Neulinger fabricant d’huiles, 3. Marguerite Françoise Pfaehler majeure, 4. Marguerite Barbe Pfaehler épouse de Christmann Henri Kammerer propriétaire, 5. Catherine Sophie Pfaehler épouse de Jean Frédéric Lamp régent du gymnase protestant à Strasbourg, 6. Jean Daniel Pfaehler, fabricant d’huiles, 7. Charles Auguste Pfaehler propriétaire, héritiers de leur mère
garde robe 217 fr, mobilier 210 fr, créances 50.485 fr
immeubles. Premièrment une maison avec cour, communauté de puits, appartenances et dépendances sise à Strasbourg rue du Bétail n° 9, d’un côté l’auberge à l’Ours Noir, de l’autre la propriété des Sr Pfaehler frères, derrière ladite auberge – provenant de la succession de paternelle des enfants Pfaehler, ladite défunte est devenue propriétaire par deux contrats de vente que les enfants Pfaehler ont passé à son profit devant M° Zimmer les 16 mars 1810 et 29 avril 1818. Cédée audit défunt Sr Pfaehler par sa mère, ses frères et sœurs par l’art. 6 du contrat de mariage avec Marie Madeleine Magnus son épouse en premières noces passé devant M° Saltzmann le 1 décembre 1773. De laquelle maison la D° Jean Neulinger, Dlle Pfaehler, D° Kammerer et Lamp et Daniel et Auguste Pfaehler déclarent avoir cédé à la veuve Neulinger née Pfaehler leur sœur cessionnaire les six 7° par indivis dans la maison ci dessus désignée, la totalité estimée à 15.000 fr
Plus 11/18 par indivis dans une maison avec cour, grange, écurie, puits, appartenances et dépendances sise à Strasbourg Fauxbourg de la Krautenau près de la rue de la poule et celle de l’esplanade vers la Citadelle n° 41, d’un côté le Sr Fritz charpentier, de l’autre le Jacques Bader voiturier, derrière la succession Zocher. Lequel immeuble est occupé par les héritiers estimé 154 fr au centime 20 à 3080 fr. De laquelle maison acquise pendant le mariage du Sr Pfaehler et de la veuve Saltzmann le 8 nivose 2 une moitié appartient à la défunte de la communauté, 2/18 lui ont été cédés par les Dames Redslob et Wetzel nées Pfaehler filles du premier lit du défunt par acte M° Zimmer le 12 juin 1810, les sept 18° restant à titre de bien paternel suivant inventaire du défunt reçu M° Zimmer le 9 juillet 1810
total général de la succession de 68.992 fr, passif 28.829 fr, déduction faite 40,163 fr
Liquidation et partage de la succession de feu Marie Catherine Metz veuve de Jean Daniel Pfaehler, viavnt marchand huilier à Strasbourg, y décédée le 11 février dernier, fait à la requête de 1. Marie Catherine Pfaehler veuve d’Adam Frédéric Neulinger fabricant d’huiles, 2. Marie Elisabeth Pfaehler épouse de Jean Neulinger fabricant d’huiles, 3. Marguerite Françoise Pfaehler majeure, 4. Marguerite Barbe Pfaehler épouse de Christmann Henri Kammerer propriétaire, 5. Catherine Sophie Pfaehler épouse de Jean Frédéric Lamp régent du gymnase protestant à Strasbourg, 6. Jean Daniel Pfaehler, fabricant d’huiles, 7. Charles Auguste Pfaehler propriétaire, tous demeurant à Strasbourg
acp 148 (3 Q 29 863) f° 47 du 3.7. – La succession mobilière se monte à 50.912 francs
une maison en cette ville rue du bétail N° 9, ci 15.000 francs, laquelle les héritiers ont de suite cédée à ladite veuve Neulinger moyennant la même somme, sur laquelle il faut déduire la portion dont ellle est propriétaire, reste à verser dans la succession 12.857
plus la masse se compose de11/18 par indivis d’une maison en cette ville Faubourg de la Krutenau N° 41 estimée ci 3080, total 68.992, dot à déduire les dettes passives & la maison ci-dessus qui reste indivise 28.829, reste pour la masse active 10.163
à quoi il faut ajouter les dots que la défunte à données à ses enfants montant à 9751, total 49.914 francs, dont il avient à chaque héritier 7130
Il revient (…)
Les héritiers Pfæhler vendent la maison au maître charpentier Charles Chrétien Fritz
1830 (2.3.), Strasbourg 10 (82), Louis Frédéric Zimmer n° 755
1. Marie Catherine Pfaehler veuve d’Adam Frédéric Neulinger, fabricant d’huile et avec elle Gaspard Weguelin, propriétaire son époux, 2. Marguerite Frédérique Pfaehler avec elle Jean Nicolas Günther, propriétaire son épouse, 3. Marguerite Barbe Pfaehler veuve de Christmann Henri Kammerer, propriétaire, 4. Catherine Sophie Pfaehler avec elle Jean Frédéric Lamp, professeur au gymnase protestant de Strasbourg, 5. Jean Daniel Pfaehler, fabricant d’huile, et Sophie Charlotte Osterrieth, 6. Charles Auguste Pfaehler, non marié, les deux fabricant d’huile, 7. Jean Frédéric Neulinger, garçon majeur fabricant d’huiles, agissant en leur nom et se portant fort de 1. Catherine Frédérique Neulinger, 2. Henriette Sophie Neulinger, 3. Daniel Auguste Neulinger, les trois enfants mineurs et Jean Frédéric Neulinger leur frère germain délaissés de Marie Elisabeth Pfaehler décédée épouse de Jean Neulinger, fabricant d’huiles, les frères et sœurs Pfaehler ensemble 6/7 et les quatre frères et sœurs Neulinger pour 1/7, suivant déclaration tenant lieu d’Inventaire et liquidation de Marie Catherine Metz veuve de Jean Daniel Pfaehler, fabricant d’huile leurs père et mère, dressé par M° Zimmer le 30 juin 1820
à Charles Chrétien Fritz, maître charpentier
une maison avec cour, grange, écurie, puits, appartenances et dépendances située à Strasbourg, Faubourg de la Krutenau rue des Bestiaux n° 41 entre la rue de la Poule et celle de l’avenue à la Citadelle, d’un côté la propriété des héritiers Fritz charpentier, de l’autre celle de la Dlle Bader, derrière la maison du Sr Zoger jardinier fleuriste – Ladite maison appartient aux vendeurs en tant qu’héritiers de Jean Daniel Pfaehler leur père délaissant pour 1/9 conjointement avec Marie Madeleine Pfaehler épouse de François Henri Redslob, docteur et professeur en théologie, Anne Marie Pfaehler épouse de Chrétien Renard Wetzel, maître de poste à Bischoffsheim à la Haute Montée outre Rhin, fille du premier lit, héritiers pour 2/9 suivant inventaire dressé par M° Zimmer le 6 juillet 1810. Par acte reçu Zimmer le 12 juin 1810, les D° Redslob et Wetzel ont fait cession de deux neuvièmes de la succession paternelle au profit de Marie Catherine Metz veuve en secondes noces de Jean Daniel Pfaehler de manière que la veuve Pfaehler possédait en propre 11/18. Jean Daniel Pfaehler père a acquis ladite maison en secondes noces par acte reçu M° Saltzmann le 28 décembre 1793 (8 nivôse 2). L’origine de la propriété est constatée par cinq contrats passés à la Chambre des Contrats le 27 août 1728, 7 novembre 1730, 10 novembre 1733 et 12 mai 1752 – moyennant 3200 francs
Enregistrement de Strasbourg, acp 198 f° 109
acp 198 (3 Q 29 913) f° 109 du 3.3.
Charles Chrétien Fritz reconaît un enfant né de Louise Antoinette L’Herminié
1858, Officier de l’état-civil
Reconnaissance par Charles Chrétien Fritz de Strasbourg, de Louise Victorine Camille Fritz née le 15 juillet 1832 de Louise Antoinette L’Herminié célibataire à Strasbourg pour son enfant naturel
acp 467 (3 Q 30 182) f° 62 du 9.3.
Charles Chrétien Fritz meurt célibataire le 8 août 1871 en délaissant pour unique héritier son frère Jean Guillaume Fritz
1877 (14.7), Strasbourg 10 (182), Frédéric Pierron n° 1179
14. Juli 1877. Notorietäts Akt – (…) dieselbe erklären hiemit den zu Straßburg wohnhaft gewesenen Eigenthümer H. Carl Christian Fritz gut gekannt zu haben, und zu wissen daß derselbe ledigen Standes in hiesiger Stadt am 8. August 1871 gestorben ist, Ferner und als der Wahrheit und dem öffentlichen Gericht gemäß, bestätigen sie andurch daß nach dessen Ableben kein Inventar ist errichtet worden, da Gegenwärtiges an Stelle eines Solchen dienen wird, und daß er zu alleinigen Erben seinen Bruder hinterlassen hat, H. Johann Wilhelm Fritz, Eigenthümer in Straßburg wohnhaft, welcher Letztere dem zufolge alle nur jede Summen die für während der Belagerung und Beschießung der Stadt Strassburg erlittenen Schaden, dem verlebten H. Fritz respective dessen Nachlasse gewährt worden sind, von den betreffenden Zahlungs Stellen zu beziehen und in Empfang zu nehmen berechtigt war, welche folglich gültig und rechtmäßig in seine Hände bezahlt haben.
acp 666 (3 Q 30 381) f° 41 du 16.7.
Décès, Strasbourg (n° 2039)
Acte de décès. Le 8 août 1871 à trois heures du soir ont comparu Valentin Brandt âgé de 77 ans, menuisier, voisin du défunt domicilié à Strasbourg et Antoine Nessler, charpentier, voisin du défunt domicilié à Strasbourg, lesquels nous ont déclaré que Charles Chrétien Fritz âgé de 80 ans, né à Strasbourg, charpentier non marié domicilié à Strasbourg fils de feu Frédéric Daniel Fritz, charpentier, et de feu Marie Salomé Heiligenstein est décédé le 8 août 1871 à six heures du matin en la maison rue des bestiaux 10 (i 80)
Jean Guillaume Fritz meurt célibataire en 1879 en délaissant pour héritier testamentaire le propriétaire et ancien architecte Charles Auguste Schoop
1879 (13.12.), Strasbourg 10 (190), Frédéric Pierron N° 3056
Notorietät, 13 Dezember 1879. – (…) daß sie den Herrn Johann Wilhelm Fritz im Leben geweßenen Gutsbesitzer gekannt haben, daß derselbe ledigen Standes in Straßburg den 10. November 1879 gestorben ist, ohne Pflichterben zu hinterlassen und daß nach dessen Ableben kein Inventar ist errichtet worden
acp 695 (3 Q 30 410) f° 69-v du 17.12.
Le défunt lègue à l’établissement des Diaconesses sa propriété dite la Chartreuse, à la fondation Blessig 50 000 francs, à l’établissement protestant du Neuhof 30 000 francs, à la Société pour les pauvres honteux protestants de Strasbourg 30 000 francs, à la Société protestante d’évangélisation 30 000 francs, aux pauvres du Temple Neuf 40 000 francs, à ses héritiers naturels 25 000 francs, à sa gouvernante une rente annuelle de 1 200 francs, aux pauvres des églises protestantes, y compris l’église réformée, 24 000 francs, à son jardinier Georges Schwing une rente annuelle de 500 francs (voir ci-dessous l’inventaire après décès).
20. November 1879. – Hinterlegung in das Archiv des Notar Pierron des eigenhändigen Testaments vom 10. August 1873 des am 10. November verstorbenen Johann Wilhelm Fritz Eigenthümer hier, 2) des Codizills vom 5. Mai 18752 von demselben 3) der die Hinterlegung anordnenden Ordonnanz des Landgerichts vom 18. hujus
acp 695 (3 Q 30 410) f° 50 n° 2202 du 22.11.
Enregistrement de Strasbourg, ssp 181 (3 Q 31 680) f° 79 Testament, Johann Wilhelm Fritz, 1873
f° 80 Testament veränderung, Johann Wilhelm Fritz
1880 (25.5.), Strasbourg 10 (191), Frédéric Pierron n° 3348
Notoriätsact, 25 Mai 1880 – (…) sie hätten den Herrn Johann Wilhelm Fritz, bei Lebzeiten ledig, Gutsbesitzer wohnhaft zu Straßburg sehr gut gekannt und (…) bestätigen daß genannter Herr Fritz zu Straßburg den 10. November 1879 ohne Pflichtseben zu hinterlaßen und ledig gestorben ist, daß nachs einem Ableben kein Inventar errichtet wurden und daß demgamäß kein Hinderniß bestehe zur Vollziehung 1° seines eigenhändigen Testaments vom 10. August 1873 und 2° eines Codizills vom 5. Mai 1878, alles nach Erfüllung der gesetzlich vorgeschriebenen Förmlichkeiten im Archiv des unterzeichneten Notars hinterlegt laut Akt vom 20. November letzthin, durch welche er den Herrn Carl August Schoop gewesener Architect, jetzt Gutsbesitzer wohnhaft zu Paris zu seinem Universal-Legatar in völligem Eigenthum eingesetzt hat.
acp 699 (3 Q 30 414) f° 100-v du 27.5.
Décès, Strasbourg (n° 2878)
Strassburg am 11. November 1879. Vor dem Standesbeamten erschienen heute der Gärtner Alfred Schwing, wohnhaft zu Königshofen 43 (Stadtbann Strassburg), und zeigte an, daß der ledige Hausbesitzer Johann Wilhelm Fritz, 82 Jahr alt, evangelischer Religion, wohnhaft zu Straßburg geboren zu Strassburg, Sohn der verstorbenen Eheleute Daniel Fritz Zimmermann und Maria Salome geb. Heiligenstein, zu Straßburg Viehegasse 10 am 10. November des Jahres 1879 Nachmittags um fünf Uhr verstorben sei (i 47)
Jean Guillaume Fritz délaisse onze maisons à Strasbourg dont Charles Auguste Schoop devient propriétaire.
1880 (28.4.), Strasbourg 10 (191), Frédéric Pierron n° 3311
28. April 1880. Erbverzeichnis über den Nachlass von Johann Wilhelm Fritz
Ist erschienen Herr Carl August Schoop, geschehener Architect, jetzt Gutsbesitzer, wohnhaft zu Paris, In seiner Eigenschaft als Universal-Legatar des zu Straßburg den 10. November 1879 ledig und ohne Pflichterben zu hinterlassen verstorbenen Gutsbesitzers Herrn Johann Wilhelm Fritz, auf Grund 1° dessen eigenhändigen Testaments vom 10. August 1873 und 2° eines Codizills vom 5. Mai 1878, alles nach Erfüllung der gesetzlich nachgeschriebenen Förmlichkeiten in Archiv des unterzeichneten Notars hinterlegt laut Act vom 20. desselben Monats November
Das Testament lautet wie folgt. 1. Ich Ends unterschriebener Johann Wilhelm Fritz, Eigenthümer wohnhaft zu Straßburg Viehegasse N° 10, setze hiemit Herrn Carl August Schoop, Baumeister wohnhaft in Straßburg Metzgergieße N° 39 zu meinem Universal Erben ein (…)10. August 1873
Ich Ends unterschriebener Johann Wilhelm Fritz, Eigenthümer wohnhaft zu Straßburg vermache hiermit zu einem völligen Eigenthum 1. der Diakonissen Anstalt zu Straßburg mein Landgut geannt Schlössel im Kanton Schnakenloch gelegen, mit allen dazu gehörigen Gebäude, Garten und Feld, unter der ausdrücklichen Bedingung, daß dieses Gut ein von der genannten Anstalt kann verkauft werden und daß diese Anstalt unser Familien Grab auf dem Gottesacker St Urban gelegen unterhalten, 2. der Bleßig Anstalt zu Straßburg vermache ich 50.000 Franken (…) 3. der Anstalt von Neuhof, nämlich der protestantischen 30.000 Francken, 4. der Anstalt genannt Société pour les pauvres honteux protestants de Strasbourg 30.000 Franken, 5. der protestantischen Evangelisation Gesellschafft zu Straßburg 30.000 Franken, 6. der Neuen Kirche Augsburgischer Confession für Armen die Summ von 40.000 Franken, 7. für meine Verwandte, daß heißt für meine natürlichen Erben 25.000 Franken, 8. der Jungfrau Dorothea Hatt, meiner Haushälterin eine jährliche Rente von 1200 Franken (…), 9. allen protestantischen Kirchen zu Straßburg mit Zubegriff der Reformirten Kirche für die Armen 24.000 Franken, 10. Meinem Gärtner George Schwing eine Rente von 500 Franken (…) den 10. August 1873
Immobilien, die ncht vermacht worden sind. 1° Ein Wohnhaus Goldgießen N° 4 (…)
2° Ein Wohnhaus in der Tränkgasse N° 9 (…)
3° Ein Wohnhaus in der Ballhausgasse N° 8 (…)
4° Ein Wohnhaus St Stephans platz N° 15 (…)
5° Ein Wohnhaus in der Hallebardengasse N° 7 (…)
6° Ein Wohnhaus in der Hallebardengasse N° 9 (…)
7° Ein anderes in derselben Gasse N° 4 (…)
8° Ein Wohnhaus in der Spitalgasse N° 27 (…)
9° Ein Wohnhaus mit Hof, Brunnen, Rechten und Zubehör, zu Straßburg in der Viehgasse N° 8 gelegen, begrenzt einerseits durch den Gärtner Zucker, anderseits durch nachbeschriebenes Wohnhaus N° 10 vorn durch genannte Gasse und hinten durch Herrn Zucker. Dieses Immöbel ist durch den zu Straßburg verlebten Johann Christian Fritz von welchem genannter Johann Wilhelm Fritz dessen Bruder es geerbt hat, gekauft worden von 1° Maria Catharina Pfaehler Wittwe von Adam Friedrich Neulinger und Ehegattin zweiter Ehe von Gaspard Wegelin Gutsbesitzer, 2° Margaretha Friederika Pfaehler, Ehegattin von Johann Niclaus Günther, Gutsbesitzer, 3° Margaretha Barbara Pfaehler, Wittwe von Christian Heinrich Kammerer, Gutsbesitzer, 4° Catharina Sophie Pfaehler, Ehegattin von Johann Friedrich Lamp, Professor am protestantischen Gymnasium zu Straßburg, 5° Johann Daniel Pfaehler und dessen Ehegattin Sophie Charlotte Osterrieth, 6° Charles August Pfaehler ledig, 7° Johann Friderich Neulinger, diese drei letzteren Ziegelfabrikanten, sämmtlich in Straßburg wohnhaft, sowohl eigenen Namens wie auch als sich solidarisch mit einander stark tragend zu haben für 1° Catharina Friederika Neulinger, 2° Henriette Sophie Neulinger und 3° Daniel August Neulinger, alle drei damals noch minderjährig, wohnhaft in Straßburg, zufolge Kaufact des früheren Notars Zimmer daselbst vom 2. März 1830. transcribirt auf dem Hypothekenamte Strassburg den 24. April nachfolgend, Band 234 Nummer 97.. Der Kaufpreis betrug 3200 Franken (…)
10° Ein Wohnhaus in der Viehgasse N° 10 (…)
11° Ein zu Straßburg in der Krämergasse N° 5 und an das Ecke des Schneidergraben N° 2 und 4 gelegenes Besitzthum (…)
12° Section H N° 170 Feld Gewand Im Kammerfeld Bann von Strassburg (…)
Beschreibung des der Diaconissenanstalt vermachten Landguths genannt Schloessel (…)
acp 701 (3 Q 30 416) f° 72 n° 455 du 28.4. (Sterbf. Tab. Bd. 63 Bl. 43 Nr 132 – Sterbf. erkl. den 28 April 1880 Bd. 132 N° 41) – Nachlass, 1) Mobilien und Kleider 975, 2) baares Geld 12.472, 3) Forderungen und Mietzeinsen 65.668
Immobilien, nicht im Testament vergeben. Häuser (supra), Bann Strassburg 2 Parzellen Feld, Bann Rottelsheim 44 Parzellen zusammen 7 ha 9 ar 70 ctar
Bann Straßburg, Legat der Diakonissenanstalt (supra), nicht im Testament vergeben F 436, F 442 Reinwörth
Fils du serrurier Jérôme Marie Schoop, l’architecte Charles Auguste Schoop épouse en 1854 Eugénie Ott, fille de Chrétien Ott
1854 (13.12.), Strasbourg 7 (108), Edouard Stromeyer n° 250
Contrat de mariage – Ont comparu Monsieur Charles Auguste Schoop, architecte, non marié, demeurant et domicilié à Strasbourg, fils majeur et légitime de Mr Jérôme Marie Schoop, serrurier, et de Marie Madeleine Meyer, conjoints, demeurant et domiciliés en cette ville, stipulant en son nom personnel sous l’assistance et l’autorisation de ses père et mère ci presens comme futur époux d’une part
et Mademoiselle Eugénie Ott, non mariée, sans état, demeurant et domiciliée à Strasbourg fille majeure et légitime de Chrétien Ott, propriétaire et Mme Dorothée Schaeff, conjoints demeurant ensemble à Strasbourg stipulant sous l’assistance et l’autorisation de ses père et mère ci presens comme future épouse
acp 436 (3 Q 30 151) f° 2-v du 22.12. – stipulation de communauté de biens réduite aux acquêts, réserve d’apports et d’héritages
Donation par les conjoints Ott à la future épouse leur fille ce acceptant, chacun pour moitié en avancement d’hoirie d’une somme de 10.000 francs
Les apports du futur consistent 1) en une maison à Strasbourg rue des bouchers n° 164 estimée à 65.000
2) extances, marchandises et outils 140.450, ensemble 205.450
Don matutinal par le futur à la future en cas de survie d’une somme de 5000 francs
Donation réciproque par les futurs au survivant d’eux de l’usufruit de toute la succession, réductible en cas d’enfants
(Ficher domiciliaire) Schoop, Architect
Schoop August 3.2.23. Straßburg / gestorben, Religion E
Frau, Eugenie g. Ott 10.3.32 +
Kinder, Cecilie 20.11.55 ++
Moritz 5.1.62 † (?)
Wohnungsverhältnis.
Metzgerg. 39. Eigenth.
+ wohnt noch, Seiberling
++ wohnt noch Schutzm. 32
Revier 3 16.3.14
Charles Auguste Schoop vend à l’architecte Jacques Klein une partie du terrain sis 10, rue des Bestiaux qui sera loti et traversé par une rue tracée entre la ruelle des Hallebardes et la rue des Bestiaux, appelée rue Fritz, tel que le représente le plan joint à un acte des 6 et 7 décembre 1880.
1881 (29.7.), Strasbourg 10 (195), Frédéric Pierron n° 4188
Kauf 29. Juli 1881. – ist erschienen Herr Karl August Schoop, Rentner in Paris wohnhaft, früher Baumeister in Straßburg, und erklärte hiemit (…) zu verkaufen
an Herrn Jacob Klein, Baumeister wohnhaft in Straßburg, Käufer, hierzugegen und solches annehmend
Beschreibung, ein Grundstück von einem Gesamtflächeninhalt von 10 are 52 quadratmeter, welches theil eines größeren Grundstückes bildet, bestehend aus einem früheren Wohnhause und Garten in Straßburg, Viehgasse N° 10 (früher rue des bestiaux N° 41), welches Eigenthum in mehrern Loose verwerthet ist und eines, aus in seinem ganzen Tiefe von einer Straßen durchzogen werden wird, welche von der Viehgasse in der Hallebardengäßchen projectirt ist, und den Namen Fritzgasse tragen wird,
dasselbe stößt einerseits an Eigenthum Schmitter anderseits an ehemaligen Eigenthum Fritz, hinten Schoop, vorn an die projectirte Straße und hinten an Eigenthum Zocher, das also verkaufte Grundstück ist in seinem Umfang mit den Buchstaben B, C, F und G auf einem Flächenabriß bezeichnet, welcher gehörig in Straßburg gestempelt und registrirt einem Kaufvertrag beigebogen ist durch den unterzeichneten Notar den 6. und 7. Dezember 1880 errichtet. Dasselbe Grundstück ist verkauft im Stande in welchem sich desselbe würcklich befindet (…)
Eigenthums-Nachweis. Das Eigenthum wovon das verkaufte Grundstück theil bildet gehört dem Herrn Schoop on seiner Eigenschaft als Universallegatat des zu Straßburg am 10. November 1879, ledig und ohne Pflichterben zu hinterlassenen verlebten Rentners Herrn Johann Wilhelm Fritz, auf Grund dessen eigenhändigen Testaments vom 10 August 1873 und eines Codizills vom 5. Mai 1878, nach Vollziehung der gesetzlichen Formalitäten in der Amtsstube des unterzeichneten Notars laut act vom 20. November 1879 hinterlegt. Herr Schoop ist in Besitz dieses Universallegats eingewiesen worden, laut Ordonnanz des Herrn Landgerichts direktors Wachter in Vertretung des Herrn Präsidenten des Landgerichts Straßburg vom 15. Oktober 1880, wovon eine vollziehbare Ausfertigung als Urkunde auf des unterzeichneten Notars Amtsstube laut act durch denselben den 25 Oktober desselben Jahres errichtet hinterlegt wurde. Für das frühere Eigenthumsrecht der ganzen Liegenschaft berufen sich die Parteien auf einen Kaufvertrag durch den damaligen Notar Ludwig Friedrich Zimmer in Straßburg den 2. März 1830 errichtet. – Bedingungen (…). Civil und Hypothekenstand. Herr Schoop erklärt daß ein in erster Ehe unter dem Rechtsverhältnis der Gütergemeinschaft verheirathet ist, welche auf die Errungenschaft beschränkt ist, mit Frau Eugenie Ott, auf Grund ihres Ehevertrags durch den damaligen Notar Noetinger in Straßburg den 13. Dezember 1854 errichtet – Preis, 12.000 Mark
acp 716 (3 Q 30 431) f° 5-v n° 1630 du 2.8. (Genehmigt am 13. Dezember 1881 Bd. 720. Bl. 40. F. 16)
acp 720 (3 Q 30 435) f° 40-v n° 2924 du 19.12. – Pierron, am 13. Dezember 1881. Einwilligung gegeben von Frau Eugenie Ott zu dem von ihrem Ehemann August Schoop Rentner in Paris früher hier eingegangenen Kaufverträgen 1) Kaufvertrag vom 29. Juni 1881 abgeschlossen mit August Schmitten hier, 2) Kaufvertrag vom 29. Juni 1881 abgeschlossen mit Jacob Klein hier und 3) Kaufvertrag vom 8. Oktober 1881 abgeschlossen mit Salome Bausch hier 4) Kaufvertrag vom 8. Oktober 1881 abgeschlossen mit Johann St. Amand hier, alle vor Notar Pierron
L’entrepreneur de bâtiment Jacques Klein et sa femme Anne Marie Bachmann hypothèquent au profit de François Théodore Simonis, demeurant à Wolxheim, un terrain de 52 centiares sur lequel se trouve un grand bâtiment en construction à rez-de-chaussée et deux étages, le rez-de-chaussée servant de bureau au débiteur et le premier étage de logement, l’arrière étant occupé par un chantier et un atelier.
1881 (30.11.), Strasbourg 8 (114), Gustave Edouard Loew n° 13.651
30. November 1881. Obligation – sind erschienen Herr Jakob Klein, Bauunternehmer, und seine von ihm ermächtigte Gattin frau Anna Marie Bachmann, beide wohnend zu Straßburg, dieselben bekennen hiemit
an den zu Wolxheim wohnhaften Gutsbesitzers herrn Frantz Theodor Simonis, vertreten durch den mitanwesenden für ihn annehmenden Herrn Johann Baptist Leo Mengus, Eigenthümer, wohnend zu Straßburg, seinem bevollmächtigten laut (…), ein Darlehen zu 24.000 Mark zu schulden
zur Hypothek. Ein Grundstück zu zwölf Aren 52 Centiaren fläche, gelegen zu Straßburg, früher Viehegasse, nun an der neu angelegten Fritzgasse, einerseits herr Schmitter und herr Kieffer, anderseits herr Zocher, vorn die Fritzgasse, hinten die Schuldner
Zugleich mit allen darauf stehenden und noch erstehende Gebäulichkeiten. Zur Zeit ist ein großes Gebäude mit Erdgeschoß und zwei Stockwerken in Bau begriffen, die in Aussicht genommenen Gebäude bestehen hauptsächlich in einem Wohnhaus mit Bureau in Erdgeschoß und Wohnung der Schulder in ersten Stock, dann in einem Werkplatz mit Werkstätte hinter den haus.
Eigenthumsnachweis. Herr Klein kaufte einen Theil zu fünf Aren 40 Centiaten von dem Rentner und früheren Bauunternehmer herrn Karl August Schoop in Straßburg, laut Kaufvertrages vor dem dortigen Notar Pierron vom 29. Juli 1881 überschrieben am hiesigen Hypothekenamte den 25. folgenden Monats, Band 1956 Nr 48, den Rest zu sieben Aren zwölf Centiaren erwarben Ehegatten Klein tauschweise von den hiesigen Ehegatten Johann Friderich Zocher handelsgärter und frau Luise Grünewald, laut Urkunde des Notars Loew vom heutigen, welche vor oder mit gegenwärtiger Zur Registrirung kommt.
Erklärungen. Es erklären Ehegatten Klein, daß sie beide in erster Ehe und in gesetzlicher Gütergemeinschaft leben, indem sie vor ihrer Verheirathung keinen Ehevertrag geschlossen haben
Charles Auguste Schoop vend à l’entrepreneur de bâtiment Jacques Klein deux terrains sis 10, rue des Bestiaux sur lequels se trouvaient un bâtiment, représentés sur un plan (le terrain lavé en rose correspond à l’ancien n° 10, celui lavé en bleu à l’ancien n° 8 bien que ce numéro ne soit pas cité dans l’acte)
1882 (18.10.), Strasbourg 10 (200), Frédéric Pierron n° 5185
Kauf, 18 Oktober 1882 – sind erschienen Herr Karl August Schoop, Rentner, früher Baumeister, und Frau Eugenie Ott dessen von ihm hierzu gehörig ermächtigte Ehefrau miteinander in Paris früher in Straßburg wohnhaft, welche hiemit (…) verkauft zu haben, sowie hiemit zu überlassen
an Herrn Jacob Klein, Bauunternehmer, wohnhaft in Straßburg, Käufer hierzugegen und solches annehmend
Beschreibung. zwei Grundstücke, worauf früher ein Wohnhaus stand in Strassburg, Viehgasse N° 10 (früher rue des bestiaux N° 41) gelegen
und eine von einem Flächenraum von 255 quadratmeter 57 decimeter auf dem nachher erwähnten Flächenabriß mit einer röthlichen Farbe bezeichnet bildet die Eck der genannten Viehgasse und der Fritzgasse, stößt einerseits und vorn an genannten Straßen, anderseits an die hernach bezeichnete Parzelle und hinten an Eigenthum Zocher.
das andere von einem Flächenraum von 300 quadratmeter auf dem erwähnten Flächenabriß mit einer blauen Farbe bezeichnet stößt vorn an genannte Viehgasse, einerseits und hinten an Eigenthum Zocher, anderseits an die obige Parzelle, sowie obige Grundstücke aud einem Flächenabriß bezeichnet sind welche hier beigebogen bleibt (…)
Eigenthums-Nachweis. Diese Grundstücke sind ein Sondergut des Herrn Schoop um dieselbe ererbt zu haben in der Verlaßenschaft des Herrn Johann Wilhelm Fritz bei Leben gewesenen Rentner in Straßburg wo derselbe ledigen Standes und ohne Pflichterben zu hinterlassen den 10. November 1879 gestorben ist, auf Grund dessen eigenhändigen Testaments vom 10 August 1873 und eines Codizills vom 5. Mai 1878, welche nach vollziehung der gesetzlichen Formalitäten auf der Amtsstube des unterzeichneten Notars den 20. November 1879 hinterlegt auf Grund eines actes denselben tag errichtet. Herr Schoop ist in Besitz dieses Universallegats eingewiesen worden auf Grund einer Ordonnanz des Herrn Gerichtsdirektors Wachter in Vertretung des Landgerichts präsidenten von Straßburg vom 15. Oktober 1880, wovon eine vollziehbare Ausfertigung als Urkunde auf des unterzeichneten Notars Amtsstube auf Grund eines actes durch denselben den 25 Oktober desselben Jahres errichtet hinterlegt wurde. Ein Inventar des Nachlasses des verstorbenen Herrn Fritz ist durch denselben Notar den 28. April 1880 errichtet worden. Für das frühere Eigenthumsrecht berufen sich die Parteien auf einen Kaufvertrag durch den damaligen Notar Ludwig Friedrich Zimmer in Straßburg den 2. März 1830 errichtet. – Bedingungen (…). Civil und Hypothekenstand. Die Ehegatten Schoop erklären daß sie beide in erster Ehe unter dem Rechtsverhältnis der Gütergemeinschaft verheirathet sind, welche auf die Errungenschaft beschränkt ist auf Grund ihres Ehevertrags durch den damaligen Notar Noetinger in Straßburg den 13. Dezember 1854 errichtet – Preis, 12.000 Mark
acp 731 (3 Q 30 446) f° 29 du 24.10.
L’entrepreneur de bâtiment Jacques Klein et Marie Bachmann hypothèquent au profit de Charles Auguste Schoop le terrain lavé de rose contenant 255,57 mètres carrés.
1882 (18.10.), Strasbourg 10 (200), Frédéric Pierron n° 5186
Obligation, 18 Oktober 1882 – sind erschienen Herr Jacob Klein, Baumeister, und Frau Marie Bachmann dessen von ihm hierzu gehörig ermächtigte Ehegattin mit einander in Straßburg wohnhaft, welche hiemit erkennen für abgeschloßener Rechnung schuldig zu sein
an Herrn Karl August Schoop, Rentner, früher Baumeister, in Paris wohnhaft, Gläubiger hierzugegen und solches annehmend, eine Hauptsumm von 15.200 Mark (…)
Hypothekarische Verpfändung – Ein Grundstück von einem Flächenraum von 255 quadratmeter 57 decimeter nebst den darauf schon errichteten und noch später zu errichtenden Gebäulichkeiten, Rechten und Zugehörden, alles in Strassburg gelegen die Ecke bildend der Viehgasse und der Fritzgasse, stößt einerseits und vorn an genannten Straßen, anderseits an Eigenthum der Schuldner hinten an dasjenige des Herrn Zocher, sowie dieses Grundstück mit einer röthlichen Farbe bezeichnet auf einem Flächenabriß welcher an einem Kauffvertrag beigebogen ist durch den unterzeichneten Notar unter dem heutigen Datum errichtet und welchen noch vor gegenwärtigem Act der Einnregistrierung unterworfen werden wird.
Eigenthums-Nachweis. Diese Liegenschaft gehört den Ehegatten Klein um dieselbe mit einem andern daran grenzenden Grundstück von genanntem Herrn Schoop erkauft zu haben, auf grund eines Kaufvertrages durch den unterschriebenen Notar unter dem heutigen errichtet (…) der Kaufpreis belief sich auf 12.000 Mark, ist noch an Herrn Schoop geschuldet und haftet allein auf dem obenverpfändeten Grundstück.
(…). Civil und Hypothekenstand. Die Schuldner erklären, daß sie beide in erster Ehe unter dem Rechtsverhältnis der Gütergemeinschaft verheirathet sind, sie dieselben sich in Straßburg den 28. Oktober 1847 vereheligt haben
L’entrepreneur de bâtiment Jacques Klein et Marie Bachmann hypothèquent au profit de l’ancien architecte Frédéric Auguste Stuber et de l’architecte Frédéric Auguste Salomon un nouveau bâtiment à rez-de-chaussée et trois étages érigé sur une surface de 301 mètres carrés lavée de bleu sur le plan (c’est-à-dire l’ancien n° 8), exempte d’hypothèque puisque seule la surface lavée en rose sert de garantie pour le prix d’achat.
1883 (20.1.), Strasbourg 10 (201), Frédéric Pierron n° 5380
Obligation – sind erschienen Herr Jakob Klein, Bauunternehmer, und Frau Marie Bachmann dessen von ihm hierzu gehörig ermächtigte Ehegattin, mit einander in Straßburg wohnhaft, welche hiemit bekennen rechtmäßig schuldig zu sein
1) an Herrn Friderich August Stuber ehemaligen Baumeister in Straßburg wohnhaft, Gläubiger hierzugegen und solches annehemend eine Hauptsumm von 5600 Mark
2) und an Herrn Karl Emil Salomon, Baumeister in derselben Stadt wohnhaft, Gläubiger ebenfalls hierzugegen und solches annehemend, eine Hauptsumm von 8000 Mark, zusammen 13.600 Mark
hypothekarische Verpfändung. ein neuerbautes Wohnhaus bestehend aus Erdgeschoß und drei Stockwerken, Rechten und Zugehörden in Straßburg gelegen Viehegasse N° 10 (früher rue des bestiaux N° 41) auf einer Fläche von 301 Quadratmeter, einerseits und hinten stoßt dasselbe en Eigenthum Zocher und einseits an Eigenthum den Schuldern vornen genannte Viehgasse.
Eigenthums-Nachweiß. Dieses Haus ist durch Herrn Klein neu erbaut worden auf der erwähnten bodenfläche, welche derselbe mit einer andern Liegenschaft erkauft hatte von Herrn Karl August Schoop, Rentner früher Bau meister und Frau Eugenie Ott dessen Ehefrau mit einander in Paris wohnhaft auf Grund eines Kaufvertrags durch den unterzeichneten Notar den 18. Oktober 1882 errichtet im Hypothekenamte von Straßburg den 23. des nämlichen Monats Band 2017 N° 44 transcribirt und von Amtswegen eingeschrieben, Band 1484 N. 292. Diese Bodenfläche ist in genanntem Kauf mit einer blauen Farbe auf einem beigehefteten und einregistrirten Flächenabriß bezeichnet und die zu gleicher Zeiten erkaufte Liegenschaft mit einer rothen Farbe.
Der Kaufpreis den sich für beide Parzellen auf 12.000 Mark belief ist heute noch geschuldet allein durch denselben Kaufvertrag ist ausdrucklich bedungen worden daß dieser Kaufpreis nun auf den mit einer röthlichen Farbe bezeichneten Bodenfläche haften wird und demnach ist das Grundstück worauf sich das so eben verpfändete Haus befindet gäntzlich von jedem Privileg befreit.
Dasselbe Grundstück war ein Sondergut des Herrn Schoop um dasselbe ererbt zu haben in der Verlaßenschaft des Herrn Johann Wilhelm Fritz im Leben geweßenen Rentner in Straßburg wo derselbe ledigen Standes und ohne Pflichterben zu hinterlassen den 10. November 1879 gestorben ist, auf Grund dessen eigenhändigen Testaments vom 10 August 1873 datirt und eines Codizills vom 5. Mai 1878 nach Vollziehung der gesetzlichen Formalitäten auf der Amtsstube des unterzeichneten Notars dem 20. November 1879 hinterlegt auf Grund eines actes durch den unterzeichneten Notar denselben Tag errichtet. Herr Schoop ist in Besitz dieses Universallegats eingewiesen worden auf Grund einer Ordonnanz des Herrn Landgerichts direktor Wachter in Vertretung des Herrn Landgerichts Präsidenten in Straßburg vom 15. Oktober 1880, wovon eine vollziehbare Ausfertigung als Urkunde auf des unterzeichneten Notars Amtsstube auf Grund eines actes durch denselben den 25 Oktober desselben Jahres errichtet hinterlegt wurde, nach dem zuvor durch den unterzeichneten Notar zum Inventar des Nachlasses des Herrn Fritz den 28. April 1880 geschritten wurde. – Subrogation in die gesetzliche Hypothekenrechte der Frau Klein (…)
L’architecte Jacques Klein et Marie Bachmann vendent à Jean Chrisostome Kneer, professeur de dessin au lycée, et à sa femme Anne Fischer le bâtiment sis 8, rue des Bestiaux (remarque, l’origine de la propriété ne se limite pas au terrain vendu mais comprend tous les terrains de la nouvelle rue Fritz, le terrain vendu correspond à la surface lavée en bleu sur le plan)
1889 (26.3.), Strasbourg 1 (241), Alfred Ritleng aîné n° 13.856
26 & 27. März 1889. Verkauf – sind erschienen Herr Jacob Klein, Architect und dessen von ihm ermächtigte Ehefrau Maria Bachmann, beisammen in Straßburg wohnhaft, welche andurch erklären zu verkaufft (…)
an Herrn Johann Chrisostomus Kneer, Zeichnenlehrer am Lyceum und dessen von ihme ermächtigte Ehefrau Anna geborene Fischer, beisammen zu Straßburg, Viehgasse Nr. 8 wohnhaft, solidarische Käufer, hier gegenwärtig und dies annehmend
hernachbezeichnetes Besitzthum, nämlich Ein Wohnhaus gelegen zu Straßburg, Viehgasse N° 8, grenzend an Besitzthum Zocher, erbaut auf gewölbtem Keller, mit Erdgeschoß, drei Stockwerken und Speicher, Waschküche, Gartenhäußchen Hof und Garten, einerseits und hinten Besitzthum Zocher, anderseits Herr Klein und vorn die Viehgasse section O N° 943 und 943.
Eigenthumsnachweis. Herr Klein erklärt daß er dieses Wohnhaus erbaut hat, auf Terrain, welchen er auf folgende Art erworben hat. A. Zum theil von Herrn Karl August Schoop, Rentner und dessen Ehefrau Eugenie Ott, auf Grund eines Vertrages errichtet vor Notar Pierron zu Straßburg am 18. Oktober 1882, registrirt und im Hypothekenamte von Straßburg überschrieben den 23. November nachher Band 2037 N° 44 und amtlich angetragen Band 1482 N° 292.
B. Zum theil von denselben Eheleuten Schoop auf Grund eines Kauffvertrags, Quittung des Preises enthaltend, errichtet vor genanntem Notar Pierron den 29. Juli 1881 registrirt und im Hypothekenamte von Straßburg überschrieben am 27. August nachher Band 1956 N° 48.
Die von diesen zwei Erwerbungen herrührenden Terrains, waren im Sondergut des Herrn Schoop um derselbe ererbt zu haben in der Verlaßenschafft des Herrn Johann Wilhelm Fritz bei Leben Rentner in Straßburg wo derselbe ledigen Standes und ohne Pflichterben zu hinterlassen den 10. November 1879 gestorben ist, auf Grund dessen eigenhändigen Testaments vom 10 August 1873 und eines Codizills vom 5. Mai 1878, welche nach vollziehung der gesetzlichen Formalitäten auf der Amtsstube des Notars Pierron hinterlegt wurde, nach Urkunde dieses Notars vom 20. November 1879. Herr Schoop ist in Besitz dieses Universallegats eingewiesen worden auf Grund einer Ordonnanz des vom Landgerichts präsidenten vertretenen Gerichtsdirektors Herrn Wachter vom 15. Oktober 1880, wovon eine vollziehbare Ausfertigung bei Notar Pierron am 28. April 1880 aufgenommen worden. Für das frühere Eigenthumsrecht berufen sich die Verkäufer auf einen Kaufvertrag des damaligen Notars Louis Friedrich Zimmer zu Straßburg vom 2. März 1830.
C. und zum theil von Herrn Johann Friderich Zocher, Gärtner und dessen Ehefrau Louise Grünewald von Straßburg, auf Grund eines tauschvertrages ohne Herausgabe errichtet vor Notar Loew zu Straßburg, den 30. November 1881, registriirt. Herr Zocher erklärte in diesem Vertragen daß der durch ihn in Tausch gegebenen Theil Terrain von dem Nachlasse seiner Eltern der Eheleute Zocher-Kremer herrühret, davon einziger Erbe er ist, laut einem vor Notar Loew zu Straßburg am 30. November 1881 errichteten Notorietätsakte. – Bedingungen (…) (…) Gegenwärtiges Verkauf geschah vermittelst einem Preis von 40.000 Mark, inbegriffen die Kosten und Gebühren
acp 814 (3 Q 30 529) f° 46-v du 28.3.
Ueberschrieben Bd. 2446 N° 53 & eingeschrieben Bd. 1657 N° 305 im Hypoth. Straßburg den 4. April 1889
Originaire d’Ingtetten en Wurtemberg, Christstome Kneer épouse Anne Fischer, native de Riedlingen. Il quitte Stuttgart pour Strasbourg en 1880.
Ficher domiciliaire 603 MW 444
Kneer, Zeichenlehrer
Chrÿsostomus 28/1 56, Ingstetten, (Religion) K, (Staatsangehörigkeit) Württ.
Frau, Anna gb. Fischer, 12/11 57
Kinder, Chrÿsostomus 28/3 82 Strbg, † 26/10 84
Wilh. Oskar 11/1 84 Strbg
Josef 28/8 85 Strbg (sep.)
Emma 12/7 87 Strbg (sep.)
Karl 13/9 93 Strbg (sep.)
Mathilde 18/1 95 Strbg (sep.)
Wohnungsverhältnis. v. Stuttgart
15.5.80 Langstr. 8, Geiger
1.9.80 Kapauneng. 8, Uschmann
30.9.81 Metzgergießen 23, Nall
6.5.82 Rabenplatz 5, Miete
28.5.83 Mil. Lazar. str. 1, Schaaf
19.9.84 Schreiberstubg. 4,Sennel*
16.9.85 Waisenpl. 2, Klein
6.2.86 Dieleng. 2, Weinmann
16.3.89 Frankengarteng. 8, Knehr
Jean Chrisostome Kneer, professeur de dessin au lycée, et Anne Fischer hypothèquent la maison au profit d’Anne Stuber et de l’architecte Charles Emile Salomon
1894 (25.6.), Strasbourg 10 (245) Jean Hammann n° 542
25. Juni 1894. Obligation – Erschienen Herr Johann Chrisostomus Kneer, Zeichenlehrer im Lyzeum und dessen von ihm hierzu gehörig ermächtigte Ehefrau Anna Fischer, beide zu Straßburg Viehgasse N° 8 wohnhaft, dieselbe erkennen hierdurch (…) zu schulden und zwar
1. der frl. Anna Stuber, ledig, majorenne, geschäftslos zu Strassburg wohnhaft, eine Hauptsumme von 6400 Mark
2. dem Herrn Carl Emil Salomon, Architect zu Strassburg wohnhaft eine Summe von 8000 Mark, zusammen also 14.400 Mark
Unterpfandsbestellung. Stadt Strassburg. Ein Wohnhaus gelegen zu Strassburg Viehegasse N° 8 erbaut auf gewölbtem Keller mit Bodengeschoß drei Stockwerken & Speicher nebst Waschküche, Hof, Garten und Gartenhäußchen, Rechten und Zubehör, begrenzt einseseit und hinten von Eigenthum Zocher, andererseits von Eigenthum Klein, vorn der Viehgasse catastrirt unter Section O N° 943, 943.
Eigenthumsnachweis. Eheleute Kneer erklären daß sie vorbezeichnete Liegenschaft zufolge Kaufactes vor Notar Ritleng senior zu Strassburg vom 26. und 27. März 1889, überschrieben im Hypothekenamte Strassburg am 4. April darauf Band 2446 N° 53 von den Eheleuten Jacob Klein, Architect und Maria Bachmann zu Straßburg erworben haben. In dieser Urkunde ist constatirt daß Eheleute Klein das obige Wohnhaus erbauten auf Terrain welchen sie erworben hatten
Zum theil von Herrn Karl August Schoop, Rentner und dessen Ehefrau Eugenie Ott zu Straßburg, auf Grund Vertrags vor Notar Pierron daselbst vom 18. Oktober 1882, überschrieben im Hypothekenamte Straßburg den 23. November darauf Band 2037 N° 44
und zum theil von denselben Eheleuten Schoop auf Grund Kauffvertrags vor denselben Notar Pierron vom 29. Juli 1881 überschrieben im Hypothekenamte Straßburg am 27. August darauf Band 1956 N° 48
endlich zum theil von Herrn Johann Friderich Zocher Gärtner und dessen Ehefrau Luise Grünewald zu Straßburg laut Tauschvertrages vor Notar Loew dahier vom 30. November 1881. – Feuerversicherung(…)
Civilstand der Eheleute Kneer. dieselben erklären 1. daß die beide in erster Ehe leben 2. daß in dieser Ehe in Ermanglung eines vor Eingehung derselben abgeschlossenen Ehevertrags die gesetzliche Gütergemeinschaft besteht
acp 888 (3 Q 30 603) f° 93 du 2.7.
Jean Chrisostome Kneer, professeur de dessin au lycée, et Anne Fischer hypothèquent la maison sise 8, rue du Jardin Franck au profit de l’architecte Charles Emile Salomon
1913 (6.6.), Jean Hammann n° 11.631
Schuldbrief – Johannes Chrysostomus Kneer, Zeichenlehrer am Lyzeum und Anna geb. Fischer, Eheleute hier
zu Gunsten Carl Emil Salomon, Rentner, hier Wittwer Magdalena geb. Stuber über ein darlehen 4000 M.
Pfand, Wohnhaus hier Franckgartengasse N° 8
acp 1126 (3 Q 30 841. III) f° 93-v n° 667du 23.6.
Jean Chrisostome Kneer et Anne Fischer, mariés sous le régime de la communauté légale depuis 1881, vendent la maison à l’architecte Henri Salomon et à sa femme Marie Marthe Gœhrs.
1918 (7.12.), Victor Baer n° 9340
Verkauf ohne Auflassung – Eheleute Johannes Christostomus Kneer, Zeichenlehrer im Lyzeum und Anna Fischer in Strassburg Frankgartenstraße N° 8, verheirathet seit 1.9.1881 ohne Ehevertrag in Fahrnisgemeinschaft
an Eheleut Henri Salomon, Architekt, und Maria Martha Goehrs, hier Finckweilerstraße Nr 31. verheuratet in Errungenschaftgemeinschaft laut Ehevertrag Not. Riff hier vom 14.10.1907
Gemarkung Stadt Straßburg, Flur 31 n° 13 – 3,11 ar Hf, Whs u. NG. Frankgartenstraße N° 8, Nutzungswert 2300 M
Genuß ab 1.1.1919, um 40.000 Mark – Titel, Kauf Ritleng Alt vom 26 & 27. VI 1889
acp 1160 (3 Q 30 875. III) f° 34 n° 1294 du 27.12.