8, rue Brûlée
Rue Brûlée n° 8 – V 46 (Blondel), N 1263 puis section 64 parcelle 10 (cadastre)
Maître d’ouvrage, Jean Jacques Altorff, cocher – maître maçon Philippe Jacques Wolff (1772)


Rue Brûlée à droite, rue des Charpentiers à gauche (octobre 2018) – Façade rue Brûlée (septembre 2007)
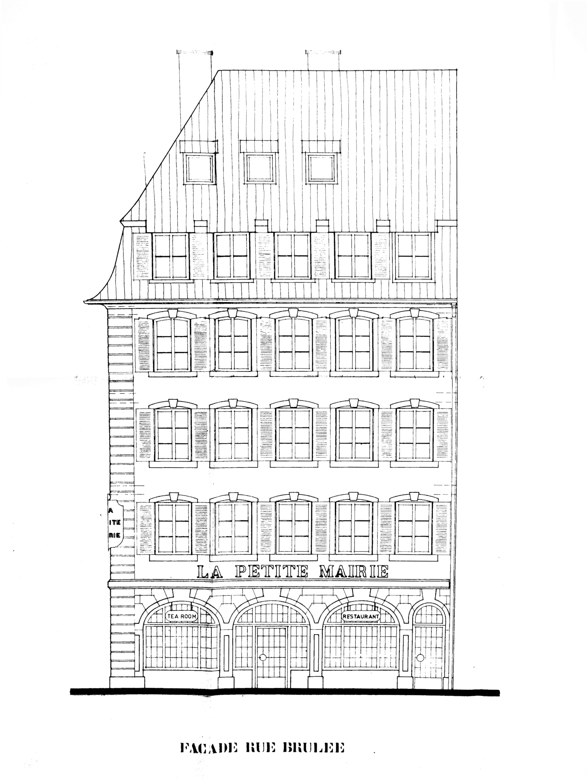
La maison inscrite au nom du gentilhomme Jean Raoul d’Endingen dans le Livre des communaux (1587) n’a pas d’avance. Elle appartient ensuite au messager de poste Laurent Vollbarth (1592-1617) puis aux tailleurs Jean Zittelé et Jean Georges Zittelé (1617-1691). L’ancien bailli au service de Nassau devenu receveur de l’hôpital de Strasbourg Jean Elvert en est propriétaire pendant quelques années (1700-1704). La maison appartient ensuite au cocher Jean Georges Heiland. Elle a un rez-de-chaussée et un étage sur le plan-relief (1727) et selon le rapport d’experts dressé après la mort de la veuve Heiland en 1743. Le cocher réformé Jean Jacques Altorff achète la maison en 1772, la fait démolir la même année, cède un terrain à la Ville pour satisfaire aux nouveaux alignements et charge le maître maçon Philippe Jacques Wolff de construire un nouveau bâtiment selon les indications fournies en mai 1773 aux Préposés aux feux. Le nouveau bâtiment a un angle arrondi en chaîne à refends. Le millésime 1772 et les initiales JJA se trouvent sur la faussé clé de l’arcade centrale. L’aubergiste Jean Jacques Teutsch qui habite au Vieux-Marché-aux-Grains achète la maison en 1794.


Plan-relief de 1727 (Musée historique, cliché Thierry Hatt) – La maison sur la gauche à l’angle des rues a un rez-de-chaussée, un étage et un niveau de lucarnes
Même endroit sur le plan Blondel (1765, AMS 1 PL 675) qui représente les nouveaux alignements

Elévations préparatoires au plan-relief de 1830, îlot 66 (Musée des Plans-relief) 1
L’Atlas des alignements (années 1820) mentionne un bâtiment à rez-de-chaussée et trois étages en maçonnerie. Sur les élévations préparatoires au plan-relief de 1830, la façade rue Brûlée (e’-f’) comprend trois arcades au rez-de-chaussée, trois étages à cinq fenêtres, une toiture à étage mansardé et un niveau de lucarnes. La façade (à gauche de e’) rue des Charpentiers comprend une fenêtre, une porte et six fenêtres au rez-de-chaussée, huit fenêtres à chacun des étages, la toiture étant semblable à celle rue Brûlée (on remarque que le nombre de fenêtres ne correspond pas à la réalité).
La maison porte d’abord le n° 26 (1784-1857) puis le n° 8.


Cour K’ – Initiale et millésime (JJA 1772)
Louise Marguerite Thaler qui est propriétaire de la maison qu’elle a achetée en 1837 avec son deuxième mari Jean Jacques Taret loue le rez-de-chaussée aux débitants de vin Jacques Heinrich (1864) puis Jacques Iffrig (1869). L’enseigne à la Petite Mairie est signalée par Adolphe Seyboth en 1868. Pierre Hœffel prend à bail le restaurant en 1889 au nom de la brasserie Hœffel et Compagnie et fait agrandir la salle de débit. Il devient propriétaire de l’immeuble en 1897.




Elévations rue Brûle et rue des Charpentiers (1973) – Photographie de 1960, dossier de la Police du Bâtiment
Arcades (mars 2018)
février 2026
Sommaire
Cadastre – Police du Bâtiment – Relevé d’actes
Récapitulatif des propriétaires
La liste ci-dessous donne tous les propriétaires de 1577 à 1952. La propriété change par vente (v), par héritage ou cession de parts (h) ou encore par adjudication (adj). L’étoile (*) signale une date approximative de mutation.
| Jean Raoul d’Endingen | ||
| 1592 | v | Laurent Volpart, palefenier, messager de poste, et (1578) Anne Dieter – luthériens |
| 1617 | v | Jean Zittelin, tailleur, et (1600) Judith Teuber – luthériens |
| 1650* | h | Jean Georges Zittelé, tailleur, et (1631) Marie Faber, (1635) Anne Marie Reichard – luthériens |
| 1691 | v | Jean Frédéric Walther, peintre, et (1682) Marie Salomé Heupel, d’abord (1665) femme de Jean Gaspard Dietzel – luthériens |
| 1700 | v | Jean Elvert, bailli, receveur, et (1688) Anne Stock – luthériens puis catholiques |
| 1704 | v | Jean Georges Heyland, cocher, et (1701) Anne Catherine Ziegler – luthériens |
| 1745 | h | Jean Daniel Heyland, cocher, célibataire († 1774) – luthérien |
| 1772 | adj | Jean Jacques Altorff, cocher, et (1765) Marie Susanne Bury – réformés |
| 1794 | v | Jean Georges Teutsch, aubergiste, et (1790) Marie Salomé Klein, d’abord (1785) femme de Jean Frédéric Liebold – luthériens |
| 1818 | h | Jean Frédéric Liebold, propriétaire, et (1814) Amélie Saum |
| 1837 | v | Jean Jacques Taret, major retraité, et (1811) Marie Louise° Marguerite Thaler, d’abord (1811) femme du capitaine François Banabé Grigy, remariée (1847) avec le notaire Eugène Kauffeisen (héritière) Eugénie Constance Beaujour et (1836) Nicolas Caspar, négociant, puis (1845) Joseph François Leduchat, capitaine |
| 1872 | v | Guillaume Lipp, boulanger, et (1819) Catherine Wagner, puis (1839) Catherine Mauler veuve du cordonnier Jean Pierre Koenig |
| 1875 | v | Jean Winckel, aubergiste, et (1868) Marie Anne Roser |
| 1885 | v | Charles Auguste Weber, pâtissier, marchand de farine, et (1855) Catherine Richert |
| 1897 | v | Pierre Hœffel, propriétaire de brasserie, et (1878) Marguerite Mathilde Knoderer |
| 1949 | h | Willy Cohn, fondé de pouvoir, et (1913) Madeleine Hoeffel |
Valeur de la maison selon les billets d’estimation : 550 livres en 1743
(1765, Liste Blondel) V 46 Jean George Heyland
(Etat du développement des façades des maisons, AMS cote V 61) Alltorff, 12 toises, 1 pied et 9 pouces
(1843, Tableau indicatif du cadastre) N 1263, Liebold, Jean Frédéric – maison, sol – 1,65 are (1,50)
Locations
1864, Jacques Heinrich, marchand de vins
1869, Jacques Iffrig, débitant de vins
1889, société de brasserie Hœffel et Compagnie à Schiltigheim
Livres des communaux
1587, Livre des communaux (VII 1450) f° 118
Le gentilhomme Jean Raoul d’Endingen règle 1 sol 6 deniers pour une marche en pierre (9 pieds ½ de long, saillie de 8 pouces) devant sa porte
Brandtgaß die Einseit
Juncker Hans Rudolff von Endingen hatt vor seiner Thüren ein Steinen Staffel 9 ½ schu lang, 8 Zoll herausser, Soll Allmend sein vnd bleiben, Bessert für das Niessen, j ß vj d
Protocole de tribus
1679, Protocole de la tribu des Maçons (XI 231)
La tribu des maçons tranche un litige entre Jacques Schæffer et Jean Georges Zittelin, propriétaire de la maison dans laquelle il a réparé la cheminée suite à un incendie. La facture est ramenée de 19 florins 1 sol 8 deniers à 17 florins.
(f° 10) Freÿtags den 9.ten Maÿ 1679. – Jacob Schäffer Contra Herrn Johann Georg Zittelin E. E. großen Raths beÿsitzern, klagt, daß demnach in vergangenem Winter sein Herrn Rathherrn Camin gebrand, Von unßen Gnädigen herren der augenschein eingenommen, auch das Camin als Zu eng und Zwar darinnen etwas holtz befunden, dahero Ihme Schäffer nicht allein das Camin Weiter Zumachen, sondern auch alles holtz so darinnen geweßen herauß Zuthun, anbefohlen Worden, als hätte Er dasselbe nachgehends solchem befehl gemäß guth und Wohl gemacht, Wie es dann auch also in beschenener Schau befunden Worden, Nun seÿe aber jetzt Er herr Rathherr des Zeduls halber /:so 19. fl. 1. ß. 8. d. anbelauffe:/ nicht Zufriden, Vermeinend, Er hätte Ihme Zu Viel gerechnet, Herr Rathherr Zittelin beschwähret sich, daß Ihme Kläger so viel fordere, klagt auch darüber, daß Er Ihme den durch zug durch das Camin ohne sein Verwissen entzweÿ geschnitten, und heraußgethan, Zumahlen Verdorbenen Kalck oder Zeüg Zu dem Camin gebraucht habe,
Kläger replicirt, Was den durchzug anlangt, seÿe es beÿ dem augenschein erkand worden, selbigen gleichbalden und aufs förderlichst Wegzuschaffen, den Kalck aber berührend, seÿe er nicht verdorben geweßen, dann keinen Maurer beÿ dießer Zeit, als zu Welcher mann Ihne fast nicht bekomen kann, dergleichen Verderbe.
Warauf dann der Zedul durchgangen und nach beschehener examination deßelbigen Erkant, Worden, Weilen sich befunden, daß darinnen umb 2. ß in Calculo geirret, auch in Zween posten und Zwar Wegen des Mörtels und Blatts auf das Camin etwas Zuviel gerechnet, als solle die Zedull auf 17 fl. hiemit taxirt sein.
Préposés au bâtiment (Bauherren)
1772, Préposés au bâtiment (VII 1415)
Philippe Jacques Wolff demande le 5 mai 1772 au nom du cocher Henri Altorff l’alignement à suivre pour reconstruire la maison. Les préposés déclarent qu’ils visiteront les lieux une fois le bâtiment démoli. Le maître maçon Wolff demande le 26 mai l’autorisation de poser derrière le théâtre les pierres pour construire la maison du cocher Henri Altorf. Les préposés constatent le 30 mai sur le plan que le propriétaire doit reculer la maison dans la rue Brûlée d’une toise quatre pieds 6 pouces et 8 lignes carrés et recevra de la ville 51 livres tournois 4 deniers à raison de 29 livres la toise carrée.
(f° 53) Dienstags den 5. Maji 1772. – Heinrich Altorf
Mr. Philipp Jacob Wolf, nôe. Heinrich Altorf, des Lehn Kutschers stellet MGhh. vor, daß gedachter Altorf N. Heiland gehörig gewesenes, in der Brand Gaß am Eck der Zimmerleuth Gaß gelegenes Haus an sich erkauft und dermalen willens seÿe solches neu aufbauen Zu laßen, bittet daher um Anweisung des Allignements. Erkannt, Solle quæstionirtes Haus anvorderist abgebrochen und sodann Augenschein eingenommen werden.
(f° 60-v) Dienstags den 26. Maji 1775. – Mr Phil. Jacob Wolf
Mr Wolf, der Maurer, bittet ihme Zu erlauben die Zu Heinrich Altorf aufbauendem Haus in der Brandgaß gelegen benöthigte Stein hinter der Comoedie Haus zu legen und zu hauen. Erkannt, Willfahrt.
(f° 64) Sambstags den 30. Maji 1772. – Heinrich Altorf
Wurde ein Augenschein eingenommen an Heinrich Altorf, des Lehn Kutschers am Eck der Brand: und Zimmerleuth Gaß gelegenem Haus: Platz, um ihme das Allignement anzuweisen, wornach sich derselbe in Aufbauung des Hauses zu richten.
Erkannt, Seÿe quæstionirte Behausung dem beÿliegenden Plan nach aufzubauen, und da gegen der Brandgaß die Behausung zurück weichen mus, welches Zusammen Ein quadrat Klafter 4. Schuh 6. Zoll 8. Linien ausmacht, als seÿe ihme Altorf davor als im 5. Canton liegend à 29. lb das Quadrat Klafter gerechnet, 51 livres 4 deniers Zu bezalen.
1774, Préposés au bâtiment (II 1416)
L’inspecteur du bâtiment Werner produit son rapport sur le terrain que Jean Jacques Altorff cède à la Ville pour élargir la rue, soit 3 toises un pied 6 pouces carrés à raison de 29 livres, soit 65 livres 5 sols
(f° 16-v) Dienstags den 22. Februarii 1774. – Joh. Jacob Altdorfer, Kutscher
Herr Bau Inspector Werner prod. schriftlichen Bericht und Ausrechnung pt° desjenigen Platzes so Joh. Jacob Altdorfer, der Kutscher an seinem in der Brandt Gaß gelegenen Haus dem adoptirten Allignement nach zu Erweiterung der Gaß Zum Allmend legen laßen, Zweÿ quadrat Klafter Ein schuh sechs Zoll antreffend, so à 29. livres als in dem Fünften Canton liegend 65 livres 5 sols beträgt, so von Seithen löblicher Stadt Ihme zu bonificiren, Erkannt. Bezalung.
Préposés aux feux (Feuerherren, 4 R 91)
Le maître maçon Wolff présente les travaux à faire rue Brûlée dans la maison du cocher Jacques Altorf. Un chaudron à lessive à droite de la cour au rez-de-chaussée, aux premier, deuxième et troisième étage à gauche un poêle vers la rue des Charpentiers et à l’arrière vers la rue Brûlée une cuisine avec fourneau et hotte, dans le bâtiment avant aux premier, deuxième et troisième étages un poêle vers la rue des Charpentiers et vers la rue Brulée une voûte avec accès à la cheminée, item aux premier et deuxième étage une chambre d’angle vers la rue, pourvue d’une cheminée à la française sur voûte.
(p. 279) Dienstags den 18.ten Maji 1773. – Jacob Altdorf der Lehn Kutscher will in seiner in der Brandgaß gelegenen behaußung au rez de chaussée rechter hand im hof auf dem grund einen bauch Kessel mit Camin schoß setzen, das rohr am steinern gäbel hinauf, Von allem holtz entfernt.
Im ersten stock lincker hand, Wie auch Zweÿten und dritten stock, jedesmal eine Stube gegen der Zimmerleuth gaß hinden daran eine Kuchen mit heerd und Camin schoß machen die rohr am steinern gäbel hinauf, von allem holtz entfernt.
Im vordern gebäu, ersten, Zweÿten und dritten stock jedes mal eine Stube gegen der Zimmerleuth gaß, und eine gegen der Brandgaß, hinden daran in jedem stock ein Vor Camin auf die gewölb wohl versehen setzen, die rohr mitten durchs gebäu, von allem holtz entfernt.
So dann im ersten und Zweÿten stock jedes mal ein eck Kammer gegen der gaß mit einem frantzösischen Camin auf ein gewölb wohl versehen setzen, die rohr mitten durchs gebäu, von allem holtz entfernt. Erkannt Willfahrt – Mr Wolff
Description de la maison
- 1743 (billet d’estimation traduit) La maison comprend au rez-de-chaussée à main gauche un petit poêle, dans la cour à droite une petite écurie à gauche la buanderie, une cave moitié solivée moitié voûtée, à l’étage poêle, chambre, cuisine, vestibule, dépense et petit poêle au-dessus desquels se trouve un très vieux comble, toiture en partie couverte de tuiles creuses, chambre à soldats, le tout estimé avec les appartenances et dépendances à la somme de 1100 florins
Atlas des alignements (cote 1197 W 37)
2° arrondissement ou Canton nord – Rue Brulée
nouveau N° / ancien N° : 8 / 26
Teutsch
Rez de chaussée et 3 étages bons en maçonnerie
(Légende)
Cadastre
Cadastre napoléonien, registre 21 f° 374 case 2
Taret Jean Jacques, major en retraite à Strasbourg
Kauffeisen Eugène notaire à Bischwiller
N 1263, Maison, sol et cour, Rue brulée 36
Contenance : 1,50
Revenu total : 342,78 (342 et 0,78)
Folio de provenance :
Folio de destination : D.on du 25. juillet 1844, 374
Année d’entrée :
Année de sortie : 1845
Ouvertures, portes cochères, charretières :
portes et fenêtres ordinaires : 40
fenêtres du 3° et au-dessus : 23
N 1263, Maison
Revenu total : 315,78 (315 et 0,78)
Folio de provenance : 374
Folio de destination :
Année d’entrée : 1845
Année de sortie :
Ouvertures, portes cochères, charretières :
portes et fenêtres ordinaires : 32
fenêtres du 3° et au-dessus : 18
Cadastre napoléonien, registre 23 f° 1262 case 1
Kauffeisen Eugène la dame
1874 Lipp Wilhelm, Brandgasse 8
1874 Winckel Johann, Wirth
1886/87 Weber Karl August, Getreidehändler
98/99 Höfel Peter, Bierbrauereibesitzer in Schiltigheim
(ancien folio 1010)
N 1263, Maison, sol cour, Rue brulée 8
Contenance : 1,50
Revenu total : 315,78 (315 et 0,78)
Folio de provenance : (374)
Folio de destination : Gb
Ouvertures, portes cochères, charretières :
portes et fenêtres ordinaires : 40
fenêtres du 3° et au-dessus : 23
Cadastre allemand, registre 32 page 496 case 5
Parcelle, section 64, n° 10 – autrefois N 1263
Canton : Brandgasse Hs N° 8
Désignation : 1,70
Contenance : Hf, Whs u. N.G.
Revenu : 1200 – 4000 – 6000
Remarques :
(Propriétaire jusqu’à l’exercice 1951), compte 553
Höffel Peter
(clos 1951)
(Propriétaire à partir de l’exercice 1951), compte 5010
Cohn Willy fondé de pouvoir épouse Madeleine née Hoeffel
(1091)
1789, Enquête préparatoire à l’Etat des habitants (cote VII 1295)
Canton 5, Rue 144 Brulée
26
pr. Aldorff, Jacques, Loueur de Carosses – Drapier
loc. Kumerer, Dominique, maître d’hotel du S Max – priv.
loc. Lonhoff, Baron, Officier Allemand
1789, Etat des habitants (cote 5 R 26)
Canton V, Rue 144 Brulée p. 270
26
Pr. Aldorff, Jacques, Loueur de Carosses – Drapiers
lo. Kumerer, Dominique, Mre d’hotel du Sr Max – Privilegié
lo. Lonhoff, Baron, Officier Allemand
Registre de population
600 MW 308 (1850 sqq.), rue Brûlée n° 8 (im 114)
(1) Jules Auguste Balthasar Colnago, né à Strasbourg en 1817, sergent en retraite
(2) Louise Kauffeissen née Thaler, née à Strasbourg en 1785, propriétaire, et sa servante
(3) Simon Félix Jeanjean, né en 1828 à Hablainville, employé au télégraphe
Adolphe Seyboth (éd. en allemand, p. 24) signale le restaurant Galliser en 1869, le restaurant Pascalis en 1868, dite d’klein Mairie
Albert Pascalin, né à Birrenlauf en 1833, employé à la banque de France, et sa femme Louise Schætzlé, habitent au 8, rue Brûlée avant de déménager 33, rue de l’hôpital (600 MW 343, im 193)
Louis Jacques Aloyse Galliser, né à Strasbourg en 1894, typographe et restaurateur, sa femme Catherine Barbe Schaan et ses enfants habitent au 8, rue Brûlée juin à octobre 1863 avant de déménager 1, place des Tanneurs puis 30. quai des Bateliers (600 MW 304, im 36)
Remarque, Le locataire Jacques Iffrig ne figure pas dans les tables des Registres de population
Annuaire de 1905
Verzeichnis sämtlicher Häuser von Strassburg und ihrer Bewohner, in alphabetischer Reihenfolge der Strassennamen (Répertoire de toutes les maisons de Strasbourg et de leurs habitants, par ordre alphabétique des rues)
Abréviations : 0, 1,2, etc. : rez de chaussée, 1, 2° étage – E, Eigentümer (propriétaire) – H. Hinterhaus (bâtiment arrière)
Brandgasse (Seite 16)
(Haus Nr.) 8
Ulrich, Wirt. 0
Kadlez, Damenschndrm. 1
Neuer, Klaufmann. 2
Hartfuss, Registrator. 3
Dreyer, Koch. 4.
Kretz, Wwe. 2.
Dossier de la Police du Bâtiment (cote 899 W 514)
8, rue Brûlée (1886-1993)
Le locataire Pierre Hœffel fait agrandir la salle de débit en 1889. Le propriétaire Pierre Hœffel fait aménager en 1904 des cabinets d’aisance aux étages sous la direction de l’architecte V. Brockmann. La maison est légèrement endommagée lors du bombardement aérien le 25 septembre 1944. Willy Cohn charge en 1960 l’architecte André Caspar de transformer les cabinets d’aisance au restaurant à la Petite Mairie. Le propriétaire Daniel Hamm charge en 1973 les architectes Kronenberger, Ittel et Strohmenger de remettre en état la toiture et les installations électriques ainsi que de construire des cloisons en briques dans le restaurant et au sous-sol. L’entreprise Auguste Strub transforme la toiture en 1976.
Exploitants de l’enseigne A la Petite Mairie (Zum kleinen Rathaus), Eugène Ulrich (1918) – Richard Hugli (1979), Maurice Singler (1989)
1903-1905 compagnie d’assurances Frankfurter Lebens-Versicherungs-Gesellschaft

Papier à lettres Brasserie et malterie à la Perle
Sommaire
- 1886 (janvier) – François Kili (peintre sur porcelaine, 6, Grande rue de l’Eglise, atelier 32, rue de l’Université) demande l’autorisation de poser un fourneau à coupelle qui reposera sur des piliers en fer dans sa cuisine au premier étage. – Autorisation – Dessin (fourneau, croquis de la cuisine) – Travaux terminés, janvier 1886
1886 (février) – Le même demande l’autorisation de poser une enseigne . Comme le n° 6 est en avant du n° 8, il souhaite porter la saillie réglementaire de 80 centimètres à un mètre. L’architecte municipal Nebelung répond en s’en tenant aux dispositions réglementaires – Autorisation – L’enseigne perpendiculaire est posée, février 1886. - 1886 – Le maire notifie Charles Weber (demeurant 9, place des Bouchers, ensuite place d’Austerlitz) de faire ravaler la façade – Le propriétaire demande un délai jusqu’en mai de l’année suivante. – Travaux terminés, septembre 1886
- 1887 – Charles Weber demande l’autorisation de réparer la fosse d’aisances qui n’est plus étanche. Croquis (la fosse se trouve à côté de la buanderie, à l’angle nord-ouest de la cour) – Autorisation – La Police du Bâtiment note que le tuyau d’aération doit être rehaussé – Travaux terminés, août 1887.
- 1889 (novembre) – La veuve Bischoff et fils demande au nom du locataire P. Hœffel, brasseur à Schiltigheim, l’autorisation d’agrandir la salle de débit et de la raccorder aux canalisations municipales. L’extérieur n’est pas modifié sauf un soupirail qui sera agrandi. – Autorisation d’agrandir la salle et un soupirail. En marge, croquis et calcul statique pour deux piliers qui remplacent un mur – Dessin sur claque
La Police du Bâtiment demande à Pierre Hœffel de renforcer les piliers. Hœffel répond sur papier à lettres (en français, Brasserie de le Perle, Pierre Hoeffel et Cie à Schiltigheim près Strasbourg) – La même fait remarquer que la cheminée est trop proche des combles en bois. Pierre Hœffel renvoie la Police du Bâtiment au marchand de farine Charles Weber, propriétaire de l’immeuble. Travaux terminés, avril 1890.
1889 (novembre) – L’entreprise de bâtiment Th. Bischoff (2, rue des Lentilles) demande au nom du locataire P. Hœffel l’autorisation de raccorder le bâtiment aux canalisations municipales – Travaux terminés, septembre 1892. - 1897 – Le maire notifie Charles Weber (demeurant 9, place des Bouchers, ensuite place d’Austerlitz) de faire ravaler la façade – Le nouveau propriétaire, la brasserie Hœffel de Schiltigheim, a fait repeindre la façade à l’huile sauf le pignon vers la cour voisine.
- 1897 – Les photographes Raab et Bunz (3, rue des Charpentiers) demandent l’autorisation de poser une vitrine (1,25 mètre de large). Pierre Hœffel y consent – Autorisation – La vitrine est posée, décembre 1897.
- 1897 – Le directeur de l’usine à gaz demande au nom de Hœffel l’autorisation de faire une prise pour environ 20 becs – Autorisation – Travaux terminés, novembre 1897.
- 1903 – La Police du Bâtiment constate que l’agence pour l’Alsace de la compagnie d’assurances Frankfurter Lebens-Versicherungs-Gesellschaft a posé sans autorisation une enseigne plate – Autorisation accordée à l’agent général J. Berger.
- 1904 – Ch. Koller (bicyclettes, voitures à moteur et phonographes) fait remarquer que les volets du restaurant Ulrich n’ont pas été modifiés alors que lui-même a été contraint de le faire. – La Police du Bâtiment écrit au propriétaire après avoir constaté que les volets du rez-de-chaussée et ceux des soupiraux s’ouvrent vers la voie publique. Pierre Hœffel répond sur papier à lettres illustré (brasserie et malterie à la Perle) qu’il a chargé le serrurier Burgard (demeurant rue de l’Ecrevisse) de faire les travaux – Les volets du rez-de-chaussée sont réglementaires, avril 1904.
- 1904 – Le sieur Hœffel au nom duquel l’architecte V. Brockmann (12, rue de Bitche) est autorisé à aménager des cabinets d’aisance aux étages. Dessins – Travaux terminés, juillet 1904
- 1905 – L’agent d’assurances Joh. Berger déclare retirer l’enseigne. – L’enseigne plate a été retirée, février 1905.
- 1905 – Le bijoutier C. Cellarius (Gold-Silberwaren-Geschäft) demande l’autorisation de poser une enseigne au 8, rue Brûlée (angle de la rue des Charpentiers n° 2) et au 21, rue des Juifs (angle de la rue des Charpentiers n° 23). – Autorisation de poser une enseigne perpendiculaire – L’enseigne est posée, mai 1905.
- 1905 (septembre) – La Police du Bâtiment constate que le Société strasbourgeoise de parquets et d’asphaltage (domiciliée à Schiltigheim, Strassburger Parketfabrik und Asphaltgeschäft) a posé un chaudron d’asphalte devant la maison. – Demande adressée à la Préfecture de police qui transmet le dossier au maire – Travaux terminés, décembre 1905.
- 1908 – Le peintre en bâtiment A. Heinze (37, boulevard Saint-Nicolas, ensuite boulevard de la Victoire) demande l’autorisation de poser un échafaudage sur la voie publique devant le restaurant Ulrich. La Préfecture de police transmet la demande au maire – Autorisation – Travaux terminés, octobre 1908.
- 1907 – Le maire notifie Pierre Hœffel de Schiltigheim de faire ravaler la façade – Le propriétaire estime que la façade n’est pas sale au point que le ravalement soit urgent. Il promet de faire faire les travaux dans les deux ans – Le maire accorde un an de délai – Travaux terminés, décembre 1908.
- Commission contre les logements insalubres – Propriétaire, Hœffel, à Schiltigheim – La locataire Scherdin (premier étage) dépose une plainte puis quitte le logement, 1911
1915, Commission des logements militaires, remarques en trois points – Travaux terminés, janvier 1916. - 1918 – Dossier ouvert suite à un courrier de la Division II. Eugène Ulrich demande l’autorisation de continuer à exploiter le débit de boissons – La Police du Bâtiment constate que le restaurant comprend une salle de débit, une salle accessoire, une cuisine et des cabinets d’aisance. Les locaux sont conformes aux prescriptions du 24 mars 1890, sauf leur hauteur (3,15 mètres au lieu de 3,50 mètres). Remarques sur la cheminée, les fourneaux et les cabinets d’aisance à remettre en état. Travaux terminés juin 1919.
- 1919 – Le maître tailleur Attig demande l’autorisation de poser une enseigne plate – L’enseigne est posée, juin.
- 1919 – La Police du Bâtiment constate que le serrurier J. Cunigel a fait poser une enseigne alors qu’il n’a ni son commerce ni son logement dans le bâtiment. – Joseph Cunigel répond que l’enseigne est en place depuis quinze ans et qu’il a simplement remplacé l’inscription en allemand par une nouvelle en français (Jos. Cunigel, ferblanterie & installation) – La Police du Bâtiment note que Cunigel n’a jamais demandé d’autorisation – La Police du Bâtiment classe l’affaire suite à la déclaration de Joseph Cunigel.
- 1920 – La veuve Marie Hahn (pompes funèbres) demande l’autorisation de poser une enseigne. La Police du Bâtiment refuse parce qu’elle se trouve au n° 6
- 1921 – L’orthopédiste Subran a remis en place un panneau publicitaire qui avait été temporairement autorisé. – Subran expose ses difficultés à se faire une clientèle depuis qu’il s’est établi à Strasbourg (novembre 1908) – L’affaire est provisoirement classée, juin.
- 1933 – Les voisins se plaignent de mauvaises odeurs provenant des cabinets d’aisance du débit de boissons – Les cabinets d’aisance ont été remis en état, septembre 1933.
- 1940 –Le peintre Freiburger (32, rue du Faubourg de Pierre) demande l’autorisation de peindre en allemand l’inscription A la Petite Mairie, Bière Perle (Zum kleinen Rathaus, Perle-Bier) – Dessin – Travaux terminés, octobre 1940.
- 1941 – Le peintre H. Ebel (14, rue de Barr à Schiltigheim) demande l’autorisation de ravaler la façade en gris et de repeindre les volets en gris plus clair. – La Police du Bâtiment déclare qu’un accord est nécessaire sur la teinte. – Le préfet de police (Polizeipräsident) donne son accord. – L’entrepreneur déclare que les travaux sont ajournés sine die, décembre 1941. – Dossier classé, avril 1944.
- 1942 – L’aubergiste retourne un avis de paiement pour deux lampes qui ne fonctionnent pas pendant la guerre.
- 1943 – F. Klein (43, rue Gutzkow à Francfort-sur-le-Main) demande l’autorisation de faire une inscription publicitaire sur la maison qui appartient à P. Hœffel, demeurant 7, rue Salzmann à Strasbourg (gérée par la Brasserie de la Perle à Schiltigheim) – Autorisation de poser une enseigne lumineuse selon les prescriptions anti-aériennes – L’enseigne n’est pas posée, janvier 1944
- 1944 – La maison est légèrement endommagée lors du bombardement aérien le 25 septembre 1944. Certificat de sinistre délivré à Mathilde Hau (troisième étage).
- 1957 – La brasserie Ch. Kleinknecht (52, route de Bischwiller à Schiltigheim) est autorisée à occuper la voie publique devant le restaurant à la Petite Mairie pendant le ravalement.
- 1960 – L’architecte André Caspar (1, boulevard Gambetta) dépose une demande de permis de construire pour transformer les cabinets d’aisance au restaurant à la Petite Mairie, propriété de Willy Cohn (demeurant 10, rue Trubner), section 64 n° 10 – Devis, dessin – Plan de situation (plan d’arpentage) – Le directeur départemental du Ministère de la construction émet un avis favorable, septembre 1960 – Arrêté portant permis de construire – Le gros œuvre (dalles en béton) est terminé, septembre 1960. Les travaux sont terminés, la réception finale ne donne lieu à aucune observation, novembre 1960.
- 1960 – La brasserie et malterie Charles Kleinknecht demande l’autorisation de poser une enseigne lumineuse au restaurant A la Petite Mairie (texte, Perle, Bière d’Alsace) – Photographie – L’architecte des Bâtiments de France émet un avis défavorable pour l’enseigne perpendiculaire et son matériau (plexiglas)
- 1972 – Avis de changement de débiteur (puits de descente). Ancien débiteur, Brasserie de la Perle. Nouveau débiteur, Daniel Hamm, demeurant 27, rue des Chasseurs à Schiltigheim
- 1973 – Daniel Hamm demande l’autorisation de poser une enseigne lumineuse (texte, La Petite Mairie) – Dessin (l’enseigne se trouve sous les fenêtres du premier étage) – Autorisation de poser trois enseignes – Les enseignes sont posées, juillet 1973.
- 1973 –Le docteur en droit Daniel Hamm dépose une demande de permis de construire sous la direction des architectes A. Kronenberger, G. Ittel et M. Strohmenger (6, rue d’Oslo), à savoir réviser la toiture, refaire les crépis et la peinture, poser trois enseignes (extérieur), construire des cloisons en briques dans le restaurant et au sous-sol, poser des plafonds suspendus, mettre en conformité les installations (intérieur). – Le contrôleur du travail transmet ses observations – Arrêté portant permis de construire, 7 mai 1973 – Le gros œuvre est achevé ( 30 mai 1973), les travaux intérieurs sont terminés (août 1973).
- 1975 – Daniel Hamm transmet sa nouvelle adresse (7, rue Salzmann à Strasbourg au lieu du 27, rue des Chasseurs à Schiltigheim)
- 1976 – L’entreprise Auguste Strub S.A. (21, rue Sleidan) demande l’autorisation de transformer la toiture – L’architecte des Bâtiments de France E. During émet un avis favorable – L’entrepreneur est autorisé à poser un échafaudage sur la voie publique – Travaux terminés, janvier 1977
- 1979 – Richard Hugli demande l’autorisation d’exploiter le débit de boissons de quatrième catégorie Petite Mairie. Le préfet demande un rapport à la Police du Bâtiment – La division II émet un avis favorable (sécurité incendie) – Le préfet autorise Richard Hugli, né en 1950, à exploiter le débit de boissons dans une salle au rez-de-chaussée.
- 1989 – Maurice Singler demande l’autorisation d’exploiter le débit de boissons de quatrième catégorie A la Petite Mairie. Le préfet demande un rapport à la Police du Bâtiment – Visite de la commission de sécurité contre l’incendie et la panique dans les établissements recevant du public. – Le préfet délivre l’autorisation
- 1990 – Rapport sur la résistance au feu des éléments de construction par le Centre Technique Industrie de la Construction Métallique
Rapport de la commission de sécurité - 1992 – La société Publi Est demande l’autorisation de poser une enseigne lumineuse à double face – Dessin (enseigne en fer forgé, textes La Petite Mairie – Bierstub Winstub) – L’architecte des Bâtiments de France Jacques Ernest émet un avis favorable – Arrêté portant autorisation de poser des saillies mobiles – L’enseigne n’est pas posée de manière réglementaire – Le maire autorise de laisser l’enseigne à sa place après constat qu’il est impossible de l’abaisser selon les prescriptions à cause du bandeau en pierre de taille.
- 1993 – Avis de changement de débiteur (puits de descente). Ancien débiteur. Daniel Hamm, demeurant 7, rue Salzmann. Nouveau débiteur, Frédérique Hamm, demeurant 27, rue Sainte-Elisabeth
Autre dossier
8, rue Brûlée (déclaration de travaux, 2006-2007) cote 1677 W 911
Relevé d’actes
La maison est inscrite au nom du gentilhomme Jean Raoul d’Endingen dans le Livre des communaux (1587)
Jean Raoul d’Endingen sollicite le droit de manance après avoir acheté une maison. Les Quinze fixent le droit à 12 livres par an, qui pourra être ramené à 11 livres si le demandeur sollicite une réduction.
1595, Protocole des Quinze (2 R 24)
(f° 34-v) Sambstag den VIII.Martÿ – J. Rudolff von Endingen
Lt. Hünerer weg. J. Rudolff von Endingen der seÿ vorhabens sich Inn meiner herren schutz vnd schirm Zubegeben, habs Ime geuolh. für Zubring. vnd darumb anzusuchen. Ist Ime angezeigt, solls Inn schrifften Kurtz verfassen vnd mein Hn übergeben.
(f° 43) Montag den XXIIII Martÿ – Rudolff von Endingen Ritterschafft
Ein schreiben von J. Rudolff von Endingen an meine hn XV ist verlesen, darinn er meldet, wie er ein behausung allhie gekaufft vnd begere sich schirmgeltd halb mitt mein hn Zu vergleichen. Erkandt, dem schaffner anzeig. wann d. Juncker härkombt, si werdt man mitt Ime handlen, soll sich dem xv.ner anzeig. vnd sollen herrn geordnet werden, die diß vnd was dem geschefft (dieweil es wid. für meine hn gewießen.) anhengig weitters bedencken, Geordnet. J. Büxner, H. Stedel, H. Fürst, H. Sunth.
(f° 51) Montag den 31. Martÿ – Rudolff von Endingen
J. Rudolff von Endingen halben (.dieweil er mornig. tags herkommen solle.) ist red gehalt. das mans Jetzo wohl könne außmachen, was Ime vff Zugel. Erkandt Ime 12. lib. abfordern, vnd so ver sichs beschwerdt, j lib fallen laßen.
Autres mentions de Jean Raoul d’Endingen dans ls registres du Magistrat
1598, XV (2 R 27) Rudolff von Endingen. 31. 48. 51. 63. pt° Lottringisch Saltz Rudolff von Endingen
1604, XV (2 R 32)
J Rudolff von Endingen. 77.
1605, Conseillers et XXI (1 R 84) Hans Ingoldt contra Rudolph von Endingen [in pt° arresti]. 33. [früchten zu Erstein] 60.
1615, Conseillers et XXI (1 R 96) Offenburg contra Endingen den vom Adel. (Hanß Heinrich Voltz wegen seines Schwagers von Endlingen Ca. Offenburg) 165.
Madeleine d’Endingen et son frère Jean Raoul d’Endingen vendent la maison au messager de poste Laurent Volpart pour 450 livres.
1592 (29. Septembris), Chancellerie, vol. 281 (Registranda Kügler) f° 203
Erschienen Oßwald Kruch, alls Schaffner der Edlen Ehrentreich Jungfr. Magdalenen von Ending. So dann auß beuelch der Edelln vesten Rudolff von Ending., bemeler Jungfr. brud. vnd Rÿchart Rohart von Neüwensteins Als geschwornen Curators vnd Vogts bemelt. Jungfr. Haben In nammen vnd vonn weg. derselb. Jungfr. Eins vffrecht. & verkaufft
Lorentz Volparten, Postbott
Huß Hoffestatt vnd Hofflin & mit all. geleg. In d. St. St. In Brand gaß einseit ein Eck an Bibnants gaß and.seit neb. Marx Grabisdaden erben sonst hind. vff Niclaus Schertzheimers, für freÿ ledig eÿg. Alles recht & In Schaffners wÿß, der Khouff beschehen vmb 450 Pfund
Originaire de Sickingen dans le Kraichgau, le palefenier Laurent Volpart épouse en 1578 Anne, fille de Jean Dieter de « Kunspach » (Ginsbach près de Krautheim).
Mariage, Saint-Pierre-le-Jeune (luth. p 249)
1578. Dominica VI Post Trinitatis. Lorentz Vollpart von Sickingen auff dem kreichgaw ein rittknecht beÿ D. Sigmundt Roth vnd Anna, Hans Dieters von Kunspach nachgelaßne tochter, Eingesegnet am Zistrag den 15 Julÿ (im 128)
Le messager de poste Daniel Herxheimer se démet de ses fonctions après avoir constaté qu’il gagne en un mois ce qu’il gagnait en une semaine peu de temps auparavant. Son employé Laurent Volpart se propose de le remplacer.
1587, Conseillers et XXI (1 R 64)
(f° 49) Sambstag den IIII. Februarÿ – Postbotten dienst. Daniel Herxheimer, Lorentz Volbart.
Daniel Herxeimer der postreutt. vbergibt p. Bütelbron ein Supplôn vmb erlassung seines diensts, Zu dem ihn allerhang vbgangs seines verdiensts verursacht, Nemblich nhun In Fünff vierthl Jharen die wochentliche besoldung so 16. ß von den Kauffleütt. nit mehr gelüffert, Zu dem auch vieler Hn dienstgeld geschmelert Werd. Alß das er Inn ein Monat Jetzt haben mög, was er Zuuor Zu einer wochen verdient, Bitt Ihn des diensts Zuerlassen, vnd Ihn künfftig von eim andern durch Ihn verrechtlich dienst desto mit mehrer befürderung kommen Zulaßen.
Vnd dieweil Lorentz Volbart sein diener solch. dienst nhun langezeit versehen, dessen gelegenheit weis, So bitt er denselb. an sein statt anzunemmen, der vbergibt auch p. Büttelb: ein Supplication vmb gemelt dienst. Erbeütt sich aller gereuten* Verrichtung. Erkant, Man soll ihnen beeden Inn ihren begeren Wilfahren, von herxeimern den dienst annemen, Ihnen sagen, wenns künfftig ein dienst ledig wird, mög er sich darum geschriben geben, dem Andern soll man dieß vff den Wolhalten vertrauwern. H. Mörsing, H. Hans Zum ochsen
Laurent Volpart sollicite plusieurs postes (messager du magistrat, mercenaire) avant d’être messager de poste. Il sollicite l’appui du Magistrat lors de son désaccord avec Jean Linsenmeyer, maître de poste à Rheinhausen.
1580 Conseillers et XXI (1 R 53), Einspänniger dienst. Lorentz Vollbert von Sickingen ein reysig knecht. 32. Jacob Mietz von Volmarshausen. 44. Lüpolt Lackern von Wien, Velt Trommeter. 427.
1581 Conseillers et XXI (1 R 54), Einspänniger und Soldner dienst. Martin Schmerck von Ehingen. 34. Philipp Hoffet der Reütter. 39. Hans Schweitzer Eÿttel von Eberbach. 217. Georg Geÿsell von Weissenburg. 228. Lorentz Volpart. 429. Simon Zeÿner etwann Soldner. 496. Hans Werner ein Reisiger Knecht. 513. Lorentz Colpert von Sickingen der guardi Knecht. 527. Martin Spiess burger alhier. 527.
1591, Conseillers et XXI (1 R 68) Müntzprecher, Lorentz Volpart. 79. 82. Moritz Roßbach. 79. 82. 113. 158.
1591, XV (2 R 20) Postbott. Lorentz Volpart [Clag]. 29.
1595, Conseillers et XXI (1 R 74) Lorentz Volbart der Postmeister vmb 1 f habern. 106.
1598, Conseillers et XXI (1 R 77) Lorentz Volpert der Postbott contra Johann Linsenmeyer (der sich mit de Postverwalter zu Reinhausen verglichen). 470. 492.
1599, VII 1314 Bauherren, Lorentz Volpert postreütter pt° holtz. 199.
1600, Conseillers et XXI (1 R 79) Lorentz Volpert contra Johann Linsenmeyer. 142.
1609, Conseillers et XXI (1 R 88) Lorentz Volpert contra Johann Linsenmeyer. 33. 60. 65.
1618, Conseillers et XXI (1 R 100) Lorentz Volpert vmb fürschrifft. 7. contra Ernst von Sockendorff. 31.
Laurent Volpart de Sickingen achète de droit de bourgeoisie en 1586 en s’inscrivant à la tribu des Tailleurs
1586, 3° Livre de bourgeoisie (4 R 105) p. 450
Lorentz Volphartt vonn Sickingenn Hatt daß burgrecht Kaufft vnd will Zuo denn Schneidern diennen acttum denn 30. Januarÿ 1586.
Laurent Volpart hypothèque la maison au profit d’Isaac Botzheim
1603 (3. tag Junÿ), Chancellerie, vol. 346 (Registranda Meyger) f° 210
(Inchoat. in proth. fol: 153.) Erschienen Lorentz Volbarth der Statt Straßburg Bostreütter burg. Zu St.
Hatt bekhandt vnd In gegenwertigkheit H Isaac Botzheim burgers Zu St. – schuldig sige 50 pfund
Zum vnderpfand ÿngesetzt vnd verlegt, Hauß, hoffstatt höfflin vnd Stall mit allen Iren gebeuwen In der St. St. In der Brandtgaß gegen dem Schlupff gelegen, Einseit ein eckhauß neben Niclaus Schertzheimer, Andersit neben J: Chuon von Mittellhauß. s. Wittwe, hind. auch vff Niclaus Schetzheimer stoßend so ledig vnd eÿg. wie man sagt
Laurent Volpart et sa femme Anne, fille de Jean Dieter de Künsbach en margraviat de Bade, vendent la maison au tailleur Jean Zittelé et à sa femme Judith, fille du tailleur Michel Theuber.
1617 (xvj. Mart.), Chancellerie, vol. 427 (Registranda Kügler) f° 90
Erschÿnen der Ehrenvest Lorentz Vollbarth geweßener Postbott vnd Frauw Anna sein eheliche gemehll weÿland hans diether Zu Künßbach Inn der Marggrauschaft selig dochter
haben In gegenseindes Ersamen M. Hanns Züttele Schnydern v. Fr. Judithen seiner ehegemahl wÿland Michel Theübers des Schnÿders selig dochter
Huß, hoffestatt hofflin vnd Stallung mit All Ihen gebeud geleg. Inn der S S Imm Brandgaß einseÿt ein eck an Boppernantzgaß anderseit neben Frauen Eua (-) witwe von Mittelhuß gebohrner von Wangen stoßend hinden vff H. Niclauß Steegheymer seligen erben für ledig eÿgen, V. alles Recht der Khauff besch. vmb 1100 gulden
Originaire de Stuttgart, le tailleur Jean Zittelin épouse en 1600 Judith, fille du tailleur Michel Teuber
Mariage, Saint-Pierre-le-Jeune (luth. p. 139 n° 26)
1600. Doîca Iubilate.13. April. Hans Zeÿtelin von Stutgart ein schneid. Iudith Michel Teubers des schneiders Tocht. Eingesegnet Zinst. d. 22. April.
Originaire de Waltenbruch (Waldenbuch près de Stutgart), Jean Zittelin devient bourgeois par sa femme Judith, fille du tailleur Michel Deuber
1600, 2° Livre de bourgeoisie (4 R 104) f° 781
Hanß Zittelin, v. Waltenbruch d. Schneid. empangt s. Burg: von Judith, Michel Deübers des Schneiders dochter, seiner ehelich. Hausfr. vnd will Zu den Schneid. diehnen, act. den 6.t Maÿ 1600.
Jean Zittelé et Judith Deuber hypothèquent la maison au profit de Joseph Wolff
1617 (xxv. Aprilis), Chancellerie, vol. 427 (Registranda Kügler) f° 122
(Inchoat. fo: 101) Erschÿnen hanns Zittele Schnyder vnd Fr. Judith deüberin sein eheliche gemahell
In gegensein der Ehrenhafft Joseph Wolffen Schnyder – schuldig sein 100 guldin
vnderpfand huß hoffestatt höfflin vnd Stallung lit annen Iren gebeud gelegen Inn der S. S Inn Brandgaß einseyt ein eck ane Bippernang gaß. anderseyt der Edlen Ehrentged. Fr. Eva Witwe vonn Mittelhaußen geborner von Wangen stoßend hind. Vff Niclaus Schertzheymers selig erben Welche noch verhafftet für Acht hundert guldin Zu fünffzehen batzen Zu Zÿlen zubezalen Lorentz Vollbarth alten post botten Sunst ledig eyg.
[in margine :] Erschienen H. Valentin Storck der Weißenschaffner in namen obgedachts Weißenhauß als welchem von Maria Zechin Jacob Wolffen hierin gedachten Creditoris haußfrawen der 1/3 theil Verlegirt vnd Christoff Reinhard der Glaß Kremer als Welchem offtgedachter Jacob Wolff die übrig. 2/3 theil v.legirt bekant in gegensein Georg Zittelin des Schneiders d. diße 100. fl sampt dem Zinß erlegt sein darfür q.tiert. Actum den 31.ten Martÿ A° 1640
Jean Zittelé hypothèque la maison au profit du tailleur Nicolas Wolff
1617 (xviij. Septembris), Chancellerie, vol. 427 (Registranda Kügler) f° 218
(Inchoat. fo: 198) Erschÿnen hanns Zÿttele der Schnyder
hatt in gegensein des Ehrenhafften Niclaus Wolffen auch Schnyders – schuldig sein 75 pfund pfenning
dafür Vnderpfand sein soll huß hoffestatt vnd Stallung mit allen Iren gebeuwen & geleg. Inn der S S Inn Brandtgaß einseit ein Eck am Bippernantz gaß andersyt Fr Euen Witwe von Mittelhaußen geborner von Wangen stoßend hind. vff Niclaus Schertzheymers selig. erben, Welche noch verhafftet für 650 guld. Lorentz Volbarth geweß. Postbotten
[in margine :] Erschienen Wittwe Niclaus Wolfen deß creditoris see. wittib und Kinder vogt H. Balthasar Wildermöhr vnd Hanß Caspar Wolff (…) Act. den 5. 9.bris 1635.
Jean Zittelé et Judith Deuber hypothèquent la maison au profit du tailleur Georges Wiss
1617 (8. Octobris), Chancellerie, vol. 427 (Registranda Kügler) f° 235-v
(Inchoat. fo: 216) Erschienen der Ersam hannß Zittele Schnÿder burger alhie vnd Frauw Judit Deüberin sein Ehelichen haußfrauw
Haben In gegensein des auch Ersamen Georg Wÿssen Schneÿders und burgers alhue – schuldig sigen 50 pfund pfenning
Zum Rechten Wissenthafften Vnderpfand ernänt vnnd ÿngesetzt Hoff, huß hoffestatt vnd Stallung mit allen andern Iren gebäuwen geleg. Inn der St. Straßburg Inn Brandgaß Einseit Ein Eck ane der Bippernants gaß, Anderseit Frauwen Euen von Mittelhusen geborner von wangen stoßend hinden vf Niclaus Schertzheÿmers seligen Erben, Welche noch verhafftet für 650 guldin Zu 15 batzen Lorentz Volpert geweßenen Postbotten Zu Zÿlen mit gebürendem zinnß zu bezahlen, wÿthers verhafftet für 100 guldin zu 15 batzen Joseph Wolffen Schnÿder So dann letztlich für 75 pfund pfenning Niclaus Wolffen auch Schnÿdern
Mentions de Jean Zittelé et de son frère Joachim Zittelé
1623 XV (2 R 51) Hanß Zittele Ca. Möhrin Zunfft. 46.
1624 VII 1339 Bauherren – Möhrin zunfft contra Hanß und Joachim Zittele, gebrüder Zu Rügern geordnet. 263.
1625 VII 1340 Bauherren – Möhrin zunfft contra Hans Zittele und Joachim Zittele. 21. 37.
Jean Zittelé hypothèque la maison au profit du notaire Hilaire Meyer
1625 (22. octobris), Chambre des Contrats, vol. 455 f° 441
(Inchoat. in Prot. fol. 375) Erschienen hannß Zittele der Schneÿder burger Zu Straßburg
hatt in gegensein h. Hilarÿ Meÿgers p.tonotarÿ – schuldig seÿe 50 Pfund
Zu vnderpfand eingesetzt vnd verlegt hauß, hoffstatt, höfflin vnndt Stallung, mit Allen Ihren gebeüwen & gelegen Inn der St: St: Inn der Brandt gaßen, einseit ein Eck Ane der Bippermantsgaßen, Anderseit der Edlen Vnndt Ehrentreichenn Frauwen Euæ wittwe Vonn Mittellhaußen geborne von Wang. hinden vff Niclauß Schertzheimers s. erben stoßend, Welche behaußung zuuor noch verhafftet Ist Lorentz Volpert s. Erben, Mehr vmb 75. lb d Niclauß Wolff dem Schneider, Item vmb 50. lb d Joseph Wolffen dem Schneidern Vnd dann Vmb 50. lb d hannß Friderich Leopard, Sunst ledig vnndt eÿgenn
[in margine :] Erschienen herr Hilarius Meÿer der Notarius für sich selbst und H Johann Peter Thomas Walliser burger alhie alß geordneter Vogt Georg Hartmanns gewesenen Schaffners deß wercks vnser Fr. Münst. mit weÿ: Fr. Anna Maria Meÿgerin see. erziehlter Kinder laß weÿ: H Hilarÿ Meÿers deß Notÿ vnd Creditoris see. resp. Kind. Vnd. Enckel, haben in gegensein hanß Zittelens see: Sohns hanß Georg Zittelens deß Schneiders (…) q.tirt d. 3. Febr. Anno 1642.
Jean Georges Zittelé hypothèque au nom de sa mère Judith Deuber, veuve de Jean Zittelé, la maison au profit des enfants de l’employé municipal Léonard Reichard.
1639 (12. Xbris), Chambre des Contrats, vol. 483 f° 923-v
Erschienen Hanß Georg Zittele d. schneider burger Zu St. Alß Vogt seiner Mueter Judith deüberin weÿl. hanß Ziterlens gewesenen Käufflers see. wittiben
hatt in gegensein weÿl. Lienhard Reichards gewesenen dreÿer Knechts see: vfm Pfenningthurn wittiben vnd Kindern Vögt hanß hemblers Cranmeisters und H Johann Böllers Schaffners alhie – schuldig seÿen L. lb
dafür Vnderpfand sein soll hauß und hoffstat mit allen and.en ihren gebäwen alhie in der Brandtgaßen ist einseit ein Eck gegen dem Luxhoff vber 2. seit neben den Edlen von Fleckenstein hind. vff die Edle von Sultz und ersternannte Fleckenstein stoßend gelegen, so Zuuor verhafftet vmb 50. lb d Georg Bronnen den Jüngern weißbecken It. umb 25. lb H. Hilario Meÿgern Noto.
La veuve et les héritiers de Jean Zittelé, Judith Deuber, Jean Georges Zittelé, Philippe Zittelé et le tuteur de Simon et Jean Zittelé hypothèquent la maison au profit de la fille de Jean Philippe Pschorr et d’Elisabeth Bruck
1640 (28. Aprilis), Chambre des Contrats, vol. 485 f° 309-v
Erschienen Weÿl. H Hanß Zittelen deß Käuflers seel. hinderlaßene Erben Vnd Witiben Vögt Hannß Georg Zittelen der Schneider für sich selbst vnd alß Vogt Judith deüberin seiner Muter, Philips Zittelen der Weißbeckh auch für sich selbsten und dann Balthasar Dürwanger der Kannengießer alß Vogt Simon und Hannß Zittelen
in gegensein Elisabethæ hannß Philips Pschoren mit Elisabeth Bruckhin erziehlten töchterlins Vogts H Johann Peter Gündels des Notÿ – schuldig seÿen 50. Lib.
dafür Vnderpfand sein soll hauß vnd hoffstatt mit allen andern ihren gebäwen, begriffen & alhie in der Brandgaßen ist einseit ein Eckh gegen dem Luxhoff Über, 2.seit neben den Edlen von Fleckhstein, hinden vff die Edlen von Sultz und ersternante Fleckenstein, stoßend geleg. so zuuor v.hafftet vmb 50. Lib. Georg Bronnen dem Jüngern Weißbecken Item vmb 25. Lib. H. Hilario Meÿgern Notario Notario, Item vmb 50. Lib. Lienhard Reichardts dreÿerknechts seel. Erben
La maison revient au fils Jean Georges Zittelé qui l’hypothèque au profit de son beau-frère Michel Reichard chapelain à Hanau
1662 (12. sept:), Chambre des Contrats, vol. 527 f° 492-v
Erschienen H hannß Georg Zittels der Schneid Burg. Zu Straßburg
in gegensein H. M. Michael Reicharts Gräffl. hanaw. hoff Caplans Zu hanaw seines Schwagers – schuldig seÿe 100 Pfund
Unterpfand sein soll hauß, hoffstatt, höfflin, mit allen deren Gebäwen, Begriffen, Zugehördten und Gerechtigkeit. alhie in der Zimmerleuth Gaß ist ein Eckh an d. Brandgaßen geg. dem Lützelburg. hoff hienüber und zwischen dem Gählingisch. und Fleckhensteinisch. höffen geleg.
Les experts estiment la maison à 350 livres lors de l’inventaire dressé en 1672 après la mort d’Anne Marie Reichard.
Jean Georges Zittelin, assesseur au Grand Sénat, hypothèque la maison au profit de la veuve Catherine Meyer.
1680 (30. 7.br), Chambre des Contrats, vol. 549 f° 589-v
Herr Johann Georg Zittelin, E.E. Großen Rhats alter beÿsitzer
in gegensein Herrn Abraham Kochen des handelsmanns alß Vogts Fraw Catharinæ Meÿerin, wittibin – schuldig seÿe 200 lb
unterpfand, hauß undt hoffstatt mit allen deren gebawen, begriffen, undt zugehördten alhier in der brandgaß einseit ist ein Eckh ahn der Zimmerleuth: oder Pergementsgaß, anderseit neben Conradt Simon dem barbierer, hinden uff die Adeliche Böcklische Erben stoßend gelegen
[in margine :] (…) in gegensein hn Joh: Elwerts Jurium Lti. Exs. u. Schafners im Spithal alß nunmahligen proprietarÿ hierinn versetzten Haußes (quittung) Actum den 15. april 1704.
Sibille et Jean Zittel hypothèquent la maison au profit du tourneur Jean Christophe Wagner
1683 (19. 9.br), Chambre des Contrats, vol. 553 f° 460-v
ut supra [Sibilla, Herrn Johann Georg Zittelins, E.E. großen Rhats geweßenen beÿsitzers nunmehr seel. hinterlaßene eheliche tochter mit beÿstandt Herrn Johann Gumbrechts des ältern undt herren Johann Jacob Schneiders beÿder alß auß E.E. Großen Rhats mittel Ihro zue Assistenten insonderheit Deputirter] mit beÿstand ut supra, ferners Johann Zittelin der Gremp
in gegensein Hannß Christoph Wagners des hohlträhers
daß Ihr beÿdter eheleiblicher Vatter Herr Johann Georg Zöttelin bereits beÿ seinen lebzeiten, Ihme Wagner schuldig worden seÿe 150. fl.
unterpfand, hauß und hoffstatt mit allen denen gebäwen, undt zugehördten alhier in der brandgaß, einseit ist ein Eckh ahne der Pimpernantsgaßen anderseit neben dem Adelich Böckelinischen hoff gelegen
[in margine :] Barbara gebohrne Wagnerin hans Georg Litschen des Hohltrehrs eheliche haußfrau und hierin gemelten hanns Christoph Wagners des Creditoris nun seel. leibliche Schwester, dero von demselben das hierinn verschriebene Capital d. 150. fl. vermög theil Registers von H. wolffgang Reinhard Von Auenheim Notario immatriculato in A° 1693. auffgerichtet erblich und allein zugefallen, hat in gegensein Hn Johann Andreæ Mergileti Stattrichters und Schaffners st Mariæ Magdalenæ allhier als Curatoris weÿl. fr. Mariæ Salome gebohrner Heupelin mit auch weÿl. H. Johann Caspar Dietzeln gewesenen stattrichtern ehelich erziehlt: und Nachgelaßener 2. Kinder alß denen d. hierin verpfändte hauß eÿgenthümblich gehörig (…), Act. den 11.ten augusti 1698
Les héritiers Zittelé vendent la maison au peintre Jean Frédéric Walther et à sa femme Marie Salomé Heupel.
1691 (19.7.), Chambre des Contrats, vol. 563 f° 611
Philipp Zittelin der Schwartzbeck alß Cessionarius Christoph Zittelin deß Cancelleÿ Silberbotten und lienhard Zittelin deß Verzogenen Schneiders, so dann Sybilla gebohrne Zittelin, Adam Braunen deß Kübler haußfrau
in gegensein H. Johann Friderich Walthers deß Mahlers und Maria Salome gebohrner Haüpelin deßen haußfr.
Eine behaußung, hoff, hoffstatt mit allen deren Gebäwen, allhier in d. Brand Gaß einseit neben der Zimmerleuth Gaß anderseit neben denen böckelischen Erben, hinden uff H. Conrad Simon dem barbierer stoßend gelegen, Welche behaußung (umb 200 lb, Mehr umb 650 lb, So dann umb 25 lb verhafftet), geschehen umb 225 pfund
Marie Salomé Heupel est veuve de Jean Gaspard Dietzel.
Fils du libraire Gaspard Dietzel de Montbéliard, Jean Gaspard Dietzel épouse en 1664 Salomé, fille de l’assesseur des Quinze Israël Dieffenbecher.
Mariage, Saint-Pierre-le-Jeune (luth. f° 143, n° 31)
1664. H. Johann Caspar Dietzel, hn Caspar Dietzel Burgers undt Buchhändlers in Mümpelgardt ehl. Sohn, Undt Jfr. Salome deß Weÿl. Ehrenvesten, Frommen, Fürsichtigen Vndt Wohl Weißen Herrn Israël Diefenbechers, deß beständigen Regiments der Herren XV. Wohlverdienten Beÿsitzers nachgel. ehl. Tochter. Copulavi Donnerst 30. Junÿ (im 155)
Jean Gaspard Dietzel devient bourgeois par sa femme un mois après son mariage
1664, 4° Livre de bourgeoisie p. 341
H. Johann Caspar Dietzel empfangt d. burgerrecht von seiner hausfrau Salome Dieffenbecherin weÿl. H. XV. Isaac Dieffenbechers sel. hind.lasener dochter vmb 8. gold. fl. so beÿ d. Cantzleÿ erlegt, ist zuvor ledigen Stands gewesen, will Zu E. E. Zunfft d. Schneid. dienen. Jurav. 25. Julÿ A° 1664.
Salomé Dieffenbecher meurt à l’âge de 42 ans en janvier 1665.
Sépulture, Saint-Pierre-le-Jeune (luth. p. 50 n° 73)
1665, Ianuarius. Fr. Salome Diefenbecherin, Hn. Johann Caspar Dietzel Haußfraw ætat. 42. ann. 7. Mens, Starb Zinst. 13. H. 2. anteluc. – Ward begraben Donnerst. 18. h/ H. 12. ad Lepros. (im 31)
Jean Gaspard Dietzel qui a étudié le droit épouse en 1665 Marie Salomé, fille du receveur Jean Heupel
Mariage, Saint-Guillaume (luth. f° 63 n° 15)
1665. Dnicâ II et III. p. Trinit. 4/11 Junÿ. Herr Johann Caspar Dietzel (hatt Jura studirt) Burg. alhie, v Jgfr. Maria Salome wlnd h Johann Heüppels, gewesenen Schaffners Zu St. Wilhelm nachg. tochter, undt herrn Johann Jacob Schötterlins Successori in officio et conjugio Stieff Tocht. Conf.d. 15.r dito [25. Maÿ] (im 51)
1681 (21.5.), Not. Lang (Jean Régnard, 29 Not 3) n° 28
Zuwißen und Kund seÿe hiemit, daß nach tödlichem ableiben weÿlandt des Wohl Ehrenvest und Großachtbahren Herrn Johann Caspar Dietzels, geweßenen Stattrichters und Schaffners des Closters und der Fabric zu St. Wilhelm alhier in Straßburg, nunmehr seel. und als ane deßen statt von unßern G. Herren Räth und XXI. der wohl Ehrenveste, Großachtbahr und wohlgelehrte herr Johann Jacob Schawmann gewesener hievoriger Procurator beÿ E. E.Statt gericht alhier Zu einem anderwerthigen Schaffner sowohl der Fabric als des Closters Zu gedachtem St. Wilhelm ernandt word. die Hoch: vnd wohl Edle, Veste, Fürsichtig und hochweiße herr Josias Städel dießer Statt hochverdienter Ammeÿster und Herr Elias Brackenhoffer, hochansehnlicher Assessor des beständigen. Geheimen Regiments der herren dreÿzehen beÿ löbl. Statt Straßburg, beede als obgemeldter Fabric Zu St. Wilhelm Jetzmahlig. hochverordnete Herren Pflegere hochgeneigtes belieben getragen, der Fabric schriffliche Documenta, so der in Gott ruhende herr Schaffner seel. in seiner verwahrung gehabt (…)
Und ist dieße revision und lüfferung bescheh. in Straßburg den 21. Maÿ Styli Veteris Anno 1681.
Marie Salomé, veuve de Jean Gaspard Dietzel, épouse en 1682 l’artiste peintre Jean Frédéric Walther, fils de l’artiste peintre Jean Walther.
Mariage, Saint-Pierre-le-Jeune (luth. f° 295)
1682. Domin: II post Epiphan: d. 15 Januarÿ hr. Johann Fridrich Walther d. Kunst Maler Weyl. hrn. Johann Walthers deß Kunst Mahlers auch bey E. E. großen rath geweßenen alten beÿsitzers, Nachgel. ehl. Sohn, W. fr. Maria Salome weÿl. hr. Joh: Caspar Dietzels geweßenen Stattrichters v. schaffners deß Collegÿ Zu S. Willhelm alhie nachgel. Wittwe. Copul. Donnerst. 26. Januarÿ (im 304)
Marie Salomé Heupel, femme de l’artiste peintre Jean Frédéric Walther, lègue la maison à ses deux enfants du premier lit, Catherine Salomé et François Ulrich Dietzel.
1693 (7.3.), Not. Kitsch (Jean, 1 AH 6296)
(Dispositio inter Liberos Frawen Mariæ Salome Heuppelin, Herrn Johann Friderich Walthers, Kunstmahlers ehelicher haußfrawen)
Fr. Maria Salome Heuppelin, Herrn Joh: Friderich Walthers, Kunstmahlers burgers alhier Zu Straßburg eheliche haußfraw krancken und schwachen leibs undt danenhero in einem beth sich enthatend, gleichwohlen von der Gnaden Gottes guten völloger sinnen undt verstandts (…)
darnach undt vor d. And. wolte Sie den vor Hn Notrô Großen sel. auffgerichteten letzten willen hiermit ferners confirmirt haben, außer deßen waß dem verstorbenen Sohn prælegirt.
Solchemnach undt Zum dritten, will die fr. Disponentin dennoch dieselbe Ihre Wohnbehausung in der Brandgaß auß Ihren ohnveränderten mitlen und geltern umb 1100 Gulden erkaufft, daß gedachte Behaußung Iren beeden noch lebend. Kindern erster Ehen den dietzeln Jgfr. Catharinæ Salome und Frantz Ulrichen umb dergleichen preiß prælegirt und vermacht seÿn solle,
Viertens, wolte die frau Disponentin gedachten diesen beeden geschwisterdten den dietzelln Zu einem vogt ernennet und erbetten haben herrn Joh: Andreas Mergilet, Statt richtern alhier.
So beschehen inn Straßburg Sambstags den 7. Martÿ Anno 1690 abendts Zwischen 3. 4. undt 5. uhren in gedachts Hn Walthers wohn behaußung dero undern vordern Stuben in die brandgaß undt Zimmerleüthgaß außsehend
(même acte dans Protholollum secundum, 1 AH 6295)
Marie Salomé Heupel meurt le 8 mars 1693 à l’âge de 45 ans.
Sépulture, Saint-Pierre-le-Jeune (luth. reg. 1687-1700 f° 69)
1693. Sonnt. d. 8. Martÿ Starb fr. Maria Salome hrn Joh: Friderich Walthers deß Kunstmahlers u. burgers alhier ehel. haußfraw ætat. 45 jahr v. 14. woch. Ihr Vatter war weÿl. Hr Johannes Heüpel, Schaffner deß Stiffts Zu S. Willhelm alhier, die Mutter weÿl. Fr. Maria Salome Weilandin. A° 1662 d. 20. Junÿ hatt sie sich Zum erstmahl verheürathet ahn weÿl. hrn Joh: Caspar Dietzel Stattrichtern v. Schaffnern deß Stiffts zu S. Willhelm alhier Nach dem solche aô 1679 d. 11. Augusti mit todt abgangen hatt sie sich Ao 1682. d. 26. Januarÿ Verehelichet ahn obgemelten hrn: Walther mit solchem in d. Ehe gelebet, bis ahn ihr Seel. Endt, wurdt Zinst. d. 10. Martÿ begraben nach S Gallen v. ihr alda parentiret von mir Johanne Heupelio Pastore Neopetr. [unterzeichnet] Johann Friedrich Walter der verstorbenen frawen Ehe Man (i 72)
Ce doit être le même Jean Frédéric Walther qui se remarie avec Marie Salomé, fille de l’administrateur de la douane Jean Philippe Brand
Mariage, Illkirch (luth. f° 70-v)
1695. D. 21. Sept. St. N. sind auß bewilligung Ihro Gnaden Regierend. H. Ammeisters, laut beiligenden Scheins, H. Johann Friderich Walther, Mahler vnd burger in Straßburg, deß. eltern Johannes Walther Rathh. v. burg. in Straßburg, vnd Catharina Wincklerin sein ehl. haußfr.
Vnd Maria Salome, Johann Philipp Brandt Zoll Keller Verwaldter, vnd burg. in Straßburg Vnd Maria Margarethe Kormännin, ehl. Tochter, copulirt vnd eingesegnet Word. [Unterzeichnet] Johann Friderich Walter alß hochzeiter, Maria Salome Brandin als hochzeiterin (i 78)
Compte que rend André Mergilet de la gestion des biens qui appartiennent à Catherine Salomé et François Ulric Dietzel provenant de leur mère et de leur demi-frère Jean Frédéric Walter. Jean Frédéric Walter, beau-père des pupilles, et Dumaine habitent la maison.
1697 (1. 9.br), Not. Oesinger (Jean Adam, 39 Not 2) n° 36
Rechnung Mein Andreæ Mergileths Schaffners deß Closters Zu den Reweren und nunmahligen Stattrichters, alß geordnet und geschworenen Vogts Jungfrawen Catharinæ Salomeæ und Frantz Ulrichs der Dietzeln, beeden Geschwisterten, Weÿland S: T: herrn Johann Caspar Dietzels ebenmäßig geweßenen Statt Richters und Schaffners deß Collegÿ Wilhelmitani mit auch Weÿl. frawen Mariæ Salomeæ gebohrner Heüpelin seiner Ehefrauen seel. ehelich erzeügter und hinderlaßene Tochter und Sohns, innhaltend, alles dasjenige Was ich seith dem 18. 8.bris Anno 1694 biß den 1.ten 9.bris Anno 1697. Ihrentwegen Eingenommen und außgegeben, auch sonsten in ein und andere Weeg Verrichtet und verhandelt habe – Erste Rechnung dieser Vogteÿ.
Bericht So dießer Rechnung Vorzusetzen. Zuwißen, nach deme weÿl. Fr: Maria Salome gebohrne Heüpelin, meiner Curanden Mutter seel. den 8.ten Martÿ A° 1693. dießes Zeitliche gesegnet, daß darauff hien und Zwar gleich den darauff nechst gefolgten 14. Aprilis auf Veranstalt. Mein vnd H. Andreas Schmidts Notarÿ alß geschwornen Vogts Johann Friderich Walters meiner beeden Curanden halb bruder Von Mütterlichen seithen hero, deroselben Verlaßenschafft durch H. Johann Philipp Schüblern Notarium publ. Inventirt, und darüber ein formliches Inventarium hierbeÿ sub lit. A. auffgerichtet und Verfertiget Word. (…)
Corpus ahne einer Behaußung so meinen beeden Curanden ins gemein Zuständig. Eine behaußung, hoffstatt, sampt allen andern deren gebäuden, begriffen, Weithen, Rechten, Zugehörden und Gerechtigkeiten gelegen alhier in der Statt Straßburg 1.seith ein Eck ahne der Zimmerleüth gaß anderseith neben der böckischen hoff in der Brandgaß hinden auff weÿl. H: Conrad Simon deß Barbierers seel. Erben stoß. Welche in dem Mütterlich Inventario fol. 14 nebst Ihren Documentis so mit N° 1 notirt. Dieße behausung und Zwar allein die Vndern gemach bewohnt H. Friedrich Walter der Kunstmahler meinen Curanden Stieffvatter und gibt Jährlichen auf Michaelis Zu Zinß 10. lb. So dann reicht Mr Dumain *lero beÿ Mr Lepas auß d. oberen gemachen Jahres ebenfalls auf Michaelis 21. lb
L’orfèvre François Ulric Dietzel et Catherine Salomé Dietzel, femme du pasteur Georges Chrétien Baltzer, vendent la maison à Jean Elvert, bailli du comté de Dabo, au service de Linange-Dabo
1700 (2.8.), Chambre des Contrats, vol. 573 n° 431
(prot. fol. 44.) Erschienen H. Frantz Ulrich Dietzel der Goldarbeiter, für sich selbst vnd alß seiner Anzeig nach schrifftlich bestellter Gewaldhaber Fr. Catharinæ Salome, gebohrner Dietzelin seiner leiblich. Schwester, Hn Georg Christian Beltzers, Pfarrherrn Zu Knieling. hochfürstl. Baden durlachischer herrschafft, mit beÿstand Hn Johann Andreæ Mergilietti, Schaffners deß Closters S. Mariæ Magdalenæ deren gewesenen Curatoris
hatt in gegensein Herrn Johann Elwert, J. U. Lti und hoch Gräfflich. Leining. daxburgischen Ambtmanns der Graffschafft Daxburg (…) verkaufft vnd Zu kauffen gegeben
Eine behaußung, Hoff, hoffstatt mit allen deren Gebaüen, Recht. vnd Zugehördt. allhier in der brandgaß, einseit ist Ein Eck an der Zimmerleuth oder Pimpernandsgaß, anderseit neben H. Johann Christoph Kellermann XV. hind. auff eben denselb. stoßend geleg., welche behaußung H. Balthasar Friedrich Saltzmann SS Theol. Doctori, vnd Vicario d. Neu Kirch. vmb 200 lb d Capital, Mehr Hn Johann Balthasar Krauthen, vmb 50 lb Capital, So dan H Johann Georg Fesenmeÿern den Glasern umb 75 pfund pfenning Capital verhafftet, sonst geg. männiglich freÿ ledig v eÿgen, Ist demnach solcher verkauff vnd Kauff über die angebenenen beschwerd. welche der Keüffer übernomm. Zugeang. vnd geschehen umb 325 pfund pfenning
Fils du superintendant Jean Philippe Elvert à Istein, le bailli de Dabo Jean Elvert et sa femme Anne Stock de Morhange deviennent bourgeois à titre gratuit en décembre 1699 en apportant cinq enfants. Jean Elvert s’inscrit à la tribu des Fribourgeois.
1699, 4° Livre de bourgeoisie p. 715
H. Johann Elbert Amptmann Zu Dachsburg Von Jstein weÿl: H. Joh: Philipp Elwers gew: superintendanten daselbst hint. sohn vnd anna Stockin Von Merchingen, seiner hausfraw empfangen das Burgerrecht durchauß gratis, mit ihren 5. Kindern ist es beÿ ordnung gelaßen worden, Vnd wird beÿ E. E. Zunfft der Freÿburger dienen. Jur. d. 19. Dito [Xbr] 1699.
Jean Elvert passe un contrat de mariage le 2 mai 1688 à Wolfskirchen avec Anne Stock, fille du chevalier Mathias Stock et d’Anne du Perron. Il est bailli de Lorentzen en 1685, grand bailli du comté de Sarrewerden et de la prévôté de Herbitzheim, bailli de Lixheim et de Dabo. Il se convertit au catholicisme. Il devient bailli de la seigneurie abbatiale de Saint-Jean-Saverne en 1699. Il acquiert en 1694 la seigneurie de Bourcheid-Kourtzerode près de Phalsbourg. (Alphonse Wollbrett, dans le Nouveau Dictionnaire biographique d’Alsace)
Etat des papiers de la tribu des Maréchaux dont le licencié en droit Jean Elvert est le maître en 1701.
1702 (19.5.), Not. Kitsch (Jean, 1 AH 6350)
Designatio über die jenige Protocolla und Scripturen so E. E. Zunfft der Schmidt gehörig und nach absterben weiland Johann Kitschen, geweßenen Notarÿ publicj Und Zunfft Schreibers beÿ gedachter Schmidt Zunfft befunden und solche den 19.ten Maÿ anno 1702. Von der Kitschischen Wittib und Erben S. T. Herrn David Kleinen, hueffschmidten undt E. E. Kleinen Raths nunmahligen Assessori und herrn Johann Andreæ Keifflin Jurium Practico undt gedachter Zunfft nunmahligem Wohlverordnetem Zunfft meistern als von erwehnter Schmidt Zunfft deputirten Herren geliefert und auf gedachter Schmidt Zunfft inn Verwahrung getragen worden, auffgerichtet wie volget.
Zwantzigen den anno 1701. wegen der Einlogierung, wie man sich Zuverhalten hatt
Item underschiedliche beÿlaagen und Quittungen Zu der Zunfftmeister Rechnung pro 1701.
Item ein bogen worauf Einnahm und ausgab stehet, welches Herr Johann Elwert Licentiatus Juris jetziger Rathherr undt pro 1701. gewesener Zunfftmeister dießer Zunfft geschrieben
Item das Zunfft Insiegel.
Urkundtlichen ist gegenwärtige Designation doppelt gefertiget, jedem theil ein Exemplar davon Zugestellt undt von den Von E. E. Zunfft der Schmidt beeden Deputirten Herren wegen der von der Kitschischen Wittib gethanen Liefferung der gedachter Zunfft Zuständiger Protocollorum und anderer Scrpturen Eÿgenhändig underschrieben undt die gedacht Kitschisch Wittib in optima forma davor quittirt worden. Actum in Straßburg ut supra, anno et Die
[unterzeichnet] David Klein, Johann Andreas Keifflin J. U. Pract: und p.t. Zunfftmeister beÿ EE. Zunfft der Schmide
Jean Elvert est élu receveur de l’Hôpital en 1702, assesseur des Conseillers et des Vingt-et-Un en 1708, assesseur des Quinze en 1710, échevin à la Lanterne puis chef de la tribu des Tanneurs, administrateur de l’Œuvre Notre Dame en 1721, assesseur des Treize en 1729.
1702 Conseillers et XXI (1 R 185) H. Rathh. Johann Elwerth würdt Spitahl schaffner. 260. Schwöhrt auff die ordnung. 263.
1703 Lanterne. Meuniers (XI 214) H Elwerth Schaffner in Spithal, Klag beÿ XV. 60-v.
1708 Conseillers et XXI (1 R 191) Johann Elwerth der Schaffner im Spittahl würdt XXI. 199.
1710 Conseillers et XXI (1 R 193) Herr Johann Ellwerth würdt XV.er. 84. vnd Schöff E. E. Zunfft Zur Lucern. 84. – H. XV. Johann Elwert würdt Oberherr beÿ denen Gerbern. 144.
1710 XV (2 R 114) Herr XV. Johann Ellwert wirt introducirt, 172, 209, 210.
1711 Conseillers et XXI (1 R 194) H. XV.er Ellwerth würdt Landpfleger Zu Marlenheim. 14. soll Ober (-)ß herr bleiben solang Er in dem Collegio Hh XV.en sein würdt. 11.
1714 XIII (3 R 64), H. Elwert Ambtmann unterstehet sich in hiesiger Statt Urtheil und decreta zu ertheilen, wirdt protestiert. 1714. 68.
1720 XIII ()3 R 67) die wegen des Leiningischen Hoffs mit H. Hoffrath Elwert angefangene Tractaten zerschlagen sich. 16. E. Löbl. Magistrats letzteres oblatum. 23. Wird H. XV. Elwert umb es seinen H. Sohn zu berichten, notificirt. 23.
1721 Conseillers et XXI (1 R 204) H. XV. Johannes Elwert Wird Zu einem Pfleger des Frauen Hauß erwöhlt. 304.
1722 Bauherren (VII 1390) Herr XV Johann Ellwert wird als Ober baw her præsentirt. 136.
1727 Conseillers et XXI (1 R 210) H. XV. Joh: Elwert Wird Zum Pfleger des Ostermeÿerischen Legats erwöhlt. 274.
1729 Conseillers et XXI (1 R 212) Zu Einem Dreÿzehner Wird H. XV. Johann Elwert erwöhlt. 460.
Jean Elvert est élu consul mais n’accepte pas ces fonctions en alléguant qu’il possède un fief. Le préteur royal rappelle que le consul qui possède un fief doit soit s’en décharger soit ne pas entrer en fonction.
1723, Conseillers et XXI (1 R 206)
(p. 386) Donnerstag d. 6.ten Januarÿ. 1724. – H. XV. Johann Elwert Wird Zu einem Regierenden Herrn Ammeister erwöhlt, und resignirt solche Dignität.
Die Churherren beruffen H. XV.r Johannes Elwert hinter das brett und führten ihn mit sich in die Fünffzehn Stub, kamen nachgehend Wiederumb, und berichteten, Welcher gestalten die Herren Räthe Wohl gedachten H. XV.er Elwert Zu einem Regirenden H. Ammeister für dieses neu angetrettene iahr, schlechtlich erhbarlich redlich und ungefährlich erkoßen hätten, und wünschten demselben eine Klückliche Regierung ersuchten anbeÿ den Regirenden Herrn Stätt: und Ammeister sich Zu ihme Zu Verfügen, so Sie auch gethan, nach einiger Zeit aber wieder gekommen und referirt, Waßmaßen de neu erwöhlte Herr Ammeister diese ihne per maiora vota conferirte Dignität nicht annehmen Wollen, aus ursachen Er ein Lehen besitze, Welches er Zu resigniren gar nicht gesinnet, wäre auch alles Zuspruchs ungeachtet, auff sothaner meinung fest gebliben.
Herr Prætor Regius ließ sich Vernehmen, Es wäre in der Ammeister Ordnung klar Versehen, daß Wann Einer Zum Ammeister erwöhlet Würde, der Lehen oder Ambacht hätte, unwisender Räthen will der sein Lehen oder Ambacht Zu stund. vffgeben und nit mehr haben, so soll er Ammeister sein und bleiben, Wolte Er aber solch Lehen oder Ambacht behalten und die nit uffgeben, so soll mann Zu stund ein andern an sein statt kießen, Weilen nun dieser Casus sich anietzo Zutrüge, Wäre nichts übrig akß Zufolg dieser ordnung eine anderweertige Almmeister Wahl Vorzunehmen. Vermittelsy gehaltener umbfrag War eine neue Wahl Erkandt, und denn Rathherrn, so Ins Eligendi haben, angezeigteb sich Wiederumb in der XV. Stub Zu begeben.
Nach Verfluß ohngefehr einer stunden kamen die Chur: Herren abermahlen, beruffen H. XV. Johann Georg Girßing hinter das brett (…)
Jean d’Elvert meurt le 6 septembre 1730, chevalier seigneur de Bouwitibeid et de Kourtzerode, veuf d’Anne Stock. Son corps est inhumé dans le cloître de l’église Saint-Pierre-le-Vieux.
Sépulture, Saint-Pierre-le-Vieux (cath. p. 98)
Anno domini 1730, die sextâ Mensis Septembris Mortuus est præclarus ac prænobilis dominus Joannes d’elvert eques dominus in bourcheid et Courcerod ac unus ex tredecim viris magistratus Argentinensis ætatis suæ 70 annorum viduus nobilis ac ornatæ dominæ annæ Stockin sacramentis pœnitentiæ Munitus et a Me infra scripto Canonico et plebano ad sanctum petrum Seniorem intra Argentinam die 8. eiusdem Mensis et anni in Claustro ecclesiæ nostræ collegiatæ contiguo prope portam atrii R. domini du* canonici collegiatæ nostræ sepultus est præsentibus testibus ac prænobilibus defuncti domini dominis filiis domino Josepho Philippo d’elvert satrapa daxbourgense et domino Joanne nicolao othone d’elvert supremi alsatici consilii advocato, et domino Michaele d’elvert consiliario Regio qui omnes subsignauerunt (im 53)
Jean Elvert, licencié en droit et receveur de l’Hôpital bourgeois, vend la maison au cocher Jean Georges Heyland et à sa femme Anne Catherine Ziegler.
1704 (9.8.), Chambre des Contrats, vol. 577 n° 397
(750, prot. fol. 54) Erschienen H. Johann Elwert J.U. Licentiatus vnd Schaffner des Mehrern Hospitals allhier
Hatt in gegensein Hanns Georg Heÿlands des Kutschers und Annæ Catharinæ gebohrener Zieglerin, vnd bekandt daß Er H. Elwert (verkaufft zu haben)
Eine behausung Hoff, Hoffstatt, mit allen deren Gebäuen, Begriffen, Weithen, Zugehörden, Rechten vnd gerechtigkeiten, allhier in d. brandsgaßen einseit ist ein Eck an der Zimmerleuth. od. Pimpernantz gaß anderseit neben & Hrn. Johann Christoph Kellermann XIII.ern Hinten auff Fr. Sibillam Christinam Zornin von Plobßheim geb. Von Pflitschburg Wittib, stoßend, gelegen, so gegen Männiglich freÿ ledig vnd eÿgen seÿe, Ist demnach solchen Verkauff vnd Kauff geschehen vmb 750 pfund
Le cocher célibataire Jean Georges Heyland de Schiltigheim achète le droit de bourgeoisie en février 1701 en s’inscrivant à la tribu des Gourmets.
1701, 4° Livre de bourgeoisie f° 727
Joh: Georg Heÿland der ledige Kutscher von schiltigheim, weÿl. Joh: Heÿlandts gew: tagners daselbst hint. sohn empfangt das burgrecht gratis vnd wird beÿ E. E. Zunfft der Weinsticher dienen. Jur. d. 26. Dito [febr:] 1701.
Fils du potier Jean Georges Heyland de Schiltigheim, le cocher Jean Georges Heyland épouse en 1701 Anne Catherine, fille du cordonnier Jean Michel Ziegler : contrat de mariage dont la minute n’est pas conservée, célébration
1701, Not. Pantrion (Jacques Christophe, répert. 65 Not 45)
Eheberedung – Joh: Georg Heÿlandß fuhrmans, vnd Jfr Annæ Catharinæ Zieglerin
Mariage, Temple-Neuf (luth. f° 117-v n° 17)
1701. Mittw d. 13. April wurden nach ordent. außruff. copulirt Johann Georg Heÿlandt s. ledige Gutscher N. alhier seil. Johann Georg Heÿlandts, des geweß. Hänffers v. B. in Schiltigheim, hiesig. hsch. nachgelaß. ehl. Sohn v. J. Anna Catharina weil. Johann Michael Zieglers deß geweßenen schuhmach. v. B. allhier nachgelaß. ehl. tochter, x, + sind beeder hochzeiterleuthe handzeich. (im 119)
L’inventaire dressé en 1730 après la mort de Jean Georges Heyland n’est pas conservé.
1730, Not. Pantrion (Jacques Christophe, répert. 65 Not 45)
Inv: über Joh: Georg Heÿlands geweß. Kutschers allh: Verl:
Anne Catherine Ziegler meurt en 1744 en délaissant deux fils cochers célibataires. Les experts estiment la maison à 550 livres. L’actif de la succession s’élève à 731 livres, le passif à 721 livres.
1744 (21.4.), Not. Lichtenberger (Jean Frédéric, 6 E 41, 314) n° 331
Inventarium über Weÿland der Ehren und tugendsamen Frauen Annæ Catharinæ Heÿlandin gebohrener Zieglerin, auch weÿland des Ehren und vorgeachten Johann Geörg Heÿlands geweßten Kutschers und burgers allhier Zu Straßburg auch seel. hinderlaßener wittib auch seel. Verlaßenschafft auffgerichtet Anno 1744. (…) nach ihrem Montags den 19.ten aug. des nechst Hingelegten 1743.ten Jahrs aus dießer welt genommenen tödlichen hintritt genommenen tödlichen hintritt hie Zeitlichen verlaßen – So beschehen in der Königlichen Statt Straßburg auf Dienstags den 21.ten Aprilis Anno 1744.
Die Defuncta Hatt ab intestato Zu Erben Verlaßen wie folgt. 1. Johann Daniel Heÿland, den leedigen Kutscher und burgern allhier, welcher in Persohn dießem geschäfft abgewartet, So dann 2. Johann Michael Heÿland, auch leedigen Kutscher und burgern allhier so ebenfalls dießer Inventur Persönlichen beÿgewohnt, Beede der abgeleibten seel. mit Eingangs ernanntem Ihrem auch seel. verstorbenen Ehemann ehelich erzeugte Söhne und ab intestato Zu gleichen portionen und antheilern verlaßene Erben
In einer allhier Zu Straßburg ane der brand Gaß gelegener in dieße Verlaßenschafft gehörigen und hernach beschiebener behaußung befunden worden, wie folgt
Eÿgenthumb ane einer Behaußung. Nemblichen eine Behaußung, Höffl. und Hoffstatt, mit allen deren Gebäuden, begriffen, weithen, Zugehörden, Rechten und Gerechtigkeiten, gelegen allh. Zu Straßburg ane der Zimmerleüth v. Brandgaß, eins. ist ein Eck ane ged. Zimmerleuthgaß, Anders. neben Herrn Schaffner Philipp Christian Winther, hinten auf H. Rathh. Joh: Michael Friden seel. Fr. W. und Erben stoßend, welche behaußung über das hernach unter den passivis eingetragen darauff hafftend restirende Kauffschillings Capital freÿ leedig und eigen, durch (die Werckmeistere) vermög einer von denenselben ad Conceptum gelüfferter schrifftlch. Abschatzung vom 17.t 8.br. 1743 æstimirt pro 1100. fl. od. 550. lb. Darüber besagt ein teutscher Pergamentener Kauffbrieff, in allhiesiger Cantzleÿ Contract Stub gefertiget, und mit dero anhangendem Insiegel verwahrt, datirt den 9. aug. 1704.
Series rubricarum hujus Inventarÿ. Copia der Defunctæ auffgerichteten Codicilli et resp. Dispositio inter liberos
Sa. haußraths 38, Sa. Kutschen sambt Zugehördem Geschirr 80, Sa. Pferd 25, Sa. Heus und habern 12, Sa. Wein und Faß 21, Sa. Silbers 1, Sa. Goldener Ring 1, Sa. Eigenthums ane einer behaußung 550, Summa summarum 731 lb – Schulden 721, Nach deren Abzug 9 lb
Abschatzung dem: 17. oct. 1743. Auff Begehren weillandt der Ehr und tugendsamen Frau Anna Cathrina heillandtin gebohrner Ziglerin seel. Hinder Laßenen Erben ist eine behausung allhier in der Statt Straßburg, in der Zimerleuth gaßen, gelegen, ein seitß ein Eck in die Brandgaßen, anderseitß an H. schaffner witwen hinden auff H. rahtherrn fritten seel. frau wittib und Erben Stoßen, welche behausung ein gangß daß hauß Ehren Lincker handt ein Stübell daß hoffer* rechter handt ein Kleiner Stall Lincker handt die Puck Kuche, ein halbgewölbt und getrëmbter Keller oben dar über ein Stuben Cammer Kuchell hauß Ehren ein Nebens Cammer und Stübell worüber ein sehr alter tachstull daß tach Zum theill mit hollziglen belegt, soldaten Cammer sambt aller gerechtig Keidt wie solches turch der Statt Straßburg geschwornen werck Meister sich in der besichtigung befunden und Jetzigen Preÿß nach angeschlagen wirdt Vor vnd umb. Ein Tausent und Ein hundert Gulten
Bezeichnuß der Statt Straßburg geschwornen wërck Meisteren [unterzeichnet] Johann Peter Pflug Lohner, Michael Ehrlacher Werck Meister deß Meinsters, Johann Jacob Biermeÿer Werck Meister deß Zimmerhofs
Jean Michel Heyland cède sa part de maison à son frère ainé Jean Daniel Heyland
1745 (26.2.), Not. Lichtenberger (Jean Frédéric, 6 E 41, 314) Joint au n° du 21 avril 1744331
(Inventarium über Weÿland Frauen Annæ Catharinæ Heÿlandin gebohrener Zieglerin, auch weÿland Johann Geörg Heÿlands geweßten Kutschers und burgers allhier Zu Straßburg auch seel. hinderlaßener wittib auch seel. Verlaßenschafft)
(f° 7) Eigenthumb ane einer Behaußung berührend.
Die in dem Verlaßenschafft Inventario à fol: 44.b biß fol: 46.a beschriebene Behaußung, höfflein und hoffstatt, mit allen deren Gebäuden, begriffen, Weithen, Rechten, Zugehördten und Gerechtigkeiten, gelegen allhier Zu Straßburg ane der Zimmerleüth: und Brandgaß, so einseith ein Eck an gedachter. Zimmerleuthgaß, anderseith neben H. Schaffner Philipp Christian Winther, hinten auf H. Rathh. Johann Michael Friden seel. Frau Wittib und Erben stoßend, ist von Johann Michael Heÿland, dem Jüngern Sohn, mit beÿstand und Einwilligung Hn Joh: Sontags, des Schneiders und burgers allhier, seines Assistenten
seinem ältern Bruder Johann Daniel Heÿland,
in ohnvertheiltem Erbe eigenthümlichen cedirt und überlassen, von Ihme dem ältern Sohn, mit Consens und Einrathung H. Rathh. Johann Ulrich Cammerers, übernommen worden vor und umb den Preÿß der 4000 Gulden (…) Darüber besagt ein teutscher pergamentener Kauffbrieff, in allhiesiger Cantzleÿ Contract Stub gefertiget, und mit dero anhangendem Insiegel verwahrt, datirt den 9. aug. 1704. – unterschrieben Straßburg den 26. Februarÿ 1745.
Jean Daniel Heyland hypothèque la maison au profit d’Anne Marie Mappus, veuve du conseiller Jean Michel Frid.
1747 (17.7.), Chambre des Contrats, vol. 621 n° 485-v
Johann Daniel Heÿland der Lehn Kutscher
in gegensein H. Johann Friedrich Fried Prof. Philosophiæ Practici und Capituli Thomani Canonici als mandatarius seiner mutter Fr. Annæ Mariæ geb. Mappußin weÿl. H. Rathh. Johann Michael Friden Wittib – 1000 pfund
unterpfand, eine behausung, höfflein und hoffstatt ane der Brandgaß, einseit neben H. Schaffner Winter, anderseit ist ein Eck ane der Zimmerleuthgaß, hinten auff Fr. Fried schuldgläubigerin
Jean Daniel Heyland hypothèque la maison au profit du confiseur Geoffroi Metzger.
1766 (6.6.), Chambre des Contrats, vol. 640 f° 321
Johann Daniel Heÿland der Lehnkutscher
in gegensein Georg Jacob Lichtenberger des goldschlagers innahmen Gottfried Metzgers des zuckerbäckers – schuldig seÿen 150 pfund
unterpfand, eine behausung cum appertinentis in der Brandgaß, einseit neben
Fr. Winterin geb. Wilhelmin anderseit ist ein eckh ane der Zimmerleuth gaß, hinten auff Fr. Friedin
Jean Daniel Heyland fait dresser l’état de sa fortune pour cause de dettes. La maison est estimée à son prix d’achat, soit 2 000 livres. En annexe, procès verbal d’enchère infructueuse sur la mise à prix de 3 500 florins (1 750 livres).
1771 (8.5.), Not. Lichtenberger (Jean Frédéric, 6 E 41, 341) n° 1027
Inventarium über Johann Daniel Heÿland des Kutschers und Burgers alhier Zu Straßburg dermahlen besitzenden Activ Nahrung und daraus zu bezahlen habender passiv schulden auffgerichtet Anno 1771. (…) So geschehen alhier Zu Straßburg und einer daselbst ane der Brandgaß gelegenen in diese Nahrung gehörigen und hernach beschriebener behausung, auf Mittwoch den 8. Maj Anno 1771.
Eigenthum ane einer Behaußung. Naml. eine behaußung, höffelin und Hoffstatt, mit allen deren Gebäuden, begriffen, weithen, Zugehörden, rechten und gerechtigkeiten, gelegen alhier Zu Straßb. ane der Zimmerleuth und Brandgaß, 1.s ist ein Eck an gedachter Zimmerleuth Gaß, anderseit neben weil. H. Schaffner Phil. Christian Winter sel. Wb. u. Erben, hinten auf Hn Rathh. Michael Friden sel. Fr. Wb. und Erben stossend, Welche Behaußung ausser den darauf haftenden hernach eingetragenen passiv Capital, frei, ledig und eig. und alhier ohnpræjudicirlich angeschlag. wird, um den preiß, wie solche er Heiland bei der in A° 1745. vor gewesten mütterlichen Verlaßenschafts Abtheilung Käuflich übernommen hat, pro 2000 lb. Sonsten besagt über dieße behaußung ein teutsch. perg. Kbr. in alh. C. C. stb. gefertigt u. mit dero anh. Insiegel verwahrt, datirt d. 9. Aug. 1704.
Haußrath 19, 20, 29, 35, 30, 17, Silber 8, Goldener Ring 1, Kutschen und Kutschengeschirr auch Pferd geschirr 117 – Schulden aus der Nahrung zu bezahlend 1837, 256
(Annexe) Demnach Johann Daniel Heÿland der Kutscher und hiesige Burger sich entschlossen die ihme Zugehörige alhier ane der Zimmerleuth und Brandgaß gelegene behaußung, höflein und hofstadt, mit allen deren Gebäuden, begriffen, weithen, Zugehörden, recht- und gerechtigkeiten, einseit ist ein Eck an gedachter Zimmerleuth Gaß, anderseit neben weiland H. Schaffner Philipp Christian Winter sel. Frau Wittib und Erben, hinten auf Hn Rathherrn Michael Friden sel. Frau Wittib und Erben stoßend, zu versteigern und zu dem Ende auf vorherbeschehene offentliche Ausrufung und Kundmachung durch das hießige Wochenblättel eine freiwillige Versteigerung auf heut zu End gemeldten tag vorgenommen (…)
Auf welche Conditionen und Bedingungen mit der Steigerung selbsten nach beschehener Ableßung der Anfang gemacht und diese behausung angesetzt worden pro 3500 fl.
Da nun anheute Keine einige Mise auf diese behaußung gethan worden, als wurde diese Versteigerung auf samstag den 25. Maj 1771 verleget (…) Actum Straßburg den 16 Maj 1771
Samstag den 25. Maj 1771 (…) nach Verfluß Zweier Stunden sich keine einige steigerer præsentiret
Jean Daniel Heiland demande à être admis pensionnaire à l’hôpital. Les Conseillers et les Vingt-et-Un émettent un avis favorable.
1771, Conseillers et XXI (1 R 254)
(p. 317) Montag den 30.sten decembris 1771. – Mühlberger pro Osterrieth Nê Johann Daniel Heilands des Kutschers, Joh: Thomas Schaubmann des ledigen taglöhners und Susannæ Klughertzin der ledigen samtlicher hießigen burger und burgerin prod. unterth. Memoriale juncto petito samt. beÿl. sub literis A. B. C. et sub adjunctis sub N° 1 biß 14 inclusivé puncto gnäd. aufnahm in den mehren Hospithal.
Nach angehörtem voto des H. Syndici Regii wurde vermittelst gehaltener Umbfrag unanimiter Erkandt, werden samtlicher Imploranten puncto gebettener aufnahm in den mehrern Hospital an die dasige hochansehnliche Herren Pflegere umb gegen einbringung ihres sowohl gegenwärtigen als etwa in Zukunft überkommend. Vermögens alda aufgenommen und lebtägig verpflegt werden gewießen.
Deppi. H. Rathh. Kögelin, H. Rathh. Ziegler.
Jean Daniel Heyland meurt pauvre pensionnaire le 22 décembre 1774 à l’hôpital bourgeois où il est entré en décembre 1771
Sépulture, Hôpital bourgeois (luth. f° 188) In dem Jahre 1774 Sammstags den 22. Wein Monates, Morgens ein vierthel Vor Vier Uhr, starb in dem hiesigen deutschen Hospital Johann Daniel Heÿland, ein lediger Kutscher Von hier gebürtig, und in der Neuen Kirche getaufet, weÿl. Johann Georg Heÿlands, auch gewesenen Kutschers und burgers alhier und weÿl. Frauen Katharina gebohrener Zieglerin hinterlaßener ehelicher Sohn, seit den 30. Christmonat des Jahres 1771 Hospitals Armenpfründer, seines Alters 71 Jahr Sechs Monate, Zwo wochen vnd Vier Tagen und wurde derselbe auf die begräbniß St: Urban ohne Leichen begängnis beerdiget
[in margine :] von dessen bruder in Hospit. luther. Sterbbuche Lit. C. pag. 495 (im 191)
La maison de Jean Daniel Heiland est vendue par enchère judiciaire au cocher Jean Jacques Altdorffer
1775 (21.4.), Chambre des Contrats, vol. 649 n° 167-v
Ganthkauffbrieff vom 30. April 1772 – ist des Johann Georg Heiland und deßen verstorbenen ehefrau erb Johann Daniel Heiland dem kutscher zuständigen gewesten zum theil ane der Zimmerleuth theils Brand gaß gelegen, wovon dieße ein eck außmachet, gelegenes haus und hoffstatt einseit neben weÿl. H. Schaffner Winters Fr. wb und erben anderseit neben Fridischen erben
Johann Jacob Altdorffer dem lehnkutscher (überlassen um) 1710 gulden
Fils du cocher Jean Henri Altorff, Jean Jacques Altorff épouse en 1765 Marie Susanne Bury, fille du tanneur Jean Jacques Bury de Bouxwiller : contrat de mariage, célébration
1765 (22.1.), Not. Dautel (Fr. Henri, 6 E 41, 285) n° 474
Eheberedung – zwischen dem Ehren achtbaren Herrn Johann Jacob Altorff, dem ledigen Kutschern, herrn Johann Heinrich Altorffs, des Kutschers und frauen Mariæ Claræ gebohrener Eckertin, beeder Eheleute und burgere allhier Zu Straßburg ehelich erzeugtem Sohn als dem Hochzeitern ane Einem
So dann der Viel Ehren und tugendsamen Jungfrauen Mariæ Susannæ Buriin, weÿl. herrn Johann Jacob Burÿ geweßenen Rothgerbers und burgers Zu Buchßweiler nunmehr seeligen mit frauen Susanna Catharina gebohrener Götzin seiner hinterbliebenen Wittib ehelich erzeugter tochter, als der Jungfrauen Hochzeiterin am andern theil
Seind dieße ding Zugangen und beschehen allhier Zu Straßburg auff Dienstag den 22. Januarÿ anno 1765 [unterzeichnet] Johann Jacob Alldorffer Als Hochzeiter, Maria Susanna Bürÿin Als hochzeitrin
Mariage, Strasbourg (réf. f° 5-v)
Anno 1765 Mittwochs den 13. Martÿ seÿndt nach Vorhergegangener Gewohnlicher Proclamation Ehelich Eingesegnet worden Johann Jacob Altorf der ledige burger und Kutscher Mstr. Johann Heinrich Altorfen des burgers und Lehnkutschen halters Allhier Ehelichen Sohn, Jungfrau Maria Susanna Bürÿ, weÿland herrn Johann Jacob Bürÿ gew. burgers und Rothgerbers in Buchsweÿler hinterl. Ehel. tochter [unterzeichnet] Johann Jacob Alldorffer, Maria Susanna Bürÿin (i 9)
Jean Jacques Altorff devient bourgeois à titre gratuit, Marie Susanne Büry à l’ancien tarif quinze jours après leur mariage.
1765, Livre de bourgeoisie 1762-1769 (VI 285) f° 63
Johann Jacob Altorff gutscher, von hier gebürtig und deßen Ehefr. Maria Susanna geb. Bürÿin von buchsweiler, erhalten das burgerrecht, der Ehemann als beÿ ordnung gelassener gratis, die Ehefr aber um den alten burgerschilling wollen dienen beÿ EE Zunfft d. tucher. Jur. et prom. eod. [30. Mertz 1765]
Jean Jacques Altorff expose infructueusement la maison aux enchères.
1793 (8 brumaire 3), Strasbourg 10 (36), Georges Frédéric Zimmer f° 190
8 brumaire III. – à la requête du citoyen Isaac Bury, Administrateur du District de Strasbourg, fondé de pouvoir du citoyen Jean Jacques Altorff, citoyen de Strasbourg (…) il a été procédé (…)
à la première enchère volontaire d’une maison appartenant audit citoyen Altorff scise en cette Commune rue brulée N° 26 faisant coin de celle des charpentiers, tenant d’une part à cette de la citoyenne Lapré Veuve, rue brulée, de l’autre à celle du Citoyen Fournier, traiteur rue des charpentiers donnant par derrière sur celles desd. voisins avec ses appartenances et dépendances sous les clauses et conditions suivantes (…) pour la somme de 36.000 livres
Et attendu que personne n’a fait de mise, la seconde Enchère a été remise au 18 Brumaire à deux heures de relevée
Jean Jacques Altorff, ancien loueur de carrosses à Strasbourg demeurant à Bischwiller, vend la maison à l’aubergiste Jean Georges Teutsch
1794 (5 frimaire 3), Strasbourg 3 (43), Philippe Louis Übersaal n° 173
est comparu le Citoyen Jean Jacques Altorff, cidevant loueur de carrosses au dit Strasbourg, demeurant actuellement à Bischwiller, District d’Hageunau, lequel a volontairement déclaré, reconnu et confessé avoir vendû (…)
au Citoyen Jean George Teutsch, Aubergiste, demeurant en cette commune ci présent et acceptant
Une Maison avec une petite cour, puits et tous les droits, appartenances et dépendances scituée en cette Commune de Strasbourg N° 26 formant le coin de la rue des charpentiers et de la rue brulée, d’un côté dans la rue des charpentiers attenant à la maison du Citoyen Fournier, Traiteur, de l’autre côté dans la rue brulée la Maison de la Citoyenne Veuve Laprez, donnant par derrière sur lesd. Citoyens Fournier et Laprez, declarant le dit vendeur que lad° maison présentement vendue est franche et quitte de toutes Charges, Rentes foncières, Dettes et Hypothèques. La présente vente est faite pour et moyennant le prix et la somme de 50.000 livres y compris tous les fourneaux avec leurs tuyeaux, Jalousies avec leurs stores, deux trumeaux au premier et second étage, les Chantiers et Boiseries dans les caves
acp 29 F° 131-v du 6 fri. 3
Veuve de Jean Frédéric Liebold, Marie Salomé Klein se remarie en 1790 avec Jean Georges Teutsch qui tient l’auberge du poêle de la Lanterne : contrat de mariage, célébration
1790 (9.1.), Not. Übersaal (6 E 41, 661) n° 105
Eheberedung – Erschienen der Wol: Ehrenvest und Großachtbare Herr Johann Georg Teutsch, lediger Gastgeber auf Er. En. Zunft zur Luzern und burger alhier, weiland Hn Joh: Friderich Teutsch, des auch gewesenen Gastgebers daselbst und burgers dahier mit Frau Sabina Magdalena gebohrner Dörferin ehelich erzeugter Sohn, als Bräutigam, ane einem
Und die Vielehren: und Tugendbegabte Frau Maria Salome Lieboldin gebohrne Kleinin, weiland Hn Joh: Friderich Liebold des gewesenen Klein: Uhrenmachers und Burgers alhier seel. hinterbliebene Frau Wittib, beiständlich Hn. Joh: Michael Klein, des frantzösischen Bäckers und burgers hieselbst, ihres leiblichen Vaters, als Braut, an dem andern Teil
auff Sambstag den 9. Jänner im Jahr 1790 (unterzeichnet) Johann Georg Teutsch, Maria Salome Lieboldin Geb. Kleinin
Mariage, Temple-Neuf (luth. f° 70, n° 15)
Im Jahr Christi 1790 sind so wohl in St Niclaus als in der Prediger Kirche Dominica Oculi Zum ersten mal und Dominica Lætare Zum andern mal proclamirt und so dann von unterschriebenem diacono beÿ der Prediger-Kirche auf Erlaubnus des Herrn Ammeisters den 6. Mertz in dem Hause der Braut Dienst-tags den 16. Märtz Abends um Vier Uhr Ordnungs-masig copulirt und ehelich eingesegnet worden Herr Johann Georg Teutsch, der ledige Gastgeber auf der Lucernen Stub und burger allhier, weÿland Herrn Johann Friderich Teutsch, gewesenen Gastgebers auch auf der Herren-Stub und burgers allhier und Frau Salome Magdalenä geborner Dörferin ehelicher Sohn Neun und dreÿßig Jahr alt und Frau Maria Salome Leiboldin geborne Kleinin, weÿland Herrn Friderich Liebolds gewesenen Klein-Uhren-machers und burgers allhier hinterlassene wittib und Herrn Johann Michael Kleins, ehemaligen Frantzösischen beckers und burgers allhier und Frau Annä Mariä geborner Fuchsin eheliche Tochter, vier und Zwantzig Jahr alt (unterzeichnet) Johann Georg Teutsch als Bräutigam, Maria Salome Lieboldin als Braut ( 59)
Jean Georges Teutsch qui n’exerce aucun commerce est reçu cotisant à la tribu des Fribourgeois
1770 (27. 10.br), Protocole de la tribu des Fribourgeois (XI 168)
(f° 406-v) Donnerstags den 27. mensis Decembris in Anno 1770 – Neuzünfftiger
Johann Georg Teutsch weÿlandt Hn Johann Friederich Teutsch, des geweßenen Würths und Gastgebers Zur Lucern oder Herren Stub undt Gastgebers Zu Straßburg Nachgelaßener ehelicher Sohn, stehet vor und bittet weilen er dermahlen Kein Commercium hat, Ihne alß Zudiener Leibzünfftig anzunehmen undt hat dato derhalben Schein von Unßeren Herren Dreÿ des Statt Stalls welcher datiret den 24.ten hujus mensis Decembris et anno produciret
Jean Georges Teutsch institue pour héritière sa femme Marie Salomé Klein ou, si elle est morte, son fils Jean Frédéric Liebold
1818 (13.6.), Strasbourg 8 (23), Jean Georges Rœssel n° 5588
Dépôt de testament olographe (…) 1° l’original du testament olographe du sieur Jean George Teutsch, aîné, propriétaire à Strasbourg où il est décédé le 7 juin de l’année courante, en date du 11 mars 1814 (…) paraphé par M. Zaepffel, président du tribunal susdit, et enregistré en cette ville le 9 du présent mois folio 155 recto
(Annexe) 8 Juin 1818. Extrait des minutes du greffe du tribunal civil de première instance de l’arrondissement de Strasbourg (…)
Je soussigné Jean George Teutsch, ainé, prendre en comptepropriétaire demeurant à Strasbourg vieux marché au Seigle N° 17 (…) 1° Je légue aux quatre enfans de feue ma sœur Marie Catherine Goetz née Teutsch, nommés Jean Georges, Jean Frédéric, Sara Sabine & Anne Catherine Goetz à portions égales, la somme de 10.000 francs qui leur sera délivrée dans les trois mois qui suivront le décès de mon épouse Damme Marie Salomé Klein à la quelle compète l’usufruit à vie de cette somme aux termes de l’article cinq du Contrat de mariage entre nous passé devant Monsieur Übersaal, Notaire à Strasbourg le 9 janvier 1790 (…)
2° Quant à tous les Biens meubles & immeubles qui se trouveront m’appartenir au jour de mon décès, outre le legs cidessus mentionné, je les lègue en toute propriété et sans aucune exception à la susdite mon épouse Damme Marie Salomé Klein, la nommant légataire universelle pour qu’elle puissse faire, jouir et disposer comme bon lui semblera de tous les biens que je délaisserai et qui par conséquent passeront de droit à son fils Jean Frédéric Liebold, à la seule exception du legs de 10.000 francs, dont j’ai disposé en faveur des enfants Goetz
Mais si la dite mon épouse décédait avant moi, j’institue pour mon seul et unique héritier de tous les biens meubles & immeubles qui composeront ma succession à l’exception du dit legs assuré aux enfants Goetz, ledit sieur Jean Frédéric Liebold mon beau fils pour qu’il puisse en faire, jouir et disposer à sa volonté
Jean Georges Teutsch meurt à l’âge de 68 ans dans sa maison au Vieux-Marché-aux-Grains
Décès, Strasbourg (n° 864)
Déclaration de décès le 8 juin 1818 – Jean George Teutsch âgé de 68 ans un mois né à Strasbourg, Propriétaire, veuf de Marie Salomé Klein, mort en cette mairie le 7 du mois courant à une heure de relevée dans la maison située N° 17 vieux Marché aux grains, fils de feu Jean Frédéric Teutsch, Aubergiste, et de feu Sabine Madeleine Doerffer, Premier déclarant, Jean Daniel Saum âgé de 57 ans Négociant, allié du décédé, Deuxième déclarant Jean Georges Blessig âgé de 56 ans, horloger, beau-frère du décédé [in margine] hyd. (i 50)
Jean Frédéric Liebold et Amélie Saum vendent la maison au major retraité Jean Jacques Taret et à Marie Louise Marguerite Thaler. Les acquéreurs louent la cave aux vendeurs.
1837 (2.2.), Strasbourg 10 (92), Louis Frédéric Zimmer n° 2453
Jean Frédéric Liebold, négociant, et Amélie Saum
à Jean Jacques Taret, major en retraite Chevalier de la Légion d’Honneur, et Marie Louise Marguerite Thaler
une maison avec petite cour, puits et tous droits, appartenances et dépendances située à Strasbourg marquée du n° 26 formant le coin de la rue des Charpentiers et de la rue Brulée attenant dans la rue des Charpentiers la maison de M. Burckhardt ancien agent de change, de l’autre dans la rue rue Brûlée à la veuve Roederer, derrière mêmes voisins
ayant appartenu à Jean Jacques Altorff, loueur de carrosses demeurant plus tard à Bischwiller, qui l’a vendu à Jean Georges Teutsch par acte reçu Ubersaal le 5 frimaire 3 (25 novembre 1794) transcrit au bureau des hypothèques vol. 1 n° 92. La dite maison échut au Sr Liebold dans la succession de M. Teutsch qui l’a institué héritier universel suivant testament olographe du 11 mars 1814 enregistré le 9 juin 1818 f° 155 déposé au rang des minutes de M° Roessel le 10 juin 1818
Bail des époux Taret aux époux Liebold de la grande cave de la maison ci dessus vendue ainsi que des tonneaux pour trois années qui finiront le 1 janvier 1840 pour 100 fr. – Prix, 25.000 francs
Enregistrement acp 247 f° 71 du 3.2.
Louise Thaler épouse en 1811 le capitaine François Banabé Grigy
1811 (15.1.), Strasbourg 14 (46), Félix Gaspard Lex n° 4889
François Banabé Grigÿ, natif de la commune de Saint Cyr de Salerne département de l’Eure capitaine aide de camp fils majeur de feu Jacques Grigÿ, propriétaire et de Rose Couillerville
Louise Thaler, fille de feu Philippe Jacques Thaler, homme de lettres en cette ville et de Odile Huder
acp 116 (3 Q 29 831) f° 80 du 21.1. – Le survivant aura la jouissance des biens du prémourant, contenant donation d’une valeur de 2000 francs par Adele veuve Thaler à lad. future sa fille
François Banabé Grigy meurt en 1824 après avoir institué sa femme pour sa légataire universelle
1824 (18.6.), Strasbourg 14 (79), Félix Gaspard Lex n° 2351
Inventaire de la succession de François Barnabé Grigy, lieutenant colonel d’infanterie décédé le 31 mars dernier – dressé à la requête de Marie Louise Marguerite Thaler la veuve, légataire universelle du défunt suivant testament olographe du 1 septembre 1822 déposé au rang des actes de M° Lex le 2 avril dernier
dans une maison rue du Jeu de Paume n° 52
acp 168 (3 Q 29 883) f° 149-v du 21.6. mobilier 660 fr, créances 6034 fr, garde robe 380 fr
passif 3033 fr, Titres et papiers, Contrat de mariage M° Lex le 15 janvier 1811
Marie Louise Marguerite Thaler se remarie en 1829 avec le major Jean Jacques Taret
1829 (25.2.), Strasbourg 10 (80), Louis Frédéric Zimmer n° 511
Contrat de mariage – Jean Jacques Taret, major au 20° régiment d’infanterie légère à présent en garnison à Wissembourg, chevalier de St Louis et de la Légion d’Honneur, né à Paris le 12 décembre 1777, fils de Jean Jacques Taret et de Jeanne Françoise Gissier à Paris ses père et mère défunts, M. Taret décédé le 18 juillet 1780 et la D° le 24 juin 1819
Marie Louise Marguerite Thaler, veuve sans enfant de François Barnabé Grigy, lieutenant colonel d’infanterie décédé en cette ville le 31 mars 1824
acp 193 (3 Q 29 908) f° 111-v du 25.2. – réserve d’apports et des habillemens et linges propres à chacun d’eux communauté d’acquêts partageable par moitié au décès de l’un d’eux, usufruit au survivant de la succession du prédécédé, don de survie par le futur à la future d’une somme de 4000 francs
Le futur époux se constitue en propre en numéraire une somme de 4000 francs
et la future épouse en meubles, numéraire et créances une somme de 10.000 francs
Jean Jacques Taret meurt après avoir avoir institué sa femme pour sa légataire universelle
1843, Charles Lacombe
Dépôt de la grosse d’une ordonnance rendue par le tribunal civil de première instance de Strasbourg en contenant envoi en possession en faveur de D° Marie Louise Marguerite Thaler veuve de Jean Jacques Taret, chef de bataillon en retraite de tous les biens meubles et immeubles de la succession de son dit défunt mari pour en jouir en toute propriété aux termes du testament olographe du même Sr Taret en date de Strasbourg du 2 février 1837 enregistré le 10 août 1843
acp 313 (3 Q 30 028) f° 80 du 11.9.
Marie Louise Marguerite Thaler se remarie en 1847 avec Eugène Kauffeisen, notaire à Bischwiller : contrat de mariage, célébration
1847 (3.3.), Strasbourg 3 (92), Marie Napoléon Théodore Burtz n° 887
du 3 mars 1847, Contrat de mariage – Ont comparu M. Eugène Kauffeisen, notaire à la résidence de Bischwiller, demeurant en cette ville, fils de M. Georges Louis Antoine Kauffeisen, ancien notaire et de Mad° Julie Rieffel son épouse demeurant ensemble à Bergheim (haut Rhin) stipulant en son nom personnel comme futur époux
Et Mad° Marie Louise Marguerite Thaler, veuve sans enfant de feu M Jean Jacques Taret, chef de bataillon en retraite Chevalier de la Légion d’Honneur demeurant à Strasbourg, fille de feu M. Philippe Jacques Thaler, négociant et de D° Odile Huder son épouse à Strasbourg, stipulant en son nom personnel comme future épouse
acp 358 (3 Q 30 073) f° 59-v – régime de la communauté de biens réduite aux acquêts
Les apports de la future épouse consistent 1° en un mobilier évalué à 9658 francs, 2° en une somme de 17.000 francs, 3° en une pension militaire de 500 francs
4) Une maison à Strasbourg rue brûlée N° 26
Donation par la future au futur en cas de survie d’une somme de 20.000 francs à prendre sur les biens qu’elle délaissera, d’abord sur les sommes dont le futur pourroit se trouver lui-même débiteur envers elle et ensuite sur les autres biens de la succession.
Mariage, Strasbourg (n° 74)
Du 3° jour du mois de mars l’an 1847 à deux heures de relevée, Acte de mariage de Eugène Kauffeisen, majeur d’ans, né en légitime mariage le 16 novembre 1811 à Epfig (Bas Rhin) domicilié à Bischwiller (Bas Rhin) Notaire, fils de Georges Louise Antoine Kauffeisen, Notaire, et de Julie Rieffel, conjoints domiciliés à Oberbergheim (haut Rhin)
et de Marie Louise Marguerite Thaler, majeure d’ans, née en légitime mariage le 27 mars 1785* à Strasbourg, domiciliée à Strasbourg, veuve en secondes noces de Jean Jacques Taret, Chef de dataillin en retraite, Chevalier de la Légion d’Honneur et de S Louis, décédé en cette ville le 2 août 1843, fille de feu Philippe Jacques Thaler, maître d’écriture, décédé en cette ville le 5 Prairial an onze, et de feu Odile Huter décédée en cette ville le 5 août 1831 (i 1)
(Répertoire des notaires, Lotz) Bischwiller I, Eugène Kauffeisen du 16 septembre 1841 au 29 février 1850, démissionnaire
Eugène Kauffeisen et Louise Marguerite Thaler hypothèquent la maison au profit de Caroline Drewitz, veuve de l’officier Jean Michel Ogé
1847 (31.7.), Strasbourg 3 (92), Marie Napoléon Théodore Burtz n° 969
du 31 Juillet 1847, Obligation – A comparu M. Eugène Kauffeisen, notaire à la résidence de Bischwiller où il demeure, agissant tant en son nom personnel qu’au nom et comme mandataire spécial de Madame Louise Marguerite Thaler son épouse précédemment veuve de feu M Jean Jacques Taret, chef de bataillon en retraite chevalier de la Légion d’Honneur, demeurant avec son mari à Bischwiller (…) Lequel comparant reconnaît par les présentes que Mad. son épouse et lui doivent conjointement et légitimement
à Mad° Caroline Drewitz veuve de feu M. Jean Michel Ogé officier supérieur en retraite chevalier de la Légion d’Honneur, demeurant à Strasbourg
Et à M. Charles Philippe Louis Flaxland, commis négociant demeurant en la même ville, tous deux à ce présens et acceptant (…) la somme de 25.000 francs dont 13.000 francs à Mad° Ogé et 12.000 francs à M. Flaxland pour prêt de pareille somme (…)
hypothèque. Une maison avec petite cour, puits, droits et dépendances située à Strasbourg rue brûlée N° 26 et rue des Charpentiers N° 15 formant un coin de ces deux rues et tenant dans la première à la propriété de Mad. veuve Roederer et dans la seconde à celle des héritiers de M. Burckhardt ancien agent de change.
Etablissement de la propriété. M. Kauffeisen déclare que cette maison qui a été acquise par M. et Mad° Taret ainsi qu’on le dira plus loin appartient aujourd’hui à Mde Kauffeisen son épouse en totalité tant au moyen de ses droits sur la communauté de biens qui avait existé entre entre elle et feu M. Taret que comme seule et unique héritière de ce dernier suivant son testament olographe en date du 2 février 1837, déposé à M° Lacombe notaire à Strasbourg par une ordonnance de M. le Président du tribunal civil de Strasbourg du 2 août 1843 (…). M. Taret est mort sans laisser d’héritiers à réserve ainsi que le constate un acte de notoriété dressé par M° Lacombe le 24 août 1843 et Mad° Taret a été envoyée en possession de sa succession par ordonnance rendue par M. le Président du tribunal le 30 du même mois et déposée à M° Lacombe aux termes d’un acte du 8 septembre suivant.
M. et Mad° Taret ont acquis la maison pendant leur mariage de M. Jean Frédéric Liebold négociant et de Mad° Amélie Saum son épouse demeurant à Strasbourg pour le prix de 25.000 francs aux termes d’un contrat passé devant M° Zimmer notaire à Strasbourg le 2 février 1837 transcrit au bureau des hypothèques de Strasbourg le 25 du même mois vol. 337 N° 48. M. Kauffeisen déclare que le prix de cette acquisition a été entièrement acquitté (…)
M. Liebolt avait recueilli la même maison dans la succession de feu M. Jean Georges Teutsch aubergiste à Strasbourg qui l’avait institué son légataire universel par un testament olographe en date à Strasbourg du 11 mars 1814 enregistré le 9 juin 1818 (…) et déposé en l’étude de M° Roessel notaire à Strasbourg suivant acte reçu par lui le lendmain 10 juin. Et M. Teutsch en était lui-même propriétaire par la vente que lui en avait faite le S. Jean Jacques Altorff loueur de carrosses à Strasbourg suivant un contrat passé devant M° Ubersaal notaire à Strasbourg le 5 frimaire an trois transcrit le 24 prairial an sept v. 1 N° 92 et portant quittance d’une grande partie du prix qui a été soldé suivant une quittance reçue par le même notaire le 16 floréal an neuf.
Situation hypothécaire (…) franche et libre de tous privilèges et de toutes hypothèques légales (…) Subrogation dans le privilège de l’office de notaire de M. Kauffeisen. Aux présentes est intervenu M. Paul-Charles-François Dessolliers, ancien notaire juge de paix du canton de Geispolheim demeurant à Lingolsheim (…) la somme de 20.000 francs à valoir que le prix moyennant lequel il a cédé à M. Kaufeisen son office de notaire à la résidence de Bischwiller en vertu d’un traité passé devant M° Lacombe notaire à Strasbourg le 18 mars 1846.
Eugène Kauffeisen, ancien notaire demeurant à Paris, et Louise Marguerite Thaler hypothèquent la maison au profit de Barbe Appoline Neret, veuve du négociant Nicolas Michel Silvestre
1854 (18.3.), Strasbourg 6 (83), Henri Eugène Roessel (le jeune) n° 1655
Obligation de Fr. 7600 du 18 Mars 1854. – ont comparu M. Eugène Kauffeisen, ancien notaire à la résidence de Bischwiller, demeurant présentement à Paris rue du Rocher n° 32 et Mad° Louise Marguerite Thaler, son épouse qu’il autorise, veuve en précédentes nôces de M. Jean Jacques Taret, chef de bataillon en retraite, chevalier de la légion d’honneur, demeurant à Strasbourg, Lesquels reconnaissent par les présentes devoir légitimement
à Mad° Barbe Appoline Neret, veuve de feu M. Nicolas Michel Silvestre, ancien négociant, demeurant aussi à Strasbourg, à ce présente et acceptant (…) la somme de 7000 francs pour prêt de pareill somme (…)
hypothèque. Une maison d’habitation avec petite cour, puits, droits et dépendances située à Strasbourg rue brûlée N° 26 formant un coin de celle des Charpentiers et tenant d’un côté dans cette dernière rue à la maison de M. Burckhardt, ancien agent de change, de l’autre dans al rue brulée à la propriété des enfants Roederer et des deux autres côtés aux dites rues.
Etablissement de la propriété. Mad° Kauffeisen déclare que cette maison est devenue sa propriété de la manière suivante, savoir, Elle a été acquise par elle et M. Taret durant leur mariage de M. Jean Frédéric Liebold, négociant et de Mad° Amélie Saum, son épouse, demeurant à Strasbourg pour le prix de 25.000 francs en vertu d’un contrat de vente passé devant M° Zimmer, notaire à Strasbourg le 2 février 1837, transcrit au bureau des hypothèques de la même ville le 25 du même mois vol. 317 N° 48. M. et Mad° Taret ont soldé le prix intégralement le 2 septembre 1839 (…). M. Taret est décédé à Strasbourg sans laisser d’héritiers à réserve ainsi que le constate un acte de notoriété dressé par M° Lacombe, notaire à Strasbourg, le 24 août 1843. Avant de mourir il avait fait un testament olographe sous la date du 2 février 1837 par lequel il a institué sa veuve pour sa seule et unique héritière et qui, enregistré au bureau de Strasbourg, a été déposé à M° Lacombe en vertu d’une ordonnance de M. le Président du tribunal civil de Strasbourg du 2 août 1843. Mad° Taret fut en conséquence envoyée en possession de toute la succession de son mari par une autre ordonnance rendue par M. le président le 30 du même mois et qui a été déposée à M° Lacombe aux termes d’un acte par lui reçu le 8 septembre suivant. C’est donc en cette qualité d’héritière universelle de son mari défunt et à raison de sa part dans la communauté de biens que Mad° Kauffeisen est restée seule propriétaire de la totalité de la maison ci dessus affectée. En se remariant avec M. Kauffeisen, elle a fait avec lui un contrat de mariage devant M° Burtz notaire à Strasbourg le 3 mars 1847 qui a établi entre eux une séparation de biens et Mad. Kauffeisen a donc ainsi conservé la libre disposition de toute sa fortune.
M. Liebolt avait recueilli la même maison dans la succession de feu M. Jean Georges Teutsch, aubergiste à Strasbourg qui l’avait institué son légataire universel par son testament olographe en date du 11 mars 1814 et déposé à M° Roessel, notaire à Strasbourg, suivant acte reçu par lui le lendemain 10 juin 1818. M. Teutsch l’avait acquise du S. Jean Jacques Altorff loueur de carrosses à Strasbourg et ensuite à Bischwiller aux termes d’un contrat passé devant M° Ubersaal, notaire à Strasbourg le 5 frimaire an trois, transcrit le 24 prairial an sept vol. 1 N° 92. Ce contrat contient quittance d’une partie du prix et le surplus a été acquitté par M. Teutsch suivant une quittance reçue par M° Ubersaal le 16 floréal an neuf.
Les emprunteurs déclarent aussi que ladite maison est franche de tous privilèges et de toutes hypothèques légales, judiciaires ou conventionnelles (…)
Marie Louise Marguerite Thaler hypothèque la maison au profit du ferblantier Jean Michel Nenninger
1857 (12.11.), Strasbourg 3 (100), Marie Napoléon Théodore Burtz n° 4512
du 12. 9.bre 1857, Obligation – A comparu Mad° Marie Louise Marguerite Thaler, demeurant à Strasbourg, épouse de M. Eugène Kauffeisen, ancien notaire à ce présent et qui l’autorisé, demeurant à Paris, rue Geoffroi Marie N° 8 et veuve en précédentes noces de M. Jean Jacques Taret chef de bataillon en retraite, chevalier de la légion d’honneur demeurant en son vivant à Strasbourg, laquelle reconnaît par les présentes devoir légitimement
à Mr Jean Michel Nenninger, ferblantier demeurant à Strasbourg à ce présent et acceptant (…) la somme de 7000 francs pour prêt de pareille
hypothèque. Une maison d’habitation avec petite cour, puits, droits et dépendances située à Strasbourg rue brûlée N° 8 précédemment N° 26 formant le coin de cette rue et de celle des Charpentiers et tenant d’un côté dans cette dernière rue à la maison de M. Burckhardt, ancien agent de change, de l’autre dans la rue brulée à la propriété des enfants Roederer et des deux autres côtés aux dites rues.
Etablissement de la propriété. Mad° Kauffeisen déclare que cette maison est devenue sa propriété de la manière suivante, savoir, Elle a été acquise par elle et M. Taret durant leur mariage de M. Jean Frédéric Liebold, négociant et de Mad° Amélie Saum, son épouse, demeurant à Strasbourg pour le prix de 25.000 francs en vertu d’un contrat de vente passé devant M° Zimmer, notaire à Strasbourg le 2 février 1837, transcrit au bureau des hypothèques de la même ville le 25 du même mois vol. 317 N° 48. M. et Mad° Taret ont soldé le prix intégralement le 2 septembre 1839 (…). M. Taret est décédé à Strasbourg sans laisser d’héritiers à réserve ainsi que le constate un acte de notoriété dressé par M° Lacombe, notaire à Strasbourg, le 24 août 1843. Avant de mourir il avait fait un testament olographe sous la date du 2 février 1837 par lequel il a institué sa veuve pour sa seule et unique héritière et qui, enregistré au bureau de Strasbourg, a été déposé à M° Lacombe en vertu d’une ordonnance de M. le Président du tribunal civil de Strasbourg du 2 août 1843. Mad° Taret fut en conséquence envoyée en possession de toute la succession de son mari par une autre ordonnance rendue par M. le président le 30 du même mois et qui a été déposée à M° Lacombe aux termes d’un acte par lui reçu le 8 septembre suivant. C’est donc en cette qualité d’héritière universelle de son mari défunt et à raison de sa part dans la communauté de biens que Mad° Kauffeisen est restée seule propriétaire de la totalité de la maison ci dessus affectée. En se remariant avec M. Kauffeisen, elle a fait avec lui un contrat de mariage devant M° Burtz notaire à Strasbourg le 3 mars 1847 qui a établi entre eux une séparation de biens et Mad. Kauffeisen a donc ainsi conservé la libre disposition de toute sa fortune.
M. Liebolt avait recueilli la même maison dans la succession de feu M. Jean Georges Teutsch, aubergiste à Strasbourg qui l’avait institué son légataire universel par son testament olographe en date du 11 mars 1814 et déposé à M° Roessel, notaire à Strasbourg, suivant acte reçu par lui le lendemain 10 juin 1818. M. Teutsch l’avait acquise du Sr Jean Jacques Altorff, loueur de carrosses, à Strasbourg et ensuite à Bischwiller aux termes d’un contrat passé devant M° Ubersaal, notaire à Strasbourg le 5 frimaire an trois, transcrit le 24 prairial an sept vol. 1 N° 92. Ce contrat contient quittance d’une partie du prix et le surplus a été acquitté par M. Teutsch suivant une quittance reçue par M° Ubersaal le 16 floréal an neuf.
Mad° Kauffeisen déclare aussi que ladite maison sert déjà de gage à une première créance de 7600 francs (…)
Marie Louise Marguerite Thaler, femme de l’employé des chemins de fer Eugène Kauffeisen à Paris, hypothèque la maison au profit de Barbe Appoline Neret, veuve du négociant Nicolas Michel Silvestre
1860 (28.11.), Strasbourg 7 (114), Edouard Stromeyer n° 2161
du 28 novembre 1860, Obligation – A comparu Mad° Marie Louise Marguerite Thaler, épouse de M. Eugène Kauffeisen, ancien notaire actuellement employé à la gare des chemins de fer de l’Est à Paris, et veuve en précédentes noces de M. Jean Jacques Taret chef de bataillon en retraite, chevalier de la légion d’honneur, demeurant à Strasbourg, autorisée aux effets ci après par M. Kauffeisen son mari qui demeure à Paris, rue Saint-Quentin N° 16 en vertu d’une procuration (…) laquelle comparante reconnaît, par les présentes, qu’indépendamment du capital dont il sera question plus bas, elle doit légitimement
à Madlle Barbe Appoline Neret, veuve de feu M. Nicolas Michel Silvestre, ancien négociant demeurant aussi à Strasbourg et au nom de laquelle M. Théodore Burtz, notaire demeurant en la même ville, son gendre à ce présent, stipule et accepte, la somme de 2400 francs (…)
hypothèque. Une maison d’habitation avec petite cour, puits, droits et dépendances située à Strasbourg rue Brûlée N° 8 nouveau et N° 26 ancien, formant le coin de cette rue et de celle des Charpentiers et tenant d’un côté dans cette dernière rue à la maison de M. Burckhardt, ancien agent de change, de l’autre dans la rue brulée à la propriété des enfants Roederer et des deux autres côtés aux dites rues.
Les comparants déclarent qu’aux termes d’une obligation passée devant M° Roessel jeune notaire à Strasbourg le 18 mars 1854, Mad. Kauffeisen est déjà débitrice de Mad° Silvestre d’un capital de 7600 francs et en y réunissant le présent prêt, c’est donc désormais à une somme totale de 10.000 francs que se montera sa dette
Louise Marguerite Thaler loue une partie de la maison au marchand de vins Jacques Heinrich
1864 (25.2.), Strasbourg 1 (175), Alfred Ritleng (fils) n° 3414
24 février 1864. Dépôt – a comparu Monsieur Michel Fischer, licencié en droit domicilié et demeurant à Strasbourg, lequel a déposé (…) l’un des originaux d’un acte sous seing privé fait double à Strasbourg le 24 février courant
Entre les soussignées. Madame Louise Marguerite Thaler epouse separée de Biens par Contrat de mariage de Monsieur Eugène Kauffeisen, domiciliée et demeurant à Strasbourg, D’une part
Et Monsieur Jacques Heinrich, marchand de vins domicilié et demeurant à Strasbourg, D’autre part
Il a été fait le contrat suivant. Madame Kauffeisen donne à bail à M. Heinrich ce acceptant
Les Localités ci après désignées de sa maison sise à Strasbourg rue brûlée, Numéro 9, savoir
1. Toutes les chambres et la cuisine du rez de chaussée,
2. Une chambre pour la servante au quatrième étage dans le cas où le &loa& viendrait à en avoir besoin
3. deux caves comprenant le bûcher
4. l’usage commun de la pompe et de la buanderie avec les autres locataires
5. et les lieux d’aisances au rez de chaussée
Conditions du bail 1. Le bail est consenti pour une durée de siont x années qui commencé à courir le 25 décembre dernier. (…) 5. L’entrée de la clientèle de Monsieur Heinrich ne pourra avoir lieu que par la porte spéciale du restaurant et par celle de la rue brûlée qui est expressément réservée aux locataires de la Maison et qui devra toujours rester parfaitement libre. 6. L’usage de la pompe et de la buanderie étant commun à tous les locataires et Monsieur Heinrich devra toujours en laisser l’accès parfaitement libre. 7. Le présent bail est d’ailleurs consenti moyennant un loyer annuel de 800 francs (…)
Fait en double exemplaire à Strasbourg le 24 février 1864.
Enregistrement de Strasbourg, ssp 139 (3 Q 31 638) f° 34-v du 27.2.
Louise Marguerite Thaler loue les mêmes localités au débitant de vins Jacques Iffrig
1869 (13.7.), Strasbourg 3 (112), Emile Weiss n° 2788
Bail du 13 Juillet 1869. – A comparu Madame Louise Marguerite Thaler épouse séparée de biens par contrat de mariage de Monsieur Eugène Kauffeisen, domiciliée et demeurant à Strasbourg, laquelle a, par ces présentes, loué à titre de bail à loyer
A Monsieur Jacques Iffrig, débitant de vins demeurant à Strasbourg présent et acceptant
Les localités ci après désignées de sa maison sise à Strasbourg rue brûlée n° 8,
Savoir 1. Toutes les chambres et la cuisine du rez de chaussée, 2. deux caves comprenant le bûcher, 3. l’usage commun de la pompe et de la buanderie avec les autres locataires, 4. et les lieux d’aisances au rez de chaussée
Conditions du bail 1. Le bail est consenti pour une durée de deux années qui commencera au 25 mars 1866 pour finir à pareil jour de l’année 1872. (…) 5. L’entrée de la clientèle de M. Iffrig ne pourra avoir lieu que par la porte spéciale du restaurant et par celle de la rue brûlée qui est expressément réservée aux locataires de la Maison et qui devra toujours rester parfaitement libre. 6. L’usage de la pompe et de la buanderie étant commun à tous les locataires, M. Iffrig devra toujours en laisser l’accès parfaitement libre. 7. Le locataire devra veiller à ce qu’il ne soit fait aucun tapage dans son restaurant, de manière que le repos des autres locataires et de la propriétaire ne puisse être troublé.
Le présent bail est en outre fait et accepté moyennant un loyer annuel de 800 francs
acp 585 (3 Q 30 300) f° 40-v du 15.7.
Marie Louise Marguerite Thaler, femme d’Eugène Kauffeisen, meurt en 1872 après avoir institué pour son héritière universelle la femme Leduchat (Eugénie Constance Beaujour)
1872 (18.4.), Strasbourg, Emile Weiss
Emile Weiss, 18 April 1872 – Testament von Marie Louise Margaretha Thaler Ehefrau von Eugen Kauffeisen in Straßburg ihrer Urnichte Pauline Huder eine Summe von 6000 Franken vermacht
acp 604 (3 Q 30 319) f° 71 n° 1478 du 24.4.
Emile Weiss, 29 Oktober 1868 – Testament von der nehmlichen, durch welchen Sie folgende Legaten macht (1) ad (18) und 19. als universal Erbin die Ehefrau Leduchat
acp 604 (3 Q 30 319) f° 71 n° 1479 du 24.4. – den 20. April 1872 gestorben
Eugénie Constance Beaujour épouse en 1836 le négociant Nicolas Caspar, veuf de Marie Françoise Florentine Sautereau
1836 (29.6.), Strasbourg 15 (59), Charles Lacombe, n° 673
Contrat de mariage – Nicolas Caspar, négociant demeurant à Strasbourg, veuf en premières noces sans enfant de Marie Françoise Florentine Sautereau, fils de Jean Caspar, propriétaire et maire de Knoersheim, et de Marie Guth
et Dlle Eugénie Constance Beaujour, sans profession, fille mineure de Jean Beaujour, chef d’escadron au Corps Royal d’Etat Major en non activité, et de Thérèse Françoise Thaler
acp 242 (3 Q 29 ) f° 15-v du 5.7. sous le régime de la communauté réduite aux acquets
Les apports du futur consistent 1) dans une maison sise à Strasbourg rue de l’Ecrevisse n° 11, 2) dans une valeur de 30.000 francs en marchandises de son commerce, créances, argent, meubles et effets de ménage
les père et mère de la future en considération du mariage lui font donation en avancement d’hoirie d’une somme de 15.000 francs
le futur fait don à la future à titre de don matutinal d’une somme de 3000 francs à prendre sur le plus clair des biens qu’il délaissera. Les futurs époux se font donation de l’usufruit viager de tous les biens que délaissera le prémourant
(5. le futur époux apporte en mariage 1. une maison avec ses appartenances et dépendances sise à Strasbourg)
Eugénie Constance Beaujour se remarie en 1845 avec le capitaine Joseph François Leduchat
1845 (27.11.), Strasbourg 15 (78), Charles Lacombe n° 5069
Contrat de mariage du 27 novembre 1845 – Ont comparu Monsieur Joseph François Le Duchat, Chevalier de la Légion d’Honneur, Capitaine au corps royal de l’Etat major, Aide de camp de M. le lieutenant général commandant la cinquième division militaire demeurant à Strasbourg, domicilié de droit à Gorze, Fils de M. Benjamin Le Duchat, rentier demeurant à Gorze et de Mad.° Elisabeth de Marionnetz, décédée à Gorze, agissant et stipulant pour lui personnellement, comme futur époux, d’une part
Et Madame Eugénie Constance Beaujour, veuve en premières noces de M. Nicolas Caspar, en son vivant Négociant demeurant et domiciliée à Strasbourg, Fille de M. Jean Beaujour, en son vivant Chef d’escadron au corps royal d’état major et de Dme Thérèse Françoise Thaler, ses père et mère, décédés à Strasbourg, agissant et stipulant pour elle personnellement, comme future épouse, d’autre part
acp 343 (3 Q 30 058) f° 58 – sous le régime de la communauté d’acquêts
Les apports du futur époux consistent 1° en un corps de ferme située à Bey (Meurthe) composé d’une maison d’exploitation, jardin et verger sur une superficie de 41 hectares de terres labourables, 2° un autre corps de ferme situé à Saint-Julien les Gorze (Moselle) composées d’une maison d’exploitation jardin et verger sur une superficie de 22 hectares de terre un ha 30 ares de pré et chenevère, 3° une autre ferme située à Einville (Meurthe) composée de 18 ha 50 ca de terre, 82 ares de prairie, 4° 31 ha de bois situés dans les bans de Gorze, Onville et Bayonville, 5° un huitième dans un corps de ferme situé à Grigy près Metz, composé d’une maison d’exploitation avec jardin et verger, sur une superficie de 51 ha de terres et prés, 6° la moitié de la nue propriété d’une maison de maître située à Gorze près de l’église, avec jardin devant et derrière et la moitié de la nue propriété d’un jardin près de ladite maison, 8° une somme de 2000 francs que la veuve de Burst sa tante lui a léguée par son testament mystique du 8 septembre 1841 enregistré à Gorze le 2 janvier 1845, 9° la moitié de la nue propriété du mobilier et des créances de la succession de la Dame de Burst s’élévant à 32.245 francs, 10° 10.050 francs en créances, 11° un mobilier et deniers comptant montant à 5000 francs
Les apports de la future épouse consistent en meubles, bijoux, créances et argent comptant d’une valeur de 30.000 francs
Les futurs époux se font donation entre vifs au survivant d’eux, le Sr Leduchat à la future épouse de l’usufruit gratuit et viager de la moitié de tous ses biens meubles et immeubles
et Mme veuve Caspar au futur époux d’une somme de 30.000 francs en pleine propriété en cas de survue, plus de l’usufruit viager de la moitié de tous les biens qui composeront sa succession. En cas d’existence d’enfant seulement un quart en pleine propriété et un quart en usufruit
Joseph François Leduchat et Eugénie Constance Beaujour, demeurant à Gorze près de Metz, font dresser l’inventaire des biens qui ont appartenu à Marie Louise Marguerite Thaler
1872 (24.6.), Strasbourg 3 (115), Emile Weiss n° 3859
Déclaration d’inventaire du 26 juin 1872 – a comparu M. Victor Schoen, propriétaire demeurant à Strasbourg, agissant ès présentes comme mandataire de M. Joseph François Leduchat, chef d’escadron en retraite, chevalier de la légion d’Honneur et dame Eugénie Constance Beaujour son épouse demeurant ensemble à Gorze (…) ledits M. & Mde Leduchat institués par dame Marie Louise Marguerite Thaler veuve Grigy, épouse de Mr Eugène Kauffeisen, ancien notaire actuellement employé a la gare du chemin de fer de l’Est à Paris, y demeurant, décédée à Strasbourg le 20 avril dernier, comme légataires universels en toute propriété, aux termes de son testament reçu par ledit notaire Weiss, le 29 octobre 1868, enregistré. Lequel comparant, en la qualité qu’il agit, voulant faire constater par acte authentique les forces et charges de ladite succession, a requis M° Weiss soussigné de dresser ledit acte
acp 606 (3 Q 30 321) f° 22-v du 2.7. (Schuldschein von 1000 Franken geschuldet durch Luise Colnago Wittwe von Stephan Marlet
Joseph François Leduchat et Eugénie Constance Beaujour vendent la maison à Guillaume Lipp et à Catherine Mauler
1872 (24.6.), Strasbourg 3 (115), Emile Weiss n° 3254
Vente du 24 juin 1872. – A comparu Monsieur Victor Schoen, propriétaire demeurant à Strasbourg, agissant en qualité de mandataire de M. Joseph François Leduchat, chef d’escadron en retraite, Chevalier de la Légion d’Honneur et de dame Eugénie Constance Beaujour, conjoints demeurant ensemble à Gorze (…) déclare avoir vendu (…)
à Monsieur Guillaume Lipp, propriétaire et à dame Catherine Mauler son épouse demeurant ensemble à Strasbourg, acquéreurs solidaires, présents et acceptant, la dame Lipp sous l’assistance et avec l’autorisation de son mari
Objet de la vente. Une maison avec cour, droits, aisances, appartenances et dépendances, sise à Strasbourg rue Brûlée Numéro 8 entre la propriété de Mr Roederer et celle de Mr Lauf, et formant l’angle de la rue Brûlée et de la rue des Charpentiers. Sont encore compris dans la présente vente tous les poêles avec pierres et tuyaux, les glaces, chaudrons et rayons se trouvant dans la maison et appartenant aux vendeurs ainsi que tout ce qui aux termes de la loi ou par destination est réputé de nature immobilière.
Origine de la propriété. Mr Schoen au nom de ses mandants déclare que la maison présentement vendue dépendait de la succession de dame Marie Louise Marguerite Thaler, veuve en premières noces de Mr Grigy, vivant lieutenat colonel en retraite, en secondes noces de Mr Jean Jacques Taret, chef de bataillon en retraite, chevalier de la Légion d’honneur, les deux décédés à Strasbourg, et épouse en troisièmes noces de Mr Eugène Kauffeisen, ancien notaire actuellement employé a la gare du chemin de fer de l’Est à Paris où il demeure, elle décédée à Strasbourg le 20 avril dernier après voir institué les époux Leduchat, mandants de Mr Schoen, pour ses légataires universels aux termes de son testament reçu par M° Weiss, soussigné le 29 octobre 1868, enregistré.
Madame Kauffeisen née Thaler et Mr Jean Jacques Taret son mari en secondes noces avaient fait l’acquisition du même immeuble de Mr Jean Frédéric Liebold négociant et de dame Amélie Saum conjoints demeurant à Strasbourg aux termes d’un contrat de vente reçu par M° Frédéric Zimmer et son collègue notaires à Strasbourg le 2 février 1837, enregistré et transcrit au bureau des hypothèques de Strasbourg le 25 du même mois, Volume 317 Numéro 48. Par son testament olographe en date à Strasbourg du 2 février 1837, déposé en l’Etude de M° Lacombe, lors notaire à Strasbourg, par acte du 2 août 1843 après l’accomplissement des formalités prescrites par la loi Mr Taret a institué sa femme ladite Marie Louise Marguerite Thaler sa légataire universelle & suivant ordonnance rendue par le Président du tribunal civil de Strasbourg le 30 août 1843 dont une grosse a été déposée en l’étude de M° Lacombe par acte de son ministète en date du 8 septembre de la même année Madame Taret a été envoyée en possession.
Cette même maison avait été léguée à Mr Liebolt par Mr Jean Georges Teutsch, aubergiste à Strasbourg, en vertu du testament olographe de ce dernier daté de Strasbourg du 11 mars 1814, enregistré et déposé en l’étude de M° Roessel, alors notaire en ladite ville, suivant acte reçu par lui le 10 juin 1818. Enfin M. Teutsch fit l’acquisition du dit immeuble de Mr Jean Jacques Altorff, loueur de carrosses à Strasbourg aux termes d’un contrat de vente reçu par M° Ubersaal, lors notaire à Strasbourg le 5 frimaire an trois, 25 novembre 1794, enregistré et transcrit à la conservation des hypothèques de la dite ville le 24 prairial an sept 12 juin 1799 vol. 1 N° 92.
Clauses communes (…) Entrée en jouissance – Situation hypothécaire, (…) franc et libre de toutes dettes, rentes, redevances, privilèges et hypothèques – Prix 50.000 francs duquel Mr Schoen au nom de ses mandants reconnaît avoir reçu comptant la somme de 15.000 francs (…) Etat civil des vendeurs. Monsieur Schoen déclare que ses mandants sont tous deux mariés en premières noces sous le régime de la de la communauté de biens aux termes de leur contrat de mariage reçu par M° Lacombe lors notaire à Strasbourg le 27 novembre 1845
acp 606 (3 Q 30 321) f° 9-v du 25.6.
La veuve et les enfants de Guillaume Lipp vendent la maison à l’aubergiste Jean Winckel et à sa femme Marie Anne Roser
1875 (8.3.), Jean Philippe Metz
1) Catharina Mauler Wittwe von Wilhelm Lipp, Eigenthümerin zu Straßburg, 2) Catharina Lipp, Wittwe von Lorentz Beranger, lebend Policei Commissar zu Straßburg, 2) Friederike Lipp Wittwe von Wilhelm Wickel zu Straßburg, 3) Friederike Lipp, Wittwe von Wilhelm Wickel zu Straßburg, 4) Friedrich Wilhelm Lipp, Mechaniker zu New Yorck, 5) Friedrich Theodor Lipp, Polsterer zu Straßburg, 6) Eugenie Octavie Lipp, Ehefrau von Carl Hiller, Hauptmann außer Dienst zu Paris, 7) Maria Augustine Lipp, Ehefrau von Carl Petit Girard zu Suresnes
an Johannes Winckel, Wirth, und Maria Anna Roser seiner Ehefrau zu Straßburg
ein Haus zu Straßburg, Brandgasse N° 8 für 44.000 Mark, davon 4000 Mark bezahlt (…)
Erwerbstitel Kauf Weiss vom 24. Juni 1872
acp 638 (3 Q 30 352) f° 65 n° 984 du 18.3.
Originaire de Wittersheim (près de Haguenau), Jean Winckel épouse en 1868 Marie Anne Roser, native de Biberach en Bade
Mariage, Strasbourg (n° 157) Du 26° jpur du mois de mars 1868 à dix heures du matin. Acte de mariage, de Jean Winckel, majeur d’ans, né en légitime mariage le 27 décembre 1833 à Wittersheim (Bas-Rhin), domicilié à Strasbourg, précédemment à Lafère (Aisne), ancien militaire, fils de feu Michel Winckel, tisserand, décédé à Wittersheim le 25 mars 1851 et de feu Marie Weibel, décédée à Wittersheim le 11 décembre 1865
et de Marie Anne Roser, majeure d’ans, née en légitime mariage le 12 septembre 1834 à Biberach grand duché de Baden, domiciliée à Strasbourg, servante, fille de feu Félix Roser, receveur de l’accise, décédé à Biberach le 2 novembre 1856, et d’Elisabeth Becherer, sans profession, domiciliée à Biberach (…) La future épouse produit (…) un acte de consentement de sa mère au présent mariage, reçu par M° Charles Kaiser, notaire à Zell grand duché de Baden, le 5 février dernier, enregistré à Strasbourg le deux du présent mois. Il n’a pas été fait de contrat de mariage. (témoin) Charles Roser, âgé de 28 ans, sous officier d’artillerie, demeurant à Carlsruhe (grand duché de Baden) frère de l’épouse (i 15)
1868, Enregistrement de Strasbourg, ssp 148 (3 Q 31 647) f° 65-v du 2.3.
Le 5 février 1868. Consentement par Elisabeth Becker, veuve de Félix Roser à Biberach, au mariage de sa fille Anne Marie Roser en condition à Strasbourg avec Jean Winckel célibataire Cocher à Strasbourg – certificat d’indigence du 24 janvier 1868
Le brasseur Jean Winckel et Marie Anne Roser s’engagent à entretenir la nièce de l’épouse Babette Stegner, fille de Georges Stegner, née en 1868
1874 (28.1.), Jean Philippe Metz
Nahrungs Pacht durch welchen Johannes Winckel, Bierbrauer und Maria Roser seine Ehefrau zu Straßburg
sich gegen Georg Stegner, Kiefer zu Straßburg, sich verpflichten die Tochter dieses letztern genannt Babette Stegner den 18. April 1868 geboren, bis in ihr 21. Jahr zu ernähren, zu kleiden und ihr eine entsprechende Lehre zu geben, zu 300 Franken jährlich
acp 624 (3 Q 30 339) f° 58 du 31.1.
1875 (19.11.), Jean Philippe Metz
Vertrag durch Johannes Winckel, Bierwirth und Anna Maria Roser seiner Ehefrau zu Straßburg sich verpflichten
Barbara Stegner, minderjährig, tochter von Georg Stegner, Wirth zu Straßburg, bis zum 21. Jahre zu ernähren, die nöthige Lehre geben zu lassen selbst in höheren Schulen für 10.000 Franken gleich 8000 Mark
acp 646 (3 Q 30 361) f° 42-v n° 3666 du 22.11.
1876 (25.1.), Jean Philippe Metz
Nachtrags Erklärung zu einem Akte vor Notat Metz vom 28. Januar 1874 durch welchen Johannes Winckel, Bierwirth und Maria Roser seine Ehefrau zu Straßburg, sich verbunden haben, Barbara Stegner minderjährige tochter von Georg Stegner, Kieffer zu Straßburg, bis zum 21. Jahre zu erziehen und zu unterhalten, welche am 18. April 1868 geboren ist. Der Werth der jährlichen Leistung ist abgeschätzt auf 100 Mark
est wird noch bemerkt, daß die minderjährig Nichte ist, in dem ihre Mutter Schwester der Ehefrau Winckel war. Frist noch zu laufen 15 Jahre
acp 647 (3 Q 30 362) f° 77-v n° 342 du 25.1.
1892 (22.10.), Charles Lauterbach
Hinterlegung des eigenhändigen Testaments – Maria Anna Roser Wittwe von Johann Winckel
acp 864 (3 Q 30 579) f° 66 du 28.10.
Marie Anne Roser, veuve de Jean Winckel, meurt en 1892 après avoir institué sa sœur célibataire Marie Roser pour sa légataire universelle
1893 (5.1.), Strasbourg 4 (193) Charles Lauterbach n° 15.942
Inventar über dem Nachlasse der Fr. Maria Roser, Rentnerin, Wittwe des Gastwirths H. Johann Winckel, gestorben zu Straßburg am 19. Oktober 1892.
Auf Anstehen von Frl Therese Roser, ohne Gewerbe, ledig, großjährig, wohnhaft in Straßburg, handelnd in ihrer Eigenschaft als Universalerbvermächtnißnehmerin ihrer zu Straßburg wohnhaft gewesenen und daselbst am 19. Oktober 1892 ohne vorbehaltserben verstorbene vollbändigen Schwester Fr. Maria Roser, Rentnerin, Wittwe des Gastwirts H. Johann Winckel, zufolge deren eigenhändigen Testamente vom 10. Februar 1891 welches in Folge einer durch das Kaiserliche Amtsgericht Zu Straßburg vom 22. Oktober abhin erlassene verordnung, denselben Tag in des mehrgenannten Notars Lauterbach Amtststube als Urschrift hinterlegt wurde.
Inhalt des Testaments. Ich unterschriebene Maria Anna Roser Wittwe des H. Johann Winkel zu Straßburg wohnend, vermache andurch meiner bei mir wohnende ledige Schwester Theresia Roser mein sämmtliches Vermögen ohne Ausnahme zu vollem Eigenthum indem ich Sie zu meiner universal Legatarin einsetze Zur Last jedoch meinem Bruder Karl Roser, Steuerbeamter in Karlsruhe Kostenfrei in den sechs Monaten meines Ablebens eine Summe von 10.000 Mark auszubezahlen.
acp 867 (3 Q 30 582) f° 94-v n° 4985 du 9.1. (St. E. v. 14/II 93 Bd. 197 Nr 587) – Mobilien 140, Sparkassenbetrag laut Büchlein 533, Schuld Forderungen auf 1) Karl August Weber, Getreidehändler 42.400, 2) Wilhelm Schönherr, Hofseiler in Karlsruhe 2551, 3) Karl Roser, Steuerbeamter in Karlsruhe 2000, 4) Ant Fürst, Schneider 413, 5) Wittwe C. Borst 1025 – Summa 49.000, Schulden 88 M.
Jean Winckel fait donation de ses biens à sa femme
1885, Charles Lauterbach
13. September 1879 – Schenkung durch den am 16. Januar 1881 hier verlebten Johann Winckel an seiner Ehefrau Maria Roser, des ganzen Nachlasses in Eigenthum
acp 758 (3 Q 30 473) f° 70-v n° 3891 du 21.1. (Sterbfallerkl. vom 3.ten Februar 1885 Bd. 146 N° 503. Tbd. 71 Bl. 185 N° 1
Marie Roser, veuve de Jean Winckel, vend la maison au marchand de grains Charles Auguste Weber et à Catherine Richert
1885 (18.4.), Strasbourg 4 (165), Charles Lauterbach n° 9534
Erschien Frau Maria Roser, ohne Gewerbe in Straßburg wohnhaft, Wittwe des Herrn Wittwe Johann Winckel, bei Lebzeiten Schenkwirt in Straßburg, dieselbe erklärt andurch zu verkaufen mit der gesetzlichen Garantie wegen Schulden, Privilegen, Hypotheken und anderen Hindernußen
An die anwesenden dies annehmenden Herrn Carl August Weber, Gerteidehändler in Straßburg wohnhaft, und dessen hierzu ermächtigte Ehefrau Catharina Richert, bei ihm wohnend, solidar Käufer, die folgende Liegenschaft
Beschreibung. Ein dreistöckigtes Wohnhaus nebst Mansarden Rechten und Zugehördten, zu Straßburg gelegen Brandgasse N° 8 zwischen Herrn Roederer & Lauf und die Ecke der Brandgasse und Zimmerleutgasse bildend, sammt Allen was darin mauer- niet- und nagelfest und als unbewegliches Gut Zu betrachten ist und nebst allen Gegenständen, welche zum Fonds der darin betriebenen Wirtschaft Estaminet Winckel gehören und über deren Bestand die Käufere sich bereits geeinigt haben.
Eigenthumsnachweis. Die oben bezeichnete Liegenschaft gehörte zur Gütergemeinschaft welche zwischen Frau Wittwe Winckel und ihrem verlebten Ehemann bestanden hat und wurde durch dieselben erworben von 1. Frau Katharina Mauler, Eigenthümerin in Straßburg, Wittwe des Rentners Herrn Wilhelm Lipp und 2. den Erben dieses Letztern, a) Catharina Lipp Wittwe des Polizeikommissärs Herrn Lorentz Beranger, b) Friederike Lipp Wittwe von wohnung Wickel, c) Friedrich Wilhelm Lipp Mechaniker in New York (Amerika) durch Bevollmächtigten vertreten, d) Friedrich Theodor Lipp, Polsterer in Straßburg, e) Eugenie Octavie Coralie Lipp Ehefrau des retraitierten Capitäns Carl Hiller in Vaugirard-Paris wohnhaft, f) Marie Augustine Lipp, Ehefrau des Hauptmanns außer dienst Herrn Carl Petit Girard in Suresnes bei Paris, zufolge Kauffvertrages errichtet vor Notar Metz in Straßburg den 6. und 8. März 1875 und überschrieben beim Hypothekenamte zu Straßburg den 8. April darauf im Bde 1551 N° 17.
Die Gütergemeinschaft Winckel-Roser löste sich auf mit dem am 16. Januar letzthin erfolgten Ableben des Herrn Winckel welcher hierin überlebende Wittwe die Verkäuferin, als Theilhaberin der Gütergemeinschaft und als Universalerbin gemäß einer Schenkungsurkunde des amtierenden Notars vom 13. September 1879 eigenthümlich gehörig registritrt, hinterließ. Dasselbe Immöbel gehörte zur Gütergemeinschaft, welche zwischen den obengenannten Eheleute Lipp Mauler bestand. Dieselbe erwarben sie laut Urkunde des früheren Notars Emil Weiss in Straßburg vom 24. Juni 1872, transcribirt im Hypothekenamte Zu Strassburg vom 24. Juni 1873, transcribirtt im Hypothekenamte zu Straßburg den 2. Juli darauf, im Bd. 1353 N° 63, von Herrn Victor Schoen in Straßburg, als Bevollmächtigter des Herrn Joseph Frantz Leduchat chef escadron en retraite, & dessen Ehefrau Eugénie Constance Beaujour in Gorce wohnhaft.
Herr Lipp Vater verstarb mit Hinterlegung seinen genannten Wittwe als Theilhaberin ihrer Gütergemeinschaft und seiner auf genannten sechs Kinder als Leben, wie bestätigt worden durch Inventar errichtet durch obengenannten Notar Metz den 20. Januar 1875.
Eheleute Leduchat ererbten dieses Immöbel im Nachlasse der Frau Marie Luise Margareth Thalen, Wittwe aus erster Ehe des Herrn Grigy lebend Oberlieutenantt in Ruehstand, sodann Wittwe zweiter Ehe des Bataillons Chef Johann Jacob Taret und Ehefrau dritter Ehe des Hn Eugen Kauffesien, ehemaliger Notar in Paris, welche am 20. April 1872 zu Straßburg gestorben ist, und die Ehegattin Leduchat laut Testament des Notars Emil Weiss in Strassburg vom 29. October 1878 zu Universalerbin eingesetzt hatte.
Bedingungen (…) Kaufpreis. Der Kaufpreis beträgt 60.400 Mark. Hierauf bekannt die Verkäuferin von den Käufern empfangen zu haben 2400 Mark vor Fertigung dieses Vertrages und 13.600 Mark soeben in Gegenwart des Notars und in kursmäßigen Münzen
acp 761 (3 Q 30 476) f° 91-v du 27.4.
1855, Enregistrement de Strasbourg, ssp 121 (3 Q 31 620) f° 75-v du 27.11.
1 novembre 1855 – Consentement par Jean Weber et Jeanne Weber conjoints demeurant à Nagold (royaume de Wurtemberg) au mariage de leur fils Charles Auguste Weber à Strasbourg
1855 (26.11.), Roessel A.
Certificat constatant le dépôt de l’extrait d’un contrat de mariage reçu Achard notaire à Hochfelden le 31 octobre dernier entre Charles Auguste Weber, boulanger et Catherine Richert, les deux à Strasbourg
acp 445 (3 Q 30 160) f° 43 du 29.11.
Originaire de Nagold en Wurtemberg, le pâtissier Charles Auguste Weber épouse en 1855 Catherine Richert, native d’Alteckendorf
Mariage, Strasbourg (n° 504)
Du quatrième jour du mois de décembre l’an 1855 à dix heures du matin. Acte de mariage de Charles Auguste Weber, majeur d’ans, né en légitime mariage le 4 juillet 1830 à Nagold (Würtemberg) domicilié à Strasbourg, Garçon pâtissier, fils de Jean Weber, propriétaire, et de Jeanne Schwartzkopf, sans état, conjoints domiciliés à Nagold,
et de Catherine Richert, majeure d’ans, née en légitime mariage le 26 avril 1833 à Alt-Eckendorf (Bas-Rhin), domiciliée à Alt-Eckendorf, fille de feu Michel Richert, laboureur décédé à Alt-Eckendorf le 8 août 1843 et de Catherine Kaesser, sans état, épouse actuelle de Martin Tugend, cultivateur avec lequel elle est domiciliée à Alt-Eckendorf, ci présente et consentante (…) il a été passe le 31 octobre dernier un contrat de mariage devant M° Achard, notaire à Hochfelden (i 27)
Le marchand de grains Charles Auguste Weber loue une partie de la maison à la société de brasserie Hœffel et Compagnie dont le siège se trouve à Schiltigheim. La société locataire est autorisée à agrandir la salle de débit.
1889 (13.9.), Strasbourg 4 (180), Charles Lauterbach n° 13.094
Vermiethung – Erschienen H. Karl August Weber, Getreidehändler in Straßburg wohnend, derselbe vermiethet hierdurch für die dauer von elf auf einander folgende Jahre, welche von 29. September des laufenden Jahes beginnen und von 29. September des Jahres 1900 zu Ende gehen werden
an die Firma Hoeffel & Cie, Bierbrauerei-Gesellschaft mit dem Sitze in Schiltigheim für welcher ihr Inhaber und Vertreter H. Peter Hoeffel, Bierbrauer in Schiltigheim wohnhaft zugegen ist, annimmt
Folgende Räumlichkeiten in einem dem Vermiether gehörende Hause in welchem eine Gestwirtschaft betrieben wird, gelegen in der Stadt Straßburg, Brandgasse N° 8 & die Ecke dieser Gaß & der Zimmerleutgasse bildend, in welcher Gasse es die N° 2 trägt, nämlich
die Wirschaftsräume im Erdgeschoß nebst Küche und ein Zimmer, ein Bier- und ein Weinkeller und ein anderer Keller, im vierten Stockwerken zwei Wohnzimmer aus eine Dackkammer, Waschküche im Hofe und der Hof.
Bemerkt wird, daß diese Miethsräume bis zum 25. März 1890 an H. Friedrich Still, Schenkwirth in Straßburg, zu einem Miethzinse von 520 Mark für das vierteljahr vermiethet sind. Falls die Mietherin Firma Hoeffel & Cie vor dem 25. März nächsthin in den Genuß der Miethsräume eintreten wollte, hätte sie sich mit H. Still dieserhalb zu verständigen. (…)
Gegenwärtige Vermiethung geschah unter folgenden Lasten, Causulen und Bedingungenen (…) 2. Die Mietherin ist berechtigt den Hausgang von der Zimmerleuthgasse her Zur Vergrößerung der Wirtsstuben zu benutzen und nöthigenfalls die Mauer wegzunehmen, jedoch derart daß der Bau des Hauses nicht darunter leidet. Sie kann ferner das Höfchen während der Miethzeit für sich allein zu Geschäfte gebrauchen und desselben nach Guthdüncken einrichten und auch überdecken. Nach Ablauf der Miethzeit kommen jedoch die Verbesserungen dem Vermiether zu gut. 3. Die Mietherin ist ferner befugt ein Kellerloch derart zu erweitern daß sie die Fässer direkt von der Gasse in den Keller abladen konne, jedoch ohne daß hierdurch die Gebäulichkeiten Schaden erleiden würden. 4. Es steht der Mietherin auch noch die Mitbenutzung mit den andern Bewohnern des Hauses des Eingangs von der Brandgassen her, zu. (…) Gegenwärtige Vermiethung geschah außerdem vermittelst eines jährlichen Meitzinses von 3400 Mark
acp 819 (3 Q 30 534) f° 42-v du 18.9.
Partage judiciaire de la succession de Catherine Richert entre le veuf et les quatre enfants, fait après l’adjudication de la maison
1897 (9.6.), Charles Lauterbach
Gerichtliche Teilung de Nachlasses von Katharina Richert lebend Ehefrau Karl August Weber, Vater, Rentner in Strasbourg, geostorben am 15. Mai 1891. Beteiligt sind
I. der Wittwer Karl August Weber Vater, wegen der Errungenschaftgemeinschaft bestanden laut Ehevertrag des Notars Achard zu Hochfelden vom 31. Oktober 1855
II. die Kinder und Erben, nämlich, 1. Karl August Weber Sohn, Gastwirt in Straßburg, 2. Katharina Weber, ledig großjährig ohne Gewerbe in München, 3. Emilie Sophie Weber, Ehefrau Julius Eduard Woringer, evangelischen Pfarrer zu Jägerthal Gemeinde Windstein, 4. Augustine Weber Ehefrau Albert Herrel, Gerichtsaktuar in Heidelberg
Vorbemerkungen. Haus Brandgasse N° 8 versteigert amt. Notar 15. März 1897 an Peter Hoeffel Bierbrauereibesitzer in Schiltigheim um 82.600 M., wovon 32.000 M. an Therese Roser angewiesen
Gemeinschafft. Aktiv-Masse 1. Mobiliargegenstände & Waren einzeln geschätzt zu 1869, 2. baares Geld, 300, 3. Guthaben aus dem früheren Masthandel 1224.
4. Bann Straßburg, Wohnhaus mit Erdgeschoß & 3 Stockwerken, Grund & Boden Metzgerplatz N° 9, geschätzt 60.000 erkauft amt. Notar 23.12.1876
5. Steigpreis Peter Höffel wie vor 82.600, bezahlt 25. – Gesamtbetrag M. 148.801
Passivmasse 1. Ersatzforderung des Nachlasses 3372, 2. Ersatzforderung des Wittwers 1904, 3. Passiva geschuldet gewesen für Warenlieferungen resp. Arbeiten & bezahlt durch den Wittwer 1943, 4. Hypothek. Schuld wie voe angewiesen an Therese Roser 32.000, zusammen 39.219
Aktivüberschuß 109.581
Nachlass 10 Gemeinschaftshäffte 54.791, 2. Ersatzforderung 3372, 3. Rückliestungen der Frau Woringer für Schenkung im Ehevertrag des amt. Notars vom 17. August 1889, Mobilien 9000, Geld 3000 = 9000 – Summa 37.163
Passiv, Vergütung an den Wittwer für die Hälfte obiger 9000, welche aus der Gemeinschafft entnommen wurden 4500 – Bleibt Nachlass 62.663
Rechnungen (…)
acp 926 (3 Q 30 641) f° 83 n° 1333 du 11.6. (Erbschaftserkl. vom 21.9.91 Bd. 185 N° 364)
Charles Auguste Weber meurt en 1910 en délaissant pour héritières ses trois filles, le fils étant réduit à la légitime.
1910 (29.6.), Charles Lauterbach n° 37.086
Inventar nach Ableben von Carl August Weber, Rentner hier, gestorben am 16. März 1910. Auf Anstehen testamentsvollstreckers Albert Herrel, Landgerichtssekretär, Heidelberg
Testament Not. Kehl II vom 12. Juli 1901 und Kehl I. vom 1. Oktober 1909. Erben sind hienach 3. Kinder nachgenannt während ein Sohn auf den Pflichtteil gesetzt ist
acp 1099 (3 Q 30 814. III) f° 70 n° 655 du 5.7. – Aktiv, 1) Mobilien 535, 2) Grundstück hier Metzgerplatz 9 vermacht 60.000, 4) Bargeld 400, 5) Forderungen 12.803
Passiv, a) Beerdigungskosten 916, b) an Miterbin Frau Herrel 2714, c) an Miterbin Frau Woringer 2714, abzügl. von 3580 laut Theilung amt. Notar vom 9. Juni 1897, d) sonstige 264
Vermächtnisse a) zu Gunsten der Köchin Johanna Gless jährliche Rente 1000 und Wohnungsrecht in obigem Hause, b) Pflichtteilrecht des Sohns Carl Weber
acp 1099 (3 Q 30 814. III) f° 70-v n° 656 du 5.7. – N° 37.087. Theilung und Pflichtteilberechnung des Nachlasses Carl August Weber, Rentner hier, gestorben am 16. März 1910, Wittwer von Catharina Richert.
Die Erben sind 1. Augustine Weber Ehefrau Albert Herrel, Landgerichtssekretär in Heidelberg, 2. Emilie Sophie Weber, Ehefrau Julius Eduard Woringer, Pfarrer zu Ensisheim (Ober-Elsass), 3. Catharina Weber, ledig in Hamburg, Hinschenweg 5, Pflichtteilsberechtigt ist der Sohn Carl August Weber, Rentner hier
Einleitung. Laut Testament, Notariat II Kehl vom 12. Juli 1901 hat der Verstorbene vermacht 1) Haushälterin Johanna Gless Wohnungsrecht im II. Stock des Hauses Metzgerplatz N° 9 und die Mobilien, ferner jährliche Leibrente von 1000 M
2) an die 2 Kinder Frauen Herrel und Woringer das Haus Metzgerplatz N° 9 gegen Verrechnung des Wertes indem Nachlass, 3) an die genannte Johanna Gless einer weiteren Rente von 500 jährlich im Falle des Fortfalles dee Wohnungsrechte, 4) Bestimmung daß der Sohn Carl auf den Pflichtteil gesetzt ist aber die Zinsen aus s. ordentlichen Erbteil beziehen darf, gegen Entrchtung des 4. Teiles der Rentenvermächtnisse
Laut Testament von Notariat I Kehl vom 1. Oktober 1909 hat der Verstorbene an den Enkel Theodor Herrel in Heidelberg seine Uhr Kette vermacht und den Herrn Albert Herrel zum Testamentsvollstrecker ernannt
Massen aufstellung. I. Aktiv 1) Mobilien Johanna Gless vermacht 535, 2) Uhr-Kette dem Enkel vermacht 65, 3) Grundstück der Frauen Herrel und Woringer vermacht
Stadt Strassburg, Flur 32 N° 6, 0,63 Hf Whs Metzgerplatz 9, 60.000
4) Bargeld 400, 5) Bankvorhaben 2758, 6) Guthaben an Sparkasse Kehl 8956, 7) Guthaben an Sparkasse hier 1028, 8) Miete des Hauses 60 (Summe) 73.803
Passiv (…) 6566, bleibt reiner Nachlass 67.257
Im Wege des Vergleichs wurde jedoch zwischen den beteiligten vererinbart, daß dieselbe als vollständige Abfindung für seinen Pflichtteil sowie für das Vermächtnis bestehend in den Zinsen aus s. ordentliche Erbteil, soweil er den Pflichtteil übersteigt, die Summe von 12.000 M. erhalten soll. Dagegen wird er auch von der Verpflichtung zu der Leistung der Rente von Frl. Gress beizutragen entladen*
Zuteilungen
Enregistrement de deux testaments qu’a faits Charles Auguste Weber devant les deux notaires de Kehl en 1901 et 1909.
1910, Charles Lauterbach
Testament erwähnt in Inventar Teilung Lauterbach des am 16. März 1910 hier des verstorbenen Rentners August Weber, enthaltend verschiedenen Zuwendungen zugunsten der Haushälterin Johanna Gless aus Weyersheimn, Vermächtnis des Hauses Metzger platz 9 hier an die Kinder Emilie und Augustine und Stellung des Sohns Carl auf den Pflichtteil
acp 1100 (3 Q 30 815. II) f° 36 n° 1060 du 14.7.
Testament des vorgenannten Erblassers enthaltend Vermächtnis der Taschenuhr an den Enkel Theodor Herrel in Heidelberg und Vermächtnis einer lebens Rente von 1000. M an obengenenannter Haushälterin
acp 1100 (3 Q 30 815. II) f° 36 n° 1061 du 14.7.
Adjudication de la maison avant partage judiciaire. L’acquéreur est Pierre Hœffel, propriétaire de brasserie à Schiltigheim
1897 (16.3.), Charles Lauterbach n° 19.962
Versteigerung im gerichtlichen Theilungsverfahren Weber, woran beteiligt sind I. Karl August Weber Vater, Rentner in Straßburg Wittwer von Katharina Richert, wegen der bestandenen Gemeinschafft
II. die Kinder und erben der Frau am 15. Mai 1891 gestorben, 1. Karl August Weber Sohn, Gastwirt in Straßburg, 2. Katharina Weber, ledig großjährig ohne Gewerbe in München, 3. Emilie Sophie Weber, Ehefrau Julius Eduard Woringer, evangelischen Pfarrer zu Jägerthal Gemeinde Windstein bei Niederbronn, 4. Augustine Weber Ehefrau Albert Herrel, Gerichtsaktuar in Heidelberg
Bann Straßburg, Wohnhaus mit Erdgeschoß & 3 Stockwerken, Grund & Boden, war Gastwirtschaft, Brandgasse N° 8, Ecke dieser Gasse & der Zimmerleutgasse. Anschlag 8800 M.
erworben durch Eheleute Weber Richert laut Akt des amt. Notars vom 15. Mai 1891
Bedingungen, Genuß und Steuren vom 26. März d. J. ab. Steigpreis zahlbar an Therese Roser, ledig, großjährig ohne Gewerbe in Straßburg im Kloster St Arbogast au Grund Kauf des amt. Notars vom 18. April 1885 und Testament hinterlegt beim amt. Not. 22. Oktober 1892. mit 4 p. C. Zins vom Genußantritt ab, M. 32.000, der Rest (…)
Zuschlag an August Brion hier, welcher erklärte gesteigert zu haben für Peter Hoeffel, Bierbrauereibesitzer in Schiltigheim annehmend um 82.600 M.
acp 923 (3 Q 30 638) f° 58-v n° 5858 du 23.3.
Fils du pasteur Frédéric Charles Hœffel, Pierre Hœffel épouse en 1878 Marguerite Mathilde Knoderer : contrat de mariage, célébration
1878 (25.7.), Strasbourg 14 (186), Emile Ritleng jeune n° 21.609 (bilingue)
Ehevertrag – ont comparu Monsieur Pierre Hoeffel, industriel demeurant à Schiltigheim, fils majeur de Monsieur Frédéric Charles Hoeffel, pasteir demeurant à Breuschwickersheim et de feu Madame Salomé Muhlenbeck son épouse, Futur époux, Monsieur le futur époux agissant sous l’assistance et du consentement de Monsieur son père d’autre part
Et Mademoiselle Marguerite Mathilde Knoderer, mineure, demeurant et domiciliée à Strasbourg, Future épouse, fille de Monsieur Félix Gustave Knoderer, propriétaire et de Dame Sophie Caroline Lorentz, son épouse, tous demeurant à Strasbourg, Mademoiselle la future épouse agissant sous l’assistance et du consentement de sesdits père et mère D’autre part
acp 682 (3 Q 30 397) f° 19 n° 2660 du 26.7. Art. I. Annahme der auf Errungenschaft beschränkte Gütergemeinschaft, das Ueberlebende der Ehegatten behalt die Nutznießung vom Antheile des Zuerstserbenden an den Gütern der Gemeinschaft.
Art. 6. Der Bräutigam bringt in die Ehe I. Möbel und Getuch im Werth von 1292, II. baares Gelt 2400, industrielle Wertschaften 4000 (Summa) 7692. Die obenangeführten in die Ehe eingebrachten Güter rühren her vom Nachlass seiner Mutter
Art. 7. Die Braut bringt in die Ehe eine Wertschaft von 4800 herrührend aus dem Nachlasse ihrer Schwester Fräulein Wilhelmine Knoderer. Die Eheleute Knoderer schenken der Braut ihrer Tochter als Vorempfang aus die Verlaßenschafft des Zuerststerbenden und * auf den Nachlass des Ueberlebenden I. Mobilierngegenstände im Werth von 1724, II. baares Geld 6475, Zusammen 11.200
Die Brautleute schenken such gegenseitig zu Gunsten des Ueberlebenden, die Nutznießung ihres obigen Einbringens
Mariage, Strasbourg (n° 436)
Strassburg am dritten August 1878. Vor dem Standesbeamten erschienen heute zum Zwecke der Eheschließung 1. der Bierbrauer Peter Hoeffel, evangelischer Religion geboren den 19. November des Jahres 1853 zu Reichenweier (Ober-Elsass), wohnhaft zu Schiltigheim (Unter-Elsass), ehelicher Sohn des Pfarrers Friedrich Carl Hoeffel zu Breuschwickersheim (Unter-Elsass) wohnhaft und der verstorbenen Maria Salome geb. Mühlenbeck, zuletzt wohnhaft zu Breuschwickersheim
2. Margaretha Mathilde Knoderer, ohne Beruf, evangelischer Religion, geboren den 5. October des Jahres 1857 zu Strassburg, wohnhaft zu Strassburg, Tochter des Rentners Felix Gustav Knoderer und der Caroline Sophie gebornen Lorentz, Eheleute wohnhaft zu Strassburg (i 77)
Pierre Hœffel naît à Riquewhr en 1853 alors que son père est pasteur à Aubure et meurt à Strasbourg en 1949
Naissance, Riquewihr (n° 37)
L’an 1853 le 19° jour du mois de novembre (…) est comparu le sieur Frédéric Charles Hoeffel, pasteur âgé de 33 ans, domicilié à Aubure, Haut-Rhin, lequel nous a déclaré que cejourd’hui 19 novembre à sept heures et demi du matin est né dans la maison Lemp située sur la place du marché à Riquewihr un enfant du sexe masculin qu’il nous a présenté et auquel il a déclaré vouloir donner le prénom de Pierre, lequel enfant il a eu de son épouse Marie Salomé Mühlenbeck, sans état particulier, âgée de 29 ans, domiciliée momentanément en cette commune
[in margine :] Décédé à Strasbourg le 7 avril 1949 (i 359)
Déclaration de succession de Pierre Hœffel, août 1959
Déclaration du 20 août 1949 N° 1043 (R.M. Hiff, notaire, Quai Rouget de l’Isle 14, Strasbourg)
Succession de M. Pierre Hoeffel
Le soussigne Monsieur Paul Zeidler, clerc de notaire en l’étude de M° R.M. Hiff, notaire à Strasbourg, mandataire de toutes les héritières selon procuration reçue par M° Hiff le 10 mars 1949, déclare que M. Pierre Hoeffel, de nationalité française, veuf de dame Marguerite Mathilde née Knoderer, décédée à Strasbourg le 29 juin 1922, ancien brasseur, domicilié à Strasbourg, est décédé à Strasbourg le 7 avril 1949.
Observations préliminaires. Les époux Hoeffel-Knoderer s’étaient mariés à Strasbourg en l’anné 1878. Par contrat de mariage reçu par M° Fick, alors notaire à Schiltigheim le 17 septembre 1912, ils avaient adopté le régime de la communauté universelle selon les articles 17438 et suivants du Code civil allemand (B.G.B.) alors en vigueur. Ainsi qu’il est dit ci-dessus, le mariage est arrivé à dissolution par le décès de Mme Hoeffel née Knoderer survenu à Strasbourg le 29 juin 1922. Aux termes de l’article 1483 du B.G.B., la communauté ne fut pas dissoute mais a été continuée entre le survivant des époux et les descendants communs. L’époux survivant a accepté la continuation de cette communauté, ainsi qu’il a été confirmé par certificat délivré par le Tribunal Cantonal de Strasbourg le 23 août 1923 (numéro d’order VI 442/23). En conséquence, font partie de cette communauté continuée tous les biens communs ayant existé lors du décès de Madame Hoeffel, ainsi que tous ceux que l’époux survivant a acquis deopuis lors (art. 1485 du B.G.B.) Il n’existe pas de biens réservés propres à l’époux survivant. Tous les biens existants au jour du décès de Mr Hoeffel font ce de fait, partie de la communauté continuée.
Le decujus a laissé pour seules héritières ses trois filles, savoir
1°) Madame Sophie Marie née Hoeffel, veuve de Mr Paul Rudi, en son vivant pasteur, demeurant à Strasbourg, rue Salzmann n° 5, née à Schiltigheim le 29 mai 1879 ayant 5 enfants, savoir 1) Jean Paul Rudi, né à Neuwiller-lès-Saverne le 18 décembre 1900, décédé à Luneray le 24 mai 1945, 2) Marie Rudi, née à Neuwiller-lès-Saverne le 22 mai 1903, 3) Luisa Rudi, née à Neuwiller-lès-Saverne le 6 avril 1905, 4) Thérèse Rudi, née à Neuwiller-lès-Saverne le 25 mars 1911, 5) Edouard Rudi, né à Ingwiller le 12 janvier 1917
2°) Madame Mathilde Marthe née Hoeffel, épouse de Mr Albert Hamm, ancien professeur à la faculté de médecine de l’Université de Strasbourg, demeurant à Strasbourg, rue Salzmann n° 7, née à Schiltigheim le 3 février 1882, ayant deux enfants, savoir a) Daniel, né à Strasbourg le 12 mars 1909, b) Doris, née à Strasbourg le 15 mai 1917
3°) Madame Salomé Madeleine née Hoeffel, épouse du Dr. Willy Cohn, docteur en droit, demeurant à Strasbourg, rue Schwilgué n°& 16, née à Schiltigheim le 9 novembre 1885, n’ayant pas d’enfants
ensemble pour la totalité de la succession ou divisément chacune pour un tiers, ainsi que ces qualités sont confirmées par le certificat d’hérédité délivré par le tribunal cantonal de Strasbourg le 29 juin 1949 sous n° d’ordre VI 403/49
Etablissement de la masse. Actif. 1°) Argent comptant. Il existait au jour du décès une somme en argent comptant de 9000.
2°) Titres et valeurs, a) auprès du Crédit commercial de France 53.100, b) auprès de la Société Générale Als. de banque 232, 46.800, c) auprès du Crédit industriel d’Alsace et de Lorraine 12.474, 13.545, 21.420, 10.400, 5160, 8280, 8645, 9920, 16.845, 15.240, 10.670, 12.060, 6900, 1700, 4200, 8400, 32.180, 13.200, 7920, 110.528, 11.018, 24.000, d) auprès de la Banque Nationale pour le commerce et l’industrie (…), 99.200, 1166, 31.600, 31.600, e) auprès de la Grande Brasserie la Nouvelle Gallia 660.000, 95.000, 270.750, f) à domicile 1036, 25.200, 30.350., 13.220., 6104, 27.600, 165.375, 3000, g) au coffre-fort auprès du la Société Générale Als. de banque 7170, 1434, 76.880, 14.750, 5260, 6744, 16.375, 14.375, 46.500, 36.060. 53.600, 28.000, 29.010, 100
3°) Parts cociales a) de ls société Habitations populaires à Strasbourg 63.000, b) de la Société coopérative de bâtiments de Schiltigheim 1037, c) de la Société coopérative de logements populaires Strasbourg 1250
4°) Comptes courants 61.831, 53.859, 14.964, 114.967, 64.212, 142.939, 5000
5°) Comptes d’épargne 205.665, 7395
6°) Hypothèques 50.363, 100.098
7°) Créance chirographaire 30.404
8°) Immeubles a) à Strasbourg 1) une maison d’habitation sise à Strasbourg, rue Salzmann n° 7, cadastrée section 7 n° 10, 3,75 ares sol maison. Il est fait observer que cette maison est fortement endommagée par faits de guerre. Elle n’est mentionnée dans la présente déclaration que pour mémoire.
2) une maison d’habitation sise à Strasbourg uue Brûlée n° 8, cadastrée section 64 n° 10, 1,70 are sol maison et bât. accessoires. Il est fait observer que cette maison est endommagée par faits de guerre. Elle n’est mentionnée dans la présente déclaration que pour mémoire.
3) une maison d’habitation sise à Strasbourg, Faubourg de Saverne n° 20, cadastrée section 53 n° 25, 3,07 ares sol 2 maisons et bât. acc. Il est fait observer qu’une partie de cet immeuble est comprise dans l’alignement légal prévu par les Services de l’Urbanisme de la Ville de Strasbourg. Evalué à la somme de 3.960.000.
4) une maison d’habitation sise à Strasbourg rue de Zurich n° 65, cadastrée section 34 n° 11, 0,99 are cour maison, évaluée 3.240.000
5) une maison d’habitation sise à Strasbourg rue des Bateliers n° 9, cadastrée section 23 n° 6, 1,26 are sol maison. Il est fait observer que cet immeuble est endommagé par faits de guerre et ne figure aux présentes que pour mémoire. [Déclar. du 31. XI 53]
6) une maison d’habitation sise à Strasbourg-Neudorf route du Rhin n° 57, cadastrée section 59 n° 105, 7,97 ares sol maison. Il est fait observer que cet immeuble est endommagé par faits de guerre et ne figure aux présentes que pour mémoire. [Déclar. du 31. XI 53]
b) à Schiltigheim, 7) une maison d’habitation sise à Schiltigheim section 15 n° 85, Munchherrengasse n° 21, 2,58 ares sol maison et bât acc. évaluée 1.800.000
8) une maison d’habitation sise à Schiltigheim rue du Tribunal n° 5, cadastrée section 12 n° 15, Klaraweg n° 5 5,91 ares sol maison et bât accessoire. évaluée 1.320.000
c) à Bischheim 9) une maison d’habitation route Nationale N° 31, cadastrée section 2 n° 7, rue des Veaux n° 31, 5,49 ares sol maison et bât accessoire. évaluée 1.150.000
d) à Mundolsheim 10) une maison d’habitation rue de la Gare n° 32, cadastrée section 3 n° 65, 14,11 ares, sol maison et bât. acc. Il est fait observer que cet immeuble est endommagé par faits de guerre et ne figure aux présentes que pour mémoire.
e) à Illkirch-Graffenstaden 11) une maison d’habitation route de Lyon n° 239, cadastrée section 10 n° 290/110, 3,58 ares, sol maison et bât. acc. 2,15 ares jardin, évaluée 790.000
f) à Sélestat 12) une maison d’habitation rue des Chevaliers n° 29, cadastrée (-). Il est fait observer que cet immeuble est endommagé par faits de guerre et ne figure aux présentes que pour mémoire.
g) Metz-Plantières- Queuleu 13) un terrain section 13 n° 15, rue de Strasbourg n° 86-e, 12,41 ares terre, 7,16 ares jardin, 9,08 ares sol, évalué à 180.000
Immeubles ruraux h) à Schiltigheim 14) 35.000, i) à Pfettisheim 15) 40.000, 31.000, 30.000, 23.000, 18.500, j) à Osthoffen 16) 30.000
9°) Eléments de fonds de commerce. Dans les immeubles sus-désignés sous 2 à 12 sont exploitée des restaurants dont divers éléments du fonds, notamment les licences respectives, ainsi que divers mobilier d’agencement, dépendent de la communauté continuée, savoir
a) rue Brûlée n° 8 à Strasbourg, Restaurant A la Petite Mairie, évalué 130.000
b) Faubourg de Saverne n° 20 à Strasbourg, Restaurant Vonville, évalué 120.000
c) rue de Zurich n° 65 à Strasbourg, Restaurant Au Coin des Craquelins, évalué 120.000
d) rue des Bateliers n° 9 à Strasbourg, Restaurant A l’Ancre, évalué 110.000
e) route du Rhin n° 57 à Strasbourg-Neudorf, Restaurant Au Général Desaix, évalué 80.000
f) rue de la Mairie n° 21 à Schiltigheim, Restaurant Aux Quatre Vents, évalué 80.000
g) rue du Tribunal n° 5 à Schiltigheim, Restaurant A la Bonne Source, évalué 80.000
h) route Nationale n ° 31 à Bischheim, Restaurant à l’Aigle, évalué 80.000
i) rue de la Gare n° 32 à Mundolsheim, Restaurant A la Gare, évalué 60.000
j) route de Lyon à Illkirch-Graffenstaden, Restaurant Au Brochet, évalué 65.000
k) rue des Chevaliers n° 29 à Sélestat, Restaurant A la Ville de Reims, évalué 80.000
10°) Proratas de fermages et loyers 10.648
11°) Coupons échus
12°) Mobilier de ménage et meubles meublants 1.700.739
Total de la masse active 18.807.130
Passif. Comme passif il y a lieu de déclarer uniquement les impôts et taxes pour l’année 1949 (…) total 103.803 – Bilan, excédent actif de 18.703.327
Il est fait observer que le défunt n’a fait de son vivant et depuis l’entrée en vigueur de la loi du 14 mars 1942 aucune donation entre vifs ni autres dispositions à titre gratuit sous quelque forme et au profit de qui que ce soit.
Déclaration de succession vol. 643 (3 Q 40.878)
Déclaration du 4 octobre 1949 N° 1241
Déclaration complémentaire rectificatice. (…) Actif 2° Titres et valeurs, il faut lire 321.600 au lieu de 32.160
3 Q 38194 Tables alphabétiques des successions et absences, volume n° 136 – (janvier – juin 1949) i 79
n° 85 Hoeffel, Pierre, brasseur, 95 (ans), (demeurant) 7 rue Salzmann, (né à) Riquewihr, 7.4.49, veuf, Knoderer Mathilde, 4 enf. Rudi Marie, m. adr.
Renvois (…), maisons, mob.
(decl. suc) 20.8.49 n° 1043 – 14.10.49 n° 1241 – 31.11.53 n° 1335 – 8/5/63 n° 446, n° 447
(n° consignation) ac 24.8.53 N 924 = 419008
La maison est inscrite à partir de 1951 au nom de Willy Cohn et de Madeleine Hœffel
Le docteur en droit Willy Cohn épouse en 1913 Salomé Madeleine Hœffel
Mariage, Strasbourg (n° 1146) Strassburg am 14. Oktober 1913. Vor dem Standesbeamten erschienen heute zum Zwecke der Eheschließung 1. der Referendar Doktor juris Willy Cohn, evangelischer Religion geboren am 18. August des Jahres 1886 zu Strassburg, wohnhaft zu Strassburg, Broglieplatz 3, Sohn des verstorbenen Kaufmanns Hermann Cohn, zuletzt wohnhaft in Strassburg, und seiner Ehefrau Friederike gebohrenen Kahn, wohnhaft zu Straßburg
2. die Salomea Magdalena Hoeffel, ohne Beruf, evangelischer Religion, geboren am 9. November des Jahres 1885 zu Schiltigheim /:Unter-Elsass:/, wohnhaft in Schiltigheim, Tochter des Bierbrauereibesiters Peter Hoeffel und seiner Ehefrau Mathilde, gebohrenen Knoderer, wohnhaft zu Schiltigheim [unterzeichnet] Dr Willy Cohn, Madeleine Cohn geb. Hoeffel (i 255)