19, quai Saint-Nicolas
Quai Saint-Nicolas n° 19 – IX 13 (Blondel), P 1373 puis section 15 parcelle 18 (cadastre)
Maître d’ouvrage Jean Michel Stribeck, courtier, maître maçon Jean Lingenhœlin, 1769
Troisième étage, maître d’ouvrage François Schell, artiste peintre, 1896



Quai Saint-Nicolas (avril 2016) – Façade du n° 19 (août 2022) – Etages (juillet 2024)
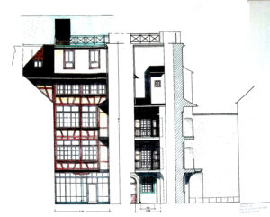
La maison est inscrite au nom du sellier André Butzmann dans le Livre des communaux (1587). Elle a un auvent, deux encorbellements successifs et une galerie. Les propriétaires suivants sont aussi selliers (Jean Hetzel, 1604, puis Adam Meichel, 1639). Jean Raimbaut Dietrich qui est déjà propriétaire de la maison voisine (actuel n° 20) l’achète en 1647. Ses héritiers la revendent en 1702 à l’orfèvre Alexandre Müller en convenant de servitudes. Alexandre Müller doit y avoir fait d’importants travaux puisque les bâtiments acquis pour 700 livres en 1707 sont revendus 1 500 livres en 1738 à la veuve du marchand Jean Philippe André. Le courtier Jean Michel Stribeck achète la maison en 1769, acquiert de la Ville un terrain vers le quai et charge la même année le maître maçon Jean Lingenhœlin de reconstruire et transformer les bâtiments avant et arrière. Le bâtiment sur le quai à rez-de-chaussée et deux étages prend son aspect actuel. Les trois arcades du rez-de-chaussée (porte et fenêtre de part et d’autre) et la fenêtre centrale du premier étage sont surmontés de mascarons qui représentent les saisons, au rez-de-chaussée le Printemps, l’Été et l’Automne par des femmes, l’Hiver à l’étage par un homme barbu (voir le Répertoire des mascarons de Brigitte Parent). La moulure des linteaux discontinue au premier étage est continue au deuxième. Jean Michel Stribeck passe en 1801 une convention avec son voisin à l’arrière et en 1812 avec son voisin de gauche (actuel n° 20).

La maison et celle à pignon au milieu de l’image, plan-relief de 1727 (Musée historique, cliché Thierry Hatt).

Elévations préparatoires au plan-relief de 1830, îlot 250 (Musée des Plans-relief) 1
L’Atlas des alignements (années 1820) signale une maison à rez-de-chaussée et deux étages en pierre de taille. Sur les élévations préparatoires au plan-relief de 1830, la façade se trouve entre les repères (s’-t’) : porte entourée d’une fenêtre de part et d’autre, deux étages à trois fenêtres chacun, toiture à deux niveaux de lucarnes. La cour (Y’) représente l’arrière (1-2) du bâtiment avant, le bâtiment latéral (4-1), le mur (3-4) au fond de la cour et le mur (2-3) de la maison voisine (n°20).
La maison porte d’abord le n° 74 (1784-1857) puis le n° 19.



Cour Y – Plan et élévation de l’atelier, coupe (1896, dossier de la Police du Bâtiment)
La maison appartient au XIX° siècle à l’agent de change Jean David Fleischhauer (1822) puis à la veuve du meunier Jean Geoffroi Lauth (1843). L’artiste peintre François Schell fait démolir en 1896 les combles du bâtiment avant pour les remplacer par un atelier. L’Union fraternelle protestante d’Allemagne, domiciliée à Berthelsdorf près de Herrenhut, et François Schell passent en 1904 une convention de servitudes entre les n° 19 et 20. Frédéric Rauscher et Jeanne Reisz font établir un règlement de copropriété en 1978. La société civile immobilière 19, quai Saint-Nicolas fait rénover les bâtiments en 2001.



Façade sur quai – Façade sur cour – Coupe (2001, dossier de la Police du Bâtiment)





Mascarons, Printemps, Eté, Automne, Hiver (images Brigitte Parent)
Palette au-dessus de la verrière (septembre 2025)
octobre 2025
Sommaire
Cadastre – Police du Bâtiment dossier 1, dossier 2 – Relevé d’actes
Récapitulatif des propriétaires
La liste ci-dessous donne tous les propriétaires de 1579 à 1952. La propriété change par vente (v), par héritage ou cession de parts (h) ou encore par adjudication (adj). L’étoile (*) signale une date approximative de mutation.
| André Butzmann, sellier, et (1553) Salomé Heim – luthériens | ||
| 1604 | v | Jean Hetzel, sellier, et (1588) Appolonie Martin – luthériens |
| 1636 | h | Adam Meichel, sellier, et (1629) Appolonie Hetzel – luthériens |
| 1647 | v | Jean Raimbaut Dietrich, juriste, (1634) Einbeth Ringler – luthériens |
| 1672* | h | Jean Daniel Dietrich, assesseur au Sénat, et (1677) Cécile Félicité Vinther – luthériens puis les héritiers Dominique Dietrich, consul, et (1647) Ursule Wencker puis (1667) Marguerite Kugler – luthériens |
| 1702 | v | Alexandre Müller, orfèvre, et (1693) Anne Catherine Wilhelm – luthériens |
| 1738 | v | Jean Philippe André, marchand, et (1707) Catherine Büchel – luthériens, |
| 1763 | h | Jean Thiébaut Saltzmann, marchand, et (1760) Chrétienne Salomé Braun – luthériens |
| 1769 | v | Jean Michel Stribeck, drapier, courtier, et (1762) Marie Salomé Schætzel – luthériens |
| 1822 | v | Jean David Fleischhauer, agent de change, et (1809) Louise Wilhelmine Weyher |
| 1843 | v | Jean Geoffroi Lauth, meunier, et (1832) Marie Madeleine Lauth |
| 1893 | h | Alfred Lauth, chimiste, et (1886) Marthe Bourrel |
| 1896 | v | François Joseph Schell, artiste peintre, et (1890) Marguerite Kusian |
| v | Frédéric Rauscher, boucher, et (1937) Jeanne Reisz |
Valeur de la maison selon les billets d’estimation : 1100 livres en 1729, 1250 livres en 1755
(1765, Liste Blondel) IX 13, Jean Philippe André
(Etat du développement des façades des maisons, AMS cote V 61) Stridbeck, 3 toises, 4 pieds et 8 pouces
(1843, Tableau indicatif du cadastre) P 1373, Fleischauer, Jean David, courtier – maison, sol, cour, bâtiment – 2,2 ares
Locations
1772 (logement), Philippe Jacques Daller, maître de calligraphie, et (1774) Odile Huther – catholiques
1781 (logement), Gaspard Gotthold Weigel, conseiller du roi de Pologne
1783 (logement), Samuel Régnard Weber, secrétaire de la Chambre d’économie
Livres des communaux
1587, Livre des communaux (VII 1450) f° 365-v
Le sellier André Bützmann règle 1 livre 5 sols pour sa maison proche du pont Saint-Nicolas, à savoir un auvent (13 pieds de long, saillie de 3 pieds ½), au-dessous une boutique (5 pieds ½ de long, saillie de deux pieds), devant ladite boutique un siège en maçonnerie (5 pieds ½ de long, 1 pied 9 pouces), un pilier en maçonnerie (9 pieds de haut, 2 pieds de large, saillie de 9 pouces) au coin de la maison, de l’autre côté de l’angle un encorbellement (25 pieds de long, saillie de 5 pieds) où se trouve une avance (23 pieds de long, saillie supplémentaire d’un pied), plus haut un autre encorbellement (15 pieds de long, saillie de 3 pieds ½), au-dessus de cet encorbellement un passage en bois (même longueur, saillie supplémentaire de 3 pieds), au rez-de-chaussée devant l’atelier une boutique (7 pieds de long, saillie de deux pieds), item une boutique (5 pieds ½ de long, saillie de 2 pieds)
Im Goldtgießen die Ander seitten vonn dem Spitthalthor widerumb hieneinwerths nach der Statt dem Wasser Zu.
Andres Bützman der Sattler hatt an seinem Hauß vf d. seÿten gegen Sanct Claus Pruckhen ein Wettertach xiiij schu lang, iii+ schu herauß, Darunder ein Laden v+ schu lang, ij schu herauß, Vnder demselben Laden ein gemaurten sitz, v+ schu lang, j schu ix Zoll herauß, ahne dem Eckh dises Hauses ein gemaurten Pfeÿler ix schu Hoch, ij schu breÿt, ix Zoll herauß, Mehr vff der Andern seÿten umb das Eckh hienumb ein Vsstoß xxv schu lang, v schu herauß, Daran ein Staucher xxiij schu lang, j schu weÿter herauß, Darüber wid. ein Vsstoß auch xxv schu lang, iii+ schu herauß, Über disem Vsstoß ein hültzenen Gang In gleicher Lengen wie der Vsstoß iij schu weiter für denselben herauß, Vndt dann Vnder Vor der Werckhstatt ein Laden vij schu lang, ij schu herauß, Mehr ein Laden v+ schu lang, ij schu herauß, bessert j lb v ß d.
Hatt auch Vor dem Hauß vff dem Allmendt ein Hauffen mist ligen, soll für den Mist bessert, j ß d
Préposés au bâtiment (Bauherren)
1769, Préposés au bâtiment (VII 1413)
La Ville cède au courtier Striedbeck un terrain d’une toise deux pieds carrés quai Saint-Nicolas dans le neuvième canton
(f° 89-v) Dienstags den 19. 7.bris 1769 – H. Werner der baw:Inspector producirt eine verzeichnuß von Allmendt plätzen so folgenden sechß Persohnen zu ihren häußern eingezogen, und löbl. Statt nach dem preiß deren Cantons zu bezahlen haben, als (…)
H Striedbeck d. Courtier am Claußstaden hatt eingezogen 1 Cl. 2 sch ins quadrat liegt in dem 9.ten Canton und soll 12 – 18 fl. ß (Joint : lang 4 Cl. 1 schuh 0 breid 0 Cl. 2 schuh 2 : 1 Cl. 3 schuh 0 0)
Préposés aux feux (Feuerherren, 4 R 91)
Le maître maçon Lingenhœlin expose les travaux à faire dans la maison du courtier de change Jean Michel Striedbeck quai Saint-Nicolas : installer un chaudron à lessive à gauche de l’entrée, aménager dans le bâtiment avant un poêle vers le quai, une cuisine avec un fourneau aux premier et deuxième étages, dans le bâtiment arrière deux chambres à cheminée à la française vers le jardin et un accès aux cheminées dans le vestibule.
(p. 199) Sambstags den 25.ten Novembris 1769.
H. Johann Michael Striedbeck der Wechsel Courtier will in seiner am Niclaus-staden gelegenen behausung lincker hand des eingangs einen bauchkeßel mit Caminschoß, des rohr am steinern gäbel hinauf von allem holtz entfernt.
Ferner im Vorder gebäu, ersten und Zweÿten stock, jedesmal eine Stube gegen dem staden hinden daran eine Kuchen mit herd und Caminschoß machen, die rohr am steinern gäbel hinauf von allem holtz entfernt.
Ferner im hindern gebäu ersten und Zweÿten stock Zweÿ Cammern gegen dem garten, jede mit frantzös. Camin und gewölb wohl versehen setzen, die rohr am steinern gäbel hinauf von allem holtz entfernt.
Im nemlichen gebäu ersten und Zweÿten stock in dem haußehren jedesmal ein Vor Camin auf ein gewölb wohl versehen setzen, die rohr mitten durchs gebäu von allem holtz entfernt. Erk. Willfahrt – Mr. Linckenhölin
Description de la maison
- 1729 (billet d’estimation traduit) La maison comprend un poêle, une chambre, une cuisine, un vestibule, une boutique, un creuset d’orfèvre, un bûcher à séparations en lattes, une cave partie solivée partie voûtée, un puits, le tout estimé avec appartenances et dépendances à la somme de 1200 florins
Atlas des alignements (cote 1197 W 37)
3° arrondissement ou Canton Sud – Quai St Nicolas
nouveau N° / ancien N° : nouveau N° / ancien N° : 19 / 94
Striedbeck
Rez de chaussée et 2 étages bons en pierre de taille
(Légende)
Cadastre
Cadastre napoléonien, registre 28 f° 409 case 4
Fleischauer Jean David Courtier
Lauth Madeleine Veuve (Subst. 1846) / Jean Georges veuve
P 1373, sol, M.on Bat. et cour, Quai S. Nicolas 74
Contenance : 2,20
Revenu total : 217,14 (216 et 1,14)
Ouvertures, portes cochères, charretières :
portes et fenêtres ordinaires : 28 / 25 / 19
fenêtres du 3° et au-dessus : 5 / 3 / 2
Cadastre napoléonien, registre 26 f° 772 case 1
Lauth Jean Geoffroi, veuve
95/97 Lauth Alfred
97/98 Schell Franz Joseph, Kunstmaler
P 1373, Maison, sol, Quai S. Nicolas 19
Contenance : 2,20
Revenu total : 217,14 (216 et 1,14)
Folio de provenance : (409)
Folio de destination : Gb
Ouvertures, portes cochères, charretières :
portes et fenêtres ordinaires : 24
fenêtres du 3° et au-dessus : 3
Cadastre allemand, registre 29 page 171 case 4
Parcelle, section 15, n° 18 – autrefois P 1373
Canton : St Niklausstaden H. N° 19
Désignation : Hf, Whs
Contenance : 2,11
Revenu : 1900 – 2500
Remarques :
(Propriétaire), compte 1062
Schell Franz
(3576)
1789, Etat des habitants (cote 5 R 26)
Canton IX, Rue 291 Quai de st. Nicolas (p. 461)
74
Pr. Striedbeck, Courtier – Miroir
loc. Weber, Conseiller – Bateliers
Annuaire de 1905
Verzeichnis sämtlicher Häuser von Strassburg und ihrer Bewohner, in alphabetischer Reihenfolge der Strassennamen (Répertoire de toutes les maisons de Strasbourg et de leurs habitants, par ordre alphabétique des rues)
Abréviations : 0, 1,2, etc. : rez de chaussée, 1, 2° étage – E, Eigentümer (propriétaire) – H. Hinterhaus (bâtiment arrière)
St. Nikolausstaden (Seite 127)
(Haus Nr.) 19
Overmann, Bandagist. 0
Schmitt, Kaufmann. 1
Schell, Kunstmaler. E 23
Dossier de la Police du Bâtiment (cote 739 W 59)
19 quai Saint-Nicolas (1884-1988)
L’artiste peintre François Schell fait démolir en 1896 les combles du bâtiment avant pour les remplacer par un atelier. Les travaux sont exécutés par l’entrepreneur de construction Eugène Koch (35, Faubourg de Pierre). Les eaux provenant du tuyau de descente causent des dégâts dans la propriété Weiss (n° 18) ; un dauphin est installè pour que les eaux s’écoulent par l’immeuble municipal sis 3, rue d’Or.
1912, Sophie Speth (bandages)
1949, Emile Waldhart (machines à coudre)
1974, Emilie Berndt (antiquités)
1980, maison Sémaphore, puis Grain de Sel
1986, Anne Bucher (La Dentelière)
Sommaire
- 1884 – Le commissaire de police transmet au maire un rapport selon lequel il n’y a pas de fosse d’aisances dans la maison mais qu’un tuyau conduit les matières dans la rivière, ce qui est à l’origine de mauvaises odeurs – Le maire notifie la veuve Lauth de faire aménager une fosse d’aisance – Les entrepreneurs A. Schoop et G. Mayer demandent l’autorisation de faire une fosse – Autorisation – Travaux terminés, février 1885 – Dessin, plan du bâtiment
- 1888 – Le maire notifie la veuve Marie Madeleine Lauth (demeurant sur place) de faire ravaler la façade – La propriétaire demande un an de délai parce qu’elle a l’intention de faire des travaux – La façade en grès est en bon état, avril 1889.
1894 – Le maire notifie Philippe Lauth de faire ravaler la façade – Il n’y a pas eu de travaux mais il suffirait de laver la façade, novembre 1894 – Philippe Lauth répond que ce n’est pas lui mais son fils Alfred qui est propriétaire et qu’un ravalement pourra avoir lieu l’année suivante. Remarque en marge, le commis voyageur Alfred Lauth qui a son domicile à l’hôtel de la Poste à Belfort gère lui-même sa maison sans avoir recours à un gérant. – La façade a été lavée, le dossier est classé, juillet 1895. - 1896 – L’artiste peintre François Schell demande l’autorisation de démolir les combles du bâtiment avant et de le remplacer par un atelier – Autorisation de construire un atelier de peintre – Le gros œuvre est terminé, les plâtriers travaillent, septembre 1896. – Travaux terminés, décembre – Dessin
1896 (août) – L’entrepreneur de construction Eugène Koch (35, Faubourg de Pierre) demande l’autorisation de poser une clôture sur le trottoir – Autorisation d’occuper la voie publique devant la maison Schell – La clôture est enlevée, octobre 1896. - 1897 – Dossier ouvert suite à un courrier du commissaire de police. Weisz demande l’autorisation de poser une enseigne – Le maire répond qu’il n’y a pas d’objection à faire contre l’enseigne plate sans saillie sur le domaine public.
- 1895 – Le maire notifie le propriétaire Lauth de se conformer au règlement du 30 novembre 1891 en supprimant les deux volets qui s’ouvrent à moins de 2,20 mètres de la voie publique. – Rappel en 1898. Travaux terminés, octobre 1898
- 1896 – Le directeur de l’usine à gaz demande au nom du propriétaire Schell l’autorisation de faire une prise pour environ vingt becs. – Autorisation
- 1912 – Sophie Speth demande au nom de la société Hygica (bandages) l’autorisation de poser une enseigne lumineuse perpendiculaire. Dessin – Autorisation de poser une enseigne à double face
- Commission des logements militaires, 1915. L’immeuble doit être raccordé aux canalisations. Le propriétaire qui n’a pas de revenu obtient un sursis pour faire les travaux. Les cabinets d’aisance dans la cour sont bien tenus – Le raccordement n’est toujours pas fait, 1926.
- 1949 – Emile Waldhart (58, boulevard Clémenceau) demande l’autorisation de poser une enseigne (machines à coudre) – L’architecte des Bâtiments de France émet un avis défavorable – L’enseigne n’est pas démontée, août 1950
1950 (juin) – Le même demande l’autorisation de peindre la devanture en couleur grès – L’architecte des Bâtiments de France ajourne sa décision jusqu’à ce qu’une nouvelle enseigne soit posée. - 1951 – Jean Weiss (Glaces et verres en gros, 18, quai Saint-Nicolas) se plaint que le tuyau de descente du n° 19 déverse des eaux sous le dallage de sa cour – La Police du Bâtiment recommande de poser un dauphin pour que les eaux s’écoulent par l’immeuble municipal sis 3, rue d’Or. – Plan – Travaux terminés, juillet 1951
- 1961 – L’entreprise de construction Kaiser et Compagnie (118-a route de Schirmeck) est autorisée à occuper la voie publique (à double taxe pour défaut d’autorisation préalable)
Le boucher Rauscher (demeurant 10, place Saint-Louis) est autorisé à poser un échafaudage sur la voie publique - 1974 – Emilie Berndt (antiquités Les Belles Epoques) demande l’autorisation de modifier les inscriptions de sa raison sociale de part et d’autre de la porte. Photographie – L’architecte des Bâtiments de France Fernand Guri émet un avis favorable – Autorisation de poser trois enseignes
- 1980 – Le maire autorise la maison Sémaphore à faire une vente par liquidation pour cessation de commerce
- 1986 – Anne Bucher demande l’autorisation de poser une enseigne La Dentelière – Photographie – L’architecte des Bâtiments de France Jacques Ernest émet un avis défavorable, les lampes doivent en outre être retirées – L’enseigne est déposée mais les lampes subsistent, août 1986 – La Dentelière répond que les lampes ont été posées par son prédécesseur la maison Grain de Sel – Le maire demande à l’Immobilière Schrœder (4, rue Edouard Teutsch) de faire déposer les lampes – L’architecte des Bâtiments de France Chantal Lavillaureix transmet en février 1988 l’affaire au procureur de la République. Les lampes ont été retirées, mars 1988.
Dossier de la Police du Bâtiment (cote 1540 W 256)
19 quai Saint-Nicolas (2001-2002, déclaration de travaux)
Frédéric Rauscher et Jeanne Reisz font établir un règlement de copropriété en 1978.
La société civile immobilière 19, quai Saint-Nicolas fait rénover les bâtiments en 2001.
Sommaire
- 2001 – La société civile immobilière 19, quai Saint-Nicolas, représentée par Denis Jung (Immogeref, domiciliée 4, rue des Veaux) dépose une déclaration de travaux exemptés de permis de construire avant de rénover les bâtiments sis section 15 n° 18
Notice intitulée Projet de réhabilitation de l’immeuble 19, quai Saint-Nicolas, maître d’ouvrage Syndicat des copropriétaires représenté par son syndic Immogeref (les volets métalliques de la façade principale seront supprimés, une porte fenêtre remplacera une fenêtre pour faire communiquer le local commercial et la cour) – Plans et photographies
Le Service départemental d’incendie et de secours transmet ses observations
La Police du Bâtiment fait observer que le projet demande de créer une place de stationnement, ce que contestent les experts comptables Claude Bernheim et Alain Burgun en arguant que l’immeuble a été divisé en 1978 par acte passé devant Jean-Marie Bornert
Acte joint. Règlement de copropriété passé le 11 avril 1978 devant Jean-Marie Bornert, notaire à Haguenau, à la requête de Frédéric Rauscher et Jeanne Reisz, propriétaires demeurant 4, rue des Arquebusiers (mariés sous le régime de communauté de biens réduite aux acquêts par contrat passé devant maître Meyer à Strasbourg le 20 avril 1937) suivant acte d’achat reçu par M° Loth à Strasbourg le 15 mars 1955. Description des lots 1 à 13.
2001 (septembre) – Le maire répond que les plans montrent que le projet prévoit de subdiviser les logements aux premier et deuxième étage, ce qui demande de créer une place de stationnement.
2001 (octobre) – L’architecte des Bâtiments de France Charles Fileppi émet un avis favorable assorti de conditions.
2001 (novembre) – Attestation de non opposition relative à une déclaration de travaux
2002 (août) – Travaux terminés
Relevé d’actes
La maison est inscrite au nom du sellier André Butzmann dans le Livre des communaux (1587).
Originaire de Villingen, André Butzmann épouse en 1553 Salomé, fille de Bernard Heim
Mariage, Saint-Nicolas (luth. f° 26 n° 12)
1553. Auff den 15. Feb: seind Ehelich eingesegnet worden Andres Butzman von Villingen vnd Salome, Bernhard Heimen seligen nachgelaßne dochter (i 30)
Le sellier André Butzmann de Villingen devient bourgeois par sa femme quinze jours après son mariage
1553, 2° Livre de bourgeoisie (4 R 104) p. 82
Andreß Butzman Von Villingen der Sattler hatt das Burckrecht empfangen von Salome Bernhart Heÿmen dochter seiner ehlichen haußfrawen vnnd dienet Zu den Gerbern Act. Mitwoch den 1. Martÿ A° Liij
Salomé Heim veuve d’André Butzmann fait dresser un certificat selon lequel Gaspard Reuschel a été nommé son tuteur en 1588 pour continuer un procès au tribunal impérial.
1591, Chancellerie, vol. 272 (Gemein Contract Buch) f° 97
Tutorium Caspar Reuschels als Vogt Salome Heimin, w. Andres Butzmans des sattlers s. wittib
erschienen Ist, Vnser diener Caspar Reuschel, vnd vns fürpring. lassen, Waß massen Er vögtlich weis wid. weÿland des wolgebornen hr herrn Wilhelmen, herrn Zu heÿdeck & wolselig gedächtnuß Erb. an dem hochlöblich keÿ. Cammerght. an Rechtfertigung erwachsen, Vnd Ihme zu außfuerung derselb. schein vnd vrkhund vonnött. d. er Salomeen heimin w. Vnsers burgers Andresen Butzmans des Sattlers s. nachgelaßner wittwen von vns Zum Tutore vnd vogt verordnet, Mit pitt, Ihme dieselb. In glaubwürdig. form werden Zulassen, Wann dann Kundschafft d. warheit niemand Zuversag. Vns auch wol Zuwissen vnd In Vnser Cantzleÿ Zubefind. d. ermelt Caspar Reüschel obgedachter Salomeen heimin den 24. 8.br v.schinen d. wenig. Zahl 88.t Jahrs von Vns Zum Vogt und Vormund erkant (…)
L’inventaire dressé en 1755 mentionne un acte du 24 août 1604 pour établir la propriété de la maison. Par un acte dressé le 24 août 1605, Zacharie Didicke vend au sellier Jean Hetzel ses droits sur une maison qu’il a achetée sur les quais, sans autre désignation. D’après les tenants et aboutissants, Jean Hetzel est propriétaire de la maison en 1603. La veuve Butzmann lui donne quittance en 1619, voir plus bas.
1605 (vt spâ [xiiij. Augusti]), Chancellerie, vol. 357 (Registranda Kügler) f° 211-v
Erschienen herr Zacharias Dydico der Kheuffer benant Inn dem hauptbrieff dadurch dißes gezogen
hatt in gegensein des Ersamen hanns hetzels des Sattlers frey guttwillig bekhant v offentlich verÿehen
das er den Khauf der Behausung mit deren begriffen v Zugehörd am Innersten* Staden vff begeren bemelt. hanß hetzels gethan, welcher auch zum theÿl die Khauffsumm bezalt v die vberige Summ Zubezalen v Ime Zinß. vff sich genommen wie dann* solch all die Verschreibung vnder dem dito* d. d. diße hauptbrieff* In der herren des Cleynen Raths protocoll Zubefünden, deroselben wider* herr Zacharias dydicen für sich v seine erben Ime hanns hetzeln hiemit vbergeb. v Zustellen alle die gerechtigkeit So Ime b* In crafft beschehenen Khouff gebüre
Originaire de Pforzheim, le sellier Jean Hetzel épouse en 1588 Appolonie, fille du sellier Conrad Martin
Mariage, Saint-Pierre-le-Vieux (luth. f° 8-v n° 49)
1588. Hans Hetzel der Sattler Von Pfortzheim, Appolonia Cunrad Martin des Satlers tochter. 14. Octob. (i 11)
Le sellier Jean Hetzel de Pforzheim acquiert le droit de bourgeoisie par sa femme un mois après son mariage.
1588, 2° Livre de bourgeoisie (4 R 104) p. 607
Hans Hetzel von Pfortzheim der Sattler hatt das Burgrecht empfang. von Appolonia Conrad Martins des Sattlers Dochter seiner ehelichen hausf. vnd will Zu den Gerbern dienen. Actum 16. Nouemb. 88
Le compagnon sellier Jean Hetzel a un différend avec André Butzmann le jeune qui déclare que l’affaire qui touche à son honneur a été portée devant le Grand Sénat.
1588, Conseillers et XXI (1 R 65)
Hans Hetzel von Etling. contra Andres Butzman den Jüngern. 368. 370. 379. 386.
(f° 368-v) Mittwoch den XXXI. Julÿ – Hans Hetzel von Ettling. contra Andres Butzman den Jüngern
Hans Hetzel von Etlingen ein sattler p. Bittelb. er hab für mein Hn * lassen Andres Butzman dem Jüng. vbergibt wider denselben ein supplic. bitt wie darinnen, Butzman d. Greÿß dieweil sein notturfft erfordet mein H. daruff Zuberichten so bitt er abschrifft vnd Zeit acht tag, Bittelb. bewilligt das d. er biß Sambstag handele.
(f° 370) Sambstag den 3. Augusti – Hans Hetzel Ca. Andres Butzman
Andres Butzman d. Jung vbergibt vff Hanß Hetzels Jüngste supplôn seinen gegenbericht handelt wie darin dauon erhalt Hetzel abschrifft vnd Zeit d. Ordnung.
(f° 379) Mittwoch den VII.ten Augusti – Hans Hetzel Ca. Andres Butzman
Hans Hetzel p. Bütt. das er gebiett. lassen Andres Butzman dem Jüng.en befind Inn desselben gegenbericht, das er allein beÿ disem spenn für ein Festen Handwerck Zu weisen.
Dargegen Aber er Andres Butzman denselb. sich ein vnd.werff. wüllen, Als bitt er nochmalen Ihm als ein frembd. gesell der ein beschwerd. vffgehalt. Zuhelff. vnd die sach für das Handwerck Zu weisen, D: Dreis es hab seine vrsach darum er sich den Meistern ein vnd vn ein vnd würffig. mach. Könen*, beyde dach bedacht ad p.ximum. Erkant, Man soll dem Butzman vffleg. sein verweis bihs Sambs. für zu bring. als dann seh. versichern vff beschied zugeben. H. Schilling H Storck.
(f° 386) Sambstag den X. Augusti – Hans Hetzel Ca. Andres Butzman
Hans Hetzel hatt gebotten Andres Butzman beyde dessen anwart und erclärung, Butzman vbergibt p. D. Dreisen sein erclärung Innschrifft Warum er den* mit dem Sattler gesellen, sich für die Meisterschafft nit könen weisen lassen, dieweil er sonst. anderer sach halb mit der Meisterschafft vor den Hn XV. hab, da er sich In diser sach. so sein ehr vnd glimpf antrifft leichtlich Zu verseh. Was er für ein ursch. Zu erwart. Bittet derweg. den gesellen für ein Ers. grossen Rhat Zu weisen vnd den Zu gebürend. sich.heit anzuhalten, die Weil die sach nit f. handwerck stand. sein glimpf vnd ehr berühre,
hans hetzel, d. ihm beschwerlich als einem ledig. gesellen Zu lang wirig rechtfertigung gewisen Zu werden, bittet sie für das Handwerck Zuweisen. Erkant, Man soll sie für ein Gros. Rhat weisen.
Salomé Heim, veuve d’André Butzmann l’aîné, donne quittance du prix de la maison au sellier Jean Hetzel.
1619 (2. August.), Chancellerie, vol. 434 (Imbreviaturæ Contractuum) f° 44
Quietung Hans Hetzels des Sattlers für 200 ane 700 so er an seiner behausung schuldig gewesen erlegt
Erschienen herr Bernhardt Betz alter Rhatsbott v verordneter Vogt Salome Heymin weÿland Andres Butzman des eltern seligen hind.lassner wittwen
hatt in gegenwertigkeyt Meyster Hans Hetzels des Sattlers vnd Burgers alhie bekant
Nachdem Jetzernanter Meyster Hanß Hetzel ernanter seiner Vogtfrawen auff seiner Behausung alhie Jenseit der Preüsch. einseyt neben Jungkh. Pfaffenlappen erben gelegen noch 700 gulden ane dem Kauffschilling Zuverzinßen außstendig sie die fraw aber hohen alters vnd schwehren leybs blodigkeit hierzu hulff von nodten vnd Jetzgeruert hauptgut abzugreiffen getrungen worden (…)
Le boucher Michel Geckler épouse en 1627 Madeleine, fille du sellier Jean Hetzel.
Mariage, Saint-Nicolas (luth. f° 148-v n° 19)
1627. Eodem [11 Trinitatis 2 vice] Michel Göckler der metziger vnd Burger alhie, vnd Jungfr. Magdalena, Hans Hetzel des satlers und Burgers alhier eheliche tochter (i 162)
Les enfants de Madeleine Hetzel et du boucher Michel Geggeler vendent en 1636 la moitié de la maison au sellier Adam Meichel et à sa femme Appolonie Hetzel
1636 (25. Aug.), Chambre des Contrats, vol. 475 f° 750
(Protocollat. fol. 104.) Michel Zimerberger der küeffer, Alß Vogt Rosina, Magdalena und hanß Michel, Michel Geggelers deß Metzgers alhie, mit Weÿ: fr. Magdalena Hetzelin see. ehelich erzeügter dreÿer Kinder, mit beÿstand der Ehrenvesten fürsichtigen und Weisen H Johann Friderich Leoparden und H Philipp Jacob Reißeisens, (verkaufft)
Adam Meichel dem Sattler und Appolonia Hetzelin
den halben theil ihnen den Vogts Kindern für ungetheilt gebüerendt Ane hauß, hoff, hoffstatt und Allen Andern ihren gebäwen & alhie Jenseit am Staden Zwischen S. Niclaus und der Schind Brucken, einseit Ein Eck gegen der Breuschen, anderseit neben Jr. Jacob von Pfaffen laps Erben, hinden vf H Johann Dieterichen XXI.er stoßend, daran der vberig halb theil ihr der Käufferin Zuuor zustendig, so ledig, eÿgen Vnd were diser Kauff geschehen per vber abzug der 200. fl. so ihr der Käufferin von ihrem Vater hanß hetzel in seinem letzten Willen Zum voraus vf disem hauß vermacht word., für vnd umb 350. lb
[in margine :] Erschienen Hannß Meÿer der iung. Metzger alß Ehevogt Rosinæ Gegglerin, und Samuel Schrag der Seÿler alß Vogt Magdalenæ und hanß Michels der Gegglerisch. Geschwisterd. beÿde mit beÿstand Michael Geggelers deß Metzgers, ihr der treÿ Gegglerischen Geschwisterd. eheleiblich. Vatters, haben in gegensein Apolonia Hetzelin, Adam Meichelß deß Sattlers ehelich haußfrawen mit beÿstand H Georg Obrechts dero Recht. Doctoris und E. E. Kleinen Rhats Advocati & Procuratoris ihres Vogts – Actum d. 2. 7.br a° 1647.
Fils du marchand du même nom, Adam Meichel épouse en 1629 Appolonie, fille du sellier Jean Hetzel
Mariage, Saint-Nicolas (luth. f° 156-v n° 21)
1629. 11. Trinitatis. Adam Meichel der Satler, Adam Meichel des handelsmann vnd Burgers alhier ehelich. Sohn vnd Jgfr Appolonia Hans Hetzel des satlers vnd [biffé]s alhie ehel. tochter (i 170)
Appolonie Hetzel, femme d’Adam Meichel, assistée de ses trois beaux-frères Michel Geggeler, Samuel Schrag et Jean Meyer, vend la maison à son voisin Jean Raimbaut Dietrich
1647 (2. 7.br), Chambre des Contrats, vol. 498 f° 519-v
(Prot. fol. 188) Erschienen Apolonia Hetzelin, Adam Meichelß deß Sattlers eheliche haußfrau, mit beÿstand H Georg Obrechts dero recht. Doctoris und EE Kleinen Rhats Advocati & Procuratoris ihres geschwornen Vogts wie auch Michael Gegglers deß Metzgers, Samuel Schragen deß Saÿlers und hannß Meÿers deß iüngern Metzgers, alle treÿ ihre Schwäger
hatt in gegensein Johann Reinboldt Dietrichß Burgers Zu Straßburg
hauß, hoff, hoffstatt, mit allen deren Gebäwen alhie ienseit der Preüschen am Stad. Zwisch. St. Clauß Bruckh. und der Schindbruckh ist einseit Zum theil ein Eckh theilß neben dem Pfaffenlappisch. hoff anderseit neben dem Käuffern selbst. hind. vff erstgemeldten Pfaffenlappisch. hoff stoßend gelegen – umb 500. lib
Fils du marchand Jean Dietrich, le juriste Jean Raimbaut Dietrich épouse en 1634 Einbeth, fille de l’ancien préteur Daniel Ringler
Mariage, Saint-Nicolas (luth. f° 171-v n° 20)
1634. Dom. Trinitatis H. Johann Reimbold Dietrich, Cand. Juris h. Johann Dietrich, des Handelsmans und dreier auff vnser H. Stall ehelicher Sohn, vnd Jungfrau Einbeth des Ehrenvest. Fürsichtig. vnd weisen H. Daniel Ringlers, alten Ammeisters ehel. tochter, S. Claus (i 185)
Son fils (et unique héritier) Jean Daniel Dietrich épouse en 1677 Cécile Félicité Vinther, fille du conseiller de Bade Durlach Jean Jacques Vinther
Mariage, Saint-Nicolas (luth. f° 1 n° 23) 1677. Dom. 21. et 22. Trin: Herr Johann Daniel Dietrich Weÿland Hn Johann Reinbold Dietrichs, nachgelaßener Ehelicher Sohn, vndt Jungfr. Cæcilia Felicitas, weÿland Hn Johann Jacob Vinthers Hochfürstlichen Marggraffischen Baden Durlachischen Raths und Oberamptmann der Herrschafft Röteln nachgelaßene Eheliche Tochter. Copul. H. Nicol. Donnerst. 15. 9.br. (im 4)
Jean Daniel Dietrich a institué pour usufruitière sa femme Cécile Félicité Vinter et pour héritiers les enfants d’Agnès Dietrich et de Jacques Spielmann (Jean et Jean Christophe), Elisabeth Dietrich femme d’Ernest Frédéric Mollinger, Jean Dietrich, Salomé Dietrich femme de Jean Thomas Kau, Daniel Dietrich et Marguerite Dietrich femme de Jean Ulric Fried (enfants de son oncle Dominique Dietrich). La veuve et les héritiers passent un accord relatif à l’usufruit.
1687 (26.4.), Chambre des Contrats, vol. 557 f° 243
Erschienen Fr. Cæcilia Felicitas, gebohrne Vintherin, Weÿl. Herrn Johann Daniel Dieterichs, gewesenen E. E. Kleinen Raths alten Beÿsitzers hinderlaßene Wittib, mit beÿstand & Herrn Philipp Jacob Vinthers, J.U. & Medic. Doctor. & Practici, wie auch H. Johann Philipp Kasten, wolbestellten Kornmeisters allhier, Ihrer beeden Vögte, an einem,
So dann Herr Ernst Friderich Mollinger hiesiger Statt Müntz verwalter, für sich selbsten, vnd alß Ehevogt Fraun Elisabethæ gebohrner Dietrichin, wie auch im nahmen vnd von wegen Jfr. Salome Mollingerin seiner leiblichen Tochter, Ferner Herr Johannes Dietrich der Banquier, für sich selbsten vnd als Cessionarius Fraun Margarethæ Dietrichin, H. Johann Ulrich Frieden, XV. Secretarÿ allhier Ehelicher haußfrauen, Weiters Herr Daniel Dietrich, J. U. Dds für sich selbsten, vnd endlich H. Philipp Jacob Erhard, Schaffner Zu Sr. Margarethæ alß Theÿlvogt Fr. Salome gebohrner Dietrichin, weÿl. H. Johann Thomæ Kauen, gewesenen handelßmanns seel. hinderlaßener Wittib, wie auch Johannes vnd Johann Christophs, beeder Spielmänner, Gebrüder, alß weÿl. Fr. Agnes gebohrner Dietrichin mit auch Weÿl. & Herrn Jacob Spielmann XIII.r ehelich erzeugter vnd nachgelaßenen beed. Söhne, wie auch vorgem. Kauischer Fr. Wittib Vogt H. Mollinger obged. sowohl für sich als seiner haußfr. vnd Tochter vorbedittener maßen triplici noîe selbst interessirt ist, am andern theÿl, haben freÿ guthwillig offentlici h angezeigt und bekandt
Demnach obengemeldter H. Johann Daniel Dieterich nunmehr sel. in seinem durch Herrn Not. Andream Schmiden in Anno 1686. auffgerichteten Testamento Sie Gesambte benandte Dieterich. Interessenten Zu seinen Erben Instituiret, vnd nach tod verlaßen, Ihro obged. deßen Fr. wittib aber den usufructum omnium bonorum vermacht darbeneben auch dero Künfftige in underschiedenen weiß bedacht, Alß hetten Sie samtliche respect. Widembsnießerin vnd Erben darüber folgend. respect. Außkauff vnd transaction geschlossen und freündlichen mit einander verglichen (…)
Jean Spielmann, Jean Christophe Spielmann et Salomé Mollinger, femme du marchand Jean Philippe Richshoffer vendent la maison à l’orfèvre Alexandre Müller en convenant de servitudes entre la maison vendue et celle qui reste propriété du mandant Jean Mollinger.
1702 (17.1.), Chambre des Contrats, vol. 575 f° 25-v
(700) Hr. Joh: Moßeder handelsmann noe. Hhn. Joh: u. Joh: Christophs gebrüder der Spielmänner alß hierzu Kraft eines Von besagten seinen HHn. Principalen sub dato Paris den 11. Julÿ 1701 gegebenen gewalts, fr. Salome Richshofferin geb. Mollingerin mit beÿstand u. Consens Hn. Joh: Philipp Richshoffers handelsmanns ihres mariti
Hn. Alexander Müllers goldarbeithers
Sie beÿde Hr. Moßeder nôe quo supra und Sie fr. Richshofferin u. zwar jedes theils zuer helfte, ihm, Müller, eine behaußung allhier jenseith der Preusch ahm Staden, zwischen der St. Niclaus u. Schindbrucken, einseith ist zum theil ein Eck, theils neben Hn. XIII.ers Joh: Daniel Branden handelsmann seel. EE. anders. neben obigem Hn. Moßeder dem mandatario hinten auf wohlgedachten Hn. XIII.ner branden seel. Erben stoßend gelegen Worbeÿ ferners verglichen, (…) zweÿthens so verspricht der Kaüfer für sich, seine EE u. nachkommende, die sieben tagfenster so in oberwehnten Hn. Moßeders deß mandatarÿ forderen Hoff gehen, nemlichen die 3 große untere u. die 2 mittlere u. dann die 2 kleine obere, in dem stand wie die dermahlen seind, zulaßen, u. nicht zu vergrößeren, viel weniger einige weithere mehr durchzubrechen, u. daß auch dadurch kein wasser oder anders es mag nahmen haben wie es wolle, geschittet noch geworfen werden solle, mithien Er, Hr. Moßeder, in seinem Hauß molestiret werden mögte, Drittens so engagire Er, Moßeder, sich solang der Käufer obigem seinen Verspruch nachkommen wird, Vor sothane 7 tagfenster nichts weithers zu bauen, alß was dermahlen daßelbst befindlich, Es soll auch 4.tens der Kaüfer den auf seiner dato erkauften behaußung liegenden Tachstuhl u. steinern noch nicht höher, noch weither herauß führen, alß solche bereiths stehen – um 700 pfund
Fils du receveur Jean Müller de Lindau, Alexandre Müller épouse en 1693 Anne Catherine, fille du marchand Claude Wilhelm.
Mariage, Temple-Neuf (luth. f° 40 n° 250)
1693. Mittw. den 12 Augusti seÿen im Hauß copulirt worden, Hr Alexander Müller, lediger Goldarbeiter von Lindau, Herrn Johann Müllers Oberampt schaffners Gräffl. Rothenthalischer Herrschafft ehelicher Sohn, Jfr Anna Catharina, Hr Claudi Wilhelms, E. E. Cleinen Raths alten beÿsitzers und Handelßmanns allhier ehl. Tochter [unterzeichnet] Alexander Müller als Hochzeitern Anna Catharina als hochzeitern (i 40)
Alexandre Müller dont le procès avec la fille de Claude Wilhelm est clos est autorisé à se marier à domicile pour éviter les frais et les complications.
1693, Conseillers et XXI (1 R 176)
(f° 141) den 8.ten Aug. – Alexander Müller der Goldarbeiter, vmb Copulation Schein vnd deß Er sich möchte sine proclamatione privatim Einsegn. laßen
H. Alexander Müller der Goldarbeiter Von Lindau Weilen sein Verdrußlicher Ehe Gerichts Proces mit Cladi Wilhelms Tochter wie genugsam bekant nun Zu Ende gekommen, vndt alle Unkosten Vndt Weitlauffigkeiten Zu Vermeiden, bittet Er Vnterthänig sich Zu hauß privatim sine proclamatione Copuliren Zu laßen. Erk. Gegen Erlegung 2. lb d in das Almoßen das petitum Willfahrt.
Alexandre Müller devient bourgeois par sa femme quinze jours après son mariage
1693, 4° Livre de bourgeoisie f° 635
H. Alexander Müller der Goldtarbeiter Von Lindaw, H, Johann Müllers Ober Amptschreibers, ehl. sohn, empfangt das burgerrecht Von Fr. Anna Maria Wilhelmin, seiner jetz. haußfr. p. 2. gold fl. 16 ß so Er bereits beÿ der Cantzleÿ erlegt, bringt keine Kinder mit, und wid Zu E. E. Zunfft Zur Steltz dienen. Juravit d. 26. Dito [Aug.] 1693.
Alexandre Müller et Anne Catherine Wilhelm hypothèquent la maison au profit du notaire Jean Frédéric Marbach pour en régler le prix et y faire des réparations
1702 (13.5.), Chambre des Contrats, vol. 575 f° 213-v
Alexander Müller der Goldarbeiter Und Anna Catharina geb. Wilhelmin mit beÿstand Cladi Wilhelm des Sattlers Und Johann Wilhelm des Specerirers Ihrer leiblichen Brüder
in gegensein Johann Friderich Marbachs Not. Publ., 500 pfund theils zu bezahung derjenig. 350 Kauffschillings Rest so er Müller ab hiernach beschriebener behaußung annoch schudig gewesen aber heut dato entrichtet Word. wie in d. Contractstuben registrand de ao. 1702 fol 26.b in marg. zu befind. theils zu melioration ged. behausung Und fortsetzung Ihrer Profession baar gelühenen Gelds
unterpfand, Eine behausung mit gebaüen, begriffen, weithen, rechten und gerechtigkeiten allhier jenseit der Preüsch am Staden zwischen der St. Niclaus Und Schindbrucken einseit ist zum theil ein Eck theils neben weÿl. Hrn. XIII.ers Johann Daniel Branden Handelsmanns seel. Erben anderseit neben Hn. Johann Mosedern Handelsmann hinten auf ged. Brandischen Erben stoßend gelegen – darbeÿ ist auch erschienen Fr. Susanna Margaretha geb. Fischerin weÿl. Hrn. Cladj Wilhelm des Handelsmanns Und E:E: kleinen Raths alten beÿsitzers seel. Wittib der debitirend. Eheleuthe respectivé leibliche Und Schwieger Mutter mit beÿstand Hrn. Philipp Jacob Erhards Schaffners zur Rothen Kirchen allhier ihres Curatoris, die hat sich Vor 150 pfund verbürgt
1713 (14.8.), Chambre des Contrats, vol. 586 f° 456-v
Alexander Müller goldarb: alß vogt Jochische KK und Anna Cath: geb. Willhelmin beÿständlich H Joh: Niclaus Willhelm E.E. Grosen Raths Beÿsitzers und Claudii Willhelm würts auf dem Schießrein
in gegensein H. Joh: Philipp heckers Exs: nahmens EE vogteÿgerichts – schuldig seÿen 500 pfund
unterpfand, ihre behaußung c. appert: allhier ahm Stadten einseit neben S.T. H. XV.ner Reichardt anderseit neben den Mollingern, hinten auf H ihn H. XV.er
Alexandre Müller et Anne Catherine Wilhelm hypothèquent la maison au profit des trois enfants mineurs du marchand Nicolas List.
1728 (29.5.), Chambre des Contrats, vol. 602 f° 243
H. Alexander Müller goldarbeiter und Anna Catharina geb. Willhelmin mit beÿstand ihres bruders H. Johann willhelm handelsmanns und ihrer schwester Sohns H. Johannes Winther Notarÿ publici und adelischen Schaffners
in gegensein H. Rathh. Johann Friedrich Richshoffer als vogts weÿl. H. Nicolaus List gewesten handelsmanns hinterlassenen dreÿen Kindern letster Ehe Johann Friedrich, Barbaræ und Elisabethæ der Listen
unterpfand, Eine Behausung höfflein hinderhauß und hoffstatt mit allen derselben gebäuden, begriffen, weithen, zugehörden und gerechtigkeiten allhier ahm Staden einseit neben H. Rathh. Ernst Friedrich Mollinger dem Banquier theils zum theil ist ein eck ahm allmend, hinten auff H. dreÿzehner Johann Christoph Reichard
Alexandre Müller meurt en 1728 en délaissant quatre enfants. Les experts estiment la maison à 1100 livres. La masse propre à la veuve est de 11 livres. L’actif des héritiers et de la communauté s’élève à 257 livres, le passif à 151 livres.
1729 (26.4.), Not. Hoffmann (Christophe Michel, V 151) n° 963
Inventarium über Weÿland des Ehrenvesten und Kunstreichen H. Alexander Müller gewesten berümbten Goldarbeiters und burgers alhier zu Straßburg nunmehro seel. Verlaßenschafft auffgerichtet in Anno 1729.
Inventarium und Beschreibung aller der Jenigen Haab und Nahrung liegender und Vahrender, Keinerleÿ davon außgenommen, so weÿland der Ehrenveste und Kunstreiche Hr Alexander Müller geweste berümbte Goldarbeiter und burger alhier, nunmehro seel. nach seinem am 14. Septembris des vorig. abgewichenen 1728.sten Jahrs genommenen tödlichen hientritt hie Zeitlichen Verlaßen, wie solche Verlaßenschafft, auf freundfleißiges ansuchen und begehren deßelben hinterlaßener und am nechstfolgenden Blatt benambster Kinder und Erben auch dero Ehe und geschwornen Hn Vogts heut dato ordnungsmäßig inventirt und ersucht, durch Frau Annam Cathar. Müllerin gebohrne Willhelmin die hinterbliebene wittib mit Kräfftigen Assistenz S. T. Hn Johann Winter, Notarÿ Publici und verschiedener Hoch Adel familien wohlverordneten Schaffners und Theils die Erben selbsten (…) So beschehen Straßburg den 26.ten Aprilis Anno 1729.
Der Verstorbene Seelig hatt ab intestato Zu Erben Verlaßen wie folget. Erst. Frau Susannam Margaretham H. Johann Jacob Josten des Schuhmachers und burgers allhier ehel. haußfrau, mit beÿstand deßelben, 2 et 3. H. Philipp Jacob und Johann Christophen beede leedige Goldarbeiter, so Majorennes Vor sich selbsten, 4. Und dann Johannem so sich jetztmahlen beÿ der Mahlereÿ Kunst in der Lehr befindet, deßen geschworner Vogt ist H. Johann Friedrich Röderer Goldarbeither und burger allhier, so dem Geschäfft in Persohn abgewartet, Alle vier gebohrne Müller, so der Verstorbene seel. mit vorher Vermelter seiner hinterbliebenen wittib ehel. erzeugt und ab intestato Zu gleichen portionen und Antheiler Zu erben Verlaßen
Bericht in gegenwärtig Inventarium gehörig. Es hatt die Wittib gleich anfangs der Inventation beÿ ihrer handtreu glaubwürdig berichtet, daß alß Sie sich mit ihren Verstorbenen Mann see. Verheÿrathet Keine Eheberedung Zwischen ihnen beeden auffgerichtet, weniher deßentwegen etwas schrifftliches Zu papÿr gebracht, dannenhero beÿ solcher bewandnus solcher Verlaßenschafft nach hiesig löblicher gewohnheit nemblich was sich annoch in natura befunden, sowohl der Wittib alß denen Erben Vor unverändert, das übrig aber alles alß theÿlbahr beschrieben worden, wie hernach folget
In einer alhier Zu Straßburg jenseit der Preüsch am Staaden Zwischen der St: Niclauß und Schindbruckh gelegenen, in dieße Verlaßenschafft gehörigen und deswegen hernacher fol. (-) beschriebener behaußung folgender maßen befunden..
Haußrath W 11, E 5, T 34, Werckzeug Zur Goldarbeiter Profession gehörig T 6, Leere Vaß und Bütten W 1 ß, T 5
(f° 7) Eÿgenthumb ane einer Behaußung so Theÿlbahr. Ein hauß, höfflein und hoffstatt mit allen deroselben Gebäwen, begriffen, weiten, Zugehörden, recht: undt gerechtigkeiten, gelegen allhier Zu Straßburg jenseit d. Preüsch am Staden Zwischen d. St: Niclaus Kirch und Schindbrucken, 1.s ist Zum theÿl ein Eck theÿls neben H. Friderich Kuntz dem Handelßmann allhier, 2.s. neben H. Rathh. Mollinger Vornehmen Panquier, hinten auff H. XIII. Reichards garten stoßend und ist dieße behaußung annoch H. Rathh. Joh: Friderich Reichshoffer Verhafftet umb 750. lb sonsten sofern freÿ leedig undt eigen. Und ist dieße behaußung durch der Statt Straßburg geordnete und gewesen H. Werckmeister krafft dero zu mein des Notarÿ consept überschickter schrifftlicher Abschatzung den 26. Aprilis A° 1729. über abzug obiger beschwehrten æstimirt worden für und umb 350 lb. Darüber besagt Ein teutscher pergamentener Kauffbrieff auß allhiesiger Cancleÿ contract Stub Verfertigt de dato 17.ten Januarÿ A° 1702. und. d. Statt Straßburg größern Insigel verwahrt, mit lit. A signirt.
Silber geschirr und Geschmeid T 22, Gold T 1
Sa. Haußraths als worinnen der Wittib sambtliches ohnverändert Vermögen bestehet nemblich 11 lb
Summa summarum aller vorherbeschriebenen Theÿlbahren Verlaßenschafft 419 lb – Schulden 257, Nach deren Abzug 151 lb – Verstallungs Summ 379 lb
Abschatzung d 26.ten april aô 1729. Auff begehren Weÿland des Ehren Vesten und Vorachtbahren H allexander Müller gewesenen silberarbeiters seel. hinterlassene frau Wittib, ist eine behausung allhier in der Statt Straßburg am Neßelbach am schiffleuth staaden gelegen einseits neben H Friderich Mollinger E. E. grosen Raths alten beÿsitzers anderseits Neben H. Friderich Kuntz handelsmann hinden auf H XIII. Reichart garten stosend, welche behausung Stuben, Cammer, Küchen, hauß Ehren ein gädel, goldschmidts Eß, holtz Kammer mit Latten unter schlag. halb gewölbtes und halb gebälcktes Kellerl: und bronnen sambt aller gerechtigkeit wie solches durch der Statt Straßburg geschworne Werckleuthe sich in der besichtigung befunden und Jetzigem preiß nach angeschlag. wird Vor und Umb Zweÿ Tausend und Zweÿ hundert gulden. Bezeichnuß durch der Statt Straßburg geschworene Werckleuthe [unterzeichnet] Michael Ehrlacher Werck Meister deß Meinsters, Johann Jacob Biermeÿer Werck Meister deß Zimmerhoffs, Johann Peter Pflug Werckmeister deß Mauer hofs
La veuve d’Alexandre Müller demande à la tribu de l’Echasse de proposer des tuteurs à ses enfants
1729, Protocole de la tribu de l’Echasse (XI 103)
(p. 442) Dienstag den 8. Martÿ Anno 1729 – Auf Ansuchen weÿland Herrn Alexander Müller gewesten goldarbeiters und burgers alhier seel. nachgelaßene wittib nahmens (-) gebohrne (-) umb benambßung eines Vogts vor ihre jüngste und minderjährige Söhn, seind Zu dem Ende von E. E. gericht Zur Steltzen denen hochwohl verordneten herren Vogteÿ richtern Zu fernerer Election geschrieben gegeben worden.
Anne Catherine Wilhelm lègue à ses trois fils sa maison quai Saint-Nicolas moyennant 2 200 florins
1734 (26.10.) Not. Hoffmann (Christophe Michel, 19 Not 61)
Dispositio inter liberos Frauen Annæ Catharinæ Müllerin gebohrner Wilhelmin wittib und burgerin alhier
Zuwißen daß auff Dienstag den 26.ten Octobris Anno 1734 Nachmittag Zwischen 4 und 5. Uhren in einer alhier Zu Straßburg ienseit der Preusch am Staden, Zwischen der St: Nicolai Kirch und Schindbrucken gelegenen hernach Vermelter Frau Disponentin eÿgenthümblich Zuständigen behaußung dero unteren Stub Cammer die fenster auff die Preüsch und Staaden außsehend, die Ehren und tugendsahme Frau Anna Catharina Müllerin gebohrne Willhelmin, weÿland Hn Alexander Müller gewesten Goldarbeiters und burgers allhier nachgelaßene Wittib Zwar Kranckh und unpäßlichen leibs dannenhero auff einem bett liegend, dannoch aber durch die Gnade Gottes Guter gesunder Vernunfft richtiger Sinnen und Verstands (…)
2. Prælegirt Sie ihre ietzige wohn: und Künfftiger Sterb behaußung ihren dreÿen Söhnen um 2200 guldin solche Summ in die gemeine mütterliche Künfftige Erbschafft einzuschießen
Item Vermacht sie Zu einem Prælegat Philipp Jacob und Johann Christoph ihren beeden Älteren Söhnen allen Werckzeug Zur Gold: und silberarbeiter Profession gehörig überall davon nichts außgenommen (…)
Les préposés de la Taille autorisent les héritiers de la veuve Alexandre Müller à reprendre le prix d’estimation de la maison qui figure à l’inventaire de 1729 puisqu’aucune amélioration n’y a été apportée.
1735 (8.8.), Livres de la Taille (VII 1178) f° 85
weÿl. H. Alexander Müller des Goldarbeiters hinterlaßener Wittib Erben bitten daß die behaußung beÿ dem anschlag de anno 1729. gelaßen werden möchte, weilen seithero keine melioration darinnen Vorgenommen worden, Erkannt Willfahrt
Jean Christophe Müller, fils célibataire d’Alexandre Müller, meurt en 1737 en délaissant pour héritiers sa sœur et ses deux frères. La maison dont un tiers appartient au défunt et les deux autres tiers à ses frères est portée au prix qui figure à l’inventaire précédent. L’actif de la succession s’élève à 391 livres, le passif à 318 livres.
1737 (22.8.), Not. Goll (Jean Elie, 13 Not 3) n° 56
Inventarium und beschreibung aller Haab und Nahrung, so weÿland der Ehrenvest und Kunsterfahrene herr Johann Christoph Müller, lediger Goldarbeiter, weÿland H. Alexander Müllers geweßenen Goldarbeiters und burgers allhier hinterlassenen Sohn, nach seinem den 27. Julÿ letzthin erfolgten seeligen ableiben, Zeitlichen verlaßen (…) So geschehen Straßburg Donnerstags den 22.ten August 1737.
Der seelig verstorbene hat ab intestato zu Erben verlaßen wie folgt, 1° Weÿland Frauen Susannæ Margarethæ Jostin gebohrner Müllerin, des Verstorbenen Schwester seeligen, mit weÿland meister Johann Jacob Josten, Schuemacher und burgern allhier ehelich erziehlte zweÿ Kinder, nahmentlich Johann Jacob und Susannam Margaretham Josten dero geschworner Vogt, herr Philipp Christian Müller, Verschiedener adelichen familien Schaffner und burger allhier, in dero Nahmen dieser Inventation beÿgewohnet, vor einen dritten Stammtheil, 2° Herr Philipp Jacob Müller, ledigen goldarbeiter so Majorennis, des Verstorbenen seeligen bruder, so dießer Inventation in Person beÿgewohnet, Zu einem dritten theil 3° Herrn Johann Müller, ledigen Mahler, deßen brudern so ebenfalls Majorennis und beÿ der Inventation in Person Zugegen geweßen, gleichfalls Zu einem dritten theil. Alle des seelig Verstorbenen hinterlaßene resp° Schwester Kinder und brüder und Zu dreÿen gleichen Stammtheilen ab intestato verlaßene Erben.
In einer alhier zu Straßburg An dem Staden beÿ dem Neßelbach gelegenen zum theil in diese Verlaßenschafft gehörigen behaußung hat sich befunden wie folget
(f° 3-v) Werckzeug Zur Goldarbeiter Kunst gehörig
(f° 4-v) Eigenthumb an einer behaußung. Der dritte theil Vor ohnvertheilt an einem Hauß, Höfflein und Hoffstatt mit allen derselben gebaüen, begriffen, weiten, Zugehörden, Rechten und Gerechtigkeiten gelegen alhier Zu Straßburg jenseith der Preusch am Staden Zwischen St. Nicolai Kirchen und der Schindbrucken einseit ist zum theil ein Eck, theils neben H. Friderich Kuntzen dem handelsmann, anderseith neben H. Joh: Friderich Mollinger Banquier, hinten auf S.T. H. XIII.er Joh. Christoph Reichard stoßend über hernach fol. (-) stehende beschwerden, Und ist diese behaußung annoch Frauen Salome Walterin gebohrner Richshofferin weÿland H Johann Georg Walters handelßmann alhier hinterlaßener Wittib verhafftet vor 750 lb. d. Ferner Frauen Catharinæ Andresin gebohrner Büchelin, weÿland H. N. Andre geweßenen handelßmann hinterlaßener Wittib vor 100 lb. Ist deroselben fraw vor 50 lb freÿ ledig und eigen und beÿ weÿland H. Alexander Müllers des Verstorbenen Vatters seeligen Verlaßenschafft Inventation durch die hiesige Hh. Werckmeister taxirt, worbeÿ man es auch angesehen seithero nichts darin gebauen worden gelaßen vor 1100 lb. Darüber besagt ein teutscher Pergamentener Kauffbrieff in allhießiger Cantzleÿ Contract Stuben verfertiget mit der Statt Straßburg Insigel verwahrt datirt den 17. Januarÿ 1702. Hieran gehört in dieße Verlaßenschafft die tertz thut 366 lb 13 ß 4 d. Die übrige zwo tertzen gehören H. Philipp Jacob und H. Johann Müllern beeden des Verstorbenen seel. brüdern und miterben eigenthümlichen.
Series rubricarum hujus Inventarii. Sa. hausraths, 15 lb, Sa. Werckzeugs Zur Goldarbeiter Kunst gehörig, 2 lb, Sa. des Silbers, 4 lb, Sa. Eigenthums an einer behausung 366 lb, Sa. der Schuld 2 lb, Summa summarum 391 lb – Sa. der Schulden 318 lb, Nach deren Abzug 73 lb
Zuwißen seÿe hiermit, auff den 27. Julii 1737 erfolgter seeliger Ableiben weÿl. H. Johann Christoph Müllers ledigen Goldarbeiter Weÿland H. Alexander Müllers geweßenen Goldarbeiters hinterbliebenen ehelichen Sohn den 22.ten Augusti gedachten 1737. Jahrs in allerseits Interessenten beÿseÿn (…) deßen Verlassenschafft ordentlichen inventirt und das darüber Verfertigte Inventarium gehörigen orthen, producirt worden, biß dato aber solche Verlaßenschafft ohnvertheilt geblieben, und in zwischen auff erhaltenes Decretum alienendi das den Verstorbenen seeligen Zu einer tertz zuständige hauß allhier zu Straßburg an dem Staden Zwischen St. Nicolai Kirchen und der Schindbrucken gelegene in dem Inventarium fol. 20 et seqq. beschriebene, woran deßen beeden hinterbliebenen HH. brüdern die Zwo übrige tertzen Zuvor gehörig, beede erwehnte Hh. brüdere durch ordentliche Versteigerung und darauff erfolgte adjudication von E. E großen Raths Verkaufft und richtig gemacht worden, daß solchemnach und um die Verlaßenschafft ebenfalls Zu Richtigkeit Zubringen, benantlichen H. Philipp Christian Winter, Adelicher Schaffner und burger alhier, alß geschwohrner Vormund Weÿland Frauen Susannæ Margarethæ Jostin gebohrener Müllerin, des Verstorbenen Schwester seeligen, mit weÿland meister Johann Jacob Josten Schuemacher und burgern allhier ehelich erziehlter Kinder (…) umb Sie respectivé final abtheilung Vergleichung und Außweißung Vorzunehmen (…) Actum Straßburg Sambstags den 12.t Aprilis 1738.
Les enfants de Susanne Marguerite Müller et du cordonnier Jean Jacques Jost vendent à Philippe Jacques et Jean Müller la part de maison qui leur est échue dans la succession de Jean Christophe Müller
1738 (12.4.), Chambre des Contrats, vol. 612 f° 226
H. Philipp Christian Winther Adelischer Schaffner als vogt weÿl. Johann Jacob Jost des schuhmachers mit weÿl. Susannæ Margarethæ geb. Müllerin beeder kinder Johann Jacob und Susanna Margaretha der Jostin
der Curanden verstorbenen Mutter beeder brüder Philipp Jacob Müller lediger goldarbeiter und Johannes Müller ledigen Kunstmahlers, d. 30 Decembris jüngst obrigkeitlich confirmirten versteigerung
Einen 9.ten theil für ohnabgetheilt ahne einer behausung bestehend in vorder und hindergebäu, höfflein und hoffstatt, weithen, zugehörden, rechten und gerechtigkeiten jenseith der Preusch zwischen St. Nicolaus und Schindbruck am Staden, einseit theils ein eck am Allmend theils H. Friedrich Kuntz dem banquier, anderseit neben weÿl. H. Rathh. Ernst Friedrich Mollinger des banquier Erben hinten auf H. XIII. Johann Christoph Reichard gartten – um 750 und 150 pfund (zusammen) 900 pfund capitalien so sie zu einem 9.teil nemlich 100 pfund übernimmt, beschehen um 70 pfund – (den Käuffern) als erben weÿl. Johann Christoph Müller ledigen goldarbeiters ihrer mutter bruder, beede deme die tertz oberwehnten hauses zugehören und einem dritten stammtheil zu 1/9 theil denen kaüffern aber zum übrigen 8/9 theilen eigenthümlich zuständig
L’orfèvre Philippe Jacques Müller et le peintre Jean Müller, tous deux célibataires, vendent la maison à Catherine Büchel, veuve du marchand Jean Philippe André
1738 (8.7.), Chambre des Contrats, vol. 612 f° 389-v
Philipp Jacob Müller lediger goldarbeiter und Johannes Müller ledige kunstmahler die beede mehrjährig ohnbevögtigt
in gegensein Catharinæ geb. Büchelin weÿl. H. Johann Philipp André des handelsmanns ohnbevögtigten wittib mit beÿstand ihres tochtermanns H. Johann Jacob Braun des jüngern goldarbeiters
Eine Behausung bestehend in vorder und hinder haus, höfflein, Bronnen und hoffstatt mit allen übrigen deren gebäuden, begriffen, weithen, zugehörden und rechten ahne dem St Nicolaus Staden einseit theils ein eck am Allmend theils neben H. Friedrich Kuntz dem banquier anderseit neben weÿl. H. Rathh. Ernst Friedrich Mollinger Banquier Fr. wittib und erben hinten auff S.T. H. XIII Johann Christoph Reichard – sambt dem Bauch und Offenkeßel und dem im Arbeits laden stehenden eißernen offen – als ein theils von ihrem bruder ererbt theils von weÿl. Susannæ Margarethæ Jostin geb. Müllerin ihrer schwester seel. kinder am 12. Aprilis jüngst erkaufftes guth – um 1500 pfund
Fils du marchand Jean Philippe André, le marchand Jean Philippe André épouse en 1707 Catherine Büchel, fille du marchand Abraham Büchel : contrat de mariage tel qu’il est copié à l’inventaire, célébration
Eheberedung – Zwischen dem Ehrenvest undt Wohlvorgeachtn Herrn Johann Philipp Andrea, Handelßmann und Burgern allhier Zu Straßburg, alß dem Herrn Bräutigamb ane Einem, So dann der Viel Ehren und Tugendbegabten Jungfrawen Catharina Büchelin, Weÿland deß Wohl Ehrenvesten undt Wohlvorgeachten Herrn Abraham Büchel geweßenen Vornehmen Handelßmanns undt Burgers allhier Zu ermeltem Straßburg, nunmehr seel. mit der Viel Ehren: und Tugendreichen Frauen Catharinæ gebohrner Mercklinin Ehelich erzeügten Tochter, alß der Jungfraw Hochzeiterin am andern theil (…) So beschehen undt Verhandelt in der Königlichen freÿen Statt Straßburg Montags den 24.ten Januarÿ in dem Jahr alß mann nach der Gnadenreichen geburth und Menschwerdung unßers Erlößers und Heÿlandes Jesu Christ Zahlte 1707 [unterzeichnet] Johann Philipp Andreä als Hochzeiter bekenne wie obstehet, Catharina Vüchlerin Als hoch Zeiterin bekenn Wie obstödt – Daniel Rohr, Nots.
Mariage, Temple-Neuf (luth. f° 174-v n° 793)
1707. Mitwoch den 16.t Febr. Sind nach 2 mählicher proclamation ehl. copulirt worden, H Joh. Philipp Andreß der ledige handelsmann, weÿl. H Joh: Phil. Andeßen, gewesenen b. Schiff und handelsmanns hinterl. ehel. Sohn und Jungfr. Catharina weÿl. H. Abraham Büchel geb.w. b. vnd Handelsmann Hinterl. ehl. tochter [unterzeichnet] Johann Philipp Andrä alß Hochtzeiter, Cathrina bichlein als hoch zeitin (i 174)
Les nouveaux mariés font dresser l’inventaire de leurs apports dans une maison Grand rue qui appartient aux parents de la femme. Ceux du mari s’élèvent à 556 livres, ceux de la femme à 1 304 livres.
1707 (16.3.), Not. Rohr (Daniel, 46 Not 17) f° 652
Inventarium und beschreibung aller derjenigen haab vnd Nahrung, so der Ehrenvest v. Vorgeachte Herr Johann Philipp Andreä, handelßmann vnd die Viel Ehren vndt tugendreiche fraw Catharina gebohrne Büchelin beede Eheleuthe und burgere allhier zu Straßburg einander in den Ehestandt Zugebracht vnd vermög auffgerichteter Eheberedung sich vor unverändert vorbehalten haben (…) So beschehen allhier in der Königlichen Freÿen Statt Straßburg in fernerem gegensein des Ehren vnd vorachtbahren herrn Geörg Friderich Otten Sen. Rothgerber und lederbereithers auch burgers allhier Zu Straßburg der Ehefrawen annoch ohnentledigten vogts ferner der viel Ehren und Tugendreichen Frauwen Catharina gebohrner Mercklinin der Ehefrauen geliebten Fr. Mutter, Weiter des Wohl Ehrwürdig hochachtbar vnd wohlgelehrten H Jacob Fibich der zeit treweifferigen und wohlbestellten Pfarrers der Evangelischen Gemeind Zu Eckboltzheim und der Viel Ehren und tugendreichen Frawen Mariæ Cleophe gebohrner Büchelin der Ehefrauen respectivé geehrten H. Schwager und geliebter Fr. Schwester, Mittwochs den 16. Martÿ Anno 1707.
In einer allhier Zu Straßburg ane der Langenstraßen gelegenen der Ehefrauen Fr. Mutter Zuständigen behaußung sich volgender maßen befunden
Series rubricarum hujus Inventarÿ. des Herrn Nahrung, Sa. haußraths 129, Sa. Wein und leerer faß 42, Sa. Silbers 22, Sa. goldenen Rings 12, Sa. baarschafft 349, Summa summarum 556 lb
der Frauen Guth, Sa. haußraths 234, Sa. Silbers 51, Sa. giuldener Ring 90, Sa. baarschafft 927, Summa summarum 1304 lb
Jean Philippe André meurt en 1729 en délaissant trois enfants. L’inventaire est dressé dans une maison de location rue de l’Ecurie. La masse propre à la veuve est de 1 541 livres, la masse propre aux héritiers de 410 livres. L’actif de la communauté s’élève à 2 744 livres, le passif à 3 754 livres.
1729 (19. 9.bris), Not. Lichtenberger (Jean Philippe, 30 Not 5) n° 117
Inventarium über Weÿl. Herrn Johann Philipp Andre, geweßenen Handelßmann und Burgers allhier Zu Straßburg nunmehr seel. Verlaßenschafft auffgerichtet Anno 1729. – nach seinem den 26. Martÿ dieses Zuend gemelten Jahrs beschehenen tödtlichen ableiben Zeitlichen verlaßen, welche Verlaßenschafft auf freundliches ansuchen erfordern und begehren meister Ehrenfrid Gebhard, des Schreiners und burgers allhier, alß geordnet und geschworenen Vogts Jgfr. Annæ Catharinæ, Emanuels und Johann Daniels, des abgeleibten herrn seel. mit hernach gemelter seiner hinterbliebenen Frau wittib ehelich erzeugter Kinder, und beneben der den 27. Julÿ jüngstin alßo nach dem herrn Vatter seel. verstorbenen Tochter nahmens Jgf. Cleophe deren Stelle die Frau Mutter und Wittib repræsentirt, ab intestato nachgelaßener Erben inventirt und ersucht durch Frau Catharinam gebohrne Büchelin die hinterbliebene Frau Wittib (…) So geschehen in Straßburg in fernerem gegensein des Ehren vest und wohlachtbahren herrn Abraham Büchel handelsmanns und burgers allhier der Fraw wittib bruders und Ihres erbetteben beÿstands, auff Sambstag den 19.t Novembris Anno 1729.
Copia des von beeden gewesenen Eheleuthen vor weÿland herrn Daniel Rohr Notario publico seel. und gezeugen in Anno 1708. auffgerichteten Codicilli reciproci
Hierauff wird nun die Verlaßenschafft vor und ane sich selbsten beschrieben, wie such solche in der von der Fraw wittib lehnungs weiße bewohnenden an der Stallgaß gelegenen behaußung befunden
Ergäntzung der Frau Wittib abgegangenen unveränderten Vermögens. Vermög Inventarÿ (…) durch weÿl. herrn Daniel Rohren Notarium seel. in A° 1707. auffgerichtet
Series rubricarum hujus Inventarÿ. Der Frau Wittib Nahrung betr. Sa. haußraths 29, Sa. Silber geschirr und Geschmeids 28, Sa. goldener Ring 38, Sa. Pfenningzinß hauptguts 12, Sa. Gültten von liegenden gütheren fallend 4, Sa. der Ergäntzung 4328, Sa. Activ Schuld 100, Summa summarum 1541 lb
Der Erben unverändert Guth betr. Sa. haußraths 20, Sa. goldenen Rings 2, Sa. Ergäntzung 481 lb, Summa summarum 510 lb – Schuld 100, Nach deren Abzug 410 lb
die theilbare Verlaßenschafft betr. Sa. haußraths 99, Sa. der wahren Zum gewerb gehörig 1839, Sa. Wein und leerer Faß 76, Sa. Silbers 9, Sa. goldener Ring 6, Sa. baarschafft 337, Sa. Activ Schulden 375, Summa summarum 2744 lb – Schulden 3754 lb, In Compensatione, Theilbar Passiv onus 1010 lb – Stall Summ 942 lb
Zweiffelhaffte Schulden in der Frau Wittib unveränderte Nahrung zugeltend 14, Zweiffelhaffte Schulden in die Theilbare Nahrung Zugeltend 388 lb
Eheberedung (…) So beschehen undt Verhandelt in der Königlichen freÿen Statt Straßburg Montags den 24.ten Januarÿ 1707
Anne Catherine Büchel meurt en 1754 en délaissant pour héritiers les six enfants de sa fille Anne Catherine, femme de l’orfèvre Jean Jacques Braun. Les experts estiment la maison à 1 250 livres. L’actif de la succession s’élève à 6 873 livres, le passif à 1 738 livres.
1755 (10.2.), Not. Lichtenberger (Jean Frédéric, 6 E 41, 330) n° 684
Inventarium über Weiland Frauen Annæ Catharinæ Andréin geborner. Büchelin auch weiland Hn Johann Philipp André, geweßenen Handelsmanns und Burgers allhier zu Straßb. seel. hinterbliebener Frau Wittib nun auch seel. Verlaßensch. auffgerichtet Anno 1755. (…) nach ihrem Freÿtags den 21.sten Decembris des zunächst Zurückgelegten 1754.sten Jahrs aus dießer welt genommenen tödlichen hintritt hier Zeitlichen verlaßen, Welche Verlaßenschafft auf freundliches ansuchen, Erfordern und Begehren Hn Johann Michael Hug des Küblers und Burgers allhier, als geordnet und geschwornen Vogts, weiland Frauen Annæ Catharinæ Braunin gebohrner André, der dißortigen Tochter mit H. Johann Jacob Braun dem Goldarbeiter und burgern alhier ehelich erzeugter 6. Kinder, der abgeleibten seel. Enckel und ab intestato hinterlaßener Erben, Nahmens H. Johann Jacobs, leedigen Goldarbeiters, so 24 Jahr alt, Jgf. Christina Salome so 21. Jahr alt, Hn Johann Philipp, auch leedigen Goldarbeiters, so 18 ½ jahr alt, Jgf. Catharina Magdalena, so 11 Jahr alt, Maria Dorothea so 7 Jahr alt und Georg Friedrichs, so 2 ½ Jahr alt, derer Braunen, inventirt, durch obgedachten Hn Johann Jacob Braun der Erben H. Vatter, wie auch Salome Bauerin von hier gebürtig, der verstorbenen seel. dienst Magd (…) So beschehen in der Königlichen Stadt Straßburg in fernerem Gegenwarth S. T. H. Joh Daniel Langheinrich, Notarÿ publici et Practici, als Vorgedachten der dißortigen Erben vogts hierzu erbettenen H. Beistand auf Montag den 10.den Februarÿ et seqq. Anno 1755.
In einer allhier Zu Straßburg ane dem St Niclaus Staden gelegenen in diese Verlaßenschafft gehöriger und hernach eingetragener behaußung befunden worden wie folgt
Ane Schrein: und Höltzenwerck. In der obern Cammer, Im hintern Stübel, Auf dem Gang, In der hintersten Cammer, In der Kuchen, In der Wohnstuben, In der Wohnstub Cammer, Im Keller
(f° 8-v) Eigenthum ane Häußern. Eine Behaußung bestehend in Vorder und hinter hauß, Höfflein, Bronnen und Hoffstatt, mit allen übrigen deren Gebäuden, Begriffen, Weithen, Zugehörden und Rechten, allhier ane dem St. Niclaus Staden, einseith ist theils ein Eck am Allmend theils neben H. Rathherrn Fried: Kuntz dem Banquier, anderseit neben weiland H. Rathh. Ernst Friedrich Mollinger, geweßenen ebenmäßigen Banquier Frau Wittib, hinten auf weiland S. T. Herrn XIII. Johann Christoph Reichards Frau Wittib stosend gelegen, so gegen nemlich freÿ, leedig und eigen durch (die Werckmeistere) vemög deroselben ad Conceptum überschickten schrifftlichen Abschatzungs Zeduls Vom 22.ten Januarÿ A° 1755. æstimirt und angeschlagen worden pro 2500. fl. oder 1250. lb. Wie die Abgeleibte seel. diese Behaußung Von Hn Philipp Jacob Müller dem Goldarbeiter und Hn Johann Müller, dem Kunstmahler, Käufflichen ane sich gebracht, besagt ein teutscher pergamentener Kauffbrieff in allhiesiger Cantzleÿ Contract Stuben gefertiget und mit dero anhangendem Insiegel versehen de dato 8. Julÿ 1738. Ferner besagen über diese behausung 5. andere dergleichen in gedachter Contract Stuben passirte Kauffbrieff dedatis 17. Jan: 1702. 25. 7.bris 1647. 25. Aug. 1636. 24. Aug. 1604. und 9. May 1555.
It. die helffte Vor ohnvertheilt, von und ane einer behaußung, bestehend in Vorder: und hinterhauß in der Knoblauch Gaß (…)
It. die helffte vor ohnvertheilt von und ane einer behaußung ane der Obern Straß beÿ der steinern Bruck gelegen (…)
(f° 21) It. ein vierdter Theil vor ohnvertheilt Von und ane einer kleinen behaußung
in der Vorstadt Krautenau in der Kleinen Vieh Gaß (…)
It. noch ein vierdter Theil vor ohnvertheilt Von und ane einer Völligen kleinen behaußung
in der Vorstadt Krautenau in der Kleinen Vieh Gaß (…)
(f° 23) Eigenthum ane einem Hoff guth und Zugehörd auf der Metzgerau hiesigen banns ohnfern dem Richshofferischen modo Walterischen Guth (…)
(f° 25) Eigenthum ane einem ziegeloffen, oberhalb dem dorff Steinburg
(f° 34) Series rubricarum hujus Inventarÿ, Sa. haußraths 400, Sa. Pferds 5, Sa. Wein und Faß 104, Sa. Silbers 110, Sa. Goldener Ring und dergleichen Geschmeids 56, Sa. Baarschafft 90, Sa. Eigenthums ane Häußern 3267, Sa. Eigenthums ane einem Hoffguth 567, Sa. Eigenthums ane einem Ziegeloffen 178, Sa. Eigenthums ane liegenden Güthern 70, Sa. Gülten von liegenden güthern 42, Sa. Pfenningzinß hauptgüter 1017, Sa. vor gut geachteter Schulden 962, Summa summarum 6873 lb – Schulden 1738, Nach deren Abzug 5135 lb
L’orfèvre Jean Philippe Braun cède sa moitié de maison à sa sœur Chrétienne Salomé Braun, femme du marchand Jean Thiébaut Saltzmann, qui en devient seule propriétaire.
1763 (26.7.), Not. Dinckel (J. Raoul, 6 E 41, 403) n° 998
Abtheil und Erörterung über Weÿland Frauen Catharinä Andrein, gebohrener Büchelin auch Weÿland Herrn Johann Philipp Andre, geweßenen handelsmanns und burgers allhier Zu Straßburg längst seeligen hinterlaßener Frau Wittib ebenmäßig seeligen Verlaßenschafft, auffgerichtet Anno 1763.
(f° 3) Abtheilung derer sambtlichen Immobilien als Nemlich Eigenthumbs ane häußern, aus einem Hoffguth ane einem Ziegeloffen, ane Liegenden güethern gefallend, Wie auch derer Vor guth geachteten Pfenningzinß hauptgüether
(f° 21) Vor mir unterschriebenem Zu Weÿland Frauen Catharinä Andrein, gebohrener Büchelin auch Weÿland Herrn Johann Philipp Andre, geweßenen handelsmanns und burgers allhier Zu Straßburg längst seeligen hinterlaßener Frau Wittib nun ebenmäßig seeligen Verlaßenschafft Abtheil und Erörterung in specie requirirtem Notario seind ane Zu End gemeltem dato persönlich erschienen Frau Christina Salome Saltzmännin gebohrne Braunin, herrn Johann Theobald Saltzmann des handelsmanns und burgers allhier Frau Eheliebste, Von Wohlernantem Ihrem geliebten Eheherrn hierzu genugsam autorisirt ane einem, So dann Herr Johann Philipp Braun, leediger Goldarbeiter und burger allhier, ane dem anderntheil, anzeigende, wie daß sie beede Geschwisterde Wegen der in gegenwärtiger Ihrer großmütterlichen Verlaßenschafft abtheil und außweißung Ihnen ins gemein durch das gelegte ohnpartheÿische Loos Zugekommenen Behaußung jenseit am Staden Zwischen der Schind: und St. Niclausbrucken gelegen Im ohnzertheilter gemeinschafft Zu verbleiben nicht gesinnet, derowegen dann Er Herr Johann Philipp Braun vor sich und seine Erben
Ihro Frauen Saltzmännin seiner Frau Schwester in diesem ohnvertheilten großmütterlichen Erb eigenthümlich Käufflichen cedirt und überlaßen (…)
Seine ohnabgetheilte helffte ane vorgedachter behaußung hoff und hoffstatt, samt hintergebäu und allen übrigen deren gebäuden, Begriffen, Weithen, Rechten, Zugehörden und Gerechtigkeiten, gelegen allhier Zu Straßburg jenseit am Staden Zwischen der Schind: und St. Niclausbrucken, ohnfern dem Goldgießen, einseit neben der Mollingerischen behaußung, anjetzo herrn Friderich Kuntz E. E. großen Raths alten beÿsitzers seeligen Frau Wittib und Erben, hinden auf Frauen dreÿzehnerin Reichardiin Garthen stoßend, so gegen Männiglichen freÿ Ledig und eigen, Und ist demnach dieße Cession und übernahm ermelter halben Behaußung beschehen und Zugangen Vor und umb 876 Pfund pfenning hießig Straßburger Current – So beschehen in Straßburg den dritten Decembris Anno 1783
Chrétienne Salomé Braun, femme de Jean Thiébaut Saltzmann, vend la maison au courtier Jean Michel Stribeck
1769 (10.5.), Not. Humbourg (6 E 41, 134)
Vente – Sr. Jean Thiébault Saltzmann négociant et le Sr Jean Jacques Braun l’ainé orfèvre son beau père stipulant et agissant pour et au nom de Christine Salomé Braun leur femme et fille respective
au Sr Jean Michel Stribeck, courtier de change
la maison de la Damle Saltzmann née Braun en cette ville entre les ponts de la boucherie et de St. Nicolas proche l’égout d’Or, d’un côté Jacques Frédéric Hetzel d’une part faisant le coin en partie et attenant au Sr Schreibeissen en partie d’autre part et par derriere sur le jardin de D° Reichard veuve de M. Reichard XIII, avec cour, corps de logis sur le derrière, toutes appartenances, droits & dépendances, laquelle maison provient de la succession de Damle Catherine née Büchel veuve du Sr Jean Philippe André négociant ayeule maternelle de la D° Saltzmann comme héritière pour moitié de sadite ayeule et comme cessionnaire de l’autre moitié du Sr Jean Philippe Braun son frère par acte reçu Dinckel le 3 décembre 1763 – moyennant 7000 livres
Enregistré à la Chambre des Contrats, vol. 643 f° 558, 3 août 1769 – auf Ansuchen H. Johann Michel Stribeck des courtier, nachstehende kaufverschreibung
Fils du drapier Jonas Striebeck de Mulhouse, Jean Michel Stribeck épouse en 1762 Marie Salomé Schætzel, fille du marchand de vins Jean Schætzel : contrat de mariage, célébration
1762 (24.12.), Not. Dautel (Fr. Henri, 6 E 41, 285) n° 436
Eheberedung – zwischen dem Wohl Ehren Vesten Herrn Johann Michael Striedbeck, dem ledigen handelsmann, herrn Jonæ Striedbecks des Thuchmachers und frauen Rosinæ gebohrener Franckin, beeder Ehepersonen und burgere in Löbl. Stadt Mühlhausen ehelich erzeugtem Sohn, als dem herrn Hochzeitern ane Einem
So dann der Ehren: und tugendgezierten Jungfrauen Mariæ Salome Schätzelin Herrn Johannes Schätzels, Vornehmen Weinhändlers und Frauen Mariæ Salome gebohrener Moßederin, beeder Eheleute und Burgers allhier Zu Straßburg ehelich erzeigter Tochter, als des Jungfer Hochzeiterin am andern theil
Beschehen alhier zu Straßburg auff Freÿtag den 24. Decembris anno 1762.
[unterzeichnet] Johann Michael Stribeck als hochzeiter, Maria Salome Schätzelin als hochzeiterin
Proclamation, Saint-Pierre-le-Vieux (luth. p. 235)
1763. Dom. I. & II. post Epiph. seind proclamirt und darauff zu Mühlhaußen copulirt worden, H. Johann Michael Strübeck lediger Handelsmann H. Jonas Strübecks burgers und thuch fabriquanten zu Mühlhaußen lediger Sohn, und Jungfrau Maria Salome H. Johannes Schätzels burgers und Weinhändlers dahier Ehl. tochter (i 124)
Mariage Mulhouse (réf. p. 106)
1763. Jan. d. 18. H. Joh: Michael Stribeck der Kfm. Jonæ Sohn u. Jfr. Maria Salome Schätzel eines Weinhändlers tocht. v. Straßburg auch verburgert alhie (i 117)
Originaire de Mulhouse en Suisse, Jean Michel Stribeck devient bourgeois par sa femme Marie Salomé Schätzel en s’inscrivant à la tribu du Miroir.
1763, Livre de bourgeoisie 1762-1769 (VI 285) f° 24-v
Johann Michael Stribeck, Kauffmann von Mülhausen in d. Schweitz, erhalt das burgerrecht von seiner Ehefrauen Maria Salome H. Joh: Schätzel des Weinhändlers und burgers allhier ehel. tochter umb den alten burger schilling, will dienen beÿ E. E. Zum Spiegel. Jur. eod. [3. Xbr. 1763]
Jean Michel Stribeck devient tributaire au Miroir dix jours après avoir été reçu bourgeois. Il déclare faire commerce de draperies.
1763, Protocole de la tribu du Miroir (XI 278)
(f° 165) Dienstags den 13. Decembris 1763 – E. Leibzünfftiger
H. Johann Michael Stribeck von Mühlhausen gebürtig, so die Handlung Zufolg producirten Attestats vom 16. Maji 1754. Zu berührtem Mühlhausen, wie recht, erlernet, ist auf producirten Kanzlei: und Stallschein vom 3. & 10. hujus gegen Erlag 3. lb 10 ß und 25. lb. d wegen hier nicht erlernter Handlung, leibzünfftig als Handelsmann auf und angenommen worden, dedit et promisit obedientiam und declarirt, mit Draperie handlen zo wollen.
Jean Michel Stribeck est nommé courtier de marchandises pour remplacer le défunt Jean Georges Fichtner, il occupera aussi le poste de courtier de change.
1765, Protocole des Quinze (2 R 177)
(p. 480) Montags den 26. August 1765. – Joh: Michael Stribeck wird Wexel und Waaren Courtier
Obere Kauff hauß Hhrn laßen per me referiren, es seÿe durch den todt Johann Georg Fichtner geweßten Macklers allhier, der platz eines derselben vacant worden, Zu deßen wiederersetzung hochged. Obere Kauffhauß Hhn. eine Rubric durch mich ausschreiben Zu laßen beliebet, worin sich nachstehende Zweÿ Subjecta eingeschrieben als 1. Heinrich Leopold Wagner 2. Johann Michaël Stribeck, beede handelsleuthe und burgere dahier.
Dieße rubric hätten hochgenannte Hh Depp. E. Löbl. Corps des Marchands in der Persohn S.T. H. XXI. Franck communicirt, und von demselben die Versicherung erhalten, daß Johann Michaël Stribeck ohnstreitig alle hierzu erforderliche eigenschafften Vorzüglich besitze, weßwegen Er denselben nomine ged. Corps Mghh. Wohlwollen bestens empfohlen Zugleich hochdieselbe geziemend ersuchen wollen Wofern die Wahl ihme günstig seÿn solte, demselben Zugleich die Erlaubnus angedeÿen Zu laßen, in wechselsachen Zu thun und Zuschließen, die Wahl stehe alßo Zu Mghh.
Nach angehörtem Voto Hn Prætoris Regii Wurde Johann Michaël Stribeck unanimiter Zu einem ordentlichen Mackler, und Zwar mit der ausdrücklichen Erlaubnus, auch in Wechslen Zu thun und Zu schließen auf und angenommen. Sambstags d. 31.t hujus juravit.
Jean Michel Stribeck hypothèque la maison au profit de Madeleine Dorothée Œsingée née Friderici et du marchand Emmanuel Hoffmann de Bâle.
1769 (3.8.), Chambre des Contrats, vol. 643 f° 567-v
H. Johann Michel Stribeck der Courtier
in gegensein H. Lt. Johann Friderich Oesinger E. E. Großen Raths alten beÿsitzers als mandatarii seiner Mutter Fr. Magdalenæ Dorotheæ Oesinger geb. Fridericiin, und H. Johann Jacob Rekopp des handelsmanns alhier, als Mandatarii H. Emanuel Hofmann des handelsmanns in Basel, ihro Fr. Oesingerin 1500 pfund und ihme H. Hoffmann auch 1500 pfund
unterpfand, eine behausung cum appertinentiis allhier am Herren Staden, einseit neben H. Jacob Friedrich Hetzel, dem lederhändler anderseit neben H. Johannes Schreibeisen dem Weinhändler hinten auf Fr. XIII° Reichardin stoßend gelegen
[in margine :] überstehende H. Emanuel Hoffmann schuldige 1500 lb sowol alß die fraun oesingerin schuldige 1500 lb seind besagt quittung so coram Notario Lacombe die schuldige H. Stribeck auffgewießen, den 9. maÿ 1772
Jean Michel Stribeck loue un logement à Philippe Jacques Daller
1772 (14.3.), Not. Lacombe (6 E 41, 145)
Bail – Sr Jean Michel Stribeck courtier, pour 6 années consécutives qui commenceront à la Notre Dame prochaine
à Philippe Jacques Daller
un logement dans la maison qui lui appartient en cette ville quai St Nicolas, d’un côté Sr Hetzel marchand (de cuirs) et Jean Schrebeisen marchand de vin, consistant ledit logement en trois chambres de plain pied au rez de chaussée et la cuisine, en une chambre dans la mansarde, En une petite cave sous la maison de derrière, En un bucher qui se trouve au dessus de ladite cave, Plus l’usage des greniers de ladite maison pour la lessive seulement
Que l’usage de la cuisine qui vient d’être louée au Sr Daller sera commun et permis en tout temps tant au Sr bailleur qu’aux autres locataires pour les lessives qu’ils voudroient y faire – moyennant un loyer annuel de 120 livres
Jean Michel Stribeck loue un logement à Gaspard Gotthold Weigel, conseiller du roi de Pologne
1781 (1.2.), Chambre des Contrats, vol. 655 f° 51-v
H. Johann Michael Stribeck der wexelcourtier
in gegensein SS.TT H. Caspar Gotthold Weigel des hoffraths ihrer Majestæt des Königs von Pohlen
lehnungs weiß, in der ihme verlehner eigenthümlich zuständigen ane dem Niclauß staden gelegenen behausung, benantlich den gantzen zweÿten stock, weiter eine cammer in der mansarde eine holtzhaus auf dem untersten boden unter der steeg einen kleinen keller neben dem H. verlehner großen keller gelegen, auch soll der H. entlehner erlaubt seÿn auff die bühn 2 biß 3 fuder doch nicht mehr holtz zu legen – auff 5 nacheinander folgenden jahren auff Mariæ verkündigungs tag anfangend, um einen jährlichen Zinß nemlich 400 livres oder 200 gulden
Jean Michel Stribeck et sa femme concluent un abonnement à la Taille sur le pied de 12 000 livres.
1782, Protocole des Quinze (2 R 192)
(p. 339) Sambstags den 7.ten Decembris 1782. – Idem [Wilhelm] nomine H Johann Michael Striedbeck des hiesigen Burgers und wechsel Courtier und dessen ehefrau producirt unterthäniges memoriale und bitten puncto abonnement des Stallgelds bitt unterthänig Deputationem. Erkandt, Obere Stallherren.
(p. 369) Sambstags den 14.ten Decembris 1782. – Iidem [Obere Stallh.] lassen ferner per me referiren, es habe H. Johann Michael Striedbeck der Burger und wechsel Courtier und dessen ehefrau den 7.ten dieses ein unterthäniges memoriale übergeben und darinn gebetten MGHh geruheten sie auf eine Zeit von Zehen jahren für die Löbl. Stadt Stall abzurichtende gebühren auf den Fuß von 20.000 livres haubt guth Zum abonnement gnädig zu admittiren, vermittelst dessen dieselbe auf entstehenden sterbfall von verfertigung eines Inventarii Zu dispensiren seÿen. Obwohlen die H. Deputirte beÿ der deßfalls vorgenommenen untersuchung Imploranten gewissermassen als handelsmann mithin Zu erhaltung eines abonnement ad Tempus fähig erachten, so haben sie jedannoch in ansehung der summe selbst als welche vermög der ordnung zu gering wie auch der dispensatione von Vorlegung eines Inventarii dessen begehren nicht billigen können mithin der meinung seÿn wollen, das denen Imploranten daß abonnement auf Löbl. Statt Stall auf den fuß von 12.000 fl. haubt unter den in voriger sache angeführten bedingnußen Zu gestatten sen. Erkandt bedacht Confirmirt.
Une expédition de la décision des Quinze est transcrite dans les registres de la Taille.
1782 (30 Nov.), Livres de la Taille (VII 1180) f° 318-v
Erkanntnus Gnädiger Herren der Fünffzehen Vom 14.ten decembris 1782.
In Sachen H. Johann Michael Striedbeck des Burgers und wechsel Courtier und dessen Ehefrau Imploranten auff producirtes unterthäniges memoriale und bitten wir geruheten sie auf eine Zeit von Zehen jahren für die Löbl. Stadt Stall abzurichtenden gebühren auf den Fuß von 10.000 fl. haubt guth Zum abonnement gnädig zu admittiren, vermittelst dessen dieselben auf entstehenden sterbfall von verfertigung eines Inventarÿ Zu dispensiren seÿen.
Verordnete und beseßene Deputation auch all übrig der Parthen angehörte Vor und anbringen Ist der zu den Stallgeschäfften abgeordneter herren abgestatteten relation nach Erkant, daß beeden Imploranten mit einem Zehenjährigen abonnement auff Löbl. Statt Stall auf den fuß von 12.000 fl. unter nachfolgeden Bedingungen zu willfahen das sie das angesetzte quantum nach abzug der bis dahin verfallen summ sogleich baar erlegen und wann Ihnen künfftighin etwas Legats, Donations oder Wÿdumbsweise Zufallen Würde deßen belauff obig fixirter Summ beÿgesetzet, wie nicht weniger auff ein oder des andern erfolgende abserben, deßen Verlaßenschafft ordnungsmäßig jnventirt das darüber zu Errichtende Inventar Jedoch ohne zu beforchtende recherche oder nachtrag denen H. dreÿ löbl. Statt Stall überliefert werde. unterschriebenen Zæpffel XV. Secretarius.
Jean Michel Stribeck loue une partie de la maison au secrétaire de la Chambre d’économie Samuel Régnard Weber.
1783 (24.11.), Chambre des Contrats, vol. 657 f° 479
H. Jacob Michael Stribeck der geschworne wexel courtier
in gegensein H. Lt. Samuel Reinhard Weber oëconomiæ secretarii
lehnungs weiße, in der des H. verlehners eigenthümlich zuständigen ane dem Niclaus staden gelegenen behausung der gantze zweÿte stock derselben, weiters eine cammer in der mansarde ein holtz haus auf dem untern boden unter der steeg einen kleinen keller neben des H. verlehners größern keller den gemeinschafftlichen gebrauch der bauchküche und bühnen jedoch nur in waschzeiten – auff 7 nacheinander folgenden jahren auff instehenden weÿhnachten angehend – um einen jährlichen Zinß nemlich 324 livres
Jean Michel Stribeck conclut un accord avec le propriétaire de la maison à l’arrière de sa parcelle
1801 (18 ventôse 9), Strasbourg 1 (20), Not. Lacombe n° 1723
C. Jean Michel Stribeck pere ancien agent de change d’une part
Et le C. Jean Georges Weber pere negt. et fabricant de tabac d’autre part
1. le C. Weber ayant à temoigner sa reconnaissance au C. Stribeck pour services rendus promet et s’engage pour lui et ses héritiers et ayant cause de ne Jamais construire aucun bâtiment ou autre chose sous quelque dénomination que ce puisse être sur un quarré de 36 pieds de longueur et autant de largeur sur le terrain de son jardin qui est en face de la façade de la maison de derrière du Cit. Stribeck a fin que le jour et l’air dont Il Jouit ne soit point altéré Intercepté ny empêché d’aucune manière et ce sous peine de dommages et interêts,
2. attendu que le coulant de pierre de taille posé dans le jardin du Sr Weber le long de la façade et le mur de séparation du C. Knörr marchand de vin qui conduit l’eau de la toiture du C. Stribeck dans l’egout dudit Knörr doit subsister et rester comme il existe sans altération le C. Stribeck qui a posé led. conduit avec l’agrement dud. Weber pere sera tenu de le reparer à ses frais
Marie Salomé Schætzel meurt en 1820 en délaissant un fils et trois filles ou leurs représentants.
1820 (16 et 17.5.), Strasbourg 15 (27), M° Lacombe n° 5629
Inventaire de la succession de Marie Salomé Schätzel décédée le 20 avril dernier – à la requête de Jean Michel Stribeck le veuf, Chrétien Frédéric Stribeck, négociant tant pour lui que comme tuteur nommé par la justice aux deux enfants mineurs de feu Jean Jacques Meyer, agent de change, procréés avec Marie Charlotte Stribeck et mandataire de Charles Auguste Meyer, soldat au régiment de lanciers de la garde royale en garnison à Beauvais, en présence de François Ehrmann graveur subrogé tuteur, les trois enfants nommés Charles Auguste majeur, Sophie Guillaumette et Frédéric Théodore, Marie Marguerite Stribeck veuve de Jean Jacques Ehrmann, négociant, Sophie Frédérique Stribeck épouse de Philippe Louis Ensfelder, sous chef de bureau à la mairie de cette ville
dans la maison mortuaire quai St Nicolas n° 74
une maison sise à Strasbourg quai St Nicolas n° 74 d’un côté Sr Bronner ministre du culte, de l’autre le Sr Pierre Fabry, derrière la propriété de M Jundt – batie par la communauté sur l’emplecement de la maison acquise suivant contrat reçu Humbourg le 10 mai 1769, estimée 18.000 francs
communauté meubles, salle au premier étage, chambre à coucher, salon, cuisine, cave et habillements 4653 fr, créances 211.287 fr, total 215.941 fr
terres à Mittelschaeffolsheim 800 fr
Contrat de mariage, notaire Dautel le 24 décembre 1762, Inventaire de la D° Schaetzel née Mosseder mère de la défunte en 1764 (Dautel), Inventaire de Jean Schaetzel, Dautel en 1776, testament de la D° Stribeck Dautel 2 avril 1763
communauté provisions 4693 fr, crénaces 211.287 fr, immeubles 18.800 fr, total 234.741 fr, passif 8079, reste 226.662 fr
acp 147 (3 Q 29 862) f° 130 du 24.5.
Jean Michel Stribeck meurt en 1821 en délaissant les mêmes héritiers
1821 (12.10.), Strasbourg 15 (30), M° Lacombe n° 6082
Inventaire de la succession de Jean Michel Stribeck, propriétaire à Strasbourg où il est décédé le 2 septembre dernier
à la requête de I. Chrétien Frédéric Stribeck, négociant 1) en son nom, 2) tuteur nommé par la justice à Frédéric Théodore Meyer, enfant mineur de Jean Jacques Meyer agent de change, en présence de François Ehrmann, graveur, 3) mandataire de Charles Auguste Meyer soldat au régiment de lanciers de la garde en garnison à Beauvais, héritiers de Salomé Schätzel décédée épouse de Jean Michel Stribeck, comme fondé de pouvoir de Sophie Wilhelmine Meyer majeure, Sophie Wilhelmine, Charles Auguste, Frédéric Théodore seuls enfants représentants de Marie Charlotte née Stribeck épouse de Jean Jacques Meyer
II. Marie Marguerite Stribeck veuve de Jean Jacques Ehrmann, négociant, III. Sophie Frédérique Stribeck épouse de Philippe Louis Ensfelder, premier chef de bureau à la mairie de cette ville, héritiers pour un quart de leur père et grand père décédé le 2 septembre 1821, dressé en la maison quai St Nicolas n° 74
immeuble, une maison & dépendances sise à Strasbourg quai St Nicolas n° 74, d’un côté le Sr Bronner ministre du culte, de l’autre le Sr Pierre Fabry, derrière la propriété de M Jund, estimée 18.000 francs
meubles vendus 3520 fr, total avec meubles existants 5315 fr, numéraire 1699 fr après paiements 1442 fr, total du numéraire 25.956 fr, effets en portefeuille 85.950 fr, créances 86.153 fr
acp 154 (3 Q 29 869) f° 110 du 16.10., total 248.818
Partage et liquidation
acp 154 (3 Q 29 869) f° 110-v du 16.10. Masse à partager 221.375, à déduire les frais 1500, bonifications d’intérêts 667, valeur de la maison 18.000, valeur des meubles non vendus 270, valeur des vins déjà partagés 1525 ensemble 22.962, reste 19.941 francs
Les héritiers Stribeck vendent la maison à l’agent de change Jean David Fleischhauer pour 17 000 francs
1822 (4.7.), Strasbourg 15 (32), M° Lacombe n° 6240
1. Chrétien Frédéric Stribeck, négociant, et Frédérique Dorothée Muller, 2. Marie Marguerite Stribeck veuve de Jean Jacques Ehrmann, négociant, 3. Sophie Frédérique née Stribeck épouse de Philippe Louis Ensfelder premier chef de bureau à la mairie de cette ville, 4. Charles Auguste Meyer, commis négociant, 5. Ignace Jung ci devant notaire agissant au nom de Sophie Wilhelmine née Meyer épouse de Jean Frédéric Noerpel, sellier à Barr, 6. Jean Paul Detroyes avocat & avoué près le Tribunal civil fondé de pouvoir de Frédéric Théodore Meyer, fourrier d’artillerie royale de la marine en garnison à Lorient
à Jean David Fleischhauer, agent de change
une maison avec appartenances & dépendances sise à Strasbourg quai St Nicolas n° 74, d’un côté le Sr Bronner d’autre Pierre Fabry devant la rue, derrière Isaac Jund – de la communauté & succession de Jean Michel Stribeck et Marie Salomé Schaetzel, auteurs et ayeuls des vendeurs dont ils sont les seuls et uniques héritiers, (lesdits) Meyer par représentation de leur mère Marie Charlotte Stribeck, qualités constatées par l’inventaire reçu M° Lacombe le 16 mai 1820. Le Sr Stribeck père a acquis ledit immeuble pendant son mariage avec Christine Salomé Braun, suivant acte reçu Humbourg notaire le 10 mai 1769. Convention entre Jean Georges Weber et le défunt Me Lacombe passée le 18 ventôse 9 relative au jour à laisser à la maison ci dessus vendue devant la façade de derrière – moyennant 17.000 francs
acp 158 (3 Q 29 873) f° 102 du 15.7.
Fils du brasseur du même nom, Jean David Fleischhauer épouse en 1809 Louise Wilhelmine Weyher, fille du négociant Chrétien Louis Weyher
1809 (7.9.), Strasbourg 12 (27), Not. Wengler n° 4231
Contrat de mariage – Jean David Fleischhauer négociant demeurant rue des bouchers n° 3, fils de feu Jean David Fleischhauer, brasseur, et de Marie Elisabeth Koch
Louise Wilhelmine Weyher demeurant chez son père quai St Thomas n° 12 fille de Chrétien Louis Weyher, négociant, président du Tribunal de Commerce de cette ville, et de défunte Marie Catherine Hummel
Enregistrement, acp 113 f° 46-v du 8.9.
communauté de biens réduite aux acquêts, exclusion de la communauté des apports des futur époux ainsi que de leurs héritages, exclusion de la communauté de la garde robe, de l’argenterie & des bijoux des futurs époux
Donation par le futur à la future d’une somme de 1800 francs à titre de don matutinal
Stipulation au profit du survivant de la faculté de prélever avant tout partage des meubles jusqu’à concurrence de 3000 francs
Donation réciproque au profit du survivant de l’usufruit de la moitié de la succession du prémourant
Donation par le père de la future épouse au profit ce celle-ci d’une part des profits de son commerce
Louise Wilhelmine Weyher meurt en 1843 en délaissant deux enfants.
1843 (14.10.), Strasbourg 7 (99), Adolphe Boersch n° 4320
14 octobre 1843. Inventaire de la succession de D° Louise Wilhelmine Weyher, décédée épouse M. Jean David Fleischhauer ancien agent de change, demeurant à Strasbourg et morte le 6 juillet 1843.
A la requête de M. Louis Charles Zeyssolff, notaire à la résidence de Strasbourg, demeurant en cette ville, agissant en qualité de mandataire de M. Jean David Fleischhauer ancien agent de change, domicilié à Strasbourg, suivant procuration (…), M. Fleischhauer agissant ès présentes comme ayant été commun en biens acquêts avec Madame Louise Wilhelmine Weyher son épouse défunte, 2° comme créances des remplacements qu’il a à prétendre pour biens propres inexistants, 3° et comme donataire contractuel de l’usufruit de la moitié de la succession de sadite épouse
de Mde Louise Corinne Fleischhauer épouse à ce autorisée de M. Charles Frédéric Traut avoué près le tribunal civil de première instance séant à Strasbourg, demeurant et domicilié en cette ville et de M. Charles Frédéric Traut sus nommé & qualifié agissant ès présentes tant à cause de l’autorisation qu’il donne à Mde son épouse aux fins ci après qu’en qualité de mandataire de M. Joseph Louis Edmond Fleischhauer, négociant demeurant & domicilié à Colmar (…) Mde Traut & M. Edmond Fleischhauer agissant ès présentes comme seuls habiles à se dire et porter héritiers sous bénéfice d’inventaire chacun de d’eux pour moitié de la succession de leur mère Mde Louise Wilhelmine Weyher, décédée épouse M. Jean David Fleischhauer, décédée à Strasbourg le 6 juillet 1843.
Contrat de mariage devant M° Wegler le 7 septembre 1809 et l’inventaire des apports dressé par ledit M° Wengler le 17 août 1810
Immeubles. Ville de Strasbourg. Une maison consisant en bâtiments de devant et de derrière à rez de chaussée et deux étages avec petit cour, cave, puits, appartenances et dépendances sise en la ville de Strasbourg quai St Nicolas N° 74 tenant d’un côté à la propriété de M. Bronner, de l’autre côté à propriété de M. Dietrich, donnant par devant sur le quai St Nicolas et attenant par derrière à la propriété de M. Jundt. Cet immeuble en partie occupé par le veuf et en partie loué est évalué à un revenu annuel det dans distraction des charges de 1200 francs, lequel revenu capitalisé au denier vingt donne pour évaluation du dit immeuble la somme de 24.000 francs
Banlieue de Strasbourg. Un jardin de la contenance d’environ 1750 centiares situé dans la banlieue de Strasbourg, hors la porte d’Austerlitz de cette ville, comprenant une maisonnette & une pompe faisant l’angle de la route de Colmar & de la route du Rhin, tenant des deux côtés aux dites deux routes & attenant par derrière au jardin de M. Eschenauer. (…)
acp 314 (3 Q 30 029) f° 97-v – Reprises de la défunte, 74.069
acp 318 (3 Q 30 033) f° 36-v (vacation du 4 janvier 1844) Il dépend de ladite succession 1) argenterie évaluée à 1481, 2) meubles trouvés à la campagne de M. Schützenberger di Ile Jars banlieue de Strasbourg 1556
Immeubles de la communauté, Une maison à Strasbourg quai St Nicolas N° 74, 24.000, Un jardin hors la porte d’Austerlitz 4000
créances actives 7025, vins et tonneaux 357, autres objets mobiliers de la communauté 739
Masse passive de la communauté 114.963 francs
Jean David Fleischhauer expose ses immeubles en vente. La maison quai Saint-Nicolas n’est pas adjugée. Les clauses mentionnent un accord passé en 1812 à la vente de la maison voisine (actuel n°20)
1843 (17.10.), Strasbourg 7 (100), Adolphe Boersch n° 4325
17 octobre 1843. Adjudication préparatoire – A comparu M. Louis Charles Zeyssolff, notaire demeurant à Strasbourg, agissant en qualité de mandataire de M. Jean David Fleischhauer ancien agent de change, demeurant et domicilié à Strasbourg, suivant procuration (…) lequel a déclaré que son mandant est intentionné de vendre aux enchères les immeubles ci après désignés (…)
Description des immeubles à vendre.
1° Une maison consisant en bâtiments de devant et de derrière à rez de chaussée & deux étages avec petit cour, cave, puits, appartenances & dépendances sise en la ville de Strasbourg quai St Nicolas N° 74 tenant d’un côté à la propriété de Monsieur Bronner, de l’autre côté à propriété de M. Dietrich, donnant par devant sur le quai St Nicolas et attenant par derrière à la propriété de M. Jundt.
2° Un jardin de la contenance d’environ 1750 centiares situé dans la banlieue de Strasbourg, hors la porte d’Austerlitz de cette ville, comprenant une maisonnette & une pompe faisant l’angle de la route de Colmar & de la route du Rhin, tenant des deux côtés aux dites deux routes & attenant par derrière au jardin de M. Eschenauer.
Etablissement des titres de propriété. 1° De la maison située à Strasbourg. Cet immeuble a été acquis durant la communauté qui a existé entre M. Fleischhauer sus nommé & Madame Louise Wilhelmine Weyher son épouse défunte. Il est devenu la propriété de M. Fleischhauer seul par suite de la renonciation qu’ont faite à la dite communauté les héritiers de la dite D° Fleischhauer qui sont M. Jean Joseph Edmond Fleischhauer, négociant demeurant à Colmar et Marie Louise Fleischhauer épouse de M. Charles Frédéric Traut avoué près le tribunal civil de Strasbourg demeurant en cette ville, suivant acte passé au greffe du tribunal civil de Strasbourg le 16 octobre courant enregistré.
M. Jean David Fleischhauer a fait l’acquisition du dit immeuble durant la communauté de A° M. Chrétien Frédéric Striebeck, négociant & Madame Frédérique Dorothée Müller son épouse demeurant ensemble à Strasbourg, 2° de Mde Marie Marguerite Striebeck, veuve de M. Jean Jacques Ehrmann, négociant demeurant à Strasbourg, 3° Mde Sophie Frédérique Striebeck épouse de M. Philippe Louis Ensfelder premier chef de bureau à la mairie de Strasbourg demeurant en cette ville, 4° M. Charles Auguste Meyer commis négociant demeurant à Strasbourg, 5° Mde Sophie Wilhelmine Meyer épouse de M. Jean Frédéric Noerpel sellier demeurant à Barr, et M. Frédéric Théodore Meyer fourrier de l’artillerie royale de la marine alors en garnison à Lorient, suivant contrat de vente passé devant M° François Lacombe qui en a la minute et son collègue notaires à Strasbourg le 4 juillet & le 11 juillet 1822 enregistré transcrit au bureau des hypothèques de Strasbourg le 17 du même mois volume 151 n° 116. Le prix stipulé au dit contrat & s’élevant à 17.000 francs a été en partie payé comptant (…) Cet immeuble faisait partie des communauté & succession du Sr Jean Michel Striebeck & de D° Marie Salomé Schaetzel son épouse de Strasbourg, auteurs & aïeuls desdits Chrétien Frédéric Striebeck & consors & dont ceux-ci étaienr seuls héritiers, savoir le Sr Chrétien Frédéric Striebeck, la dame veuve Ehrmann la dame Ensfelder chacun pour un quart, le Sr Charles Auguste Meyer, la dame Noerpel & le Dr Frédéric Théodore Meyer conjointement pour le dernier quart, par représentation de leur mère D° Marguerite Charlotte née Striebeck ainsi que le tout résulte de l’inventaire dressé après le décès de la D° Striebeck née Schaetzel par ledit M° Lacombe le 16 mai 1820. enregistré & de l’inventaire & liquidation dressés après le décès du Sr Striebeck père par le même notaire le 12 octobre & jours suivants de l’année 1821. également enregistré.
M. Striebeck père avait acquis ledit immeuble pendant son mariage de Delle Christine Salomé Braun suivant contrat passé devant M° Humbourg alors notaire à Strasbourg le 10 mai 1769. Le prix en a été payé en partie audit acte & en partie lors de l’acte portant ratification & quittance par devant le même notaire le 28 juillet dela même année
2° du jardin sis au ban de Strasbourg (…)
Charges, clauses et conditions (…) 3° La maison sise en la ville de Strasbourg sera adjugée telle qu’elle se trouvera & se comportera au jour de l’adjudication définitive, les volets & jalousies ainsi que les doubles fenêtres et tous les objets mobiliers devenus immeubles par destination seront compris dans la vente (…)
9° L’adjudicataire de la maison sera par le fait même de l’adjudication subrogé dans tous les droits résultant 1) d’un contrat de vente passé devant M° Uebersaal notaire à Strasbourg le 1 juin 1812 portant vente de la maison sise à Strasbourg quai St Nicolas N° 73, duquel contrat il résulte que le propriétaire de la maison sise à Strasbourg quai St Nicolas N° 74 pourra exiger du propriétaire de la maison N° 73 d’éloigner de son mur l’échoppe adossés contre ledit mur ou de lui laisser au moins dans le toit une ouverture convenable pour que la croisée qui s’y trouve puisse recevoir le jour, 2) d’une transaction passée devant M° Lacombe notaire à Strasbourg le 18 ventôse de l’an neuf, de laquelle transaction il résulte au profit de la maison à vendre des droits de vue et de jour sur la propriété qui se trouve derrière ladite maison comme aussi des droits d’écoulement des eaux de la maison à vendre par ladite propriété. L’adjudication sera subrogé dans le bénéfice de ces droits & servitudes sauf toutefois la prescription que pourrait opposer l’un ou l’autre des propriétaires des immeubles grevés de ces servitudes (…). Titres et papiers (…) Déférant à la demande du requérant M° Boersch a donné lecture & interprétation en allemand aux personnes présentes du cahier des charges qui précède et il a exposé au enchères une maison (…) sur la mise de 26.000 francs, Un jardin (…) sur la mise de 4525 francs
N° 4339 (mise de 300 francs sur la maison) M. François Henri Edouard Silberling directeur d’assurances
N° 4341, le 27 octobre 1843 (jardin adjugé définitivement) à M. Charles Auguste Kern, secrétaire général du consistoire Georges de la confession d’Augsbourg, 4525 francs
N° 4366, le 9 novembre 1843 (retrait de la maison)
acp 315 (3 Q 30 030) f° 8 (cahier des charges), acp 315 (3 Q 30 030) f° 59 (adjudication), acp 316 (3 Q 30 031) f° 29-v (retrait)
Jean David Fleischhauer vend la maison à Marie Madeleine Lauth, veuve du meunier Jean Geoffroi Lauth pour 24 000 francs
1843 (29.12), Strasbourg 7 (100), Adolphe Boersch n° 4456
29 décembre 1843. Vente – A comparu M. Louis Charles Zeyssolff, notaire demeurant à Strasbourg, agissant en qualité de mandataire de M. Jean David Fleischhauer ancien agent de change, demeurant et domicilié à Strasbourg, suivant procuration (…) lequel ès qualité qu’il agit, par les présentes déclare vendre, céder et abandonner en toute propriété avec la garantie contre tous troubles (…)
à Madame Marie Madeleine Lauth, vivant de ses revenus, veuve de M. Jean Geofroy Lauth, meunier demeurant et domiciliée à Strasbourg rue St Aurelie N° 10, acquéreuse ci présente et acceptant
Une maison consisant en bâtiments de devant et de derrière à rez de chaussée et deux étages avec petit cour, cave, puits, appartenances et dépendances sise en la Ville de Strasbourg quai St Nicolas N° 74 tenant d’un côté à la propriété de Monsieur Bronner, de l’autre côté à propriété de M. Dietrich, donnant par devant sur le quai St Nicolas et attenant par derrière à la propriété de M. Jundt. Cette vente a eu lieu sous les charges, clauses et conditions retenues au cahier des charges dressé à la requête du vendeur par ledit M° Boersch qui en a la minute et son collègue, notaires à Strasbourg le 17 octobre dernier, enregistré duquel cahier des charges lecture a été donnée à l’instant à la Dme Lauth par le dit M° Boersch l’un des notaires soussignés. Cette vente a en outre été faite pour et moyennant le prix et la somme de 24.000 francs, à compte de laquelle somme M. Zeyssolff reconnaît avoir reçu (…) celle de 12.000 francs
acp 318 (3 Q 30 033) f° 53 vente
Le meunier Jean Geoffroi Lauth de Strasbourg épouse en 1832 Marie Madeleine Lauth, fille du meunier de Hangenbieten Jean Henri Lauth
1832 (6.4.), Strasbourg, Frédéric Grimmer
Contrat de mariage – Jean Geoffroi Lauth, meunier au Moulin des Huit Tournants, fils de Jean Geoffroi Lauth père et d’Eve Rohfritsch demeurant à Strasbourg
Dlle Marie Madeleine Lauth, fille mineure de Jean Henri Lauth, meunier, et de Marie Catherine Freyss demeurant à Hangenbiethen
acp 209 (3 Q 29 924) f° 107-v du 11.4. – Les futur époux adoptent la communauté réduite aux acquets
Les père et mère du futur susqualifiés font donation à leur fils de 10.000 francs qu’ils payeront à la St Jean. Les père et mère de la future épouse font donation à leur fille d’une somme & valeur mobilières de 10.000 francs
Les futurs se font mutuellement donation au survivant de l’usufruit viager des apports de chacun à l’exclusion néanmoins des héritages faits pendant le mariage
Les père et mère du futur époux cédent à ce dernier le droit au bail sur le moulin des Huit Tournants en cette ville qui leur a été été consenti par le génie mlitaire de cette ville suivant bail fait sous seing privé en date du 7 février 1828, ici enregistré le 13 mars suivant. Ledit bail a été consenti pour 9 années, reste par conséquent encore à courir cinq ans. Vu l’enregistrement dudit acte qui porte un canon annuel de 4500 francs
Jean Geoffroi Lauth meurt sans enfant en 1835.
1836 (15.3.), Strasbourg, Frédéric Grimmer
Inventaire des objets mobiliers de la succession des biens de Jean Geoffroi Lauth, vivant meunier au Moulin des huit tournants à Strasbourg, à la requête de Marie Madeleine née Lauth la veuve et autres cohéritiers. Ledit Lauth est décédé le 14 décembre dernier
acp 239 (3 Q 29 954) f° 23 du 19.3. meubles 14.477 francs
Marie Madeleine Lauth meurt en 1893 en délaissant des héritiers collatéraux après avoir légué la maison à son neveu Alfred Lauth
1893 (1.7.), Strasbourg 8 (170) Gustave Edouard Loew n° 25.377
Inventar über dem Nachlasse der hier wohnhaften und daselbst verstorbenen Rentnerin Maria Magdalena Lauth Wittwe des Müllers Johann Gottfried Lauth
Sind erschienen 1. Frau Eugenie Buirel, Rentnerin, wohnend in Wasselnheim, Wittwe des herrn Henri Lauth, handenld als gesetzliche Vormünderin ihrer zwei minderjährigen Kinder aus der Ehe mit ihrem Gatten nämlich Frl. Anna Lauth geboren den 27. April 1878, Frl. Alice Lauth, geboren den 11. September 1880,
2. Herr Jacques Moritz, Kaufmann & seine von ihme ermächtigte Gattin Frau Caroline Lauth beede wohnend zu Hangenbieten,
3. Fräulein Sophie Lauth, Müllerin wohnend in Hangenbieten, handelnd eigenen Namens als Bevollmächtigte ihres Bruders herrn Philipp Lauth chemiker wohnend in Moskau, auf Grund Vollmachtsurkunde (…),
4. Herr Laurent Schneider, Brauereibesitzer & seine von ihm ermächtigte Gattin Frau Marie Jung, beide wohnend in Koenigshofen,
5. Frau Marie Salomé Lauth, Müllerin wohnend in Eckbolsheim, Wittwe des Müllers Herrn Philippe Jung, handelnd als gesetzliche Vormünderin ihrer zwei minderjährigen Kinder aus der Ehe mit ihrem Gatten, nämlich frl. Marie Jeanne Jung, geboren den 16. April 1880, Frl. Elisabeth Suzanne Jung geboren den 17. November 1881,
6. Fräulein Cécile Jung, großjährig ohne Geerbe wohnend in Eckbolsheim,
7. Obiger Herr Schneider, handenld als Nebenvormund der Kinder Jung, zugleich als Bevollmächtigter von Frau Marie Caroline genannt Lina Lauth Gattin des herrn Eugène Greiner, Direktor der Filiale des Banque de France, wohnend zu Belfort, (…)
8. Herr Charles Reiss, früher Kaufmann & seine von ohm ermächtigte Gattin Frau Mathilde Lauth beide wohnend in Straßburg, Herr Reiss handelnd zugleich ams Bevollmächtigter des Herrn Auguste Lauth, Kaufmann wohnend in Carcassonne (…)
9. Herr Charles Müller, droguist, & seine von ihm ermächtigte Gattin Frau Camille Clausing beide wohnend zu Straßburg, Herr Müller handenlnd zugleich als Bevollmächtigter des Herrn Armand Clausing, Friedensrichter zu Dijon wohnend (…)
10. Herr Louis Hatt-Perrin, Kaufmann wihnend in Straßburg, handelnd als Bevollmächtigter von herrn Henri Charles Perrin, Ingénieur Directeur de la Sucrerie, wohnend in Chalon-sur-Saône (…), herrn Paul Louis Hatt, Bierbrauer wohnend in Nancy (…)
11. Frau Henriette Lauth, Rentnerin wohnend in Straßburg, Wittwe des ehemaligen Brauers herrn Eugène Heim, 12. Fräulein Lucy Hatt, ohne Stand, wohnend in Strassburg, noch minderjährig, emanzipirt, unter beistand ihres Curators des obigen Herrn Louis Hatt,
13. Herr Philippe Lauth, Rentner wohnend in Strassburg, handelnd sowohl eigenen Namens wie als Testamentsvollstrecker der Verlebten.
Erbberechtigung. Von den genannten Personen sine einzige Erben am Nachlasse der am 29. April 1893 zu Strassburg verstorbenen daselbst wohnhaft gewesenen Rentherin Maria Magdalena Lauth, Wittwe des Müllers Johann Gottfried Lauth, Nämlich
I. die Kinder & Enkel ihres vorverstorbenen Bruders Daniel Lauth, mit einander für ein 7. und zwar Frau Moritz, Fräulein Sophie Lauth & Herr Philipp Lauth, als Kinder dieses Bruders für je ein Viertel dieses Siebtels oder ein 28. die zwei minderjährigen Kinder des Herrn Henri Lauth als Enkel, in Stellvertretung des Letztern, eines letzten Sohnes des herrn Daniel Lauth, mit einander für ein 28. oder je für ein 56.
II. die Kinder & Enkel ihrer vorverstorbenen Schwester Frau Marie Lauth Wittwe des Herrn Philipp Jung, mit einander für ein 7. & zwar Frau Schneider & Frl. Cécile Jung als Kinder dieser Schwester für je ein drittel dieses 7. jede ein 21., die zwei minderjährigen Kinder Jung ams Enkel in Stellvertretunh ihres vorverstorbenen Vaters herrn Philipp Junh mit einander für das letzte drittel dieses Siebtels oder für ein 21. oder je für ein 42.
III. die Kinder ihrer vorverstorbenen Schwester Frau Caroline Lauth, Wittwe des Herrn Théodore Lauth, mit einander für ein 7., Frau Greiner, Frau Riess & herr Auguste Lauth für je ein drittel dieses 7. oder ein 21.
IV die Kinder ihrer vorverstorbenen Schwester Frau Sophie Lauth, Gattin des Arztes Herrn Clausing, mit einander für ein 7., Frau Müller & Herr Clausing für je eine Hälfte dieses 7. oder ein 14.
V. die Kinder & Enkel ihrer vorverstorbenen Schwester Frau Catherine Lauth, Gattin des Architekten Herrn Henri Perrin, mit einander für ein 7. & zwar Herr Henri Lauth als Sohn für die Hälfte dieses 7. das ist ein 14., Herr Paul Hatt & Fräulein Lucie Hatt, Kinder der vorverstorbenen Tochter Frau Constance Perrin Gattin des Kaufmanns herrn Louis Hatt, mit einander für die hälfte dieses 7. das ist ein 14. oder je für ein 28.
VI. Frau Heim, ihrer Schwester für ein 7.
VII. Herr Philipp Lauth, ihr Bruder für das letzte 7.
Die Erschienenen errichten hiermit wie folgt das Inventar über den Nachlass der Frau Wittwe Lauth
Testament. Die Verlebte hat drei Testamente hinterlassen deren Wortlaut unten wieder gegeben wird. I. Durch Testament vor Notar Keller dahier vom 16. Juli 1890, registrirt zu Straßburg eins den 1. Mai 1893 Band 872 Bl. 27 N° 515, Ich vermache meinem Neffen Alfred Lauth zwar in vollen Eigenthum mein Haus, gelegen zu Straßburg Nikolausstaden Nr 19 unter der Bedingung, seinem Vater & seiner Mutter, so lange sie am Leben sind, die Wohnung, die sie heute in dem hause bewohnen, unentgeltlich im genuß zu lassen. Auch gebe ich meinem Neffen Alfred (…). Mein übriges Vermögen soll unter meinen Geschwister beziehungsweise ihre Nachkommen (…)
II. Laut zweier eigenhändiger Testamente welche am 17. Mai 1893 bei Notar Loew hinterlegt wurden, zufolge Verfügung des kaiserlichen Amtsgerichts Straßburg vom vorhergehenden Tage hat die Verstorbene folgende Verfügungen getroffen, (a) Ich vermache meinem Neffen Alfred Lauth, Sohn von meinem Bruder Philipp Lauth in vollem Eigenthum ein hauß gelegen zu Straßburg Nikolausstaden Nr 19 unter Bedingung seinem Vater & Mutter, so lange Sie leben, die Wohnung, die Sie heute in dem hause bewohnen, unentgeltlich im genuß zu lassen. Meinem Neffen Alfred gebe ich auch (…). Mein übriges Vermögen außer den Legaten hat Er mit meinen Andern Geschwister in gleiches Loos (…) Straßburg, den 22. Mai 1891. (b) (…) Dienstag den 28. Juny 1892.
Auslegung der Testamente (…)
Liegenschaften. Stadt Strassburg. Ein haus mit Erdgeschoß zwei Stockwerken, Mansarden, hof, Rechten & Zugehörden, gelegen zu Straßburg Nikolausstaden Nr 19, früher 74, begrenzt einerseits von familie Dietrich anderseits von h. Hiller, hinten ist Herr Hammel. Gekauft durch Frau Lauth von Herrn Jean David Fleischhauer zu Straßburg laut Versteigerungsprotokoll des Notars Boersch dahier vom 29. Dezember 1843, überschrieben am hiesigen Hypothekenamte den 11. Januar 1844 Band 411 Nr 58 mit amtlicher Einschreibung Band 399 Nr 306. Dieses Haus hat die Verlebte ihrem Neffen herrn Alfred Lauth Vermacht.
acp 875 (3 Q 30 590) f° 76 n° 1837 du 11.7. (Tab. Bd. 79 Bl 51 Nr 32 – Erbsch. Erk. vom 28/10.93 204*/439) Nachlass. Bestimmte Mobilien 2730, Vermachte Andenken 192
Werthpapiere I. dem Alfred Lauth vermacht 99, II. nicht vermacht 19.759
Forderungen 3677
Liegenschaften, Haus Nikolausstaden 19, Alfred Lauth vermacht. Bann Hangenbieten (…)
Rechnung von Jenny Lauth vereinnahmt 298, verausgabt 358, Ausgabeüberschuß 60, verkaufte Mobilien 20
Die Verlebte war Nutznießerin des Nachlasses ihres Mannes & hatte solche laut Theilung Grimmer vom 1. Juli 1836 in Händen 1092, Schulden 2242
Premier testament (1890) par lequel elle lègue notamment la maison à Alfred Lauth, fils de son frère Jean Philippe Lauth.
1893, Antoine Keller
16. Juli 1890, Testament der am 29. Aprilis 1893 verstorbenen Maria Magdalena Lauth, Rentnerin hier, Wittwe von Johann Gottfried Lauth, wonach dieselbe vermacht 1. ihrem Neffen Alfred Lauth Sohn ihres Bruders Philipp Lauth, ihr Haus dahier Nikolausstaden Nr 19, unter der Bedingung seinem Vater und seiner Mutter, so lange sie am Leben sind, die Wohnung, die sie heute in dem Hause bewohnen, unentgeltlich im genuß zu lassen, Ferner gibt sie ihm die Titres von 3 Obligationen Panama und 3 Akten Panama sowie ihre Reben im Bann Mittelhausbergen
2. den beiden Kindern von Alfred die 6000 Franken welche die Familie Giess von Oberschaeffolsheim ihr auf echte Hypothek auf die Mühle schuldig ist (…)
acp 872 (3 Q 30 587) f° 27-v du 1.5.
Le legs est confirmé par deux autres testaments olographes.
1893 (17.5.), Gustave Edouard Loew
Eigenhändiges Testament der am 29. April 1893 hier verstorbenen Maria Magdalena Lauth Wittwe Johann Gottfried Lauth, errichtet den 17. Mai 1893
acp 874 (3 Q 30 589) f° 20-v n° 1008 du 27.5.
Eigenhändiges Testament der am 29. April 1893 hier verstorbenen Maria Magdalena Lauth Wittwe Johann Gottfried Lauth, errichtet den 28. Juni 1892
acp 874 (3 Q 30 589) f° 20-v n° 1009 du 27.5.
Partage de la succession
1895 (5.10.), Gustave Edouard Loew N° 26.621
Theilung des Nachlasses der zu Strassburg am 29. April 1893 verlebten Maria Magdalena Lauth Wittwe des Müllers Johann Gottfried Lauth hier
(gerichtlich bestätigt 27 Maertz 1895) Die Verlebte hinterließ drei Testamente (…). Als Grundlage dient ein Inventar vor Notar Loew hier am 1. Julÿ 1893, in demselben einigten sich die Partheien über dem Sinn der Testamenten und stellten fest, daß kein Universallegatar eingesetzt ist
die vorhandene Immobilien wurden sämmtlich durch Notar Loew hier verkauft auf Grund verschiedenen Urkunden um 4960 M
Sämmtliche Forderung und Werthpapiere wurden verkaufft und der Erlös bei der Bank Staehling hinterlegt 18.913
Die Legaten wurden auf Grund verschiedenen Urkunden ausgeliefert, der Notar hat eingenommen 35.721, er hat vorausgabt 34.200, Rest 1520.
Masse Mittel, 1) Einnahme des Notars 1520
2) Vorschuß an die Erben und Werth von Mobilien denselben bereits zugetheilt 2900
3. Werth zweier Grundstücke geschätzt, 1040 (Summe) 5640
hievon ab den Betrag zweier Legata, 728 (Rest) 4732
acp 898 (3 Q 30 613) f° 24 du 2.4.
Le négociant Alfred Lauth, demeurant à Exincourt, hypothèque la maison au profit de ses deux filles Hélène et Yvonne, nées de son mariage avec Marthe Bourrel, légataires d’une somme de 6 400 marks
1894 (23.1.), Strasbourg 8 (172) Gustave Edouard Loew n° 25.919
23 Januar 1894. Hypothek-Bestellung – ist erschienen Herr Louis Hatt-Perrin, Kaufmann, wohnend in Straßburg, handelnd als bevollmächtigter des herrn Alfred Lauth, Kaufmann, wohnend zu Exincourt bei Audincourt (Doubs) auf Grund der angehefteten Vollmachtsurkunde des Notars Merklen zu Epinal vom 15. Januar 1894 (…), derselbe ersuchte um Beurkundung nachfolgender Hypothekbestellung.
Die am 29. April 1893 in Straßburg verstorbene, daselbst wohnhaft gewesene Rentnerin Frau Maria Magdalena Lauth, Wittwe des Müllers Herrn Johann Gottfried Lauth, hatte in ihren drei registrirten Testamenten, das erste vor Notar Keller dahier vom 16. Juli 1890, das zweite eigenhändig vom 23. Mai 1891, das dritte eigenhändig vom 28. Juni 1892, beide letztere hinterlegt beim unterschriebenen Notar am 17. Mai 1893, den zwei minderjährigen Kindern des obigen Vollmachtgebers Namens Helene Lauth, geboren am 25. Februar 1887, und Yvonne Lauth, geboren den 29. Januar 1889, ein Vermächniß von 4800 Mark ausgesetzt, zu nehmen von der Hypothek Forderung zu 6400 Mark, welche für die Erblasserin bei den Müllerseheleuten Jakob Giess in Oberschäffolsheim ausstand. Beide Kinder, geboren aus der Ehe ihres Vaters mit seiner noch lebenden Gattin Frau Marthe Bourrel, stehen bis zu ihrer Großjährigkeit unter der gesetzlichen Vermögens verwaltung ihres Vaters. Die Hypothek Forderung wurde nach dem Todt der Erblasserin durch die Erben eingezogen, welche dann durch Urkunde des unterschriebenen Notars vom 30. Dezember 1893 den Antheil der Kinder Lauth mit 4800 Mark ihrem Vater in baar aushändigten. Der Letztere, welcher seinerseits nach dem Gesetze den Betrag seinen Kindern bei deren Großjährigkeit auszahlen muß und bis dahin oder wenigstens bis zu ihrem 18. Jahre, die Zinsen für sich behalten darf, will diese Forderung seinen Kindern hypothekarisch sicher stellen.
Dies vorausgeschickt unterstellt hiermit herr Hatt-Perrin Namen des Herrn Lauth zur Sicherheit der fraglichen 4800 Mark sowie der Zinsen, soweit sie der Vater seinen Kindern zu zahlen haben wird, und die Vollstreckungs- und andern Kosten, das nachbeschriebene Anwesen des herrn Lauth zur Hypothek zu Gunsten der beiden fräulein Hélène und Yvonne Lauth, für welche dieß annimmt der mitanwesende herr Florenz Wernert, Notariatssgehülf, wohnend in Straßburg
Stadt Strassburg. Ein haus mit Erdgeschoß zwei Stockwerken und Mansarden, nebst Hof, Rechten und Zugehörden, gelegen zu Straßburg, Nikolausstaden Nr 19, früher 74, begrenzt einerseits von familie Dietrich, anderseits von herrn Hiller, hinten ist Herr Hammel. Herr Lauth erhielt dieses Anwesen von der obigen Erblasserin vermacht in ihren erwähnten Testamente vor Notar Doctor Keller dahier vom 16. Juli 1890. Nach ihrem Tode erhielt er es von den Erben mündlich ausgehändigt und die Erwerbstitel laut der obigen Aushändigungsurkunde übergeben. Die Erblasserin hatte es gekauft laut Versteigerungsprotokoll des Notars Boersch dahier vom 29. Dezember 1843, überschrieben am hiesigen Hypothekenamte den 11. Januar 1844 Band 411 Nr 58. Der Preis ist nun bezahlt, auch ruhen, soweit bekannt, sonst keine Hypotheken auf dem Anwesen.
L’agent d’assurances Jean Philippe Lauth consent au mariage de son fils chimiste Alfred à Paris
1886 (12.3.), Emile Ritleng jeune
Einwilligung durch Johann Philipp Lauth, Versicherungs Inspektor hier, in die Ehe seines Sohnes Alfred Lauth, Chemiker mit Valerie Bourrel, beide in Paris
acp 772 (3 Q 30 487) f° 93-v du 12.3.
Le chimiste Jacques Philippe Alfred Lauth épouse en 1886 Marthe Valérie Bourrel, native de Bærenthal (en Moselle). Le mariage est dissous par divorce en 1894
Mariage, Paris XVII (n° 296)
L’an 1886 le 24 mars à onze heures du matin, acte de mariage de Jacques, Philippe, Alfred Lauth, né à Strasbourg (Alsace Lorraine) le 16 août 1851, chimiste, domicilié à Paris, Rue Picot 9, avant à Nancy (Meurthe et Moselle) Faubourg Saint Jean 22, fils majeur de Jean Philippe Lauth, inspecteur d’assurances et de Caroline Weissgerber, son épouse, sans profession, demeurant à Strasbourg quai saint Nicolas 19, le père consentant au présent mariage aux termes d’un acte reçu par M° Ritleng, notaire au dit lieu le 12 de ce mois, la mère présente et consentanre au mariage d’une part
et de Marthe, Valérie Bourrel, née à Baerenthal (Alsace Lorraine) le 2 mai 1862, sans profession, domiciliée avec sa mère à Paris rue Montonette 25, fille majeure de Jean, Louis, Joseph, Benjamin Bourtrel, décédé, et de Emelie Adélaïde Petsche, sa veuve, rentière, présente et consentante au mariage
[in margine :] L’an 1894 le 11 août sous N° 1858 a été transcrit sur les registres courants des mariages de cet arrdt. un jugement du tribunal civil de la Seine en date du 22 février 1894 qui a prononcé le divorce des époux dénommés ci contre
[in margine :] *elon le 26 juillet 1911, bureau de tabac (i 16)
Le marchand Alfred Lauth, demeurant à Gérardmer, vend la maison au peintre François Joseph Schell et à sa femme Marguerite Kusian
1896 (27.6.), Gustave Edouard Loew n° 27.463
Alfred Lauth, Kaufmann zu Gérardmer
an François Joseph Schell, Kunstmaler und Margaretha Kusian, Eheleute in Straßburg
Stadt Strassburg. Anwesen Nikolausstaden N° 19, vorher 74, mit Vorder & Hintergebäuden mit Erdgeschoß, zwei Stockwerken & Mansardes nebst Hof & Brunnen P 1373. 1373, 2,20 ar Fläche
Erworben laut Testament Not. Keller vom 16. Juli 1890, Nachlass Magdalena Lauth Weÿl. Gottfried Lauth, gestorben am 29. April 1893 in Straßburg – um 20.500 Mark, worauf Erwerber zu bezahlen übernommen (…)
Die Eltern des Verkäufers haben laut obgedachten Testament das Wohnrecht in ihrer Wohnung im Anwesen bis zu ihrem Tod. Im Falle Eheleute Laut oder das Ueberlebende freiwillig ausziehen würden wird vereinbart, daß die Käufer denselben oder dem Ueberlebenden eine Leibrente von jährlich 560 Mark in vierteljährlichen Zahlungen vom Tage des Auszuges an zu leisten haben
acp 913 (3 Q 30 628) f° 82 n° 2545 du 4.7.
Fils du marchand de vins Michel Schell, le comptable François Joseph Schell épouse en 1890 Caroline Marguerite Amélie Kusian, fille du marchand Jean Louis Kusian
1890 (18.4.), Strasbourg 9 (185) Jean Mossler n° 10.065
Ehevertrag – erschienen I. Herr Franz Joseph Schell, Buchhalter in Strassburg wohnhaft, Großjähriger und ehelicher Sohn von Herrn Michel Schell, Weinhändler und dessen Ehefrau Barbara Kopp, zu Lebzeiten beisammen in Bergbieten wohnhaft gewesen, Handelnd in seinem persönlichen Namen als Bräutigam, Einerseits
II. und Fräulein Carolina Margaretha Amalia Kusian, ledig, ohne Gewerbe in Strassburg wohnhaft, Großjährige und eheliche Tochter von Herrn Johann Ludwig Kusian, Kaufmann und dessen Ehegattin Julie Mathilde Ledermann, beisammen in Straßburg wohnhaft, Handelnd in ihrem persönlichen Namen als Braut, Andererseits
acp 827 (3 Q 30 542) f° 68-v n° 394 du 22.4. – Errungenschaftgemeinschaft. Kleider pp. bleiben persönlich
Einbringen des Bräutigams 1) Mobilien im Werthe von M 3469, 2) baares Geld 8000, 3) Versicherungs Summ im Betrage von 10.000 geschuldet durch der Lebens Versicherungs Gesellschaft Union de Londres zahlbar nach seinem Ableben an seiner raut
Einbringen der Braut, Mobilien im Werthe von M 2680.
Schenkung an der Braut durch deren Eltern verschiedenen Mobiliengegenstände 3096, & einer jährlichen Rente von 400 M zahlbar jährlich in 4 Malen ertmals am 24. VI 1890 bis zum Tod des Längstlebenden, geschätzt zu 4000, Summa 7096
Schenkung durch den Bräutigam an der Braut, wann er Kinderlos sterben solte, seines gesamten Nachlasses in Volleigenthum & durch die Braut an den Bräutigam solange er Wittwer bleiben würde der lebenslänglichen Nutznießung ihres gantzen Nachlasses.
1897 (22.4.), Gustave Edouard Loew
Schuldbrief – Frantz Joseph Schell, Kunstmaler und Margaretha Kusian Eheleute hier
zu Gunsten von Julius Ferch, Notar in Delme, über ein Darlehen von 7200 Mark
Pfand, Anwesen hier, Nikolausstaden N° 19
acp 925 (3 Q 30 640) f° 44-v n° 457 du 23.4.
L’artiste peintre François Schell et Marguerite Kusian hypothèquent la maison au profit de Gustave Kern, directeur de l’Union des gaz
1899 (28.11.), Jean Hammann n° 3730
Schuldbrief – Frantz Schell, Kunstmaler und Margaretha Kusian Eheleute in Straßburg
zu Gunsten von Gustav Kern, Direktor der Union des Gaz hier, über ein Darlehen von 5000 Mark
Pfand, Anwesen hier, Nikolausstaden N° 19
acp 962 (3 Q 30 677) f° 48 n° 3170 du 2.12.
L’Union fraternelle protestante d’Allemagne, domiciliée à Berthelsdorf près de Herrenhut d’une part, l’artiste peintre François Schell et Marguerite Kusian d’autre part, passent une convention de servitudes entre les n° 19 et 20.
1904 (22.4.), Gustave Edouard Loew n° 38.682
Gegenseitige Verpflichtungen zwischen Alfred Renkewitz, Prediger in Strassburg, handelnd als mündlich bevollmächtigter der evangelischen Brüderunität in Deutschland mit dem Sitz in Berthelsdorf bei Herrenhut
und Frantz Schell, Kunstmaler und Margaretha Kusian Eheleute in Straßburg
zur Bestellungen von Dienstbarkeiten auf die Anwesen N° 20, obige Gesellschafft gehörig und N° 19 en Eheleut Schell gehörig, und in der Stadt Strassburg am Nikolausstaden gelegen sind
acp 1024 (3 Q 30 739. I) f° 61-v n° 276 du 26.4.
François Joseph Schell et Marguerite Kusian hypothèquent la maison au profit de Mathieu Levy
1905 (5.10.), Gustave Frédéric Huber n° 1514
Schuldbrief – Frantz Joseph Schell, Kunstmaler und dessen Ehefrau Margaretha Kusian in Strassburg
für Mathieu Levy, Eigenthümer in Strasbourg über bar 1088 M
Pfand, Wohnhaus St Niclausstaden P 1378 Haus N° 19
acp 1047 (3 Q 30 762. I) f° 58-v n° 1611 du 16.10.
Caroline Marguerite Kusian meurt dans sa maison quai Saint-Nicolas en 1927
Décès, Strasbourg (n° 623) Le 2 mars 1927 à six heures est décédée en son domicile 19 quai Saint Nicolas Caroline Marguerite Kusian, née à Strasbourg le 8 octobre 1867, fille de Jean Louis Kusian et de Julie Mathilde Ledermann, décédée épouse de François Joseph Schell, artiste-peintre. Dressé le deux mars 1927 (im 158)